مسابقه طراحی پلان و نمای ساختمان تجاری واژار(سبک سنتی ایرانی)

0

اطلاعات پروژه

Benyamin Abasi

نوع مسابقه: طراحی تجاری/ اداری
سال انجام پروژه : 1404
نقش: طراح
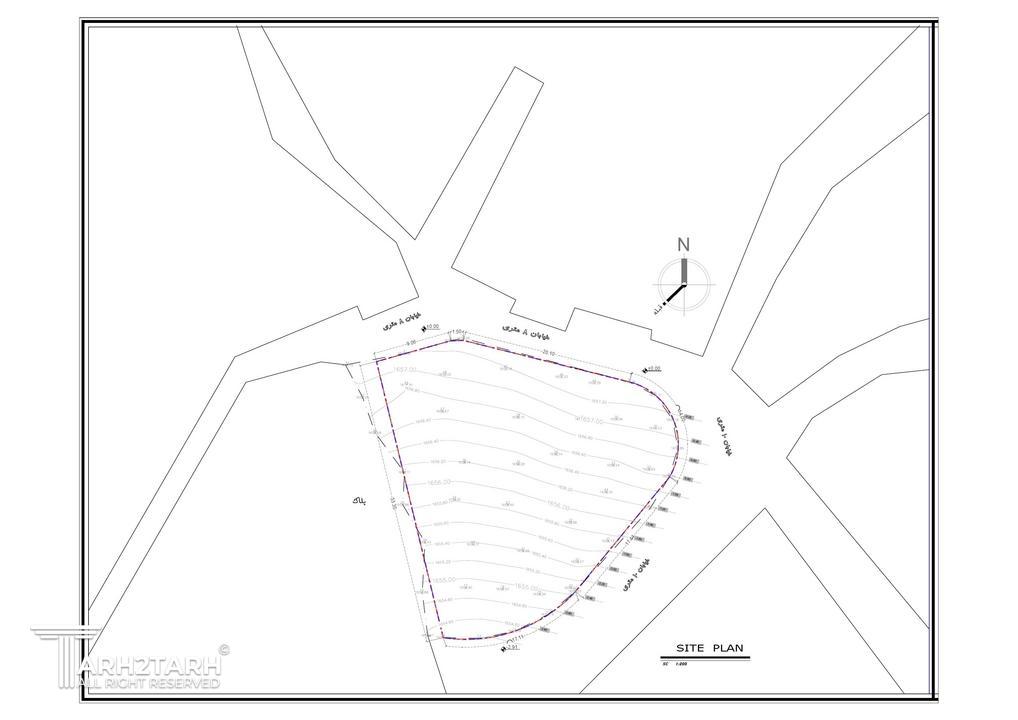
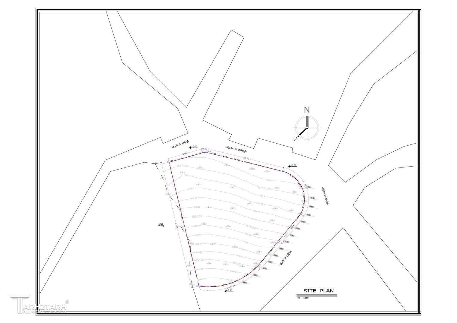
موقعیت : سمنان
متراژ زیربنا : 2600
مساحت زمین : 838
کارفرما : علیرضا شربتدار

خدمات ارائه شده توسط طراح

خدمات طراحی و کانسپت
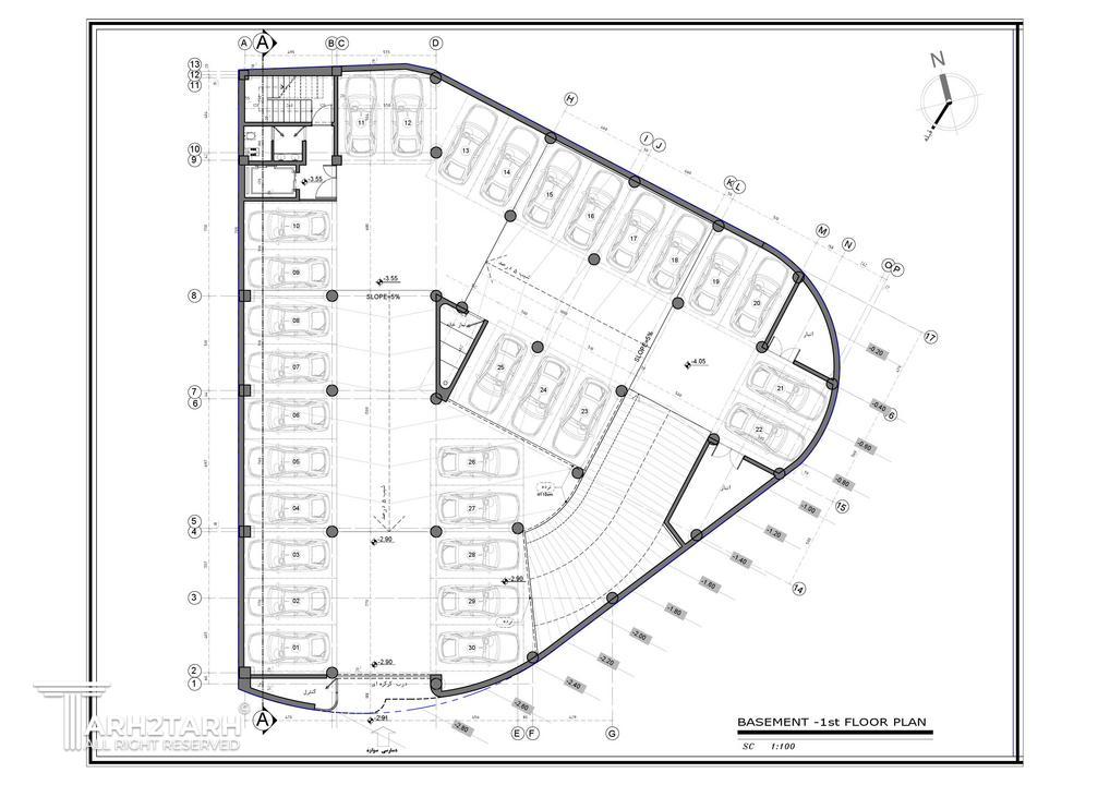
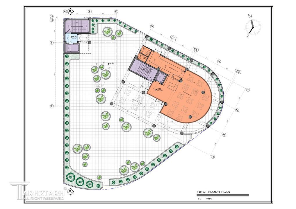
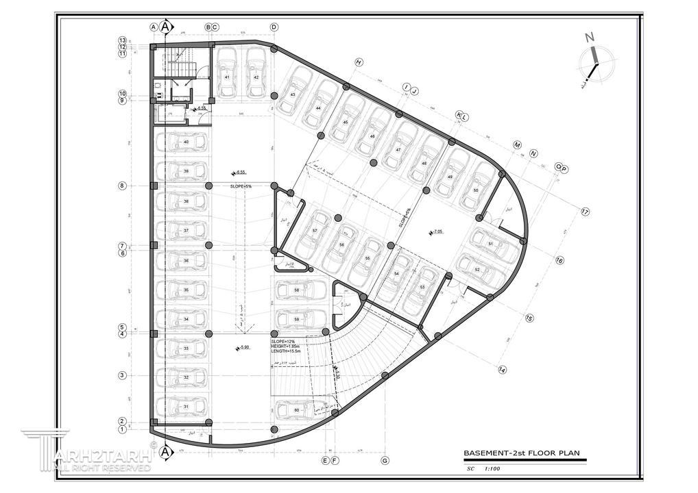
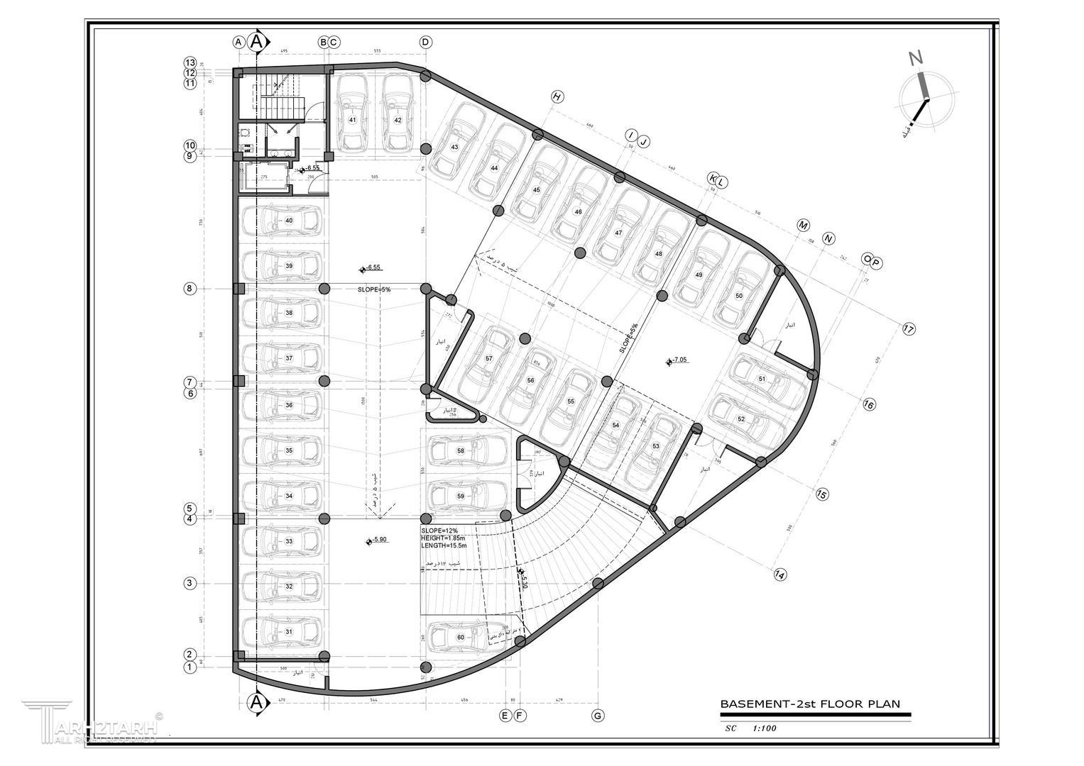
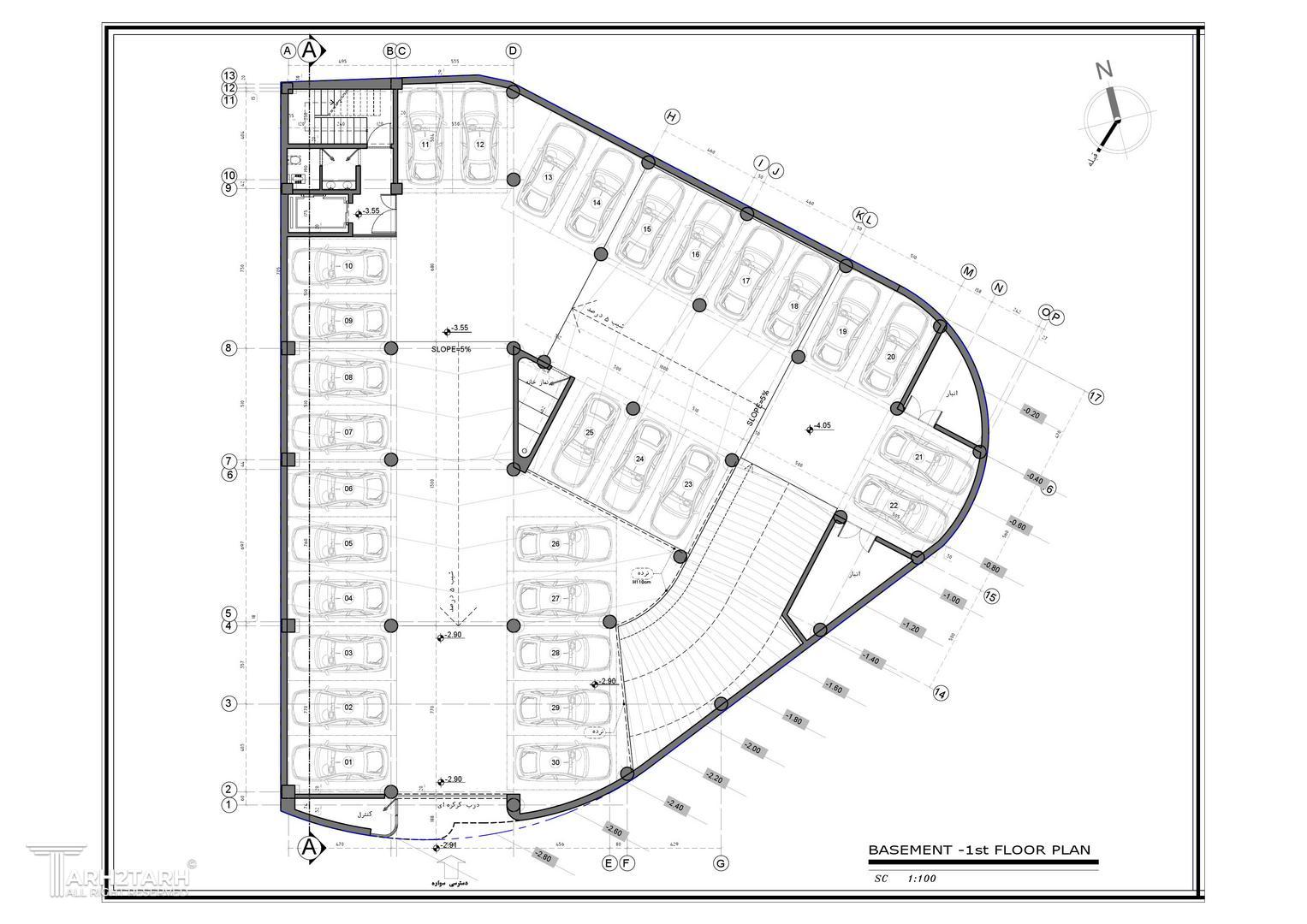
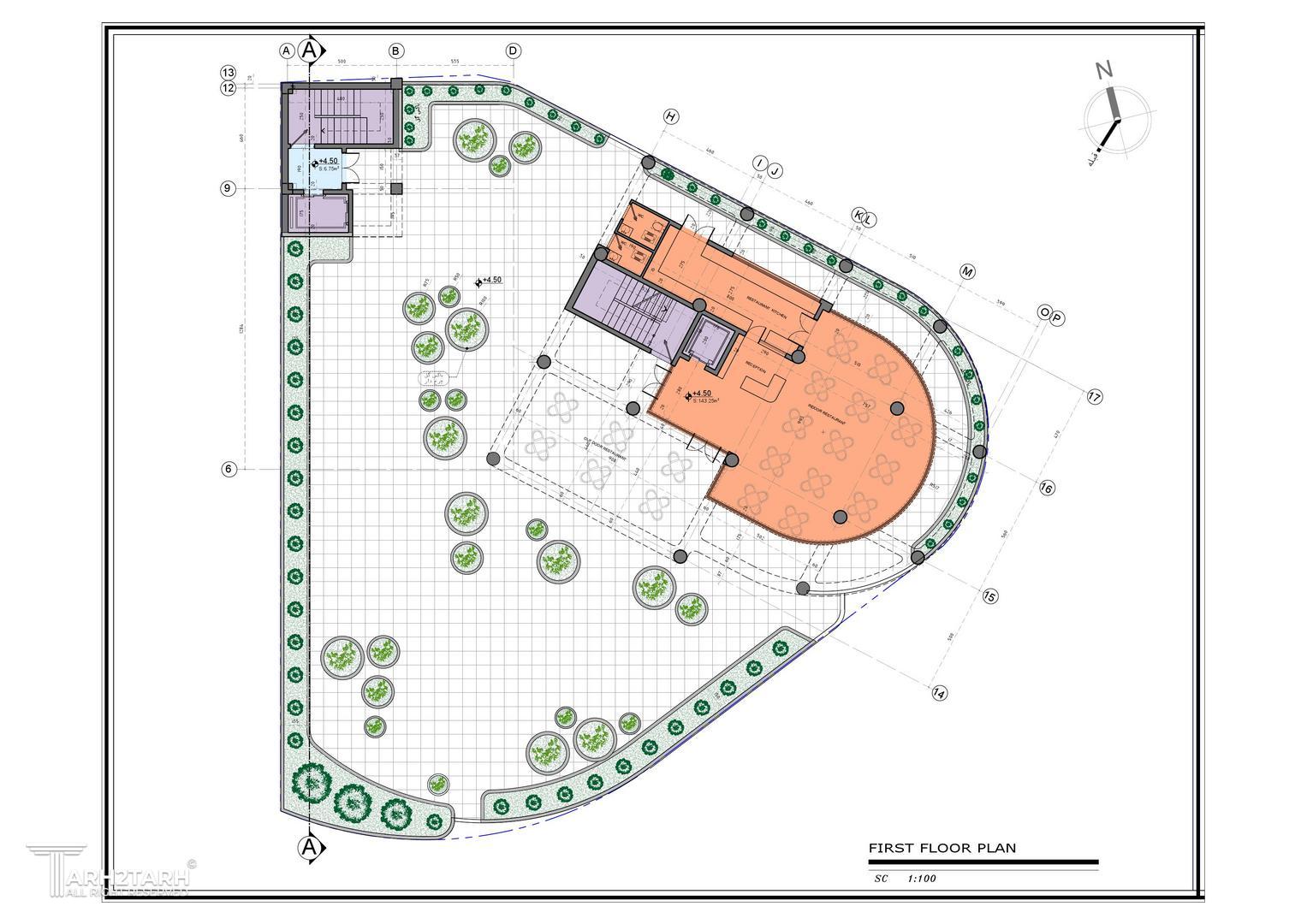
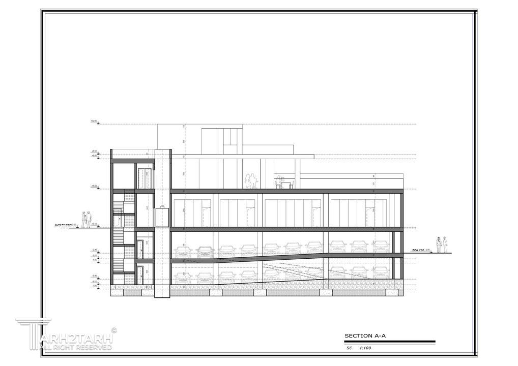
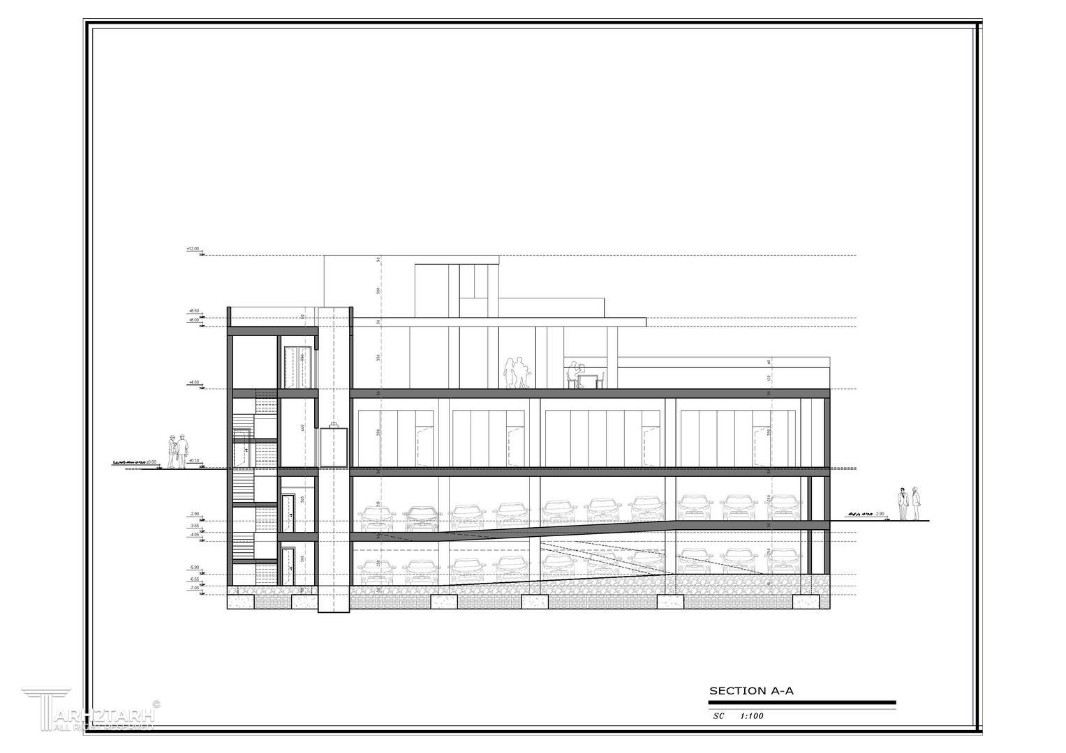
طراحی پلان (نقشه معماری) فاز 1
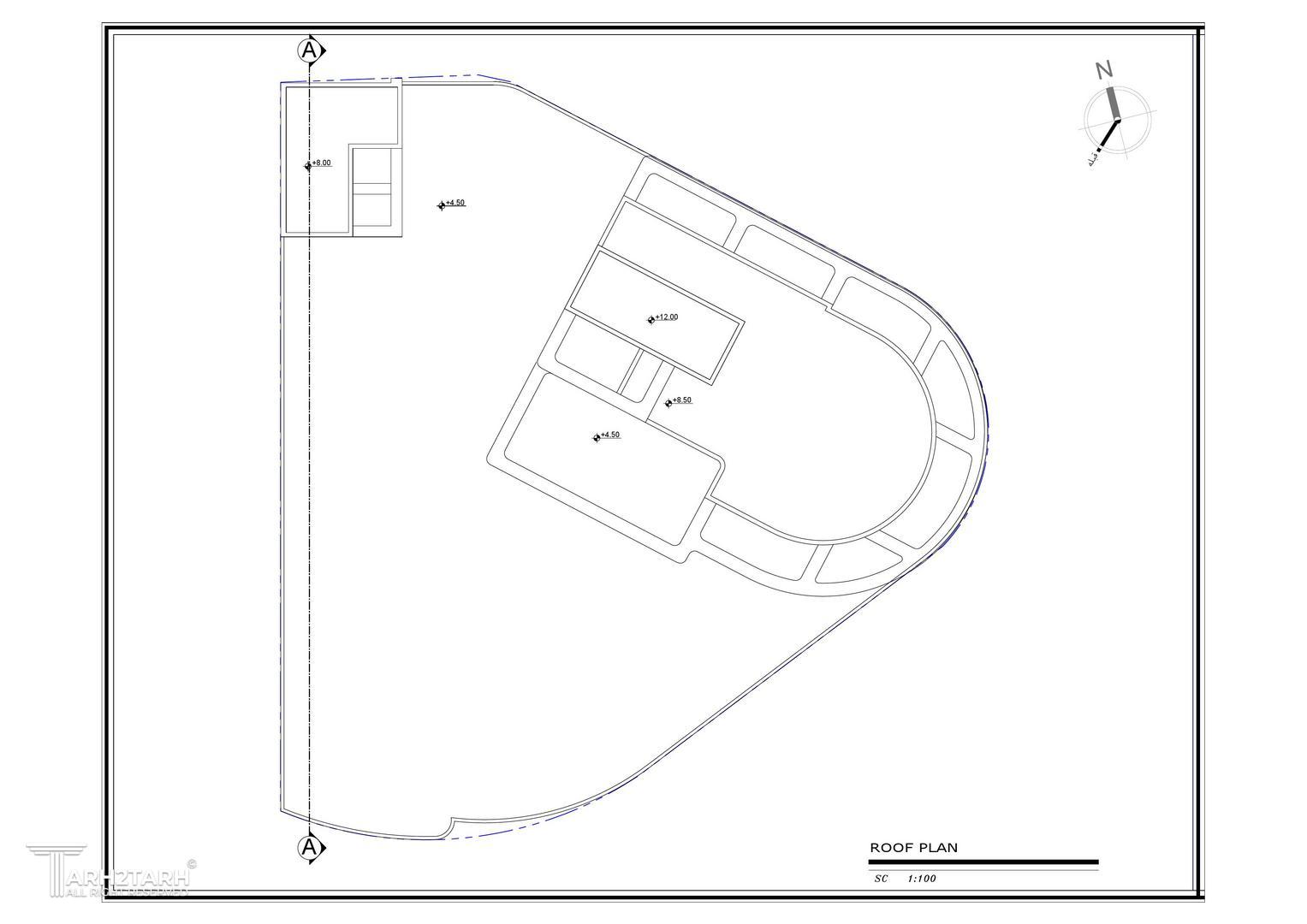
طراحی نما
طراحی منظر، فضای سبز، لند اسکیپ، روف گاردن و محوطه
طراحی نورپردازی

موقعیت مکانی پروژه

پیشنهاد و بازخورد