مسابقه طراحی ویلا ترنج

0

اطلاعات پروژه

محمدرضا انبیاء

نوع مسابقه: طراحی ویلا
سال انجام پروژه : 1400
نقش: طراح
موقعیت : عباس آباد
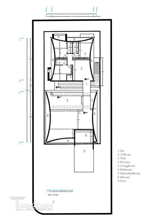
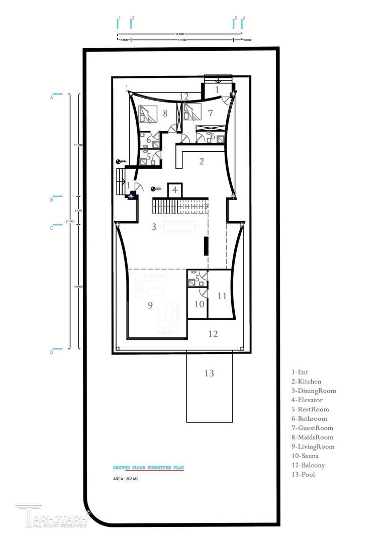
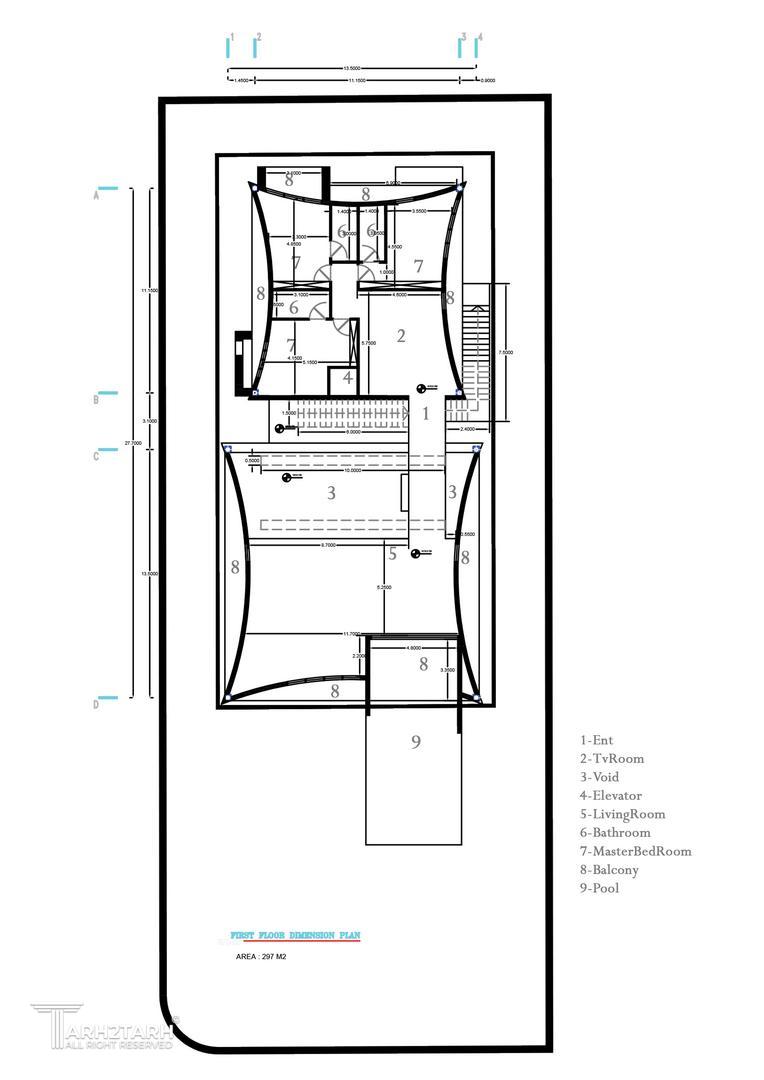
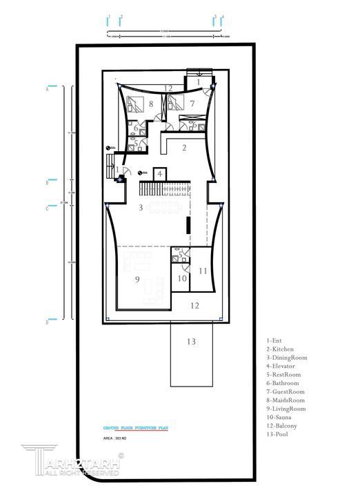
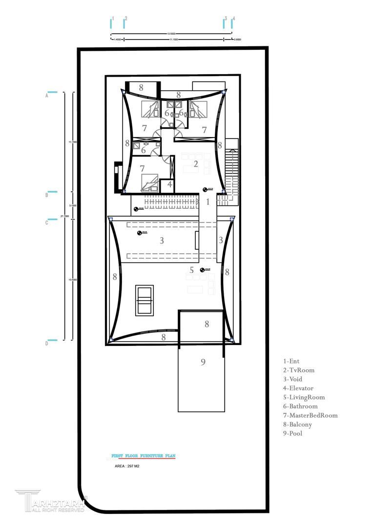
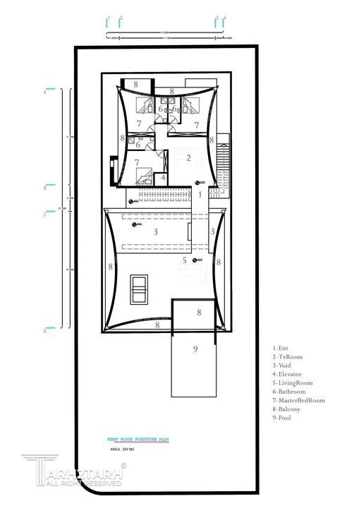
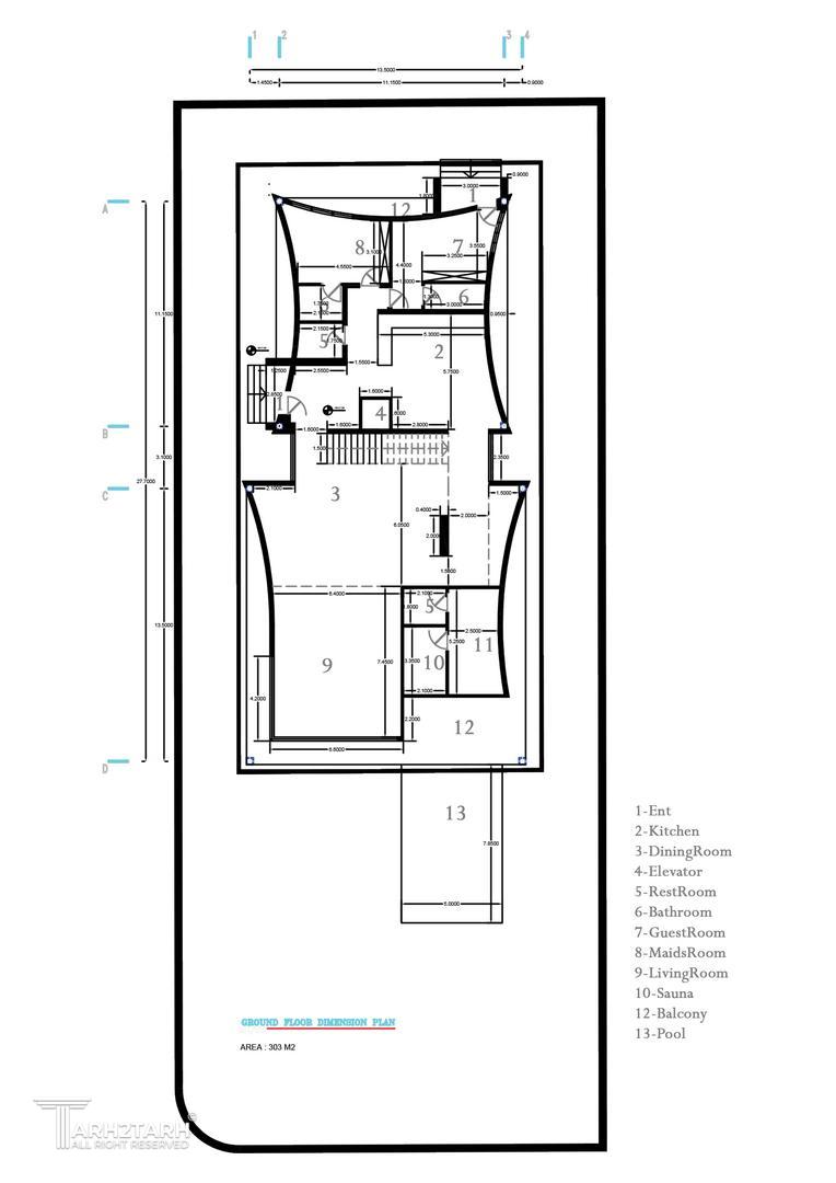
متراژ زیربنا : 1200
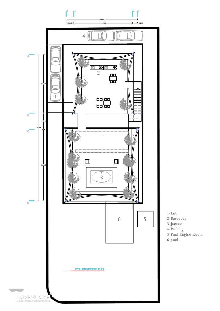
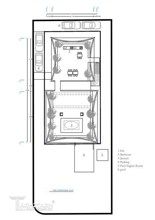
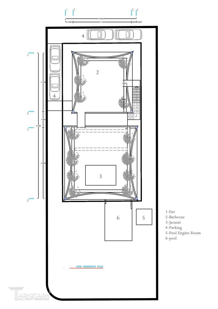
مساحت زمین : 648
کارفرما : جعفری

موقعیت مکانی پروژه

پیشنهاد و بازخورد