مسابقه طراحی ویلا ترنج

0

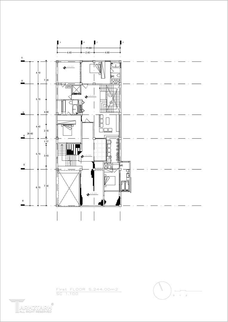
اطلاعات پروژه

mahyar sarmadi

نوع مسابقه: طراحی ویلا
سال انجام پروژه : 1400
نقش: طراح
موقعیت : عباس آباد
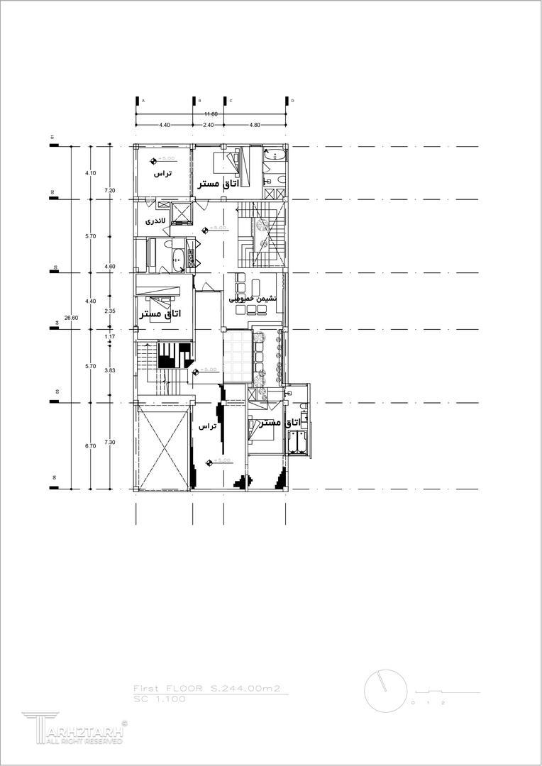
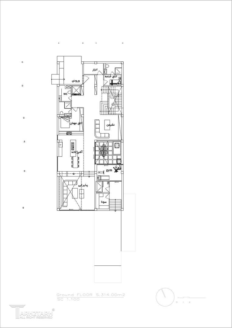
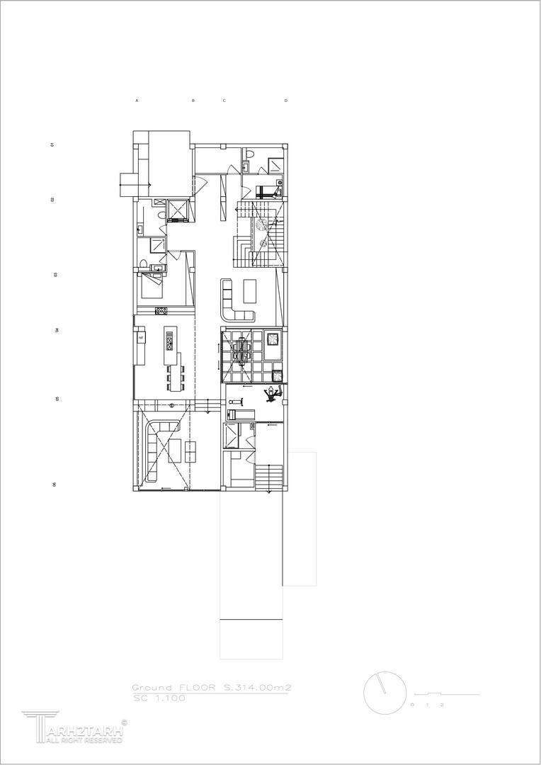
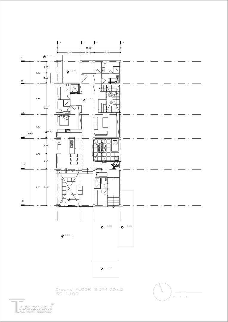
متراژ زیربنا : 1200
مساحت زمین : 648
کارفرما : جعفری

موقعیت مکانی پروژه

پیشنهاد و بازخورد