مسابقه طراحی ویلا ترنج

0

اطلاعات پروژه

سیر تکامل طراحی ---

نوع مسابقه: طراحی ویلا
سال انجام پروژه : 1400
نقش: طراح
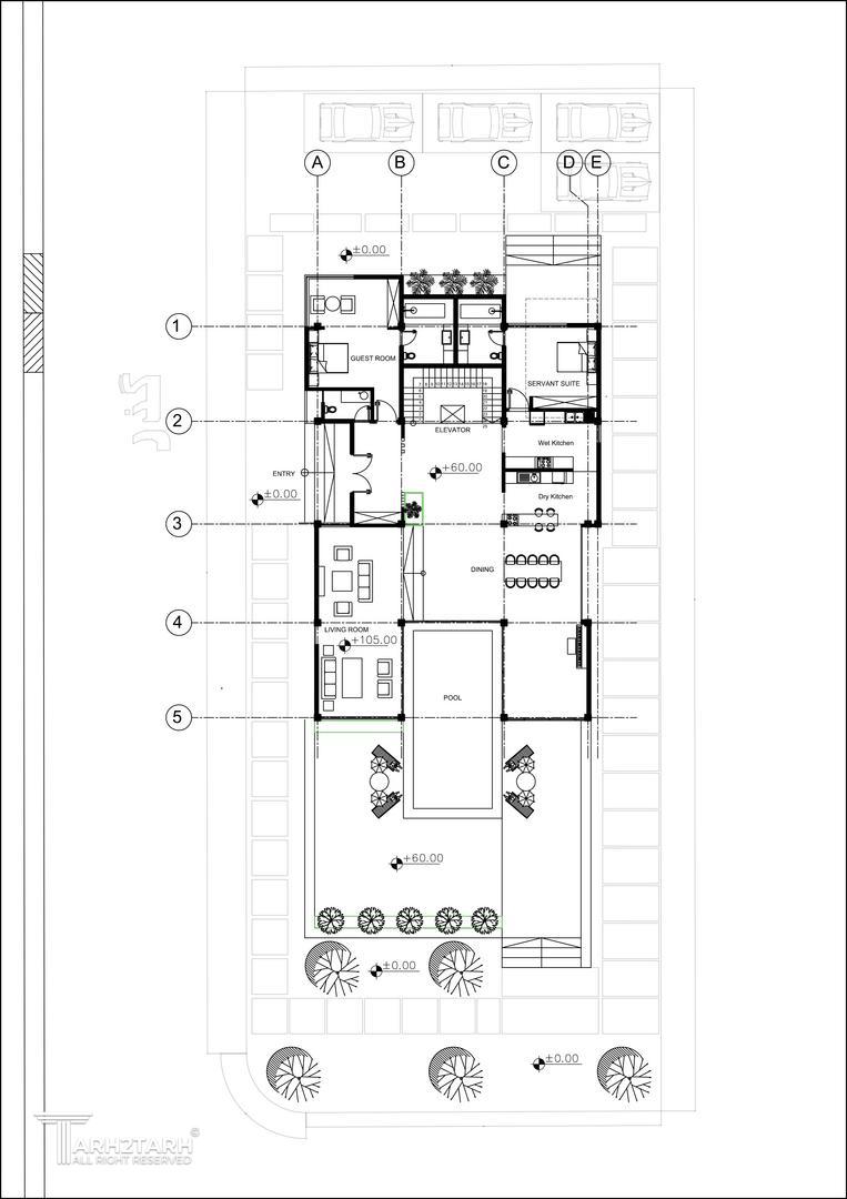
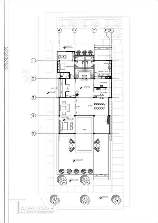
موقعیت : عباس آباد
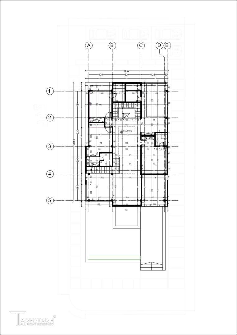
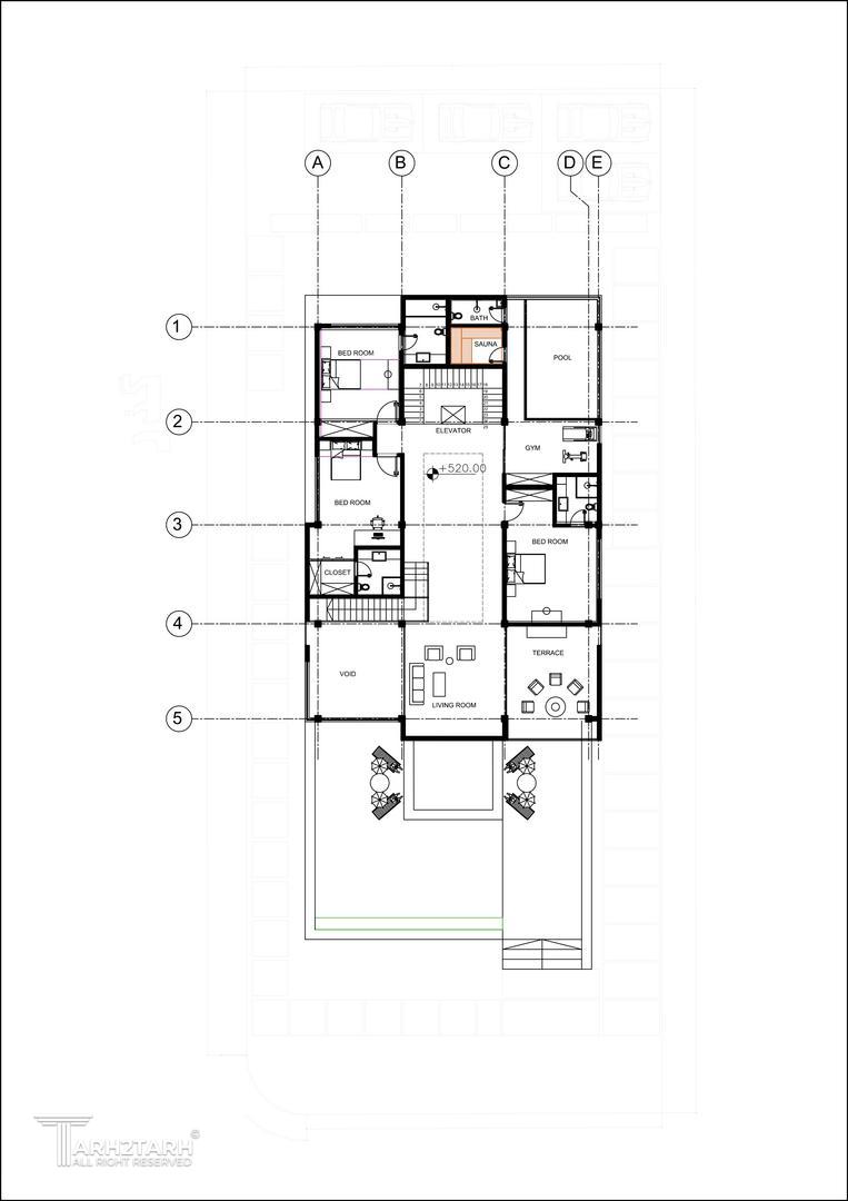
متراژ زیربنا : 1200
مساحت زمین : 648
کارفرما : جعفری

موقعیت مکانی پروژه

پیشنهاد و بازخورد