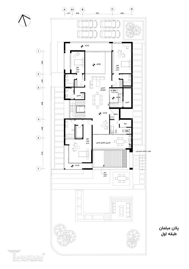
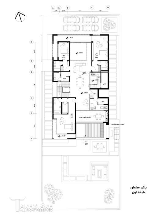
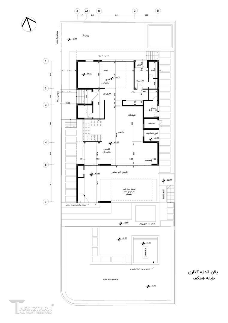
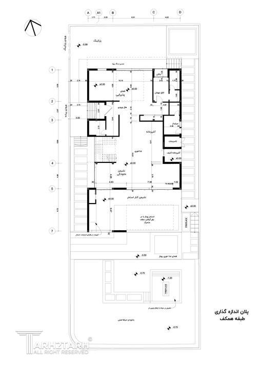
نفر دهم مسابقه طراحی ویلا ترنج

0

اطلاعات پروژه

استودیو طراحی SH

نوع مسابقه: طراحی ویلا
سال انجام پروژه : 1400
نقش: طراح
موقعیت : عباس آباد
متراژ زیربنا : 1200
مساحت زمین : 648
کارفرما : جعفری

موقعیت مکانی پروژه

پیشنهاد و بازخورد