نفر ششم مسابقه طراحی ویلا ترنج

0

اطلاعات پروژه

دفتر طراحی سکویا

نوع مسابقه: طراحی ویلا
سال انجام پروژه : 1400
نقش: طراح
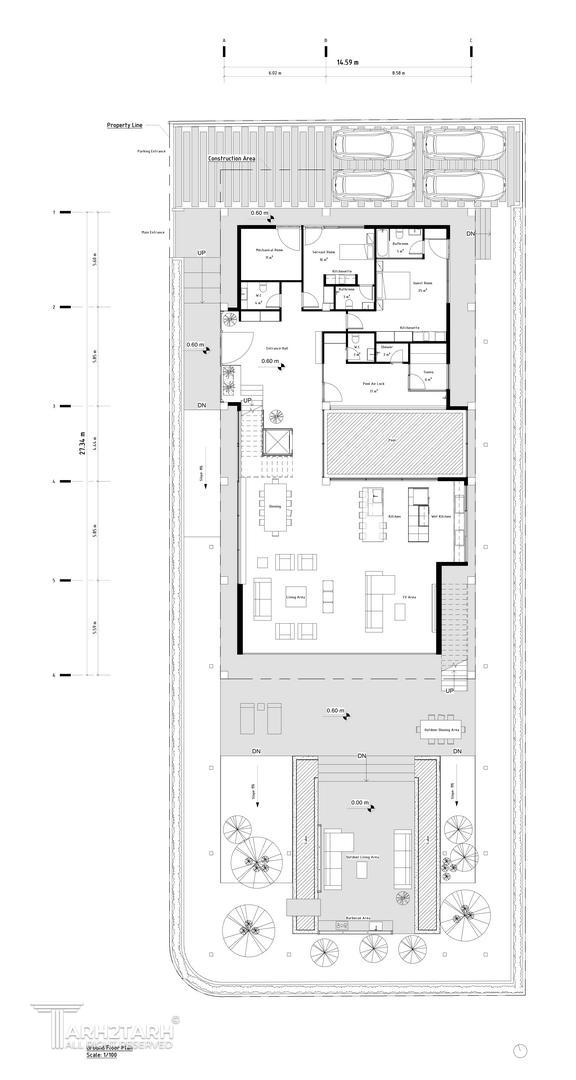
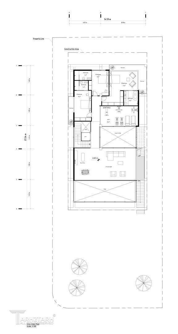
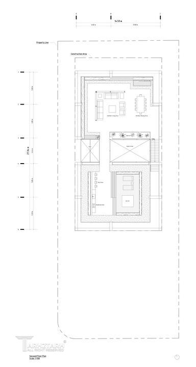
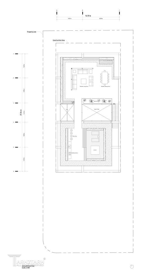
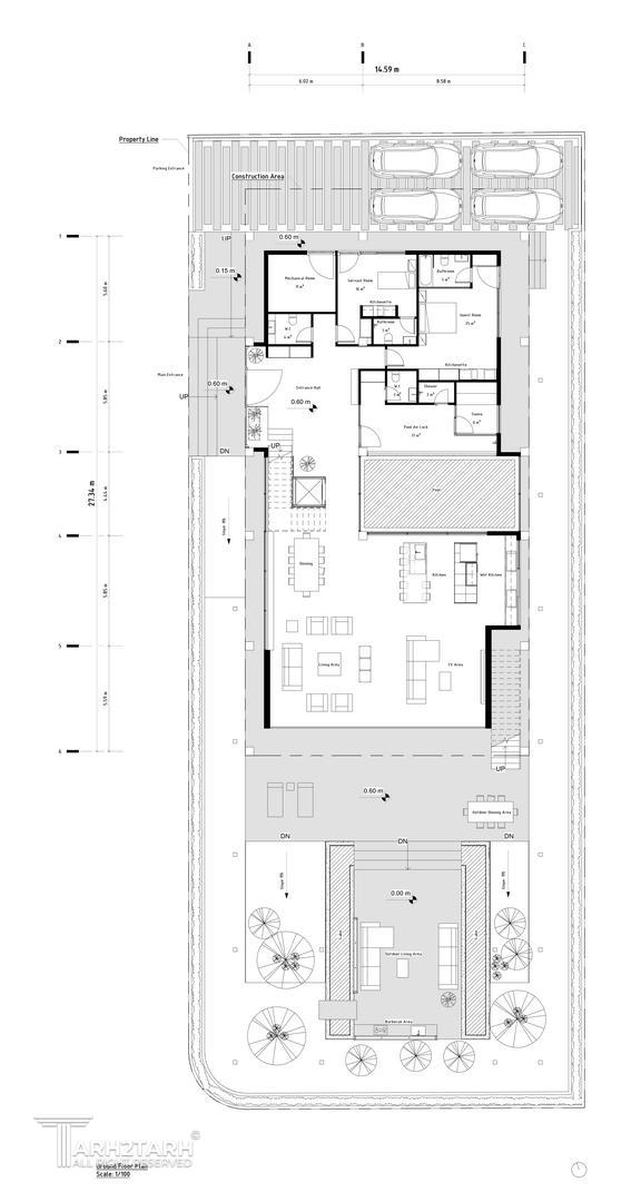
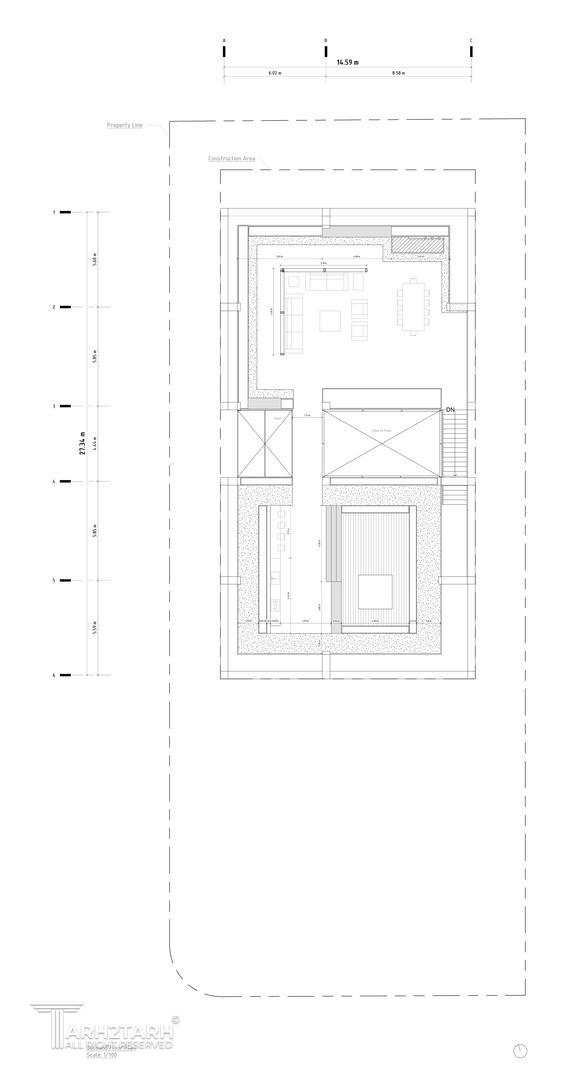
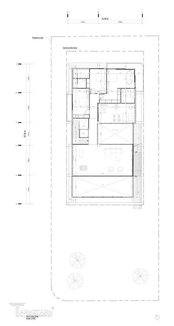
موقعیت : عباس آباد
متراژ زیربنا : 1200
مساحت زمین : 648
کارفرما : جعفری

موقعیت مکانی پروژه

پیشنهاد و بازخورد