مسابقه طراحی ویلا تراس (نمک آبرود)

0

اطلاعات پروژه

محمدرضا انبیاء

نوع مسابقه: طراحی ویلا
سال انجام پروژه : 1403
نقش: طراح
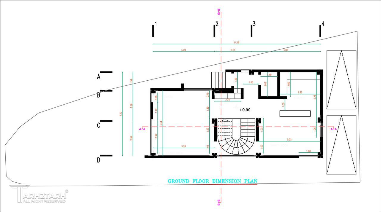
موقعیت : چالوس
متراژ زیربنا : 200
مساحت زمین : 281
کارفرما : محمدرضا توسلی نیا

خدمات ارائه شده توسط طراح

خدمات طراحی و کانسپت
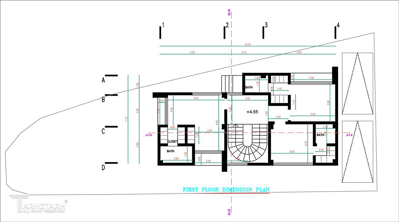
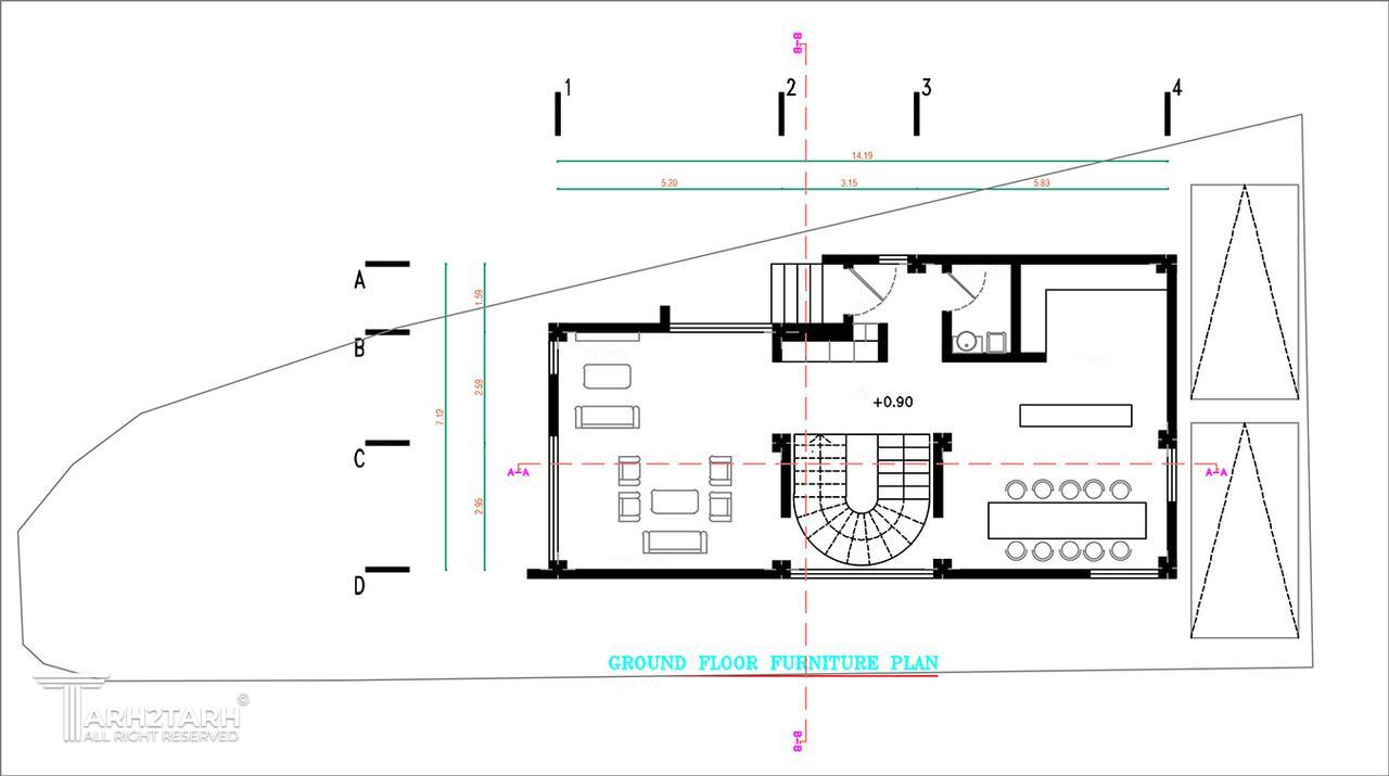
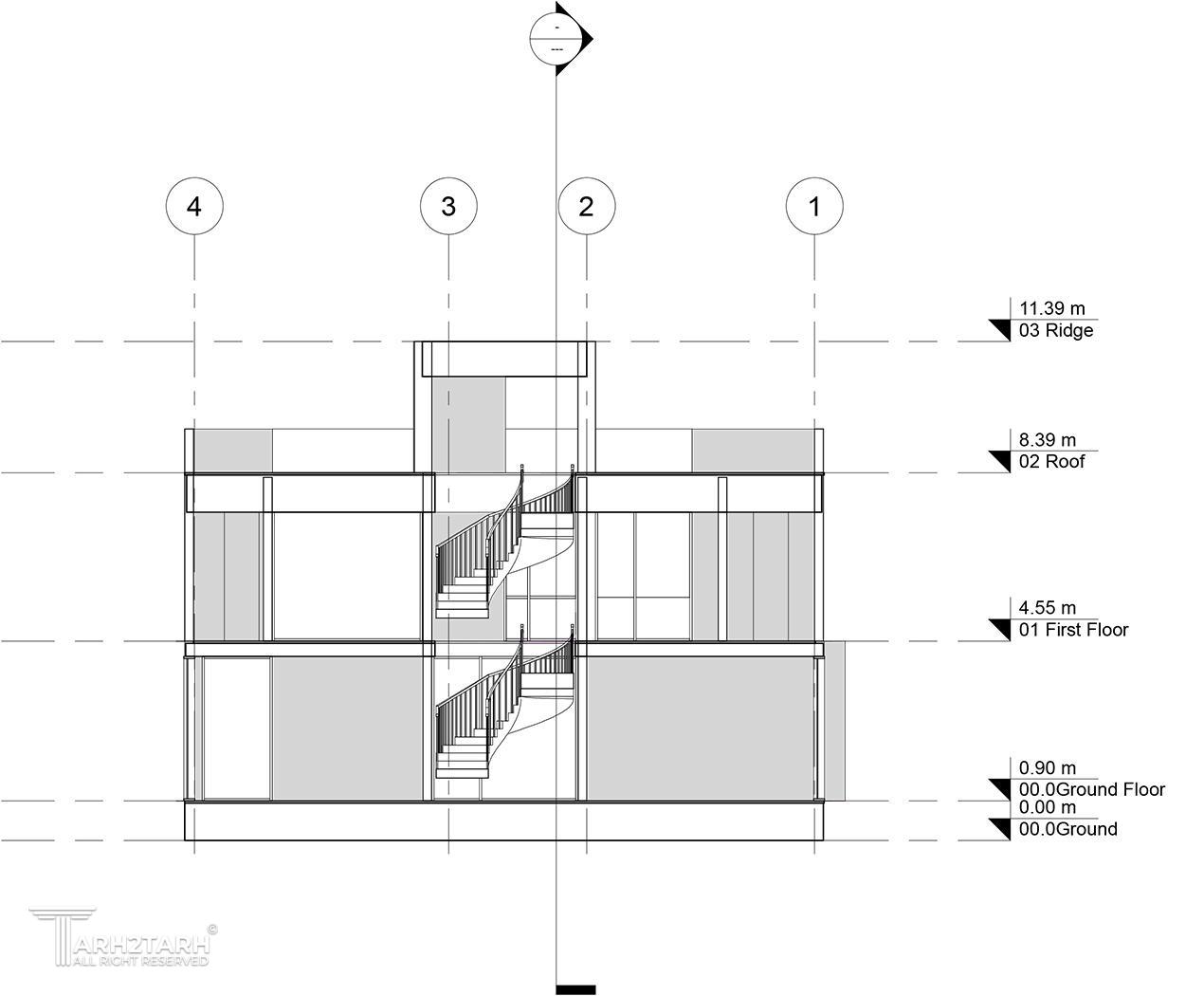
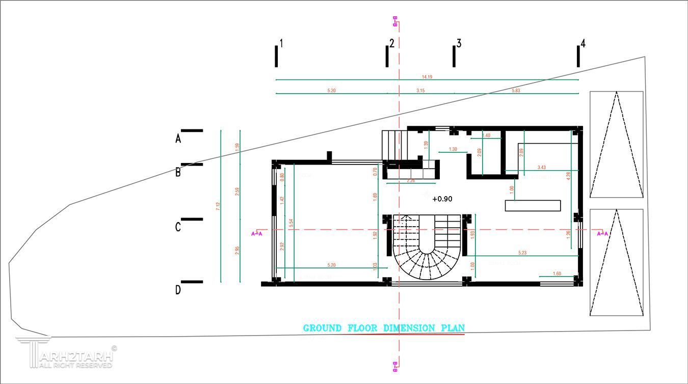
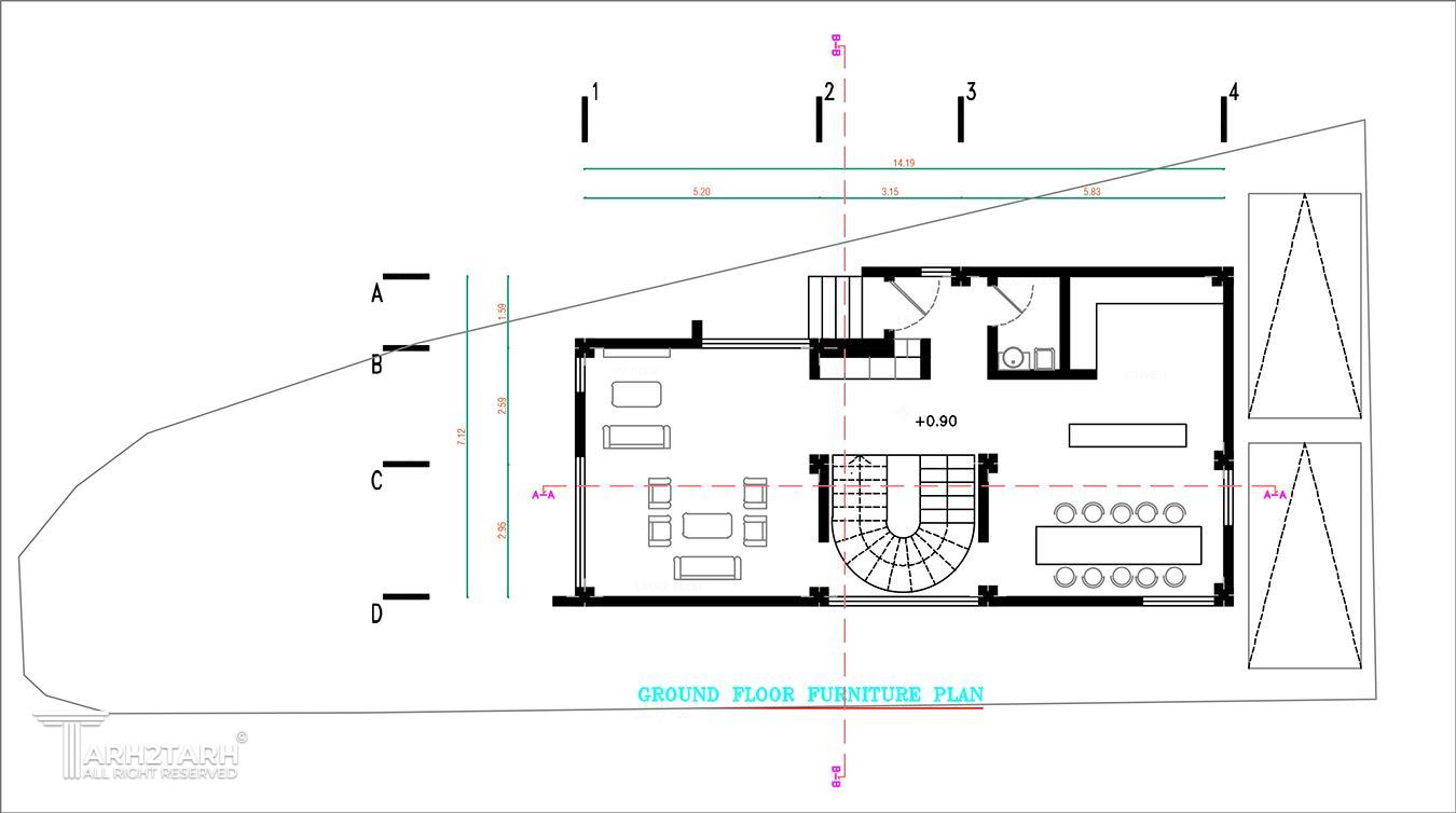
طراحی پلان (نقشه معماری) فاز 1
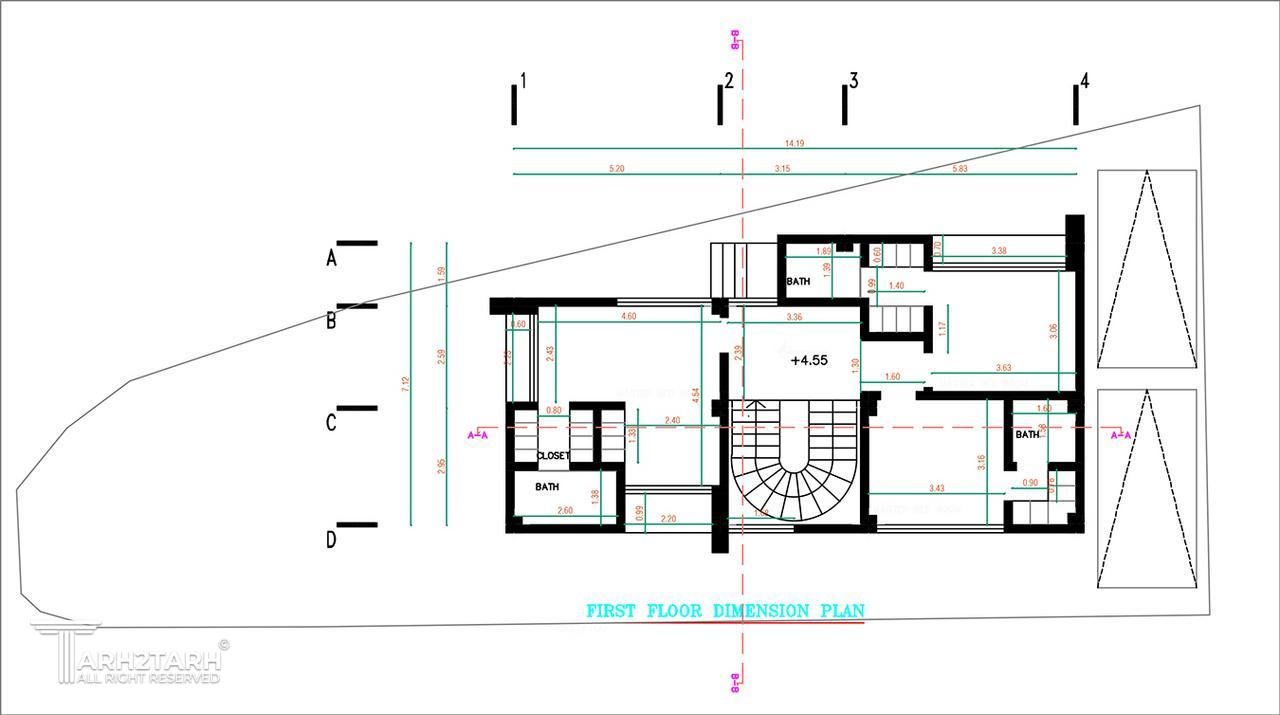
طراحی نقشه فاز دو معماری
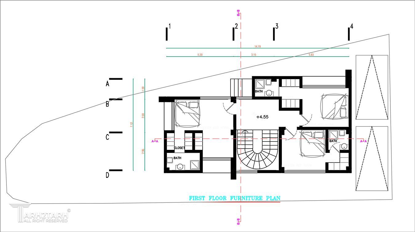
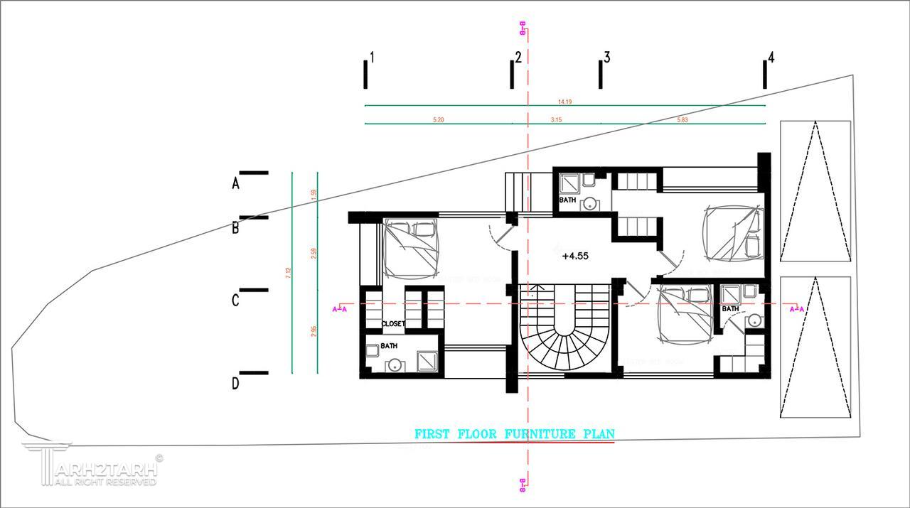
طراحی داخلی
طراحی نورپردازی

موقعیت مکانی پروژه

پیشنهاد و بازخورد