مسابقه طراحی ویلای یاس (گروه هتل های آریا)

0

اطلاعات پروژه

ویلا

نوع مسابقه: طراحی ویلا
سال انجام پروژه : 1403
نقش: طراح
موقعیت : قلعه گردن
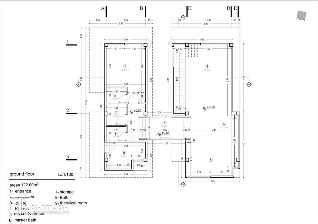
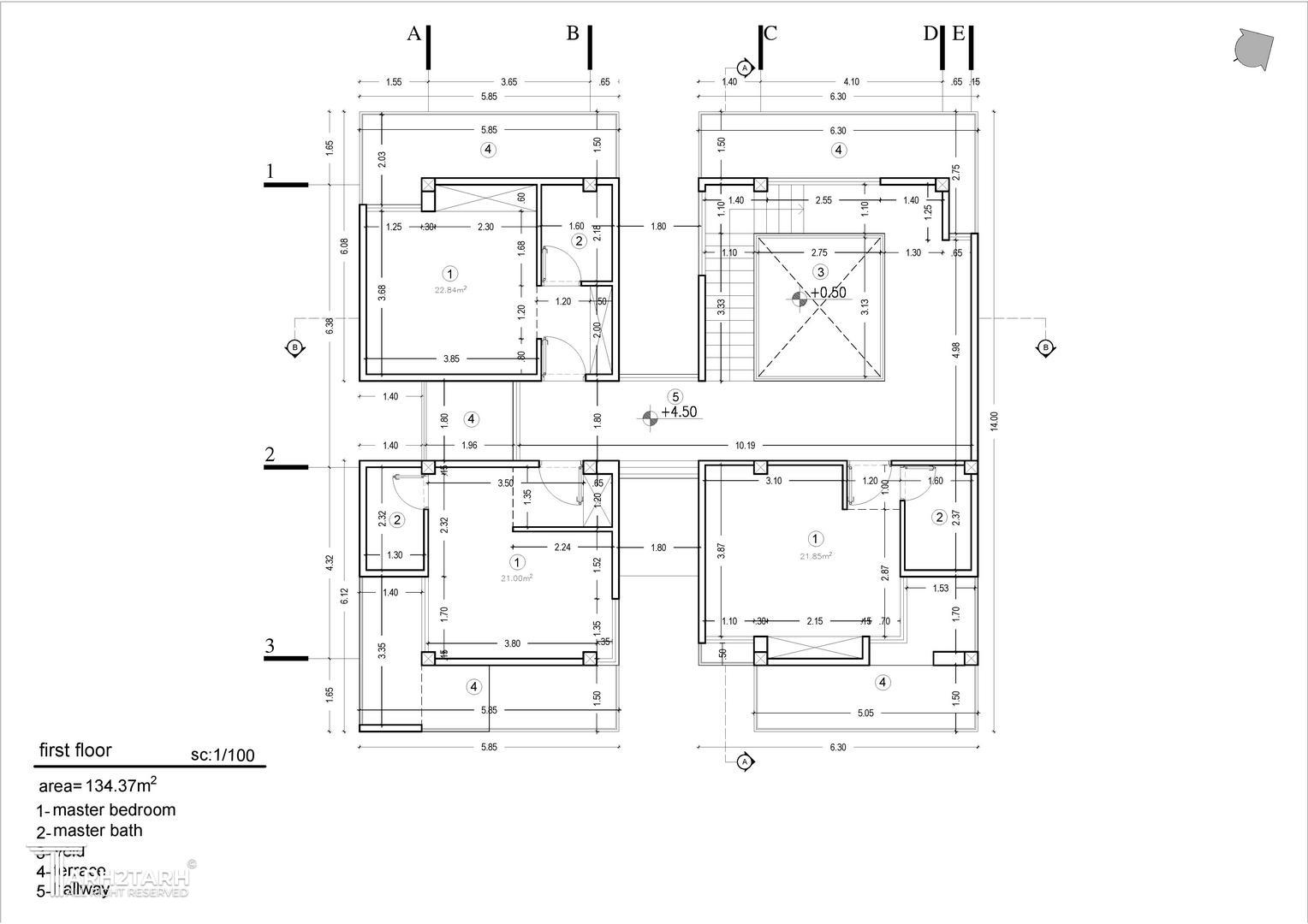
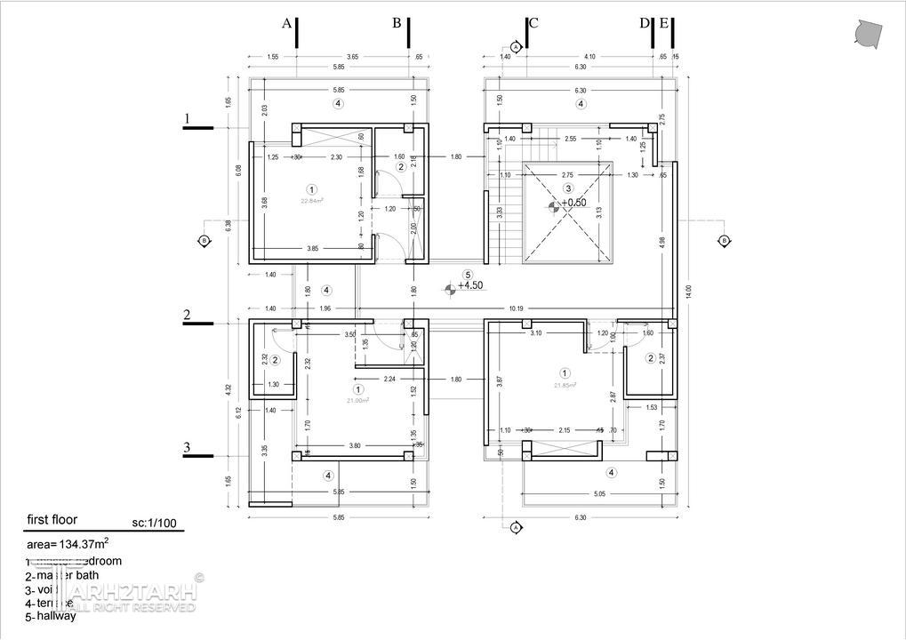
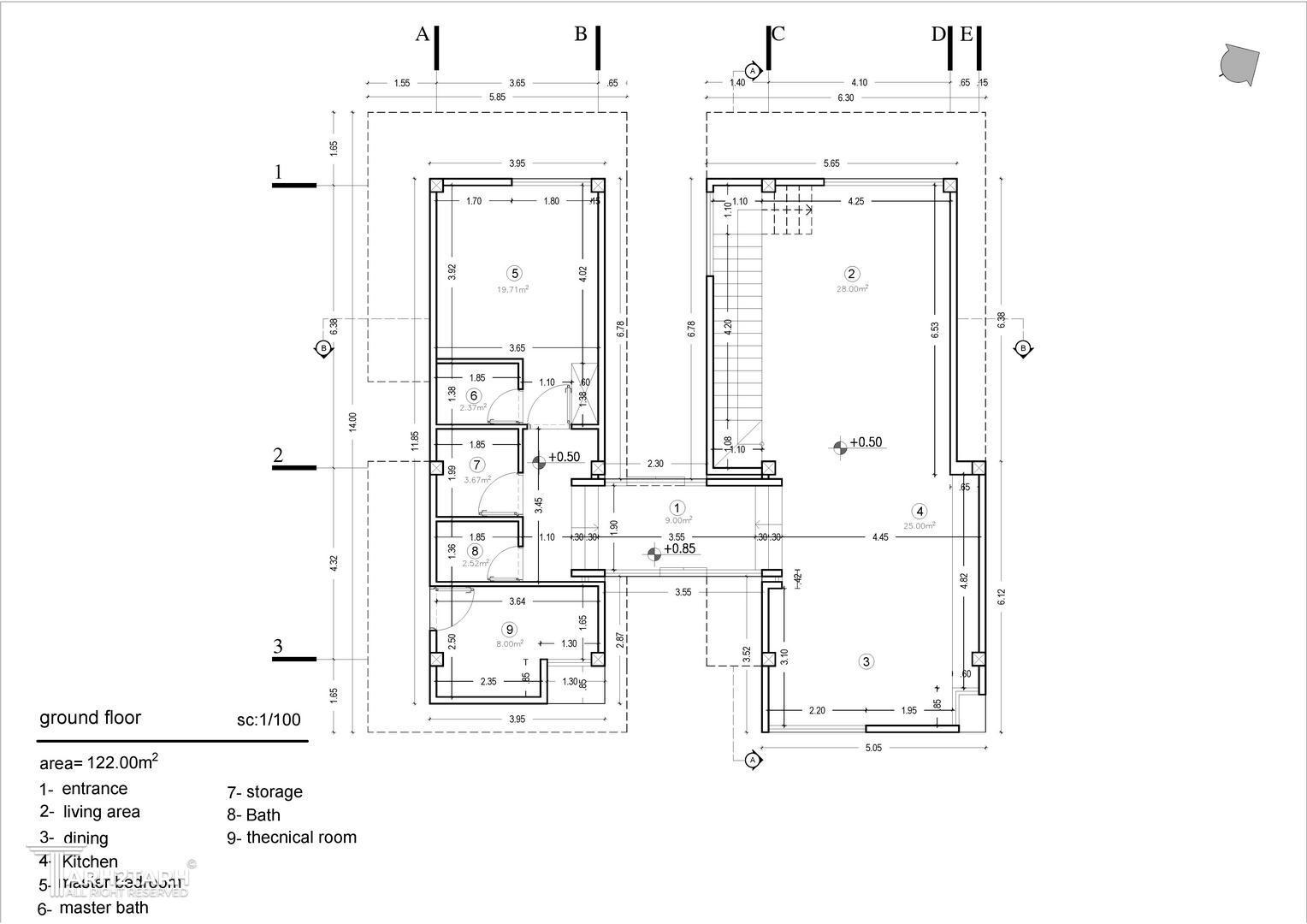
متراژ زیربنا : 582
مساحت زمین : 250
کارفرما : مجید آقایان

خدمات ارائه شده توسط طراح

خدمات طراحی و کانسپت
طراحی پلان (نقشه معماری) فاز 1
طراحی نما
طراحی منظر، فضای سبز، لند اسکیپ، روف گاردن و محوطه
طراحی کانسپت (معماری)

موقعیت مکانی پروژه

پیشنهاد و بازخورد