معماران: استودیوی SVOYA
سال:2019

قهوه خانه "CULTURIST" در طبقه اول یک ساختمان تاریخی در خیابان مرکزی شهر دنیپرو واقع شده است. این قهوه خانه تنها به عنوان محل فراغت نیست، بلکه به عنوان یک فضای فرهنگی است که همه عناصرش (از عناصر داخلی گرفته تا وسایل متعلق به قهوه) با این ایده مطابقت دارند . این قهوه خانه دارای یک جو و یک ایدئولوژی است. در جایی که جوِ محیط داخلیِ آن بر میهمانان غالب نیست اینجا را به یک فضای مناسب برای تفریح، ارتباطات و توسعه فرهنگی تبدیل کرده است.

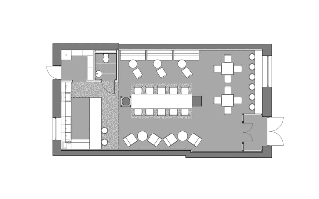
در زمینی به مساحت 70 متر مربع سالن قهوه خانه همراه با محوطه بار ساخته شده که در آن فضای تولید قهوه،یک اتاق فنی کوچک و نیز یک حمام وجود دارد و برای راحتی مهمانان راهرو(دالان سر پوشیده برای نشستن) نصب شده است.

قهوه خانه برای ۳۶ نفر در مکان های مختلف آن (از بخش خدمات تا کنار پنجره) با صندلیهای راحتی و یک میز بزرگ، محلی را برای نشیمن فراهم میآورد.


این قهوه خانه پیش از این، یک اتاق برای مرکز کودکان بود و تمام دیوارها با تخته های گچ و سقف آن توسط سیستم آرمسترانگ پوشانده شده بود. پس از تخریب ، یک تیر با تزئینات گچ بری در سقف نمایان شد و تصمیم به نگه داری و حفظ آن گرفته شد تا حفظ آن آجر و گچ ها روی فرم کلی ساختمان اثر بگذارد. آجر به صورت ارگانیک با گچ روی دیوارها ترکیب شد و تصمیم گرفته شد که ستون مرکزی در تالار به عنوان یک عنصر سبک، جلوه داده شود و در یک جعبه شیشهای قرار بگیرد. پوشش کف، ترکیبی از سنگ مرمر بتونی و خرد شده است و مرمر باعث جلوه دار شدن مناطق اصلی کارکردی قهوه خانه میشود.

مبلمان ، روشنایی و دکور تقریبا به طور کامل تولید شده توسط اوکراین هستند و این قهوه خانه دارای جزییات طراحی منحصر به فردی میباشد. کلیه لامپ های سقفی و دیواری به صورت جداگانه طراحی و ساخته شده اند ،همچنین آینه های عظیمی در ورودی قهوه خانه قرار دارد که طرحی از استودیوی SVOYA است.

این نام گذاری و هویت با توجه به ارزشها و دیدگاه مشتری توسط SAMOSOBOY, ایجاد شد.