در روز سه شنبه، مورخ 27 اردیبهشت ماه 1401، جلسه دفاعیه مسابقه پلازو برگزار شد. در این جلسه تیم کارفرمایان مسابقه، تیم داوران متشکل از آقای مهندس علی شیخالاسلام و آقای مهندس کوروش فتحی و فینالیستهای این مسابقه حضور داشتند.
لیست کامل فینالیستها، دلایل رد و انتخاب طرحها و تنظیم نحوه داوری و امتیازدهی به طرحهای این مسابقه در بلاگ طرح تو طرح و در برچسب "پروژه پلازو" موجود است و میتوانید برای کسب اطلاعات بیشتر به این لینک مراجعه کنید.

آنچه در این مقاله خواهید خواند:
پیشنهاد تغییرات برای بهبود طرحهای ارسال شده توسط فینالیستها
نفرات برتر مسابقه پلازو
در ابتدا نکتهای را به تمامی معماران طرح تو طرح یادآور میشویم. مهارت ارائه مطلب در جلسات دفاعیه طرح تو طرح بسیار مهم و تاثیرگذار است. در گذشته، مقالهای با همین نام در بلاگ طرح تو طرح قرار گرفته است. پیشنهاد اکید میکنیم که با خواندن آن و ارتقای مهارت خود در ارائه مطلب، حضور تاثیرگذارتری در جلسات دفاعیه داشته باشید. یکی از نظراتی که داوران و کارفرمایان در خصوص معماران، پس از اتمام زمان دفاع، بازگو میکردند میزان تسلط معمار بر طرح، ضوابط مربوط به آن پروژه و ارائه مناسب مدارک بود.
پیشنهاد تغییرات برای بهبود طرحهای ارسال شده توسط فینالیستها
حال به پیشنهادهای داوران پس از بررسی طرحها و دفاع طراح از پروژه میپردازیم. در نظر داشته باشید این مسابقه دو مرحلهای نبوده و طبق قوانین تنها نفرات برتر ملزم به اصلاح و یا اعمال تغییرات در بازه مشخص هستند. طرح تو طرح جهت شفافسازی و ایجاد ارتباط بین معماران، داوران و سازندگان وظیفه خود میداند اطلاعات ذکر شده در مراحل مختلف کاری را در اختیار علاقهمندان قرار دهد. امیدواریم نکات زیر سبب پختهتر شدن و ارتقای کیفیت کار مستعدان شود.
کد 17، آقای مهندس سعید بزازی
پیش فضای ورودی در لابی بسیار بزرگ است و یا فضای جلوی پاگرد پله و آسانسور کم است. بهتر است بین این دو فضا به تناسب فضایی مطلوبتری رسید.

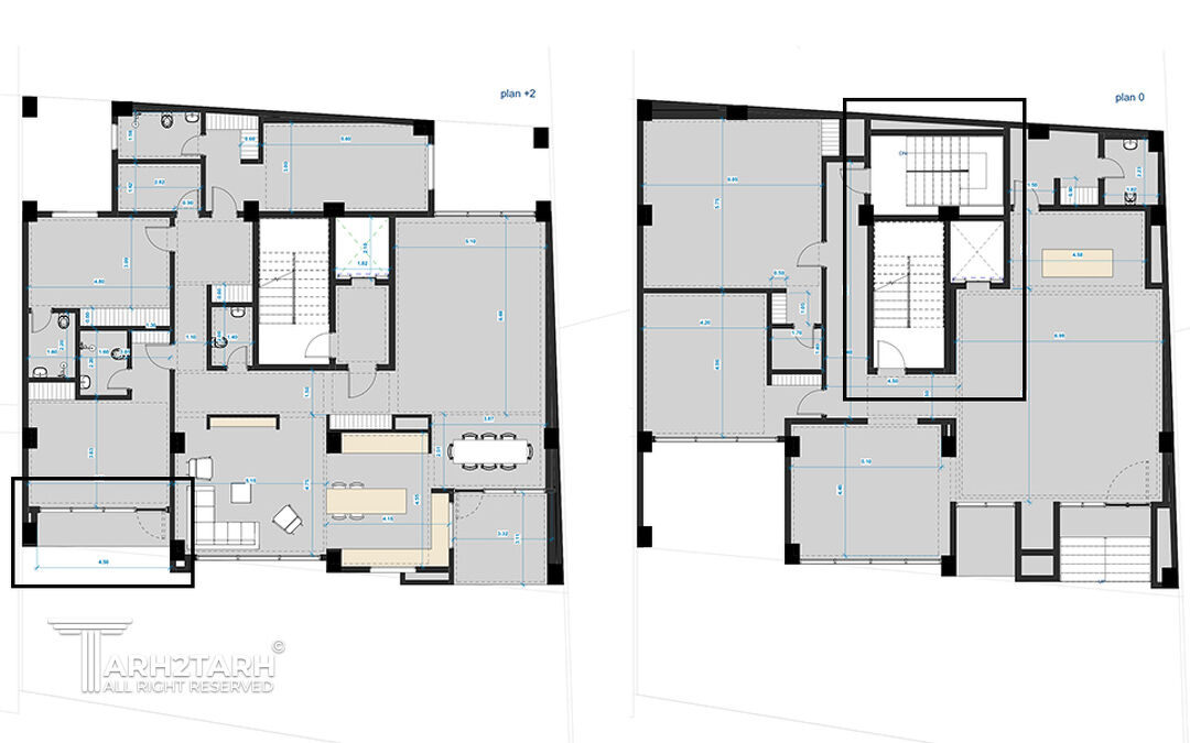
کد 7، گروه معماری هیترا
پیشفضای ورودی در پلان پنتهاوس با توجه به باقی کیفیت فضاییهای ایجاد شده، ضعیف است. در پلان طبقات، زونبندی به شکلی در واحدها اتفاق افتاده که خیلی فضاهای خواب و شخصی از فضاهای عمومی جدا شدهاند و این مسئله، امتداد فضا را در پلان کمرنگ کرده است. شیشههای داخل مکعبهای نما با توجه به کاربری پشتی آن، عقبرفتگی دارند که نکته بسیار مثبتی است. آسانسور در پلان لابی گم است و دسترسی را برای میهمانان سخت میکند. ورود به آسانسور باید پذیراتر طراحی شود.


کد 1، گروه معماری آرکسل
محرمیت در نظر گرفته شده، نکته مثبت طرح است اما سبب طراحی ورودی واحدهای ضعیف و گیجکننده (برای ساکنین و مهمانان) شده است. همچنین مکان قرارگیری آسانسور در لابی بسیار پیچ در پیچ و با راهروهای متعدد است. ورود و خروج به ساختمان باید پیچیدگی کمتری داشته باشد.


کد 5، FB architects
نما در این حالت یکنواخت شده است. برای تغییر آن بهتر است در خط آسمان و نزدیک به همکف، با حفظ کانسپت تنوعی در نما دیده شود. فضای لابی و پلکان خوانا و خوب طراحی شده اما ورودی واحدها جای اصلاحات دارد. پلان پنتهاوس خوب طراحی شده است چرا که فضای یکپارچه و عظیمی در اختیار ساکنین در زون عمومی میدهد.


کد 49، خانم مهندس بشرا اصفهانی
در اتاقها نور بیشتری باید از نورگیرها تامین شود. نحوه تقسیمبندی پنجرهها در نما دید از داخل را دچار مشکل کرده است. نحوه تقسیم باید اصلاح گردد.

کد 48، آقای مهندس مهدی کیانی
پلان خوب و لایهای طراحی شده است اما بهتر بود دستگاههای پله با هم ادغام شوند تا فضای کمتری بگیرند. در طبقه پنتهاوس مطلوبتر است که تراس به نشیمن، در داشته باشد تا اتاق خواب.

کد 33، آقای مهندس امین شیرزاد
ورودی واحد پنتهاوس در شان این طبقه نیست بلکه باید فضای بزرگتر و طراحی شده به ورودی این واحد اختصاص یابد. پلان و نما متوسط هستند، هر دو به خوبی طراحی شدهاند اما ویژگی چشمگیر ندارند. به خصوص در طراحی پلان پنتهاوس باید حساسیت بیشتری به خرج داد و رویکردی مناسب ساکنین و مخاطبین پنتهاوس در منطقه پیشنهاد داد.

کد 18، استودیو مکعب
ورودی ساختمان بسیار خوب طراحی شده است. نما در دو سطح بدون همبستگی طراحی شده است. ارتباط المانهای نما باید بیشتر مورد بررسی قرار بگیرد. پرزنت و ارائه کار بسیار مرتب بود.

کد 4، توسعه پایدار هزاره سوم
ورودی آسانسور در لابی گم شده است. باید محیط بیشتری به فضای ورود به آسانسور اختصاص داد. ورودی پارکینگ با درخت موجود درگیر است که در صورت جابهجایی ورودی لابی هم بهتر میشود. پلان طبقات خیلی خوب طراحی شدند به جز در قسمت ورودی واحدها. باید کیفیت این قسمت با افزایش مساحت آن و حفظ محرمیت داخل واحد ارتقا یابد.


نفرات برتر مسابقه پلازو
در نهایت با تصمیم تیم داوری و کارفرمایان این مسابقه، گروه معماری هیترا در مقام اول، FB architects در مقام دوم و توسعه پایدار هزاره سوم در مقام سوم برندگان این مسابقه معماری معرفی شدند.
به این عزیزان تبریک میگوییم و برای همگی معماران آرزوی موفقیت داریم.
برای ارتباط با کارشناسان طرح تو طرح و دریافت مشاوره، روی دکمه زیر کلیک کنید.
درخواست مشاوره