طراحی داخلی ، پلان ، روف گاردن و محوطه کوهسار بوکان

مسابقه محدود
5,000,000,000 ریال جایزه نقدی

تعداد پذیرفته‌شدگان: 5 نفر

اطلاعات پایه

نوع مسابقه
طراحی مسکونی
مبلغ جایزه
5,000,000,000 ریال
وضعیت مسابقه
در حال اجرا
شروع مسابقه
01 اردیبهشت 1405
پایان مسابقه
15 خرداد 1405

اطلاعات پروژه

موقعیت نیاوران-بوکان-کوهسار
نام شهر تهران
مساحت زمین 791 متر مربع
متراژ زیربنا 6400 متر مربع

نمودار زمانی مسابقه

زمان باقی‌مانده:
--
ثانیه
--
دقیقه
--
ساعت
--
روز
  1. شروع

    01_اردیبهشت

  2. پایان ثبت‌نام

    11_بهمن

  3. پایان مسابقه

    15_خرداد

عوامل مسابقه

بهساز کاشانه تهران
کارفرما

بهساز کاشانه تهران

  • فعالیت شرکت ، سرمایه گذاری و مشارکت در ساخت واحد های مسکونی ، اداری ، تجاری و ایجاد شهرک های صنعتی می باشد.

توضیحات تکمیلی

سوالات متداول طراحان

انتخاب معمار برای این مسابقه محدود

  • طراحان باید در ابتدا رزومه (پورتفولیو) های مشابه با مسابقه پیش رو را ارائه کنند.
    این  رزومه (پورتفولیو) ها در پنل کاربری خود، رزومه من، پرتفولیوی کلی، آپلود شود این پرتفولیوی کلی اختصاص داده شود به طراحی داخلی
  • در نهایت پس از بررسی رزومه های طراحان، 5 نفر به عنوان شرکت کننده در مسابقه برگزیده خواهند شد.


موارد ارسالی توسط طراحان 

لطفا به فرمت هایی که جهت ارائه اعلام شده دقت کنید.
در تمام رندرها نام فضاها درج شود و پلان جانمایی محل دوربین رندرها در صفحات رندرها گذاشته شود.

طراحان محترم ابتدا باید گزارشی (طرح توجیهی) از طراحی و کیفیت و مصالح مورد استفاده در پروژه های مشابه منطقه (حداقل سه پروژه) و تحلیل و مزیت‌ها و تفاوت‌های کار خود نسبت به منطقه ارائه دهند.

  • رندر از طراحی داخلی فضای لابی و انتظار (همکف) با فرمت JPG
  • رندر از طراحی داخلی فضای سالن اجتماعات (همکف) با فرمت JPG
  •  رندر از طراحی داخلی سالن ورزشی  (زیرزمین 4) با فرمت JPG
  • رندر از طراحی داخلی سالن چند منظوره (زیرزمین 4) با فرمت JPG
  • رندر از طراحی داخلی لابی آسانسور طبقات مسکونی با فرمت JPG
  • رندر از طراحی داخلی ورودی واحد با فرمت JPG
  • رندر از طراحی داخلی سرویس مهمان با فرمت JPG
  • رندر از طراحی داخلی سالن پذیرایی و ناهارخوری واحد مسکونی با فرمت JPG
  • رندر از طراحی داخلی سالن TV Room واحد مسکونی با فرمت JPG
  • رندر از طراحی داخلی آشپزخانه واحد مسکونی با فرمت JPG
  • رندر از طراحی داخلی 3 اتاق خواب و کلوزت با فرمت JPG
  • رندر از طراحی داخلی حمام 3 اتاق خواب با فرمت JPG
  • رندر از طراحی راه پله با فرمت JPG
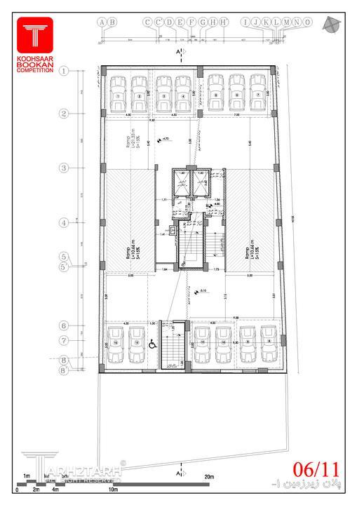
  • رندر از طراحی پارکینگ و انبار با فرمت JPG
  • رندر از طراحی دسترسی ها و راهروهای عمومی(مشاعات) با فرمت JPG
  • رندر از طراحی محوطه سازی و فضای سبز (حیاط جنوبی) با فرمت JPG
  • رندر شب(نورپردازی) از طراحی محوطه سازی و فضای سبز (حیاط جنوبی) با فرمت JPG
  • رندر از طراحی روف گاردن با فرمت JPG
  • رندر شب(نورپردازی) از طراحی روف گاردن با فرمت JPG
  • پلان مبلمان و اندازه گذاری طبقات مسکونی با فرمت JPG
  • پلان سقف کاذب و روشنایی طبقات مسکونی با فرمت JPG
  • پلان سقف کاذب و روشنایی همکف با فرمت JPG
  • پلان مبلمان و اندازه گذاری سالن ورزشی و سالن چند منظوره (زیرزمین 4) با فرمت JPG
  • پلان سقف کاذب و روشنایی سالن ورزشی و سالن چند منظوره (زیرزمین 4) با فرمت JPG
  • پلان مبلمان و اندازه گذاری روف گاردن با فرمت JPG
  • پلان روشنایی روف گاردن با فرمت JPG
  • پلان مبلمان و اندازه گذاری محوطه سازی و فضای سبز (حیاط جنوبی) با فرمت JPG
  • پلان روشنایی محوطه سازی و فضای سبز (حیاط جنوبی) با فرمت JPG
  • جدول مشخصات متریال به تفکیک فضاها و تعیین تامین کنندگان مصالح خاص (شماره تماس و کاتالوگ محصول،‌مشخصات فنی و ...) با  فرمت JPG
  • فایل اتوکد شامل مبلمان و اندازه گذاری فضاها با فرمت dwg (فایل اتوکد الزاما با ورژن ۲۰۱۰یا پایین تر ذخیره و ارسال شود)
  • فقط و فقط یک عدد فایل شامل تمامی رندرهای داخلی با توضیحات ، محوطه ، روف گاردن ، پلان ها ، جدول مشخصات متریال (تمامی مدارک) جهت ارائه طرح با فرمت PDF  توجه داشته باشید که از این فایل PDF و فایل اتوکد برای بررسی طرح ها (توسط کارفرما، منتور و مشاور معماری) و ارائه طرح در روز دفاعیه استفاده خواهد شد و هیچ فایلی از طراح در روز دفاعیه پذیرفته نخواهد شد. پس لطفا تمامی مدارک در این فایل کامل باشد.


توجه داشته باشید

  • مسابقه دارای جلسه کرکسیون می باشد.
  • سه طراح برتر مسابقه می‌پذیرند که بعد از اعلام نفرات برتر توسط کارفرما، ملزم به اصلاح طرح‌هایشان تا ۲۰% می‌باشند و طرح تو طرح حق دارد مبلغ برندگان را پس از ارسال طرح نهایی و اخذ تایید از کارفرما، به آن‌ها پرداخت نمایند.
  • ساعت اتمام ثبت نام و ارسال طرح ها برای تمامی مسابقات تا ساعت ۱۴ تاریخ اعلام شده می‌باشد.
  • طراحانی که در مسابقه شرکت می کنند ملزم به طراحی تمام فضاهای ذکر شده می باشند.
  • در مسابقات محدود، طراحان  حتما باید از محل پروژه بازدید داشته باشند.
  • در مسابقات محدود امکان ارسال چند آلترناتیو توسط یک تیم امکان پذیر است.
  • در تمام رندرها نام فضاها درج شود ، و پلان جانمایی محل دوربین رندرها در صفحات رندرها گذاشته شود.

    فایل اتوکد نقشه های معماری پروژه در فایل‌های راهنما قابل دانلود است.
    • فایل اتوکد نقشه های تاسیسات مکانیک  پروژه در فایل‌های راهنما قابل دانلود است.
    • فایل اتوکد نقشه های سازه پروژه در فایل‌های راهنما قابل دانلود است.
    • فایل اتوکد نقشه های تاسیسات الکتریک پروژه در فایل‌های راهنما قابل دانلود است.

موارد طراحی 

  • طراحی داخلی لابی و انتظار شامل کانتر لابی من و سایر
  • طراحی داخلی سالن ورزشی و سالن چند منظوره 
  • طراحی داخلی لابی آسانسور طبقات
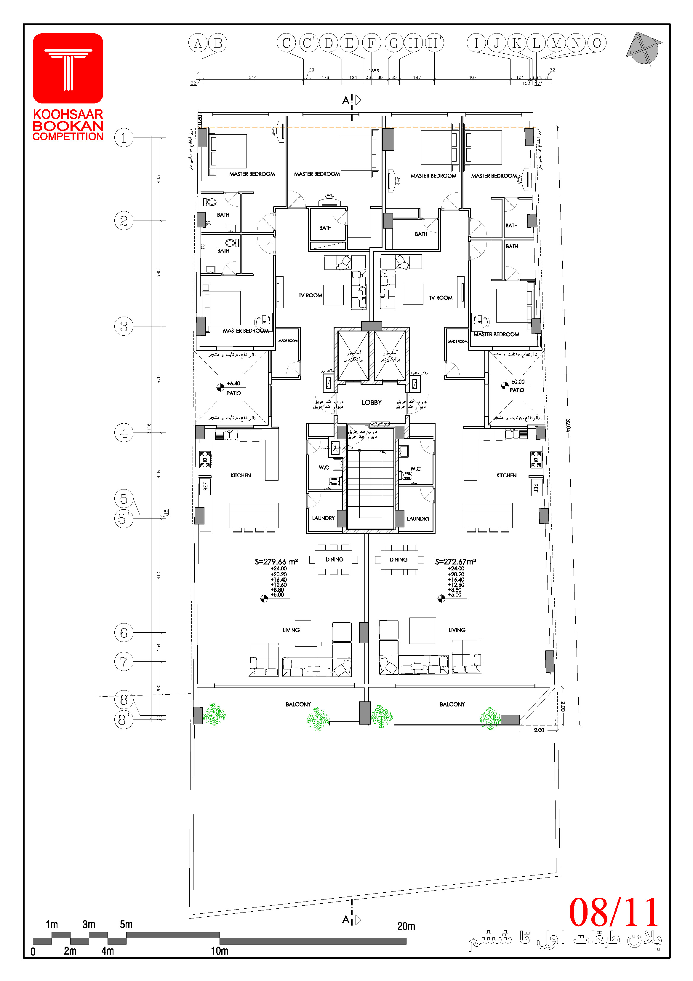
  • طراحی داخلی تمام فضاهای واحد مسکونی
  • طراحی بالکن واحد مسکونی
  • طراحی راه پله
  • طراحی محوطه پارکینگ و انبار 
  • طراحی دسترسی ها و راهروهای عمومی(مشاعات)
  • طراحی محوطه سازی و فضای سبز (حیاط جنوبی)
  • طراحی روف گاردن
  • طراحی پلان (در صورت بهبود کیفیت فضاها ، طراح مجاز به تغییرات جزئی در پلان است)


جایزه مسابقه 

  • مبلغ کل مسابقه : 5.000.000.000 ریال (به حروف پنج میلیارد ریال) می‌باشد. 
  • نفر اول : مبلغ 2.400.000.000 ریال (به حروف دو میلیارد و چهارصد ریال) : مبلغ 400.000.000 ریال ( به حروف چهارصد میلیون ریال ) به عنوان لایف کاست که بعد از اتمام مسابقه و ارائه و تایید مدارک نهایی پرداخت خواهد شد +  2.000.000.000 ( به حروف دو میلیارد ریال )  جایزه طراحی که پس از تایید اصلاحات نهایی توسط کارفرما پرداخت خواهد شد. 
  • نفر دوم : مبلغ 1.400.000.000 ریال ( به حروف یک میلیارد و چهارصد میلیون ریال)  : مبلغ 400.000.000 ریال ( به حروف چهارصد میلیون ریال ) به عنوان لایف کاست که بعد از اتمام مسابقه و ارائه و تایید مدارک نهایی پرداخت خواهد شد + مبلغ  1.000.000.000 ریال ( به حروف یک میلیارد ریال ) جایزه طراحی که پس از تایید اصلاحات نهایی توسط کارفرما پرداخت خواهد شد.
  • نفر سوم تا پنجم : مبلغ 1.200.000.000 ریال ( به حروف یک میلیارد و دویست میلیون ریال ) : هرکدام مبلغ 400.000.000 ریال ( به حروف چهارصد میلیون ریال ) به عنوان لایف کاست که بعد از اتمام مسابقه و ارائه و تایید مدارک نهایی پرداخت خواهد شد.

    • پرداخت جوایز پس از پایان مسابقه بر اساس قوانین سایت طرح تو طرح پرداخت خواهد شد.


توضیحات کلی و موارد مهم  پروژه

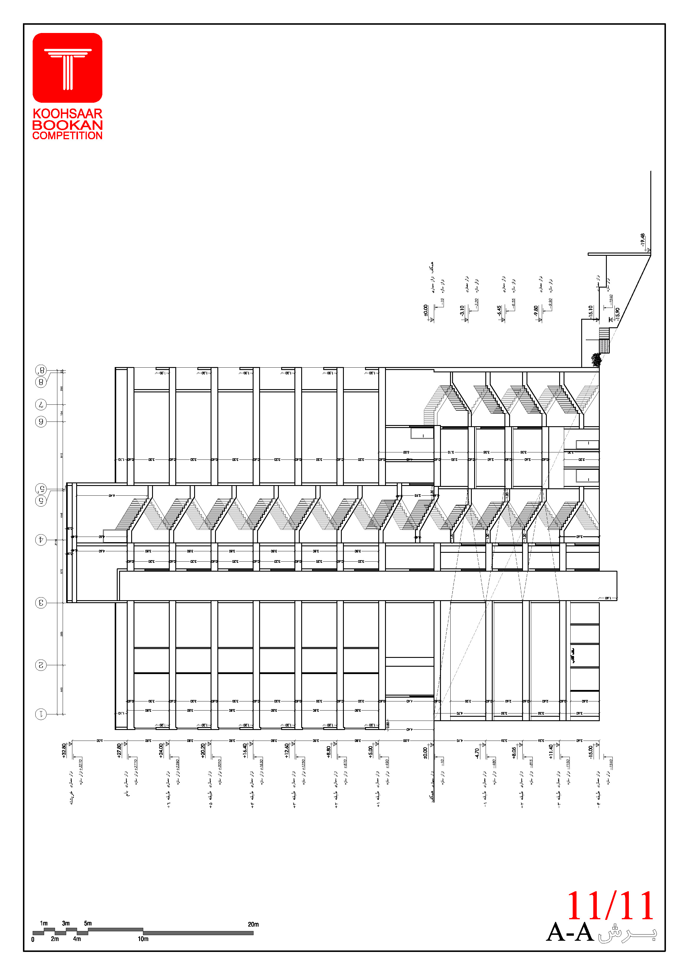
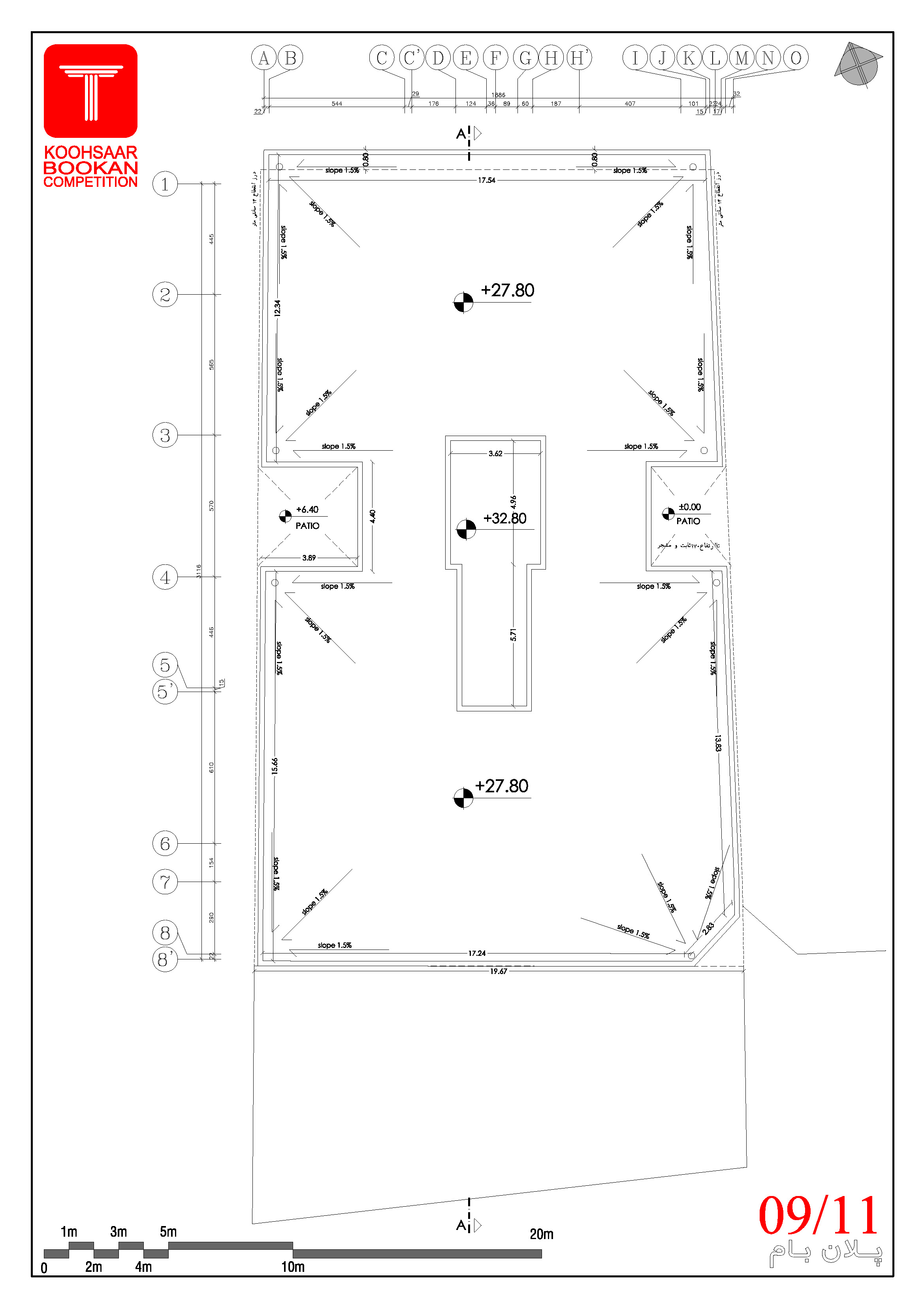
  •  ساختمان در زمینی به مساحت 791 متر مربع و با  زیربنای کل 6400 متر مربعدر خیابان بوکان واقع شده است،
  • سازه ساختمان در حال اجرا است. محل عناصر سازه‌ای شامل ستون ها و تیرها،‌ راه پله ها، آسانسورها  و پاسیوها ثابت و غیرقابل تغییر هستند.
  • با توجه به جانمایی داکت ها و عناصر سازه‌ای ،‌بهتر است برای طراحی از نقشه های تاسیسات مکانیک استفاده شود. به ویژه در طراحی سقف ها ، به محل عبور کانال‌ها و لوله‌های تاسیساتی و سایر عناصر تاسیساتی توجه گردد.
  • اولویت با حفظ پلان موجود است ولی در صورت پیشنهادات بهینه معماری ،‌ امکان ایجاد تغییرات جزئی در پلان وجود دارد.
  • طراحی کلیه فضاها باید از یک خط فکر و سبک معماری پیروی کرده و در طراحی فضاها ،‌ طرح نمای شمالی و جنوبی مد نظر قرار گیرد.
  • طراحی هر فضا شامل تمامی اجزاء شامل کف ، دیوار ،‌سقف ، روشنایی و تجهیزات مربوطه می باشد.
  • تاسیسات ساختمان طراحی شده است. ولی تعیین محل مبلمان سرویس های بهداشتی و آشپزخانه ها با توجه به طرح،‌ به اختیار طراح است.
  • سقف کاذب طبقات مسکونی کناف در نظر گرفته شود.
  • در پارکینگ ها امکان ارائه طرح سقف به صورت اکسپوز و یا استفاده از مصالح غیر از کناف وجود دارد.
  • از رنگ‌های روشن در فضاها استفاده شود.
  • از طرح‌های تکراری پرهیز شود.
  • نوع و مشخصات مصالح مصرفی ،‌تامین کنندگان مصالح خاص (شماره تماس و کاتالوگ محصول ، مشخصات فنی و ...) و روش اجرا باید در طراحی مشخص باشد.
  • توجه به مدیریت بهره برداری در مشخصات فنی در بلند مدت توسط بهره بردار
  • توجه به تداخلات احتمالی تاسیسات در سقف(توجه به عبور لوله‌های آبرسانی ، فاضلاب و برق از سقف)
  • بررسی محل مناسب تابلوهای برق و تاسیسات و کلید و پریزها داخل واحد
  • ارائه طرح نورپردازی در سقف، دیوارها و کف(در صورت وجود) با نوع روشنایی های مورد استفاده
  •  توجه به نوع کاربری جهت بهره‌برداری از مشخصات فنی اجرایی

سبک طراحی

  • مدرن

نوع سازه

  • اسکلت بتنی
  •  سقف بابل دک

سیستم سرمایش و گرمایش

  • فن کوئل و چیلر

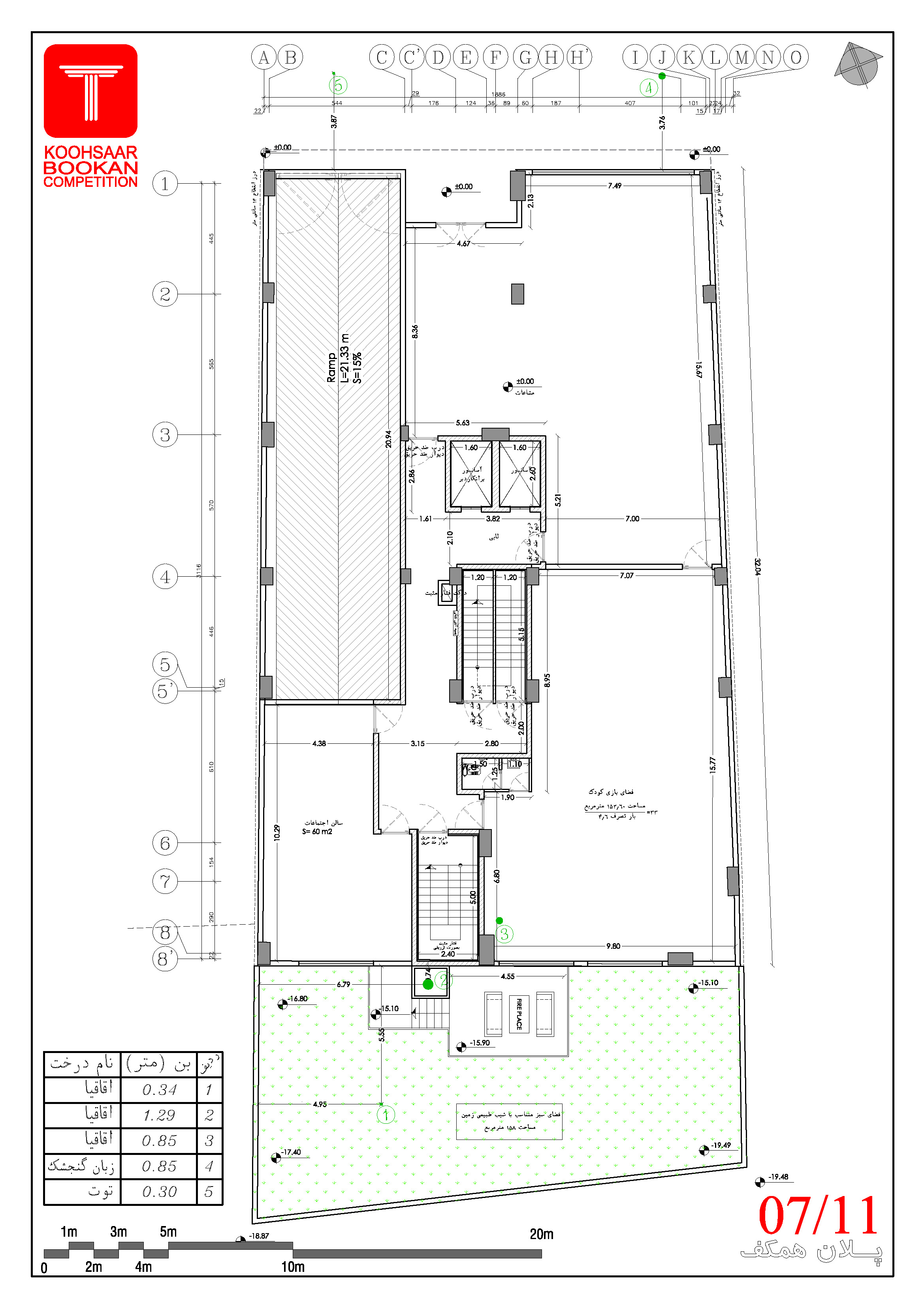
طراحی  زیرزمین 4 -


اولویت با حفظ پلان موجود است ولی در صورت پیشنهادات بهینه معماری ،‌ امکان ایجاد تغییرات جزئی در پلان وجود دارد

  •  با توجه به جانمایی داکت ها و عناصر سازه ای ،‌بهتر است برای طراحی از نقشه های تاسیسات مکانیک استفاده شود. به ویژه در طراحی سقف ها ، به محل عبور کانال‌ها و لوله‌های تاسیساتی و سایر عناصر تاسیساتی توجه گردد.
  • طراحی داخلی سالن ورزشی
  • طراحی داخلی سالن چند منظوره
  • طراحی داخلی محوطه انبارها

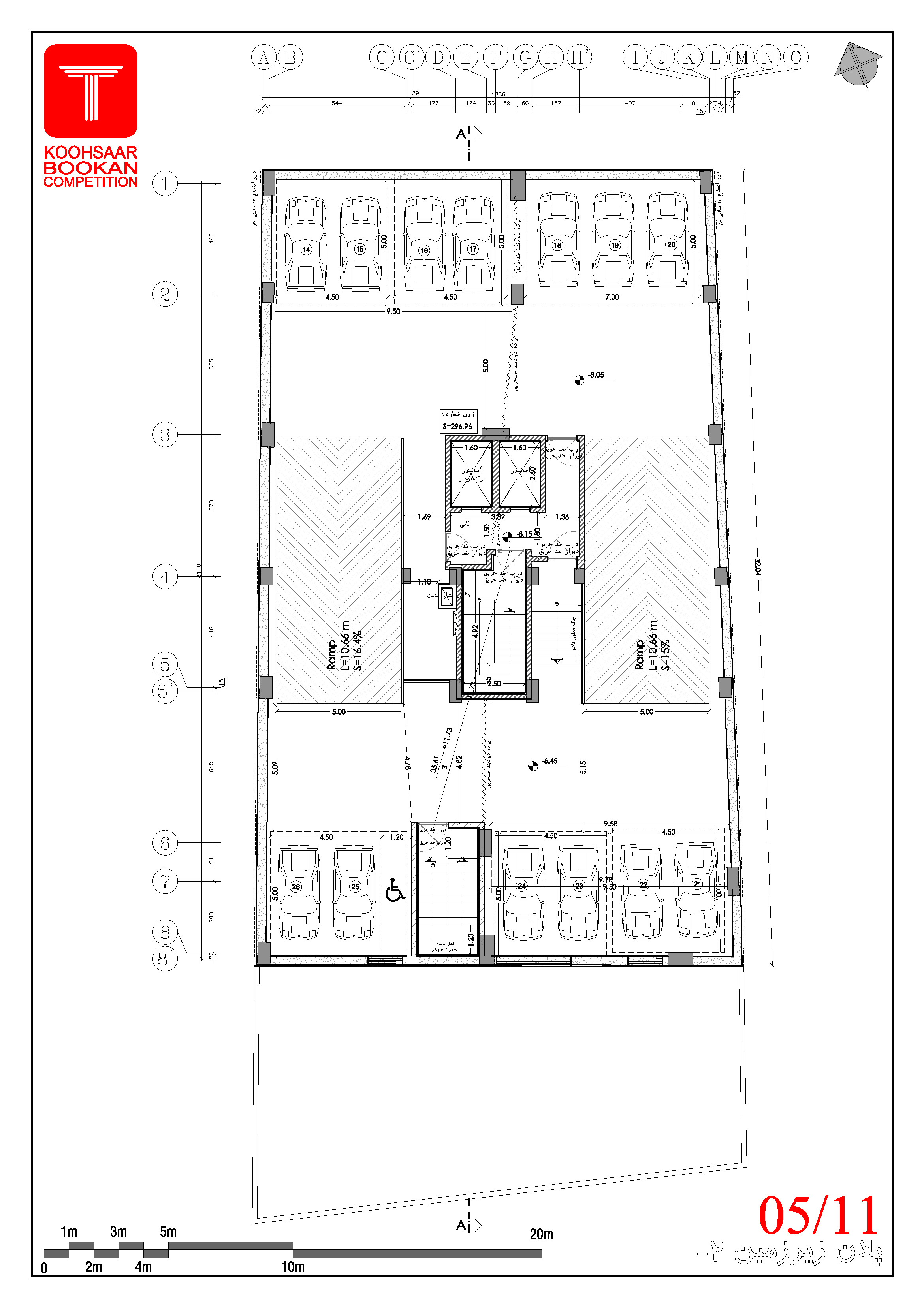
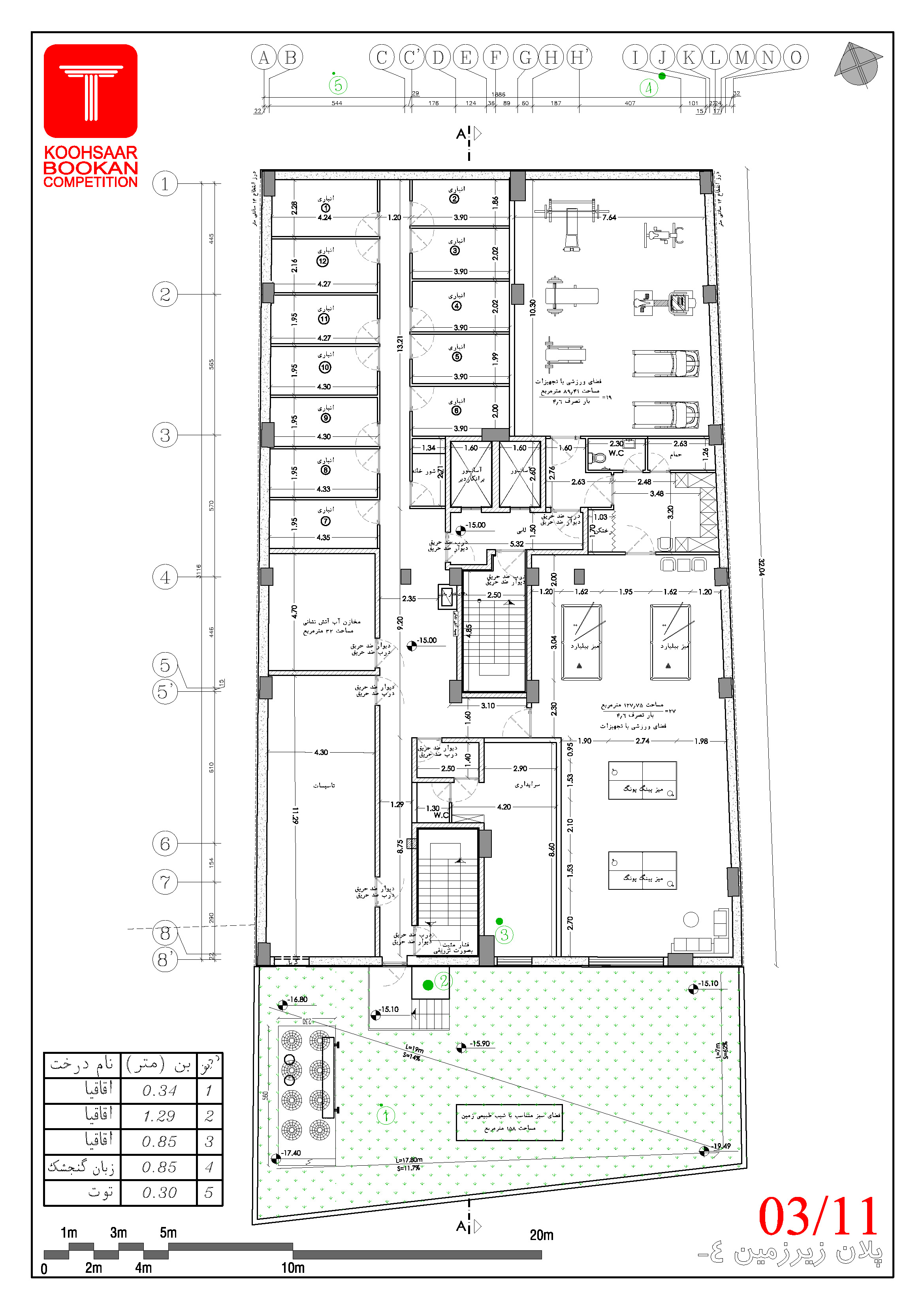
طراحی  زیرزمین 3 - ، 2- و 1-

اولویت با حفظ پلان موجود است ولی در صورت پیشنهادات بهینه معماری ،‌ امکان ایجاد تغییرات جزئی در پلان وجود دارد

  • طراحی داخلی محوطه پارکینگ

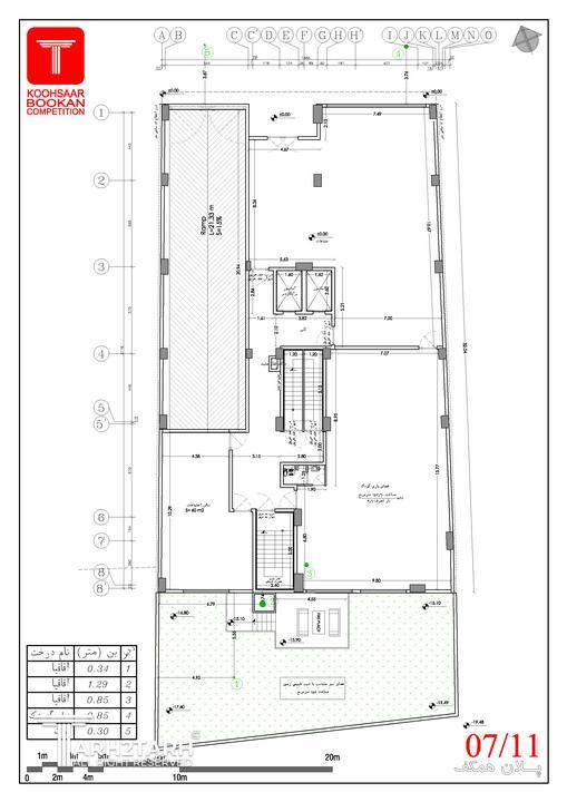
طراحی همکف 

اولویت با حفظ پلان موجود است ولی در صورت پیشنهادات بهینه معماری ،‌ امکان ایجاد تغییرات جزئی در پلان وجود دارد

  •  با توجه به جانمایی داکت ها و عناصر سازه ای ،‌بهتر است برای طراحی از نقشه های تاسیسات مکانیک استفاده شود. به ویژه در طراحی سقف ها ، به محل عبور کانال‌ها و لوله‌های تاسیساتی و سایر عناصر تاسیساتی توجه گردد.
  • طراحی داخلی لابی وانتظار 
  • طراحی داخلی سالن اجتماعات

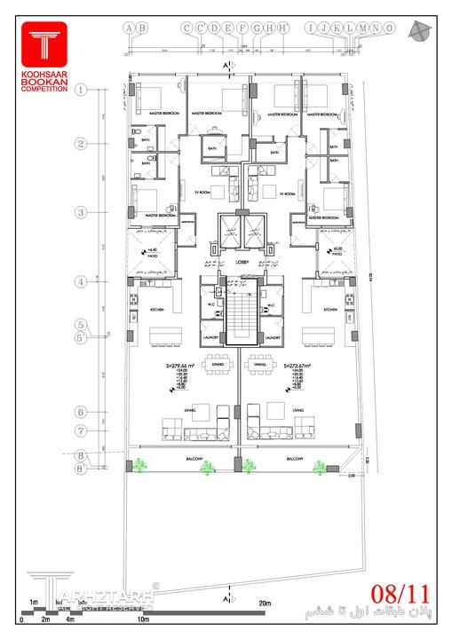
طراحی طبقات مسکونی

اولویت با حفظ پلان موجود است ولی در صورت پیشنهادات بهینه معماری ،‌ امکان ایجاد تغییرات جزئی در پلان وجود دارد

  •  با توجه به جانمایی داکت ها و عناصر سازه ای ،‌بهتر است برای طراحی از نقشه های تاسیسات مکانیک استفاده شود. به ویژه در طراحی سقف ها ، به محل عبور کانال‌ها و لوله‌های تاسیساتی و سایر عناصر تاسیساتی توجه گردد. 
  •  طراحی داخلی لابی آسانسور طبقات
  •  طراحی داخلی واحد مسکونی شامل ورودی،‌ سرویس مهمان،‌ سالن پذیرایی و ناهارخوری،‌ TV Room ،‌آشپزخانه، 3 اتاق خواب و کلوزت،‌ حمام 3 اتاق خواب، بالکن

طراحی محوطه (حیاط جنوبی)

  • جزئیات کامل نوع درختان و نورپردازی ارائه شود.

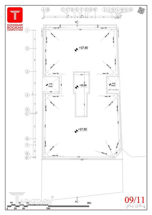
طراحی روف گاردن

  • طراحی باربیکیو
  • طراحی نشیمن و فضای تجمع روباز
  • جزئیات کامل نوع درختان و نورپردازی ارائه شود.
  • از طراحی فضاهای مسقف با مصالح بنایی و ایجاد اضافه بنا در بام پرهیز شود.
  • از استفاده مبلمان (صندلی و مبلمان پارچه‌ای و بالش و ...) و لوازمی که به مرور زمان در فضای باز آسیب می بیند پرهیز شود.

توجه داشته باشید ساعت اتمام ثبت نام و ارسال طرح ها برای تمامی مسابقات تا ساعت ۱۴ تاریخ اعلام شده می‌باشد.

دستورالعمل ارسال فایل‌ها و قوانین مسابقه

امتیازات این مسابقه

انصراف از مسابقه شرکت در مسابقه فینالیست تقدیر شونده نفر سوم نفر دوم نفر اول
-480 10 40 40 60 120 240
پیشنهاد و بازخورد