0
طراحان
طراحان برتر
رزومه طراحان
پرسشهای متداول طراحان
آرشیو مسابقات
خدمات منتورینگ
متقاضیان طراحی
خدمات ما
درخواست مشاوره
پرسش های متقاضیان طراحی
خدمات منتورینگ
قیمت طراحی
طراحی مسکونی/ اداری/ تجاری
طراحی ویلا
خدمات طراحی
نوع خدمات
قیمت طراحی نما
قیمت طراحی پلان
کاربری ساختمان
قیمت طراحی ویلا
قیمت طراحی مسکونی
قیمت طراحی اداری/تجاری
مجله طرح تو طرح
پیشنهادها و بازخورد
ورود | ثبت نام
ورود/ثبت نام
مجله
کاربران
مسابقات
خانه
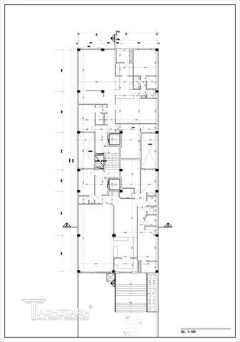
طراحی پلان پروژه کوهیار
مسابقه عمومی
60,000,000
ریال
جایزه نقدی
تعداد شرکت کنندگان: 299 نفر
اطلاعات پایه
فایلهای راهنما
اخبار مسابقه
پرسش و پاسخ
نتایج
برای دیدن اطلاعات پایه و توضیحات مسابقه، صفحه اصلی پروژه را مرور کنید.
مشاهده اطلاعات پایه
نفر 1 - سید محمد ع حسینی
نفر 2 - Ali Ghavimi
نفر 3 - پویان کاشفی
طرح های ارسالی
سبا کشوری
حسن نیک افکار
استودیو معماری شمسه
نسرین نصرآبادی
آسو شفیعی
محمد رازقندی
زهرا سروری
نگین لطفی
امیر شاکری
مهسا ملکی
سهیلا رنجبر
محمدرضا مروت
تسنیم سعید مدقق
مسعود رنجبر
محمدعلی شیواپور
راضیه مظاهری
فائزه عابدی
روناک شاوله
محمد جواد باقری
sh
سعید رشنو
هستی مشایخ
فاطمه فخرالساعه
Samane Imani
لیلا خزایی
شیرین خالدی
محمد رکنی
وحید جعفری
بهاره بهزادی
Amir Valiahdi
نیرالسادات علوی
وحید فرشاد
محمد علی نژاد
علی اکبر بخشی
محمود حداد
هادی ابوالحسنی
میثم نظرخانی
شیرین عزیزی
عاطفه محبی
علیرضا شیری
معمار
میلاد شمس
سپهر سعید
سید هادی امیر ابراهیمی فرد
آرش شمس دیبا
کامبیز هدایتی
سعیده محبی
نوید مهدوی
علیرضا پویا
فاطمه رستم زاده
علیرضا اررربابی
آیسان رضوی
مژگان دانایی
شایان میرزایی
سیاوش یزدان پناه
سارا بشیری دانش
سمیرا فرخ نیا
افسون وشکینی
فریبرز پوریادگاری
یعقوب شهبازی
زینب فهد
سعید بهمن زاده
امیر بابایی
فرناز محسنی
ریواک استدیو
مهیار نجاتی
الناز فخفوری
سید محمد حمیدیان دیوکلایی
مهسا بهار
فیروز
مینا قره داغی
Behnoush Baratzadeh
وحید رهبری مندولکانی
الهام ابراهیمی
عبدالمجید عسگری فراهانی
نیایش رضوی
گروه معماری خانه
مهدی سلیمی
ساناز آقاجمالی
ملکه حدادی وایقان
amirali jedi
آناهیتا رحیمیان
فاطمه زارع
Samira Khorshidi
رضا رحیمی خو
مهندسین مشاور و مجری آمود
آرزو سردارپور
علی علی بابایی
سحر غریبی
زهرا فهد
مریم فهد
سمانه ایران خواه
آیتین آرت ویستا
محیا جعفریان عصر
مهرناز گلسرخی
حمید مرادیان
حسین محمدی
مبینا الهیاری
پیشنهاد و بازخورد