اطلاعات پروژه

نقش : مدیر تیم
کارفرما : جناب آقای مجیدی خواه
نوع پروژه : طرح اجرایی
وضعیت : اجرا شده
کاربری : دفتر کار
متراژ زمین : 180
متراژ زیربنا : 180
سبک‌های طراحی: مدرن

خدمات ارائه شده توسط طراح

خدمات طراحی و کانسپت
مدل‌سازی سه‌بعدی معماری
دکوراسیون داخلی
طراحی نقشه فاز دو معماری
طراحی پلان (نقشه معماری) فاز 1
طراحی داخلی
خدمات اجرایی و نظارتی
مدیریت پیمان (پیمانکاری کلی پروژه)

توضیحات پروژه

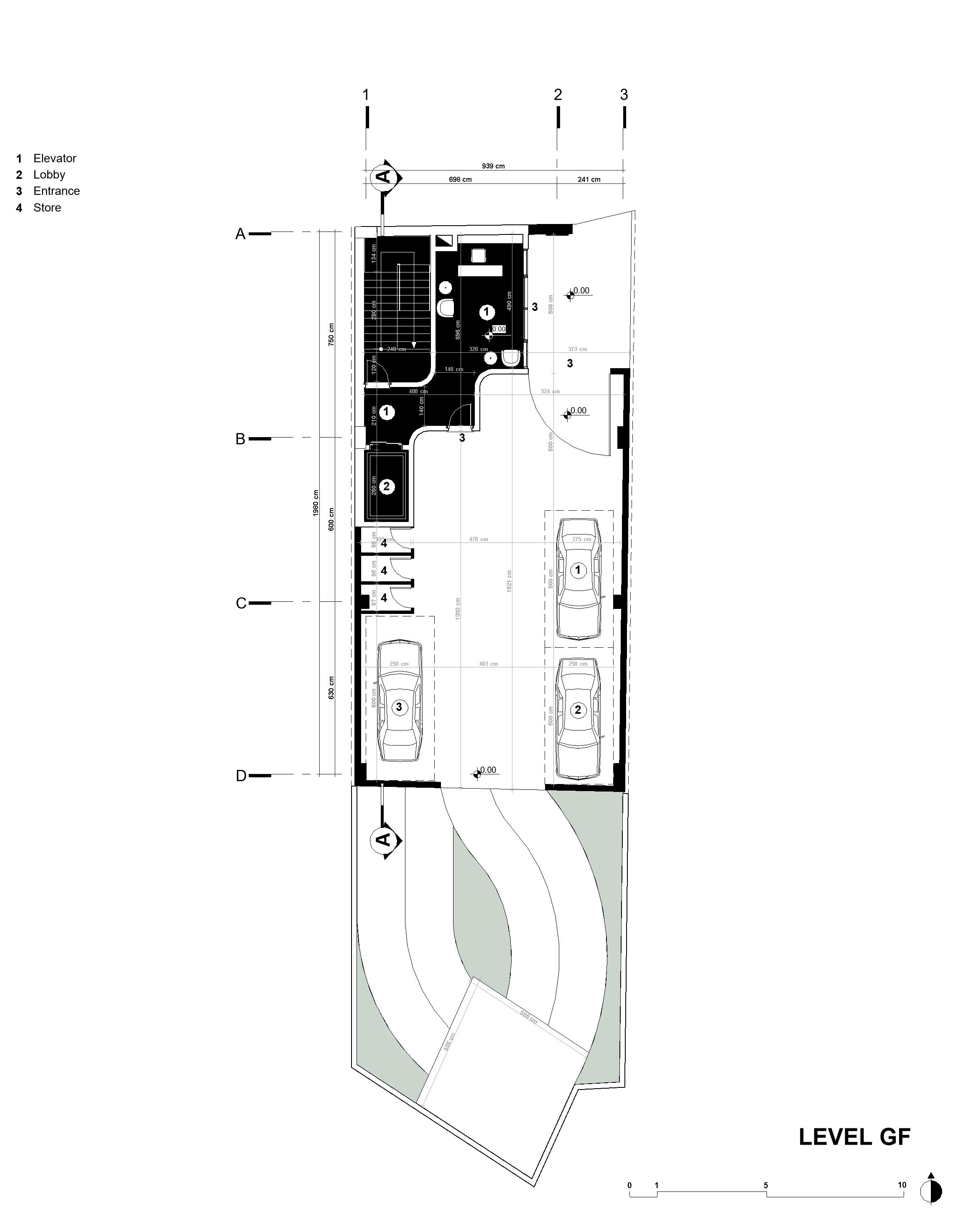
واحد اداری به علت پلان کشیده ای که داشت یکی از بزرگترین چالش های تیم ما برای نقسیم بندی فضاها شد به گونه ای که در نگاه اول امری محال به نظر می آمد با پیش رفتن کار و لکه گذاری ها بر اساس فضاهای مورد درخواست کارفرما به پلان متفاوت و کاربردی رسیدیم در واقع موضوعی که در نگاه اول نقص پروژه بود تبدیل به نقطه قوت شد و نتیجه بسیار دلپذیر شد.

موقعیت مکانی پروژه

نظرات
پیشنهاد و بازخورد