اطلاعات پروژه

نقش : طراح ارشد
نوع پروژه : طرح اجرایی
وضعیت : در حال اجرا
کاربری : ساختمان مسکونی
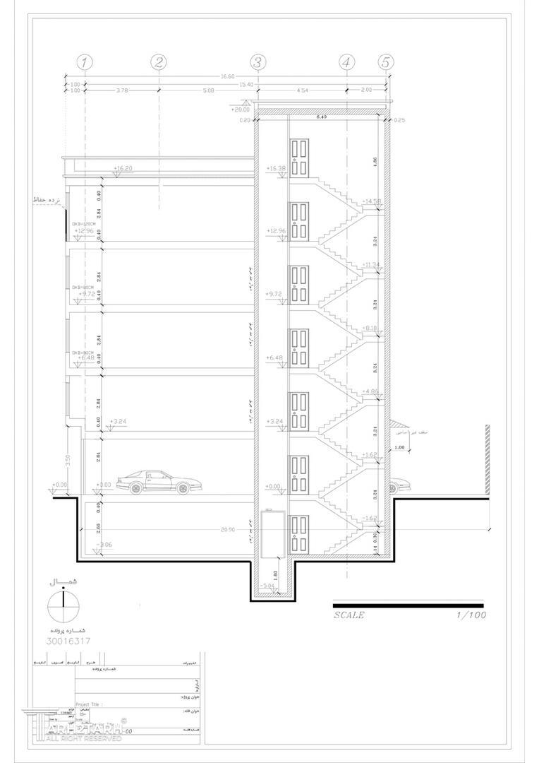
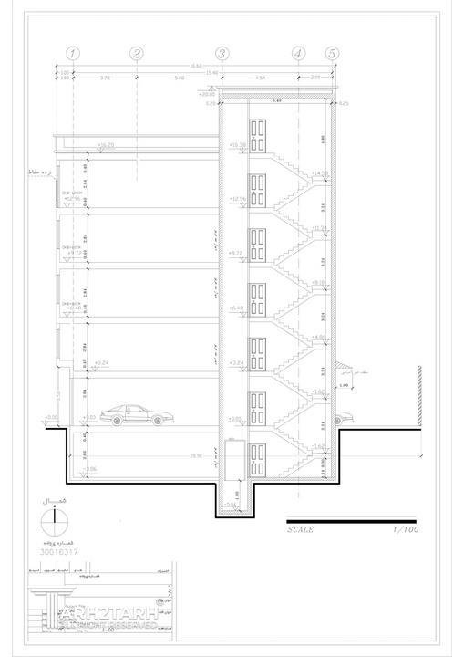
متراژ زمین : 180
متراژ زیربنا : 600
سبک‌های طراحی: مدرن

خدمات ارائه شده توسط طراح

خدمات طراحی و کانسپت
طراحی مسترپلن
خدمات مشاوره و امکانسنجی
مشاوره و تجزیه و تحلیل فنی و اصلاحات نقشه‌ها برای تطبیق با ضوابط ارگانهای ذیربط
خدمات اجرایی و نظارتی
نظارت عالیه بر اجرا
خدمات فنی و مهندسی
اخذ تاییدیه نقشه پلان
خدمات دیگر
طراحی نرم‌افزارهای واقعیت مجازی و افزوده

توضیحات پروژه

در طراحی این پروژه بدلیل عرض کم زمین با سختی های زیادی روبرو بودیم اما مثل همیشه عشق به معماری کار رو آسون کرد

موقعیت مکانی پروژه

نظرات
پیشنهاد و بازخورد