مسابقه مسابقه طراحی پلان و نما پروژه مسکونی مگنولیا

0

اطلاعات پروژه

محمد رضا کرمی

نوع مسابقه: طراحی مسکونی
سال انجام پروژه : 1400
نقش: طراح
موقعیت : کرمانشاه
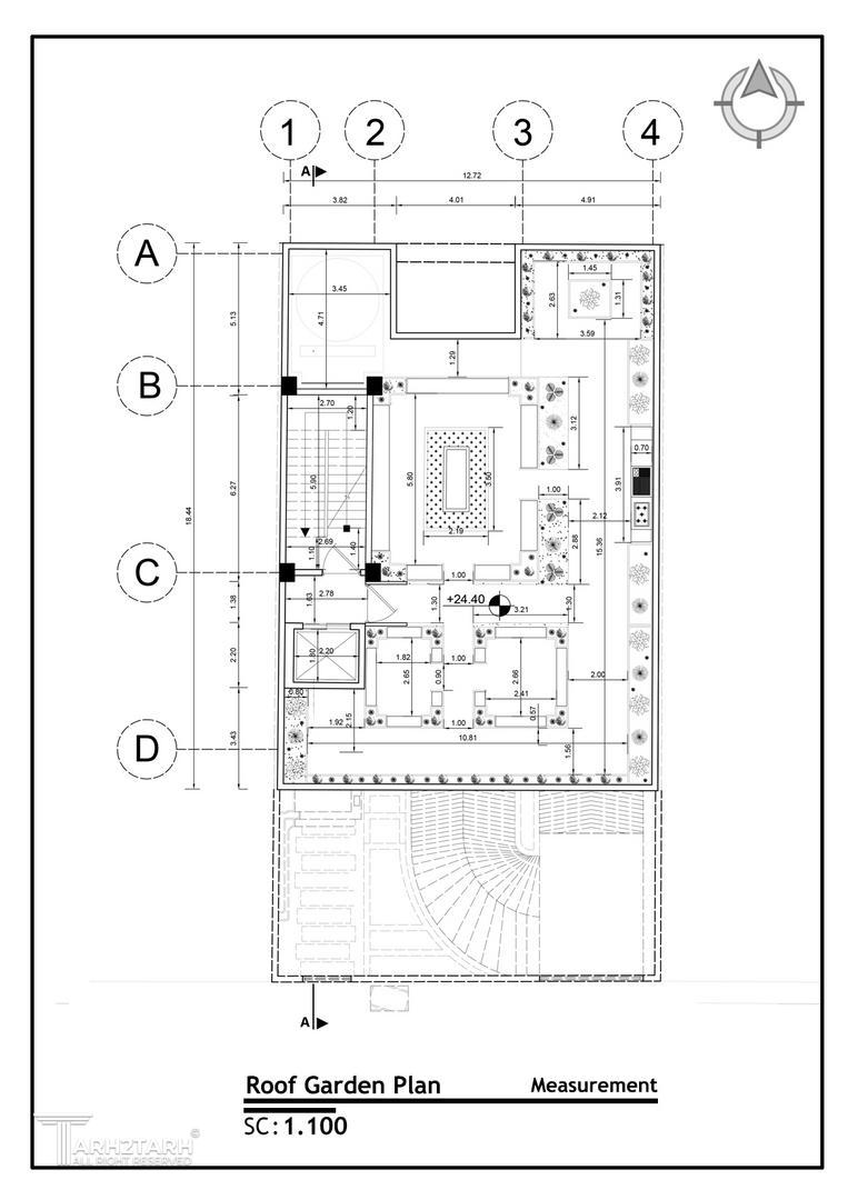
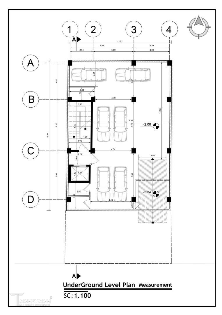
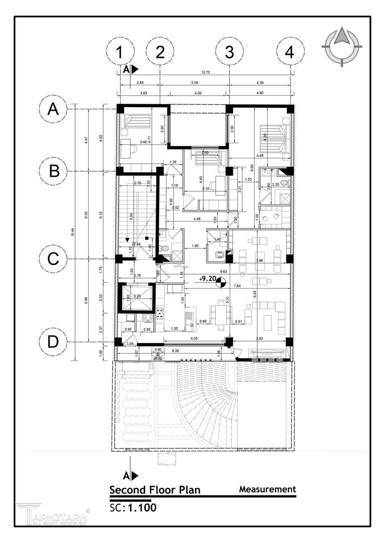
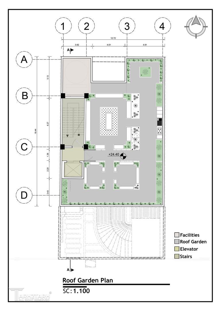
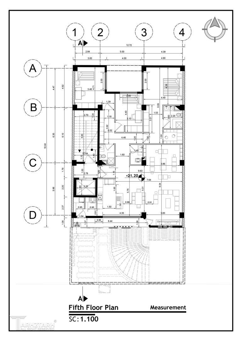
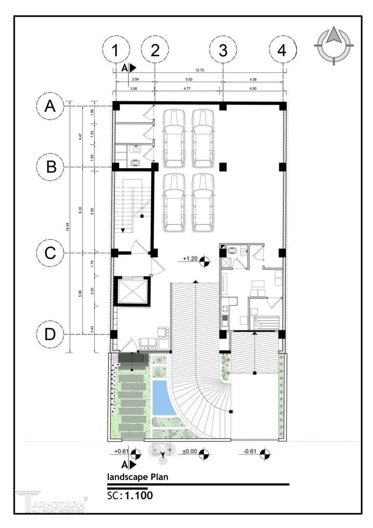
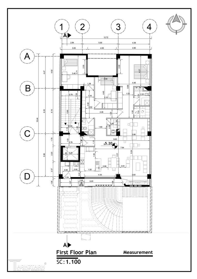
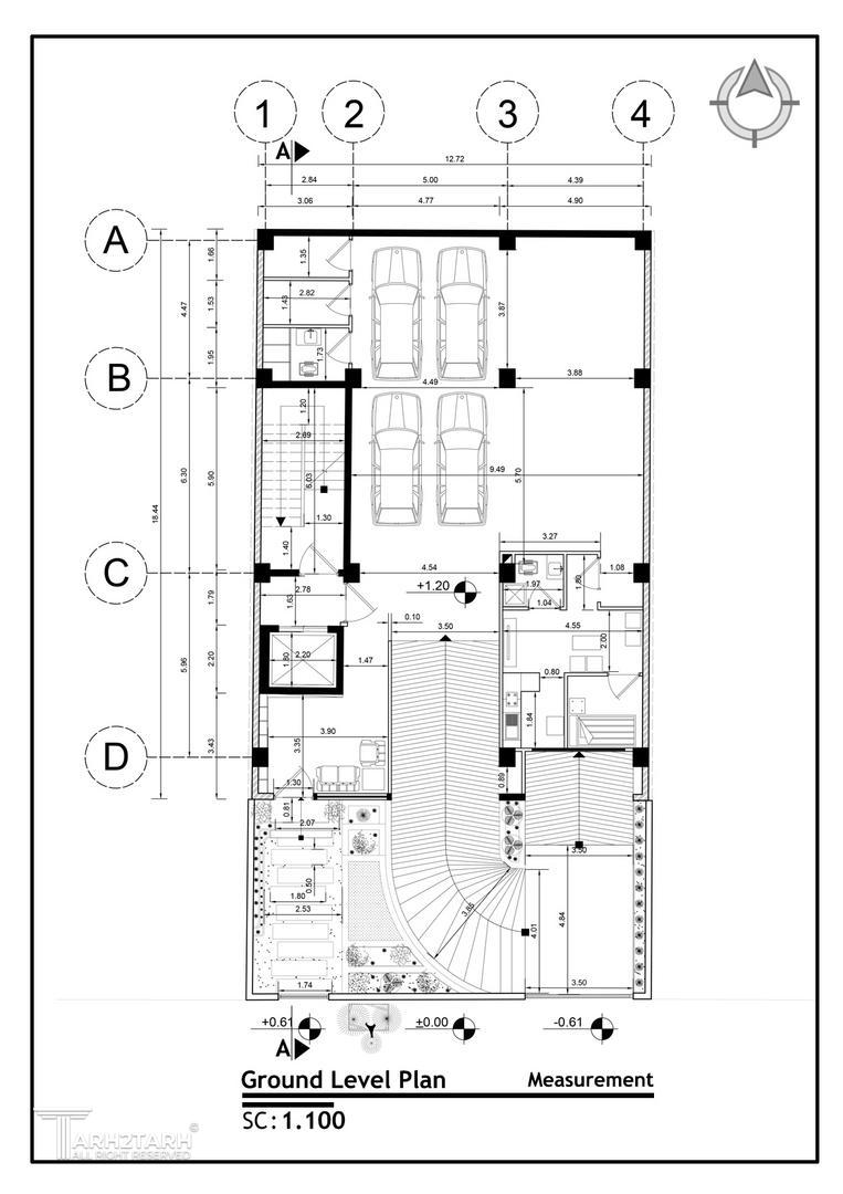
متراژ زیربنا : 1761
کارفرما : علی یغمایی

موقعیت مکانی پروژه

پیشنهاد و بازخورد