محمود آباد
1404
0

اطلاعات پروژه

نقش : سرپرست تیم طراحی
نوع پروژه : طرح اجرایی
وضعیت : در حال اجرا
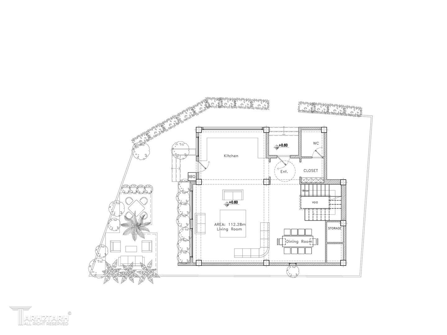
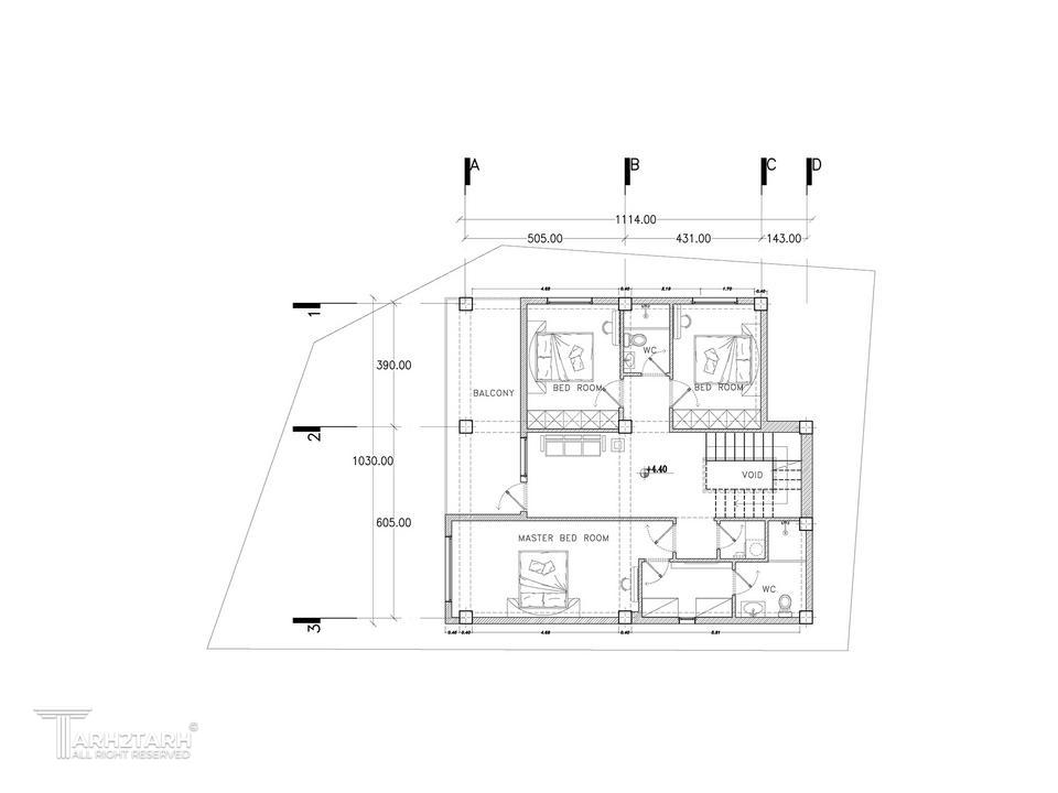
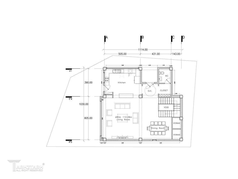
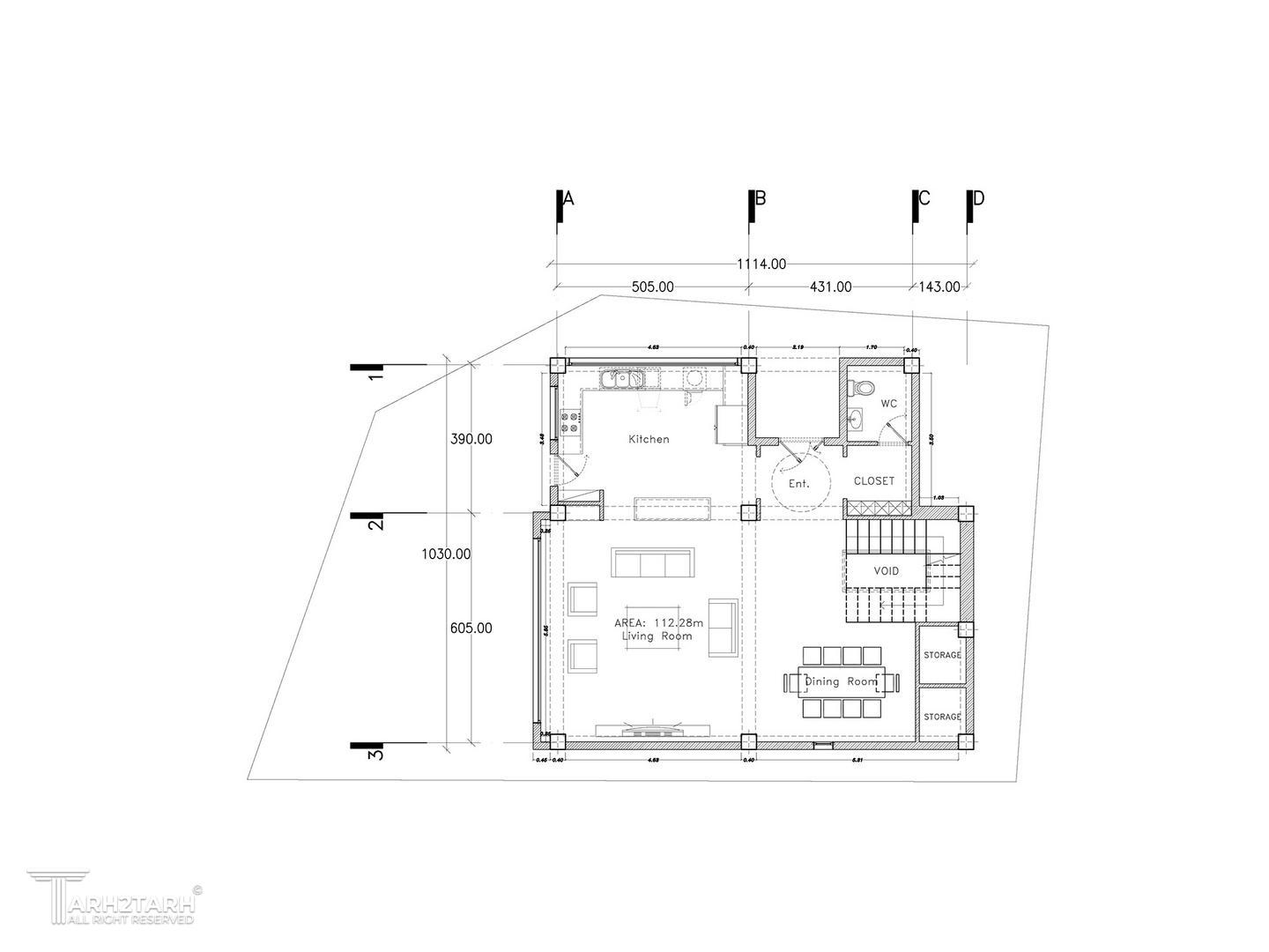
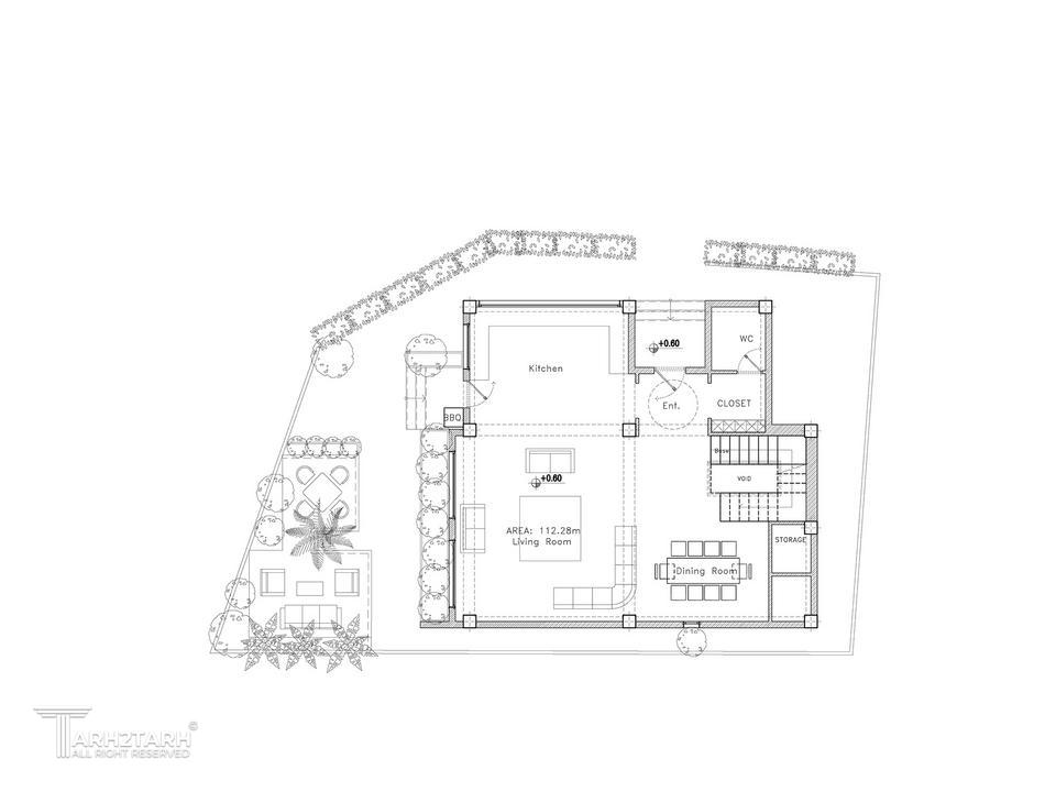
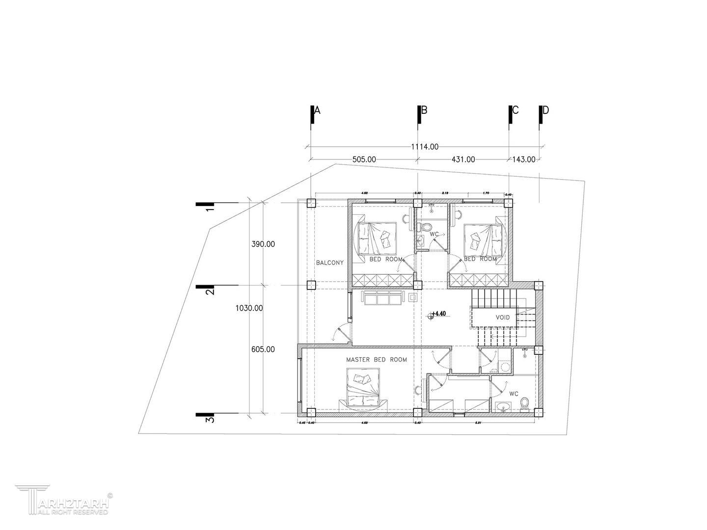
کاربری : ویلا
متراژ زمین : 112
متراژ زیربنا : 250
سبک‌های طراحی: مدرن مینیمال

خدمات ارائه شده توسط طراح

خدمات طراحی و کانسپت
مدل‌سازی سه‌بعدی معماری
دکوراسیون داخلی
طراحی کانسپت (معماری)
طراحی نقشه فاز دو معماری
طراحی پلان (نقشه معماری) فاز 1
طراحی داخلی
خدمات مشاوره و امکانسنجی
مشاوره تحلیل سایت پروژه
مشاوره طراحی اقلیمی
مشاوره در زمینه توسعه پایدار
مشاوره مالی و بودجه‌ای
متره و برآورد هزینه ساخت پروژه
خدمات اجرایی و نظارتی
نظارت عالیه بر اجرا
نظارت بر اجرای معماری (نظام مهندسی)
خدمات فنی و مهندسی
اخذ تاییدیه نقشه پلان
رندرینگ و خدمات فنی
مدل سازی
متره و برآورد هزینه ساخت پروژه
طراحی و مدلسازی BIM
تهیه نقشه معماری فاز دو اجرایی
تهیه نقشه سازه فاز دو اجرایی
خدمات دیگر
رندرینگ
عکاسی معماری

توضیحات پروژه

ویلای نارنج با توجه به نظر کارفرما به سبک مدرن مینیمال، در شهر محمودآباد مازندران طراحی شده است و اکنون در مرحله اجرا قرار دارد. ویلا با رویکردی مینیمال و فرمی حجمی و ساده طراحی شده است. ترکیب خطوط عمودی و افقی در نمای ساختمان، حس نظم و آرامش ایجاد می‌کند، در حالی‌که تضاد میان سطوح سفید بافت‌دار و جزئیات چوبی، گرمای لطیفی به فضا می‌بخشد. تراس نیمه‌باز با پالت رنگی گرم و نورپردازی ملایم خود، مرز میان فضاهای داخلی و خارجی را محو کرده و لحظه‌ای آرام برای سکون و تأمل فراهم می‌آورد.

موقعیت مکانی پروژه

نظرات
پیشنهاد و بازخورد