اطلاعات پروژه

نقش : همکاری در طراحی
کارفرما : هلدینگ ساختمانی لحظه اقای باقری
نوع پروژه : طرح اجرایی
وضعیت : اجرا شده
کاربری : ساختمان مسکونی
متراژ زمین : 500
متراژ زیربنا : 4000
سبک‌های طراحی: مدرن

خدمات ارائه شده توسط طراح

خدمات طراحی و کانسپت
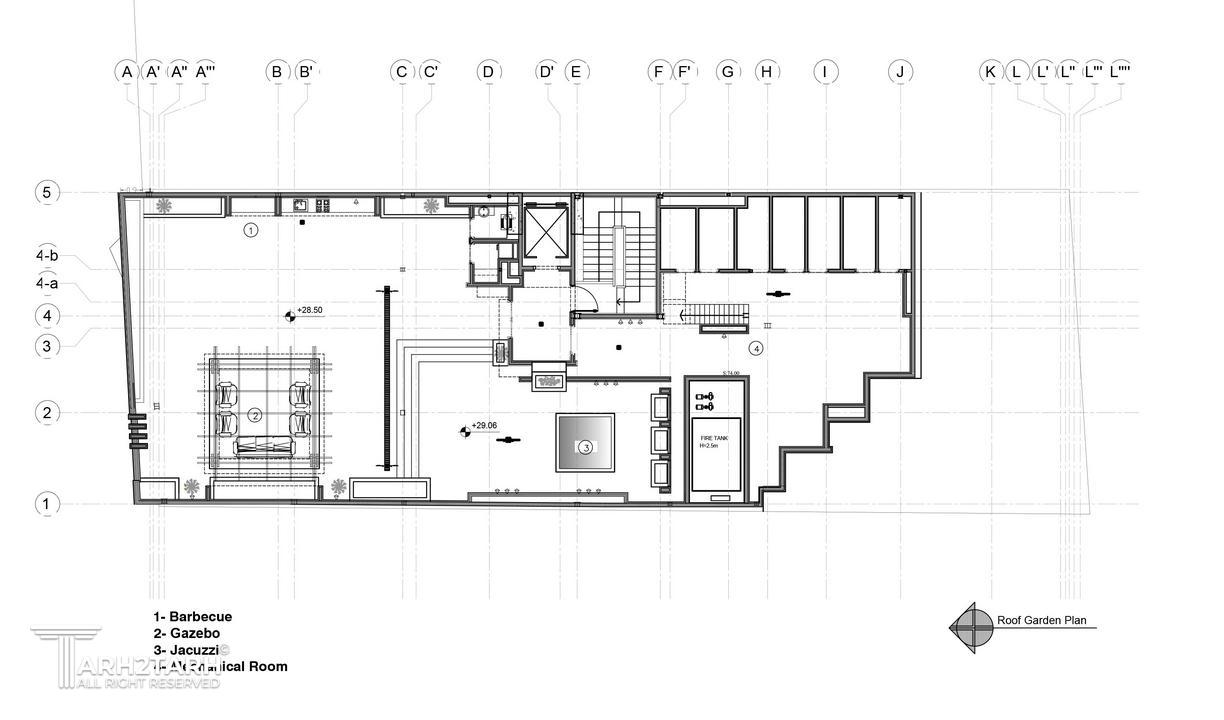
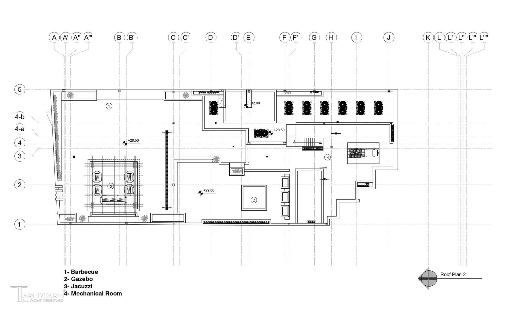
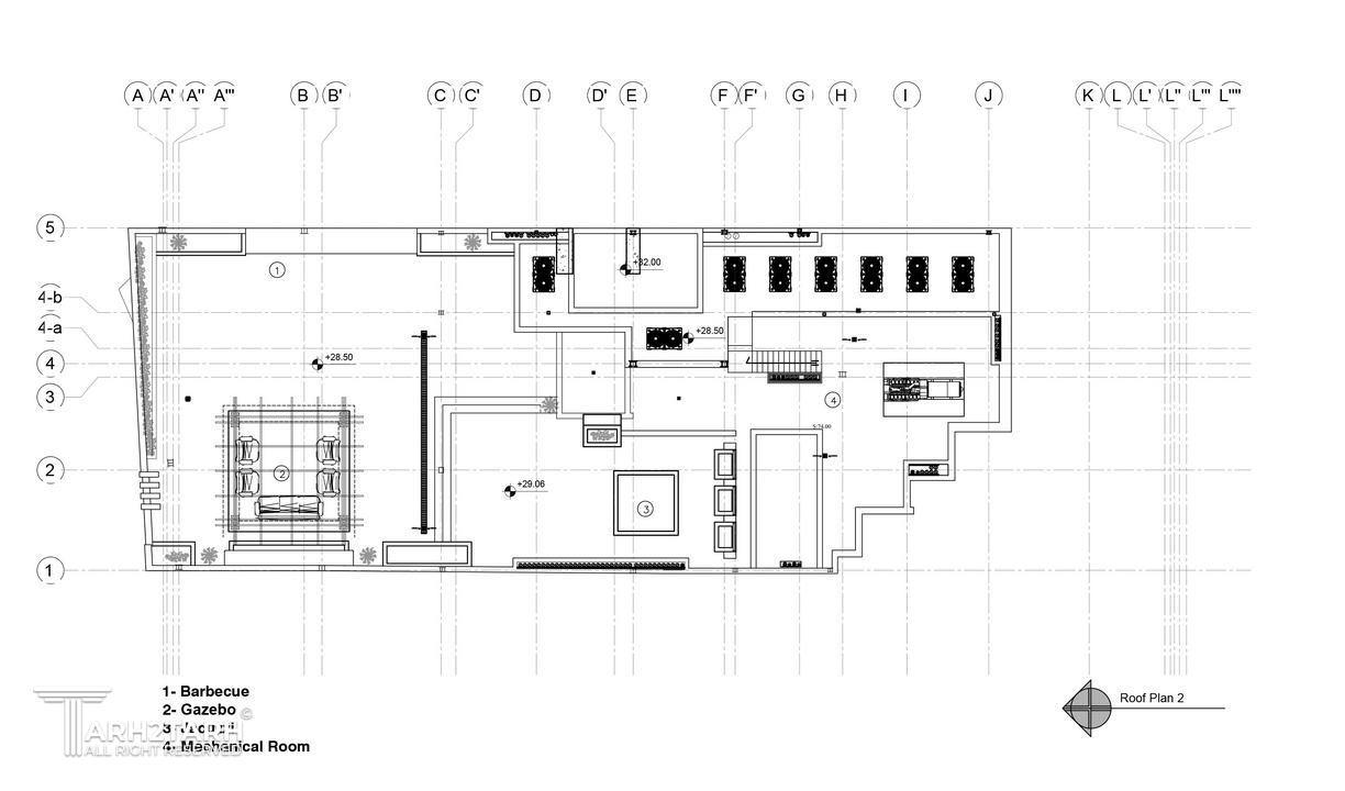
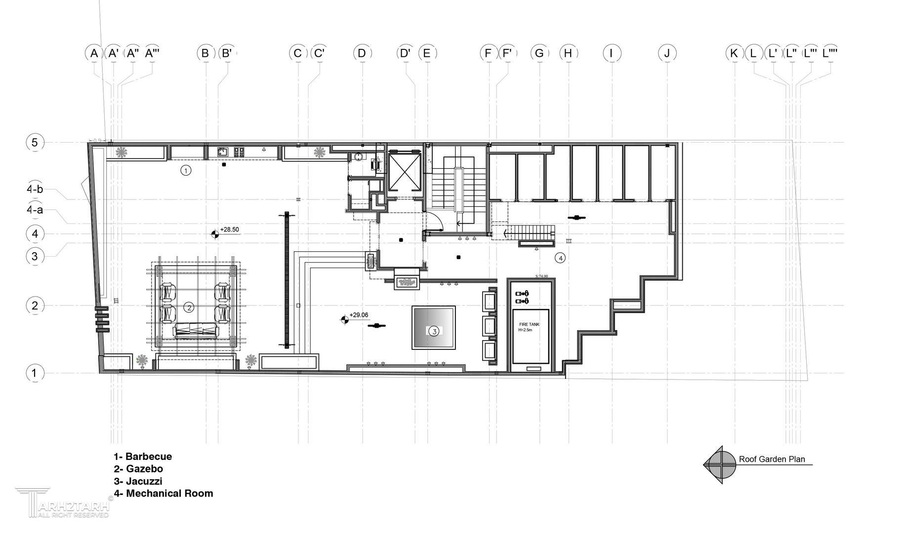
طراحی منظر، فضای سبز، لند اسکیپ، روف گاردن و محوطه
طراحی کانسپت (معماری)
طراحی نقشه فاز دو معماری
طراحی نما
خدمات مشاوره و امکانسنجی
مشاوره تحلیل سایت پروژه
مشاوره فاز صفر و امکان‌سنجی پروژه
خدمات اجرایی و نظارتی
نظارت عالیه بر اجرا
خدمات دیگر
رندرینگ
عکاسی معماری

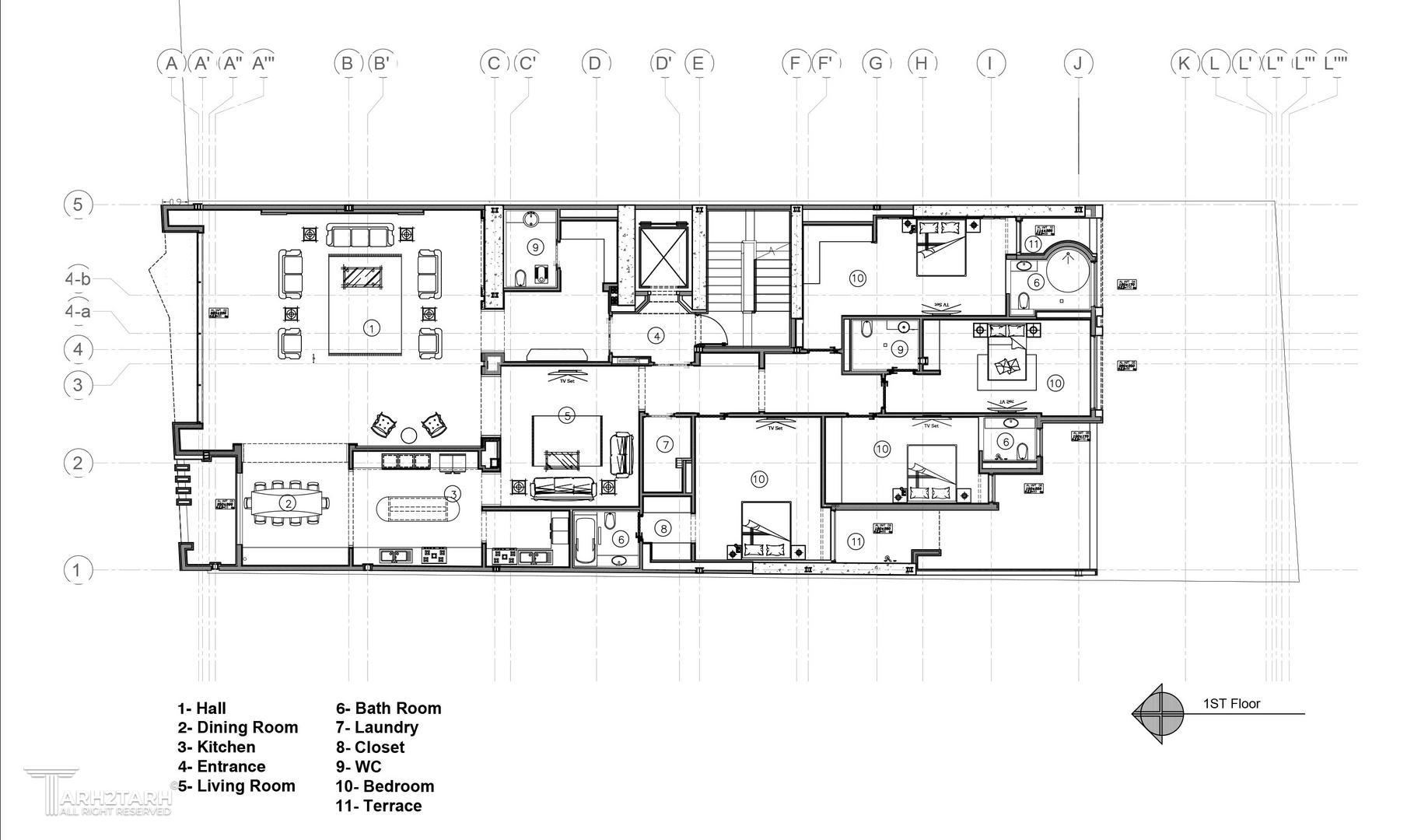
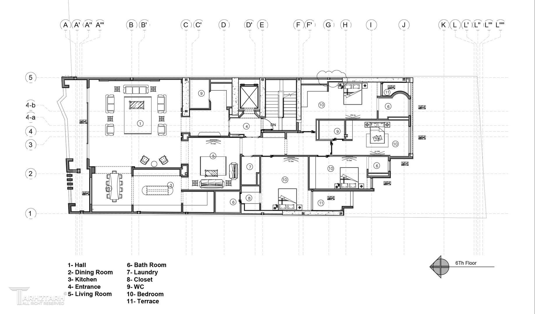
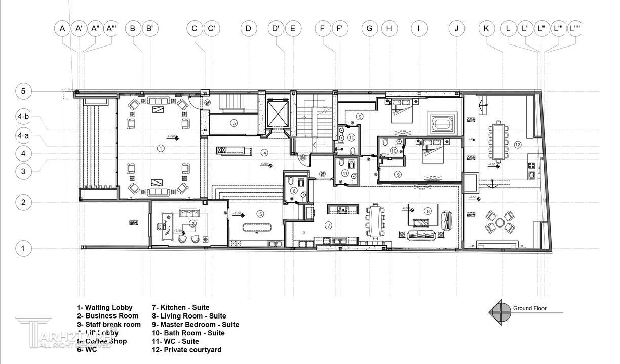
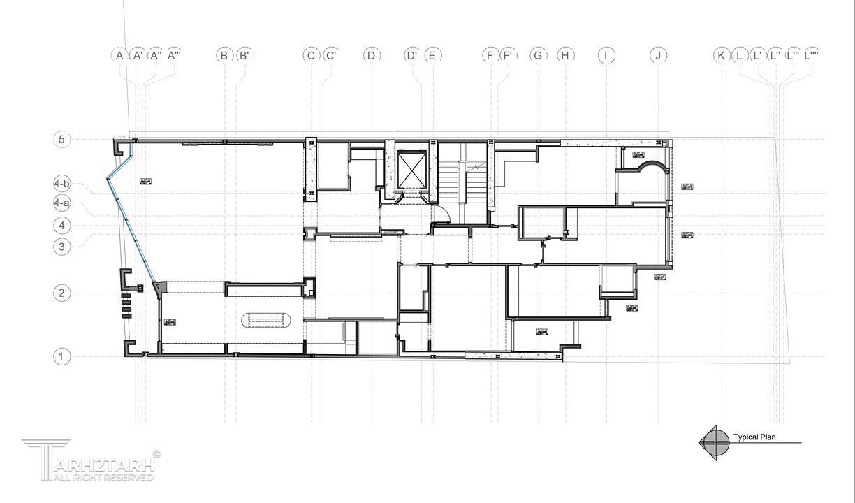
توضیحات پروژه

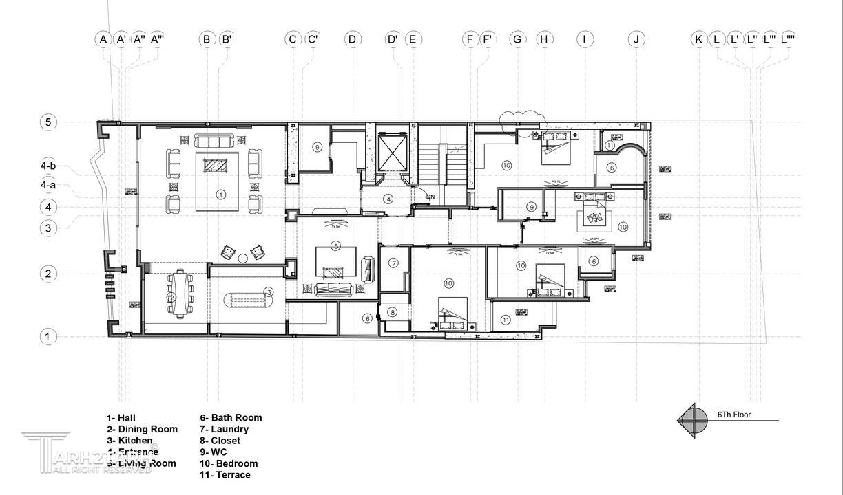
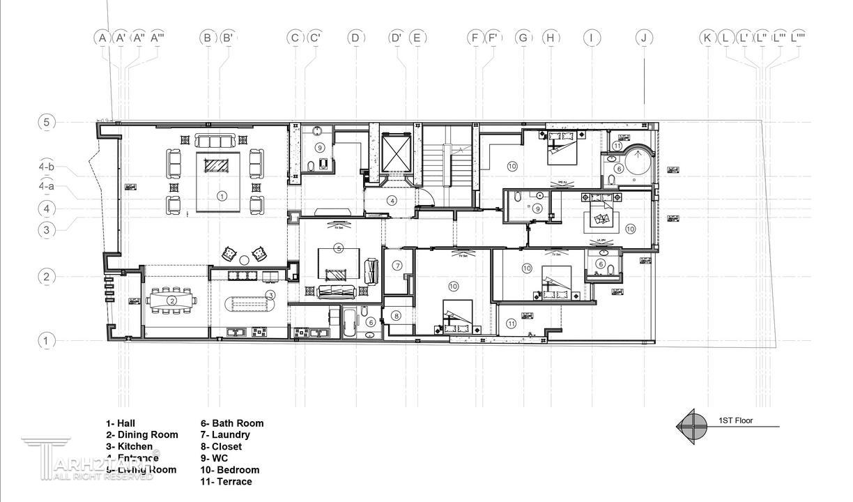
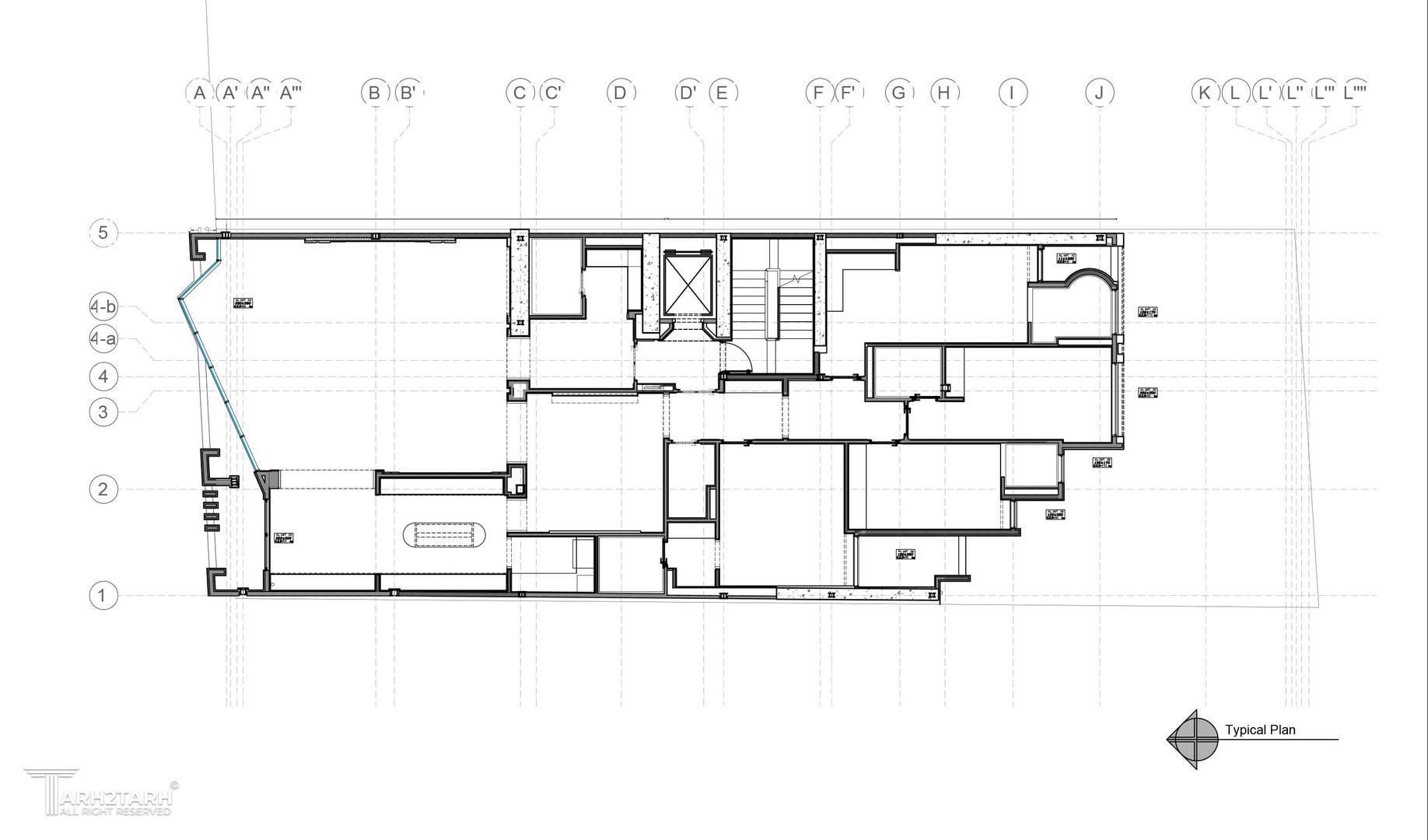
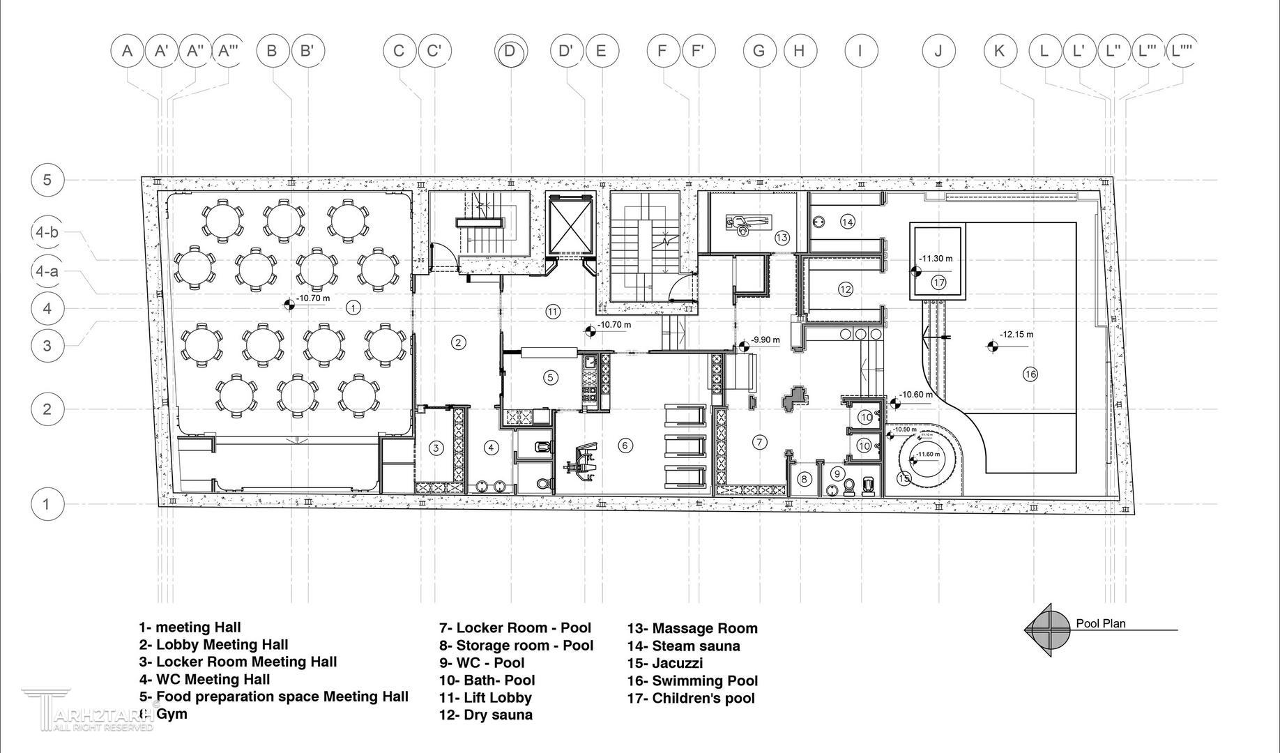
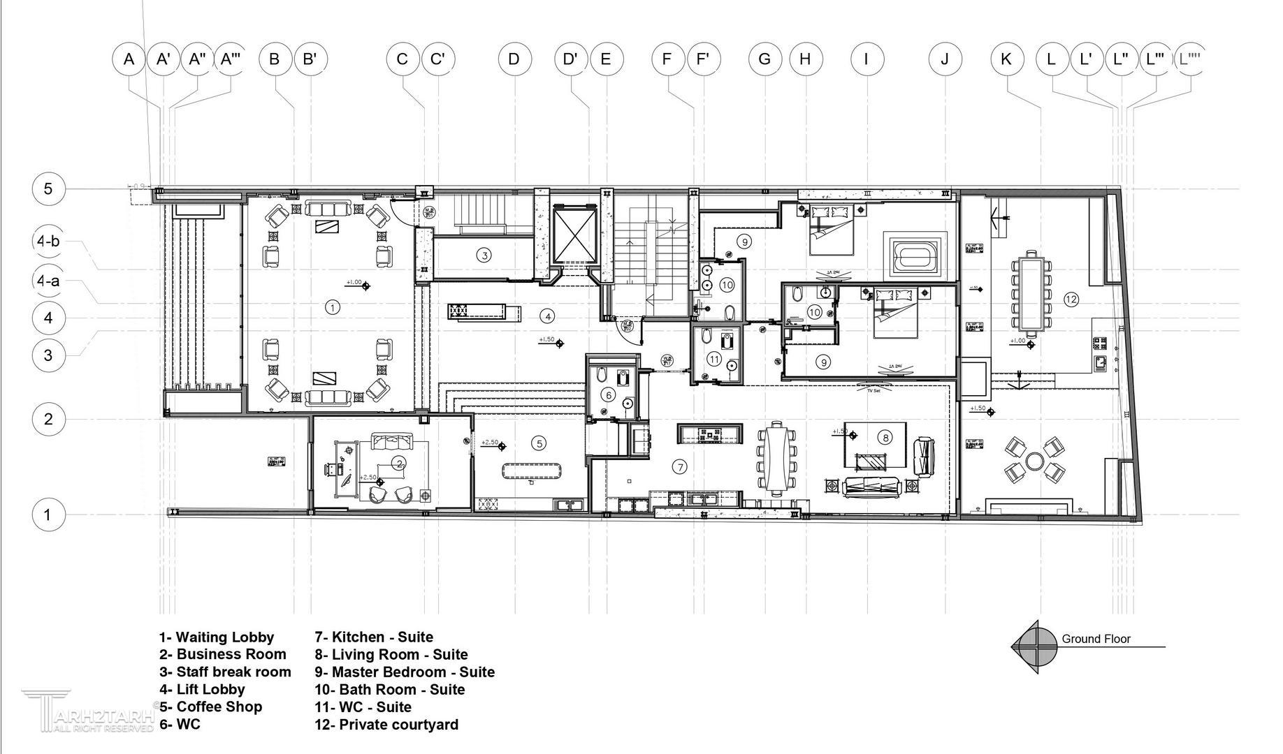
این پروژه در شهر مشهد واقع شده است . شامل 6 طبقه مسکونی و دو طبقه زیرزمین میباشد . امکانات هتلی این ساختمان مسکونی را متمایز کرده است . سرمایه گذاری بر روی این پروژه با رویکرد سبزینگی در خانه های اپارتمانی شکل گرفت.

موقعیت مکانی پروژه

نظرات
پیشنهاد و بازخورد