تهران
1401
0

اطلاعات پروژه

نوع پروژه : طرح اجرایی
وضعیت : اجرا شده
کاربری : ویلا
متراژ زمین : 230
متراژ زیربنا : 360
سبک‌های طراحی: مدرن

خدمات ارائه شده توسط طراح

خدمات طراحی و کانسپت
دکوراسیون داخلی
طراحی نورپردازی
طراحی کانسپت (معماری)
طراحی نقشه فاز دو معماری
طراحی پلان (نقشه معماری) فاز 1
طراحی نما
طراحی داخلی
خدمات اجرایی و نظارتی
نظارت عالیه بر اجرا
خدمات دیگر
رندرینگ

توضیحات پروژه

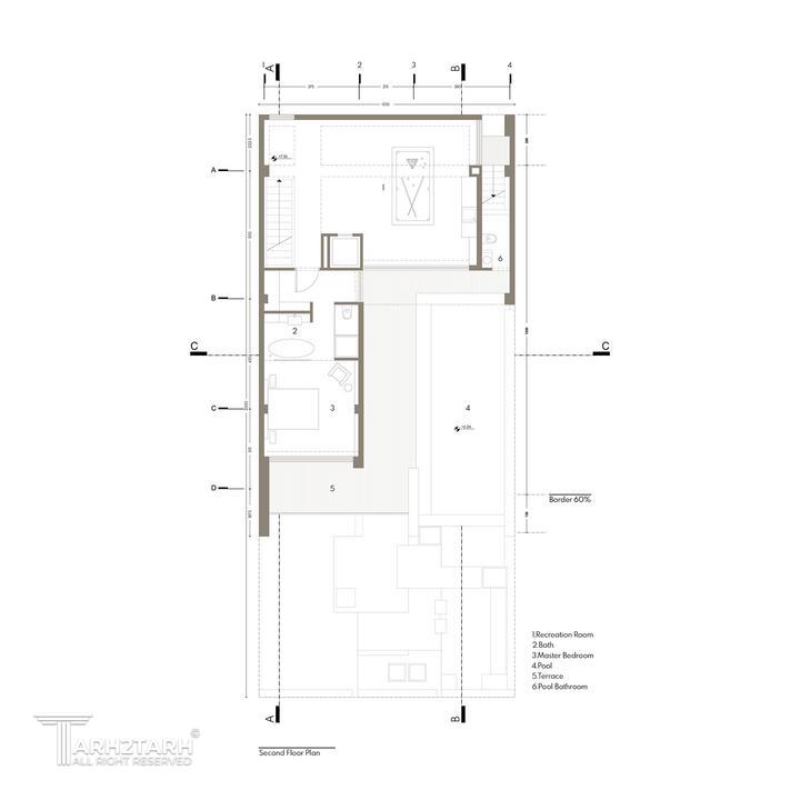
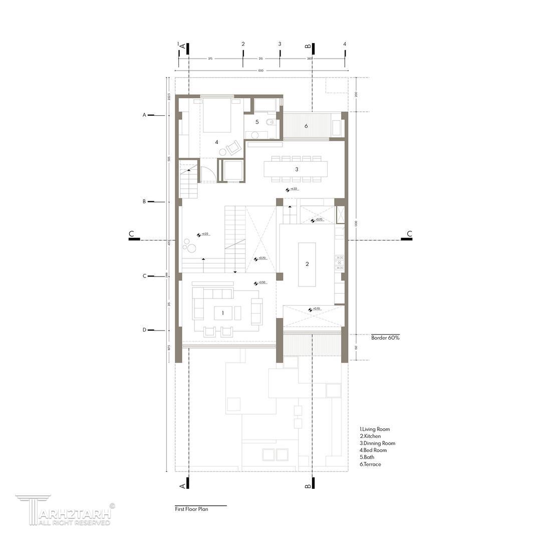
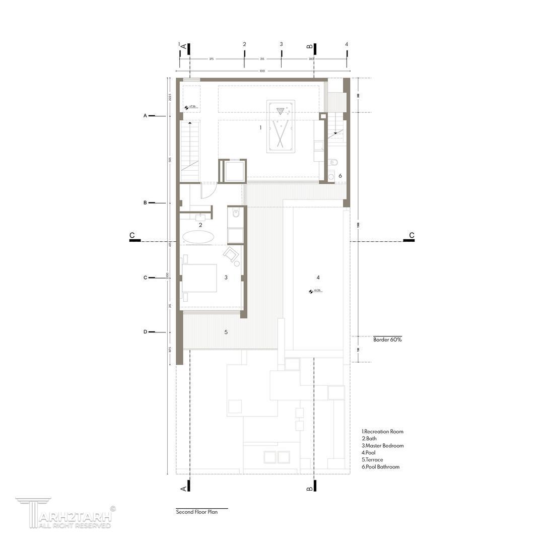
پروژه ویلایی رویان در شهرک ویلا سرا واقع در رویان در زمینی به ابعاد 23در10 متر در سال 1401طراحی شده است . بنا بر نیاز کارفرما این واحد ویلایی در دو طبقه روی همکف طراحی شد و ایده اصلی طراحی بر مبنای نیاز و لایف استایل کارفرما شکل گرفت . وجود دیوارهای قطور و سازه ای که در نما خود رانشان میدهد این امکان را فراهم کرد تا در درون فضایی سیال و پیوسته را تجربه کنیم همچنین قرارگیری استخر در تراس طبقه اخر علاوه بر امکان بهرگیری از منظره زیبا و تجربه فضای استخر خارج از کدهای ارتفاعی متداول این امکان را فراهم اورد تا فضای تفریحی ویلا از بخش خصوصی و زندگی دایم کمی فاصله بگیرد واجازه دهد در آن واحد هم امکان استراحت و زندگی در ویلا باشد و هم تفریح وبازی. فضای اصلی زندگی در طبقه میانی و فضای استراحت و مهمان در طبقه همکف و در ارتباط مستقیم با حیاط شکل گرفت .

موقعیت مکانی پروژه

نظرات
پیشنهاد و بازخورد