مسابقه طراحی پلان آجودانیه

0

اطلاعات پروژه

محمود معماری

نوع مسابقه: طراحی مسکونی
سال انجام پروژه : 1402
نقش: طراح
موقعیت : تهران
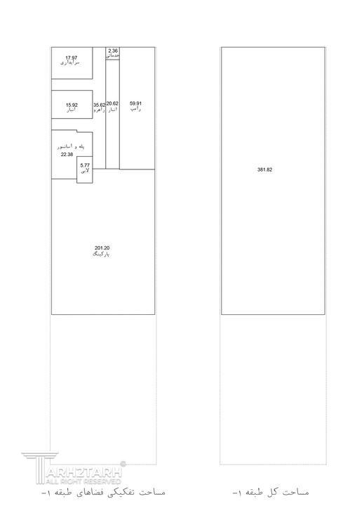
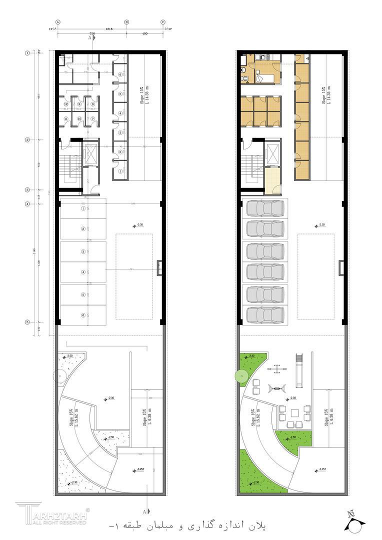
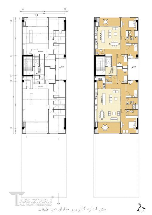
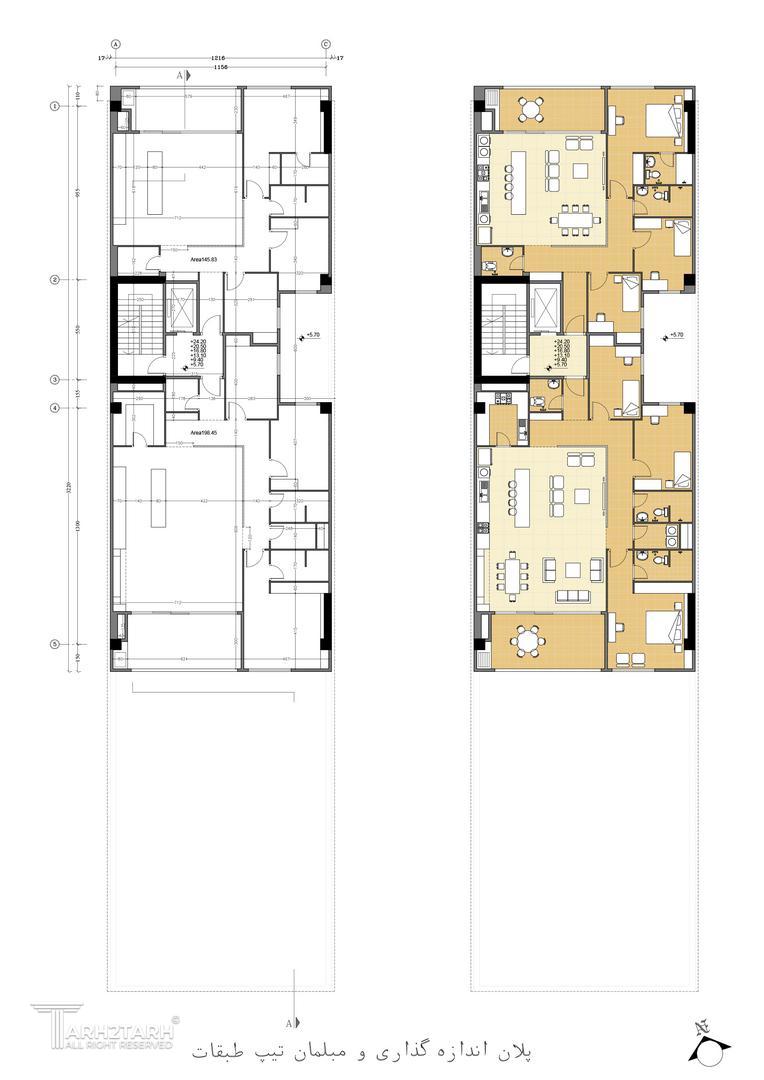
متراژ زیربنا : 3200
مساحت زمین : 612
کارفرما : امیری

خدمات ارائه شده توسط طراح

خدمات طراحی و کانسپت
طراحی پلان (نقشه معماری) فاز 1

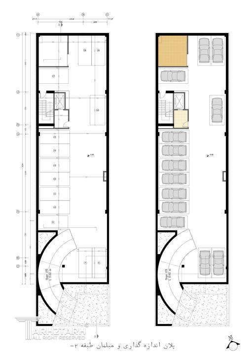
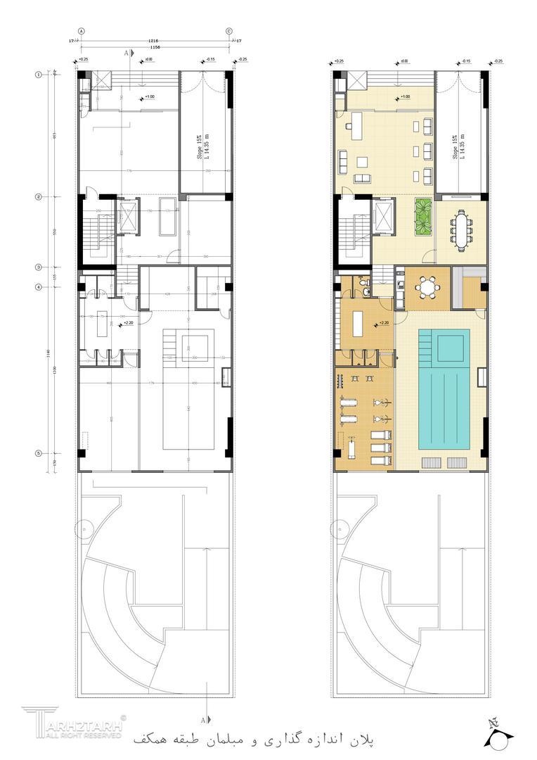
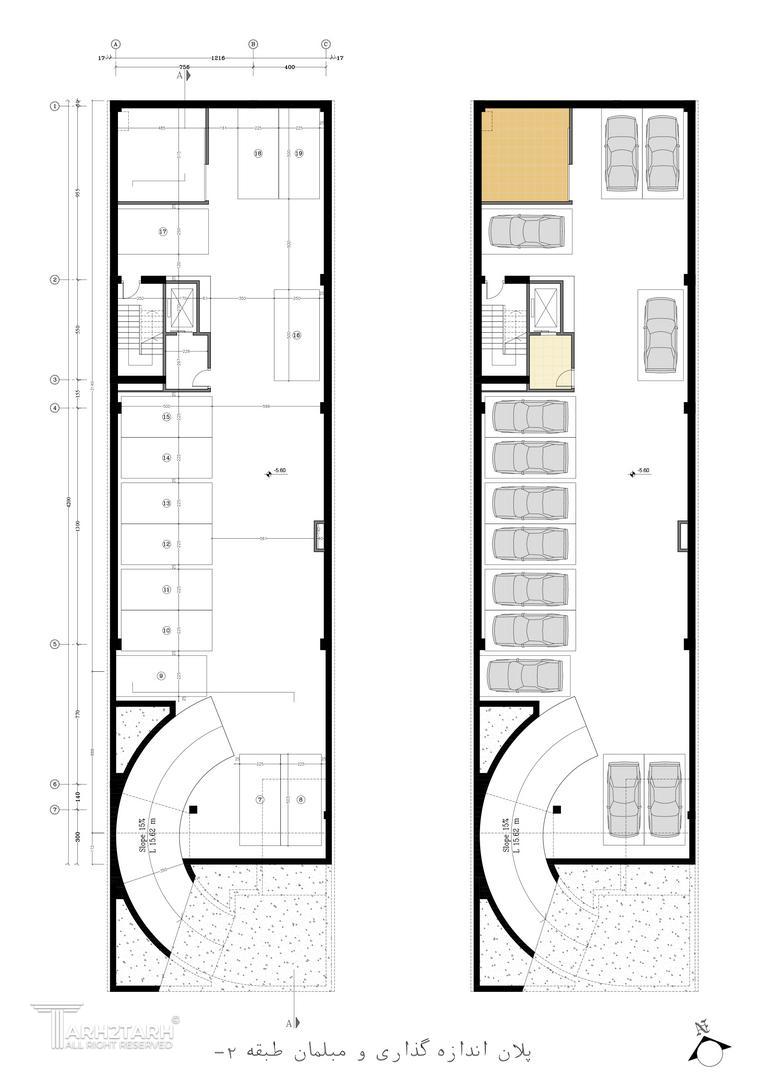
موقعیت مکانی پروژه

پیشنهاد و بازخورد