مسابقه طراحی پلان آجودانیه

0

اطلاعات پروژه

استودیو معماری کاژ

نوع مسابقه: طراحی مسکونی
سال انجام پروژه : 1402
نقش: طراح
موقعیت : تهران
متراژ زیربنا : 3200
مساحت زمین : 612
کارفرما : امیری

خدمات ارائه شده توسط طراح

خدمات طراحی و کانسپت
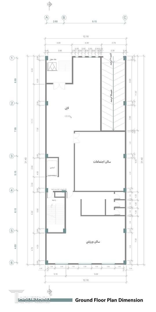
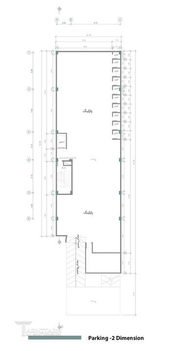
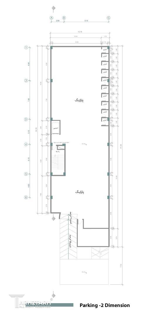
طراحی پلان (نقشه معماری) فاز 1

موقعیت مکانی پروژه

پیشنهاد و بازخورد