اطلاعات پروژه

نقش : مشاور پروژه
نوع پروژه : طرح اجرایی
وضعیت : اجرا نشده
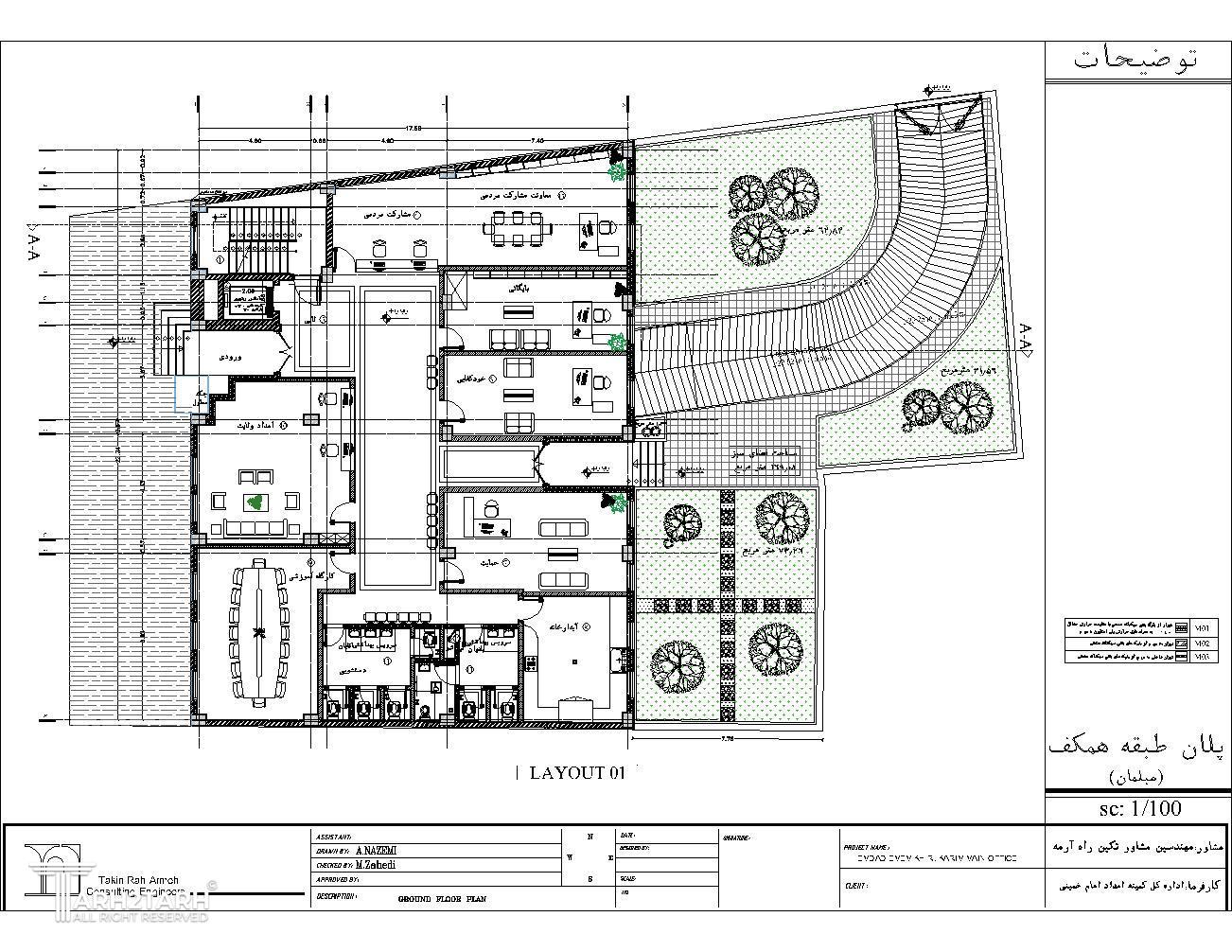
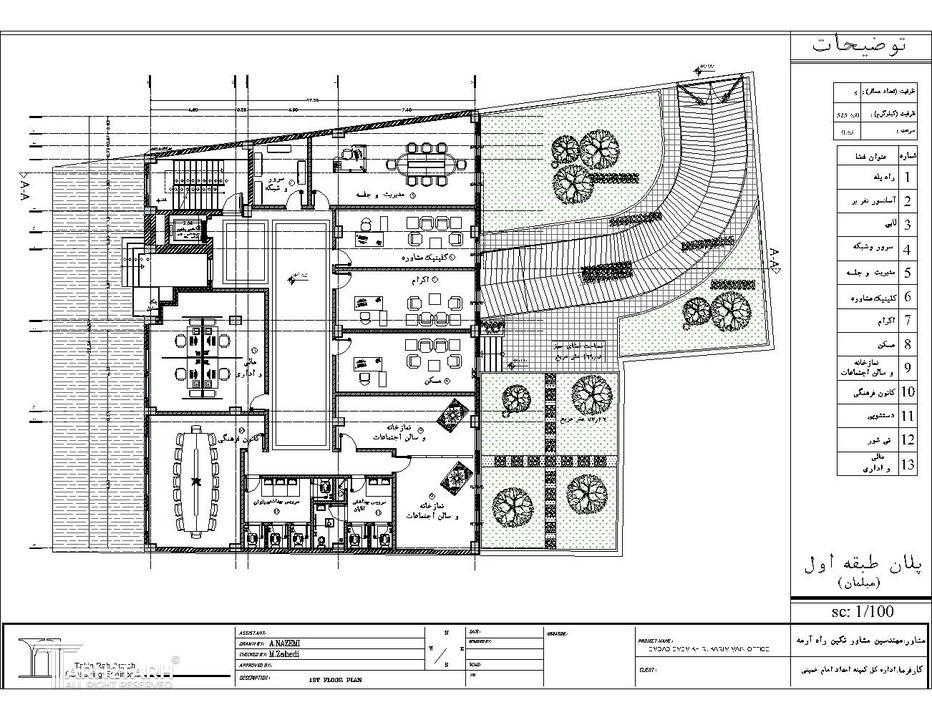
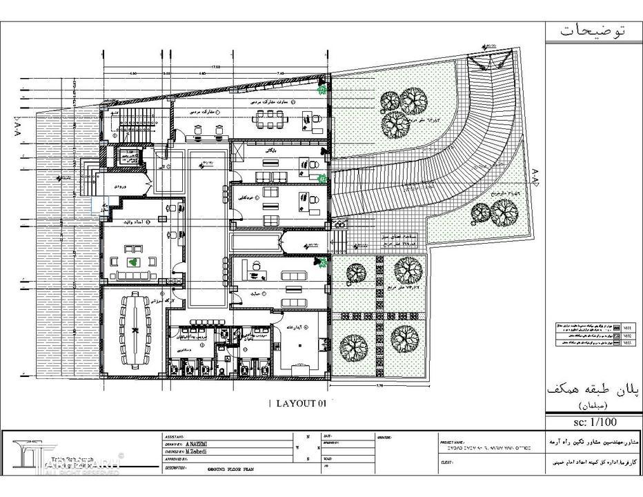
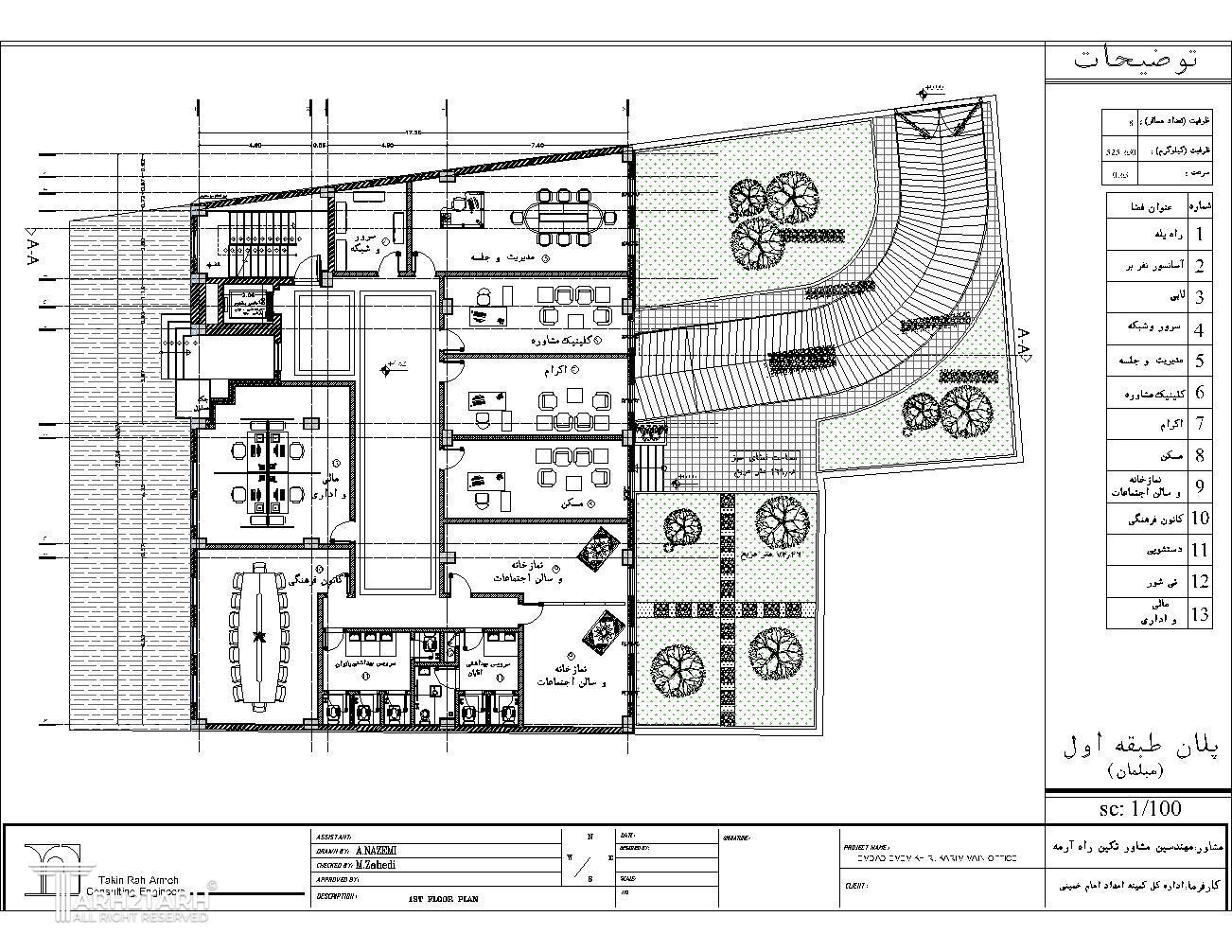
کاربری : ساختمان اداری
متراژ زمین : 830
متراژ زیربنا : 1249
سبک‌های طراحی: سبک بومی / منطقه‌ای

خدمات ارائه شده توسط طراح

خدمات طراحی و کانسپت
طراحی پلان (نقشه معماری) فاز 1
خدمات مشاوره و امکانسنجی
مشاوره و تجزیه و تحلیل فنی و اصلاحات نقشه‌ها برای تطبیق با ضوابط ارگانهای ذیربط
مشاوره در زمینه توسعه پایدار
خدمات اجرایی و نظارتی
موارد دیگر
خدمات فنی و مهندسی
تهیه آلبوم نمای شهرداری

توضیحات پروژه

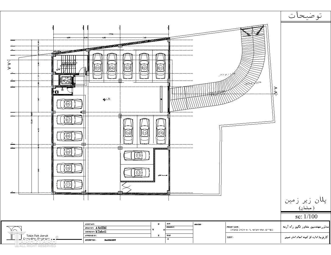
ساختمان اداری کمیته امداد امام خمینی ره شهرستان رباط کریم در بهار 1402 استارت خورد . ساختمان در 3 طبقه و با کاربری اداری میباشد. رویکرد پروژه صرفه جویی در مصرف انرژی و ایجاد فضای حمایتگرانه و ملموس بوده است.

موقعیت مکانی پروژه

نظرات
پیشنهاد و بازخورد