تهران
1401
0

اطلاعات پروژه

نقش : سرپرست تیم طراحی
نوع پروژه : طرح اجرایی
وضعیت : اجرا شده
کاربری : ساختمان مسکونی
متراژ زمین : 270
متراژ زیربنا : 900
سبک‌های طراحی: سبک بومی / منطقه‌ای

خدمات ارائه شده توسط طراح

خدمات طراحی و کانسپت
طراحی کانسپت (معماری)
طراحی نقشه فاز دو معماری
طراحی پلان (نقشه معماری) فاز 1
طراحی نما
خدمات مشاوره و امکانسنجی
مشاوره تحلیل سایت پروژه
مشاوره فاز صفر و امکان‌سنجی پروژه
خدمات اجرایی و نظارتی
نظارت عالیه بر اجرا
مدیریت پیمان (پیمانکاری کلی پروژه)
خدمات فنی و مهندسی
اخذ تاییدیه نقشه پلان
اخذ تاییدیه نما
تهیه نقشه فاز دو شهرداری
تهیه نقشه فاز دو نظام مهندسی
انجام تغییرات نقشه معماری
ارائه برگه تعهد تهیه نقشه سازه
ارائه برگه تعهد تهیه نقشه تاسیسات مکانیکی
ارائه برگه تعهد تهیه نقشه تاسیسات الکتریکی
تهیه دفترچه محاسبات
کنترل و اصلاح نقشه‌های معماری، سازه و ...
تهیه نقشه‌های اجرایی پروژه برای دریافت مجوزهای لازم (شهرداری، نظام مهندسی و …)
خدمات دیگر
طراحی و ساخت ماکت

توضیحات پروژه

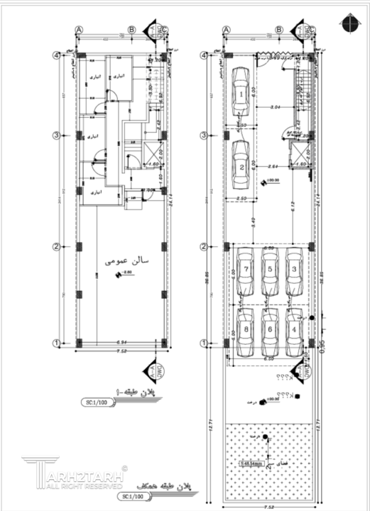
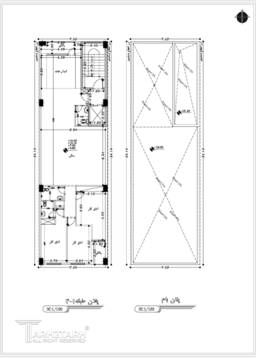
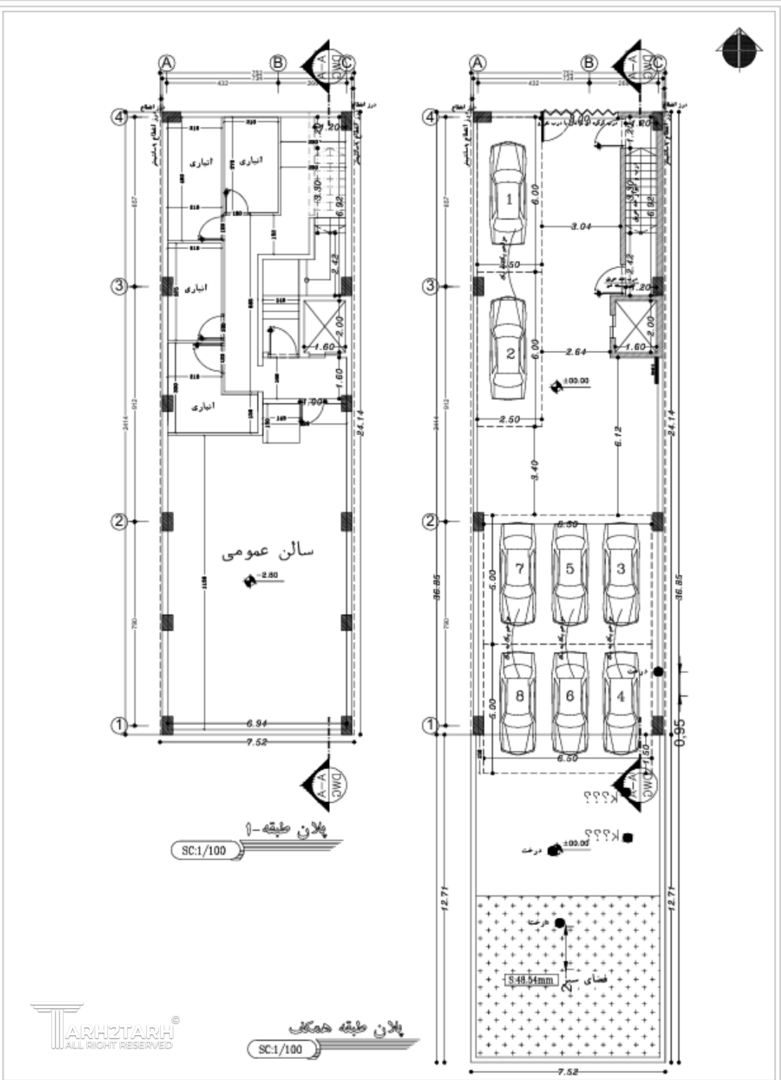
پروژه رشتچی طراحی و اجرای چهارطبقه تک واحدی با تامین چهارواحد پارکینگ تمرکز بر تامین پارکینگ و نورگیری مناسب، طراحی داخلی بهینه و پیگیری صفرتا صد پروژه

موقعیت مکانی پروژه

نظرات
پیشنهاد و بازخورد