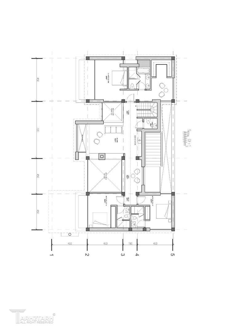
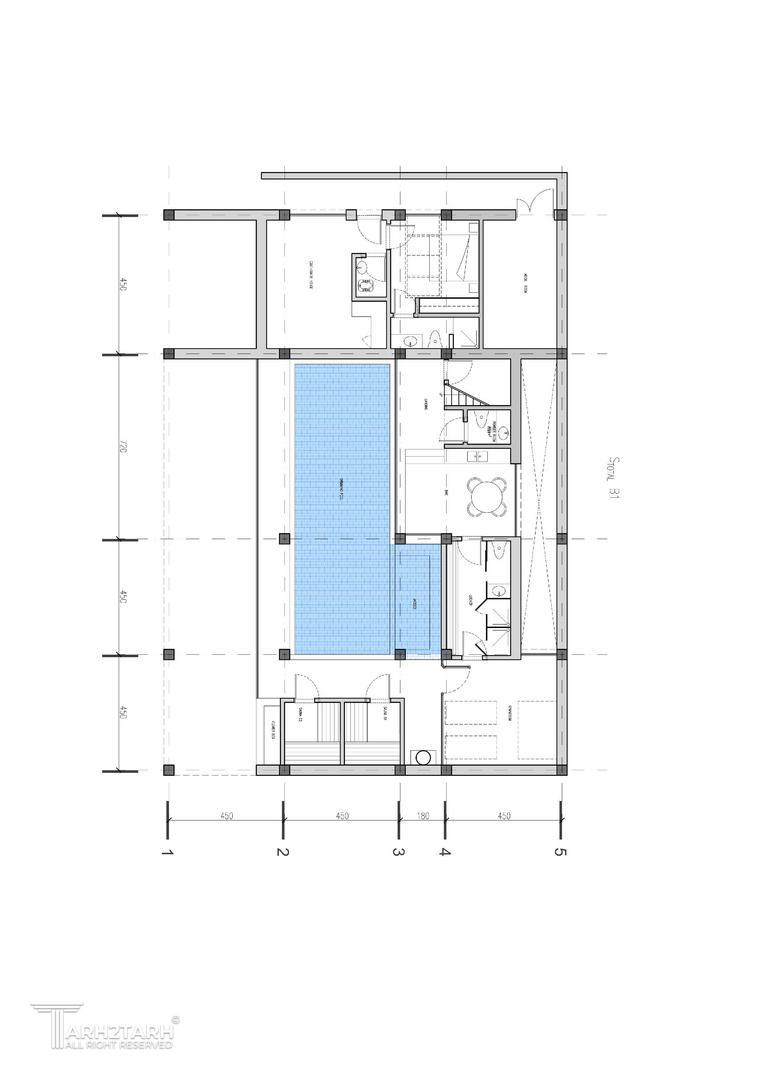
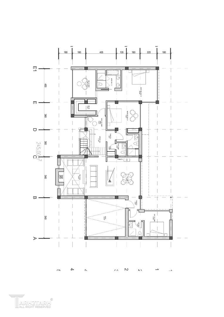
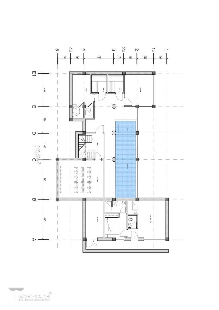
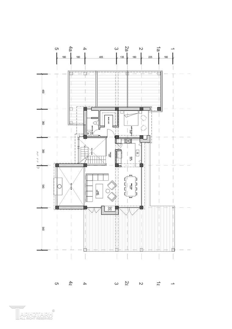
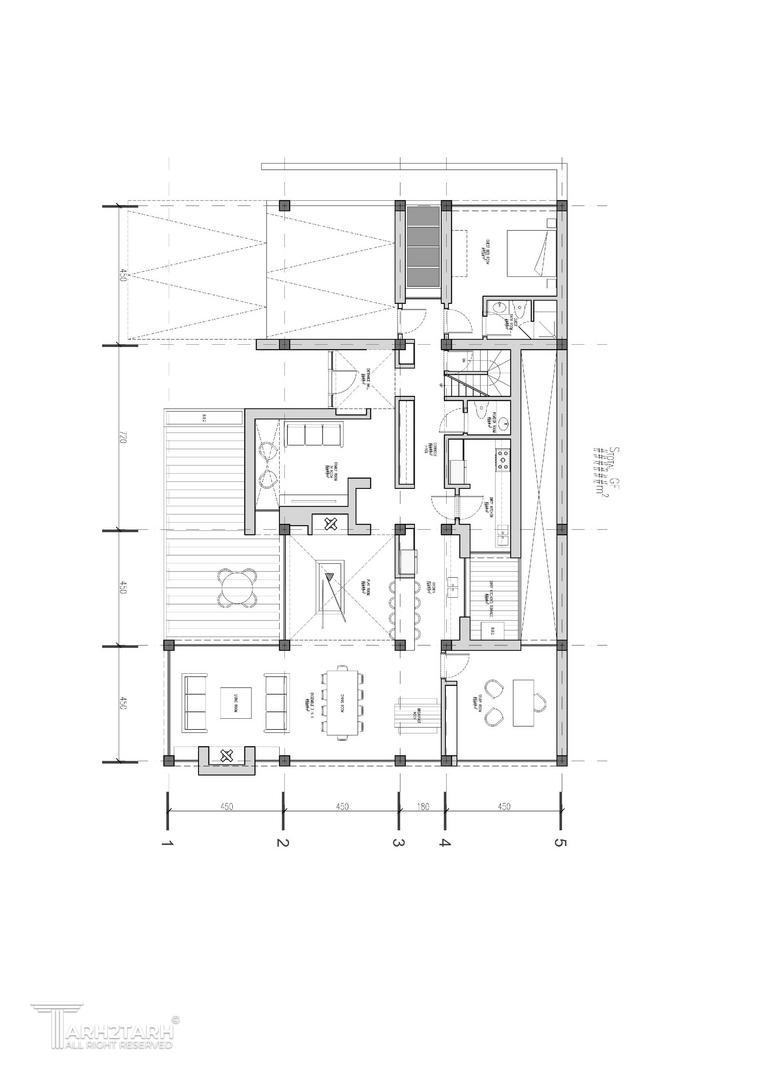
مسابقه پروژه طراحی شهرک ویلایی بام مشا

0

اطلاعات پروژه

Alidad Pirnazar

نوع مسابقه: طراحی ویلا
سال انجام پروژه : 1399
نقش: طراح
موقعیت : مشا
متراژ زیربنا : 7801
مساحت زمین : 3000
کارفرما : حیدری

موقعیت مکانی پروژه

پیشنهاد و بازخورد