مسابقه طراحی پلان و نما پروژه گلستان شمالی

0

اطلاعات پروژه

گروه معماری آرکسل

نوع مسابقه: طراحی مسکونی
سال انجام پروژه : 1401
نقش: طراح
موقعیت : تهران
متراژ زیربنا : 11550
مساحت زمین : 1000
کارفرما : حسین اعلایی

خدمات ارائه شده توسط طراح

خدمات طراحی و کانسپت
طراحی نورپردازی
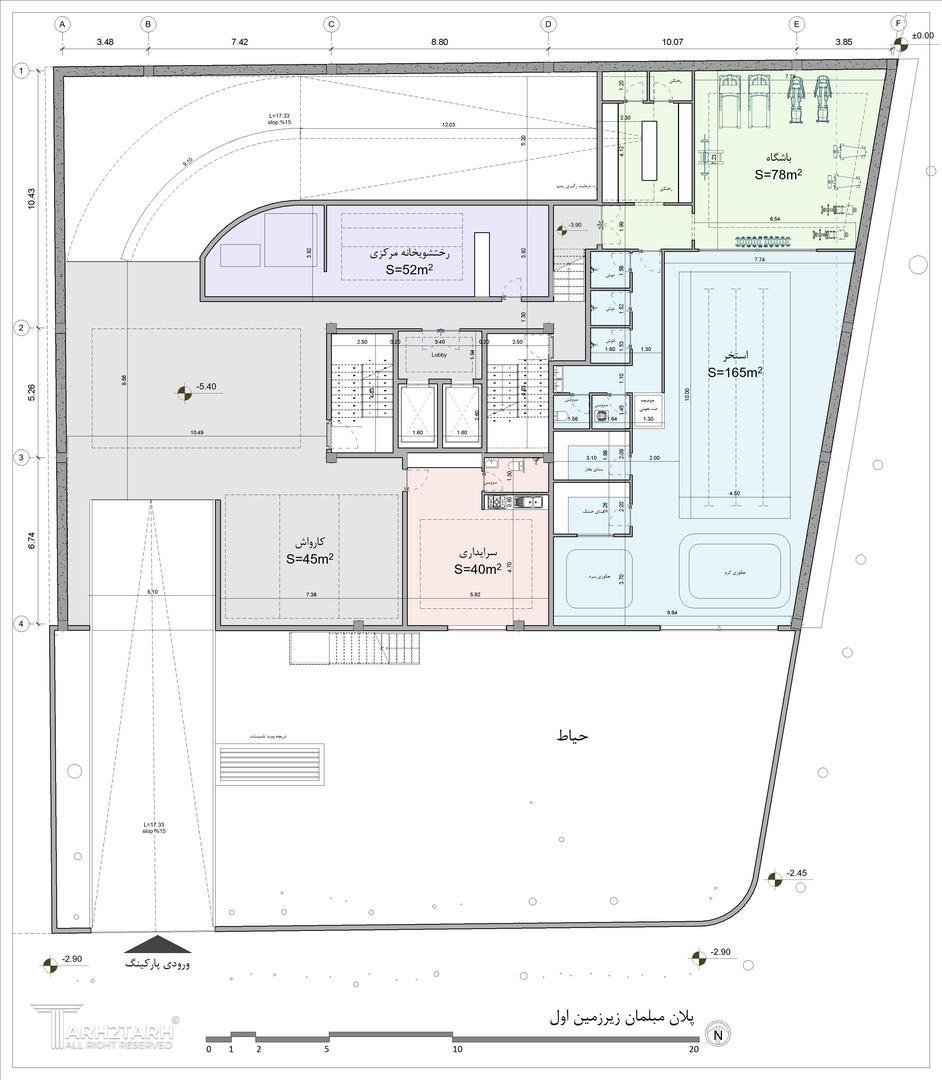
طراحی پلان (نقشه معماری) فاز 1
طراحی نما

موقعیت مکانی پروژه

پیشنهاد و بازخورد