مسابقه طراحی پلان و نما پروژه هدیش دو

0

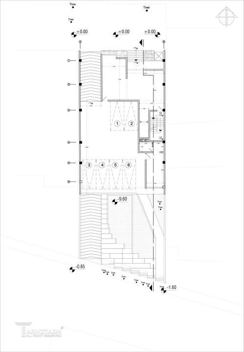
اطلاعات پروژه

پروژه سی تی زی

نوع مسابقه: طراحی مسکونی
سال انجام پروژه : 1403
نقش: طراح
موقعیت : تهران
متراژ زیربنا : 2600
مساحت زمین : 450
کارفرما : مهندس داوود ابراهیمیان

خدمات ارائه شده توسط طراح

خدمات طراحی و کانسپت
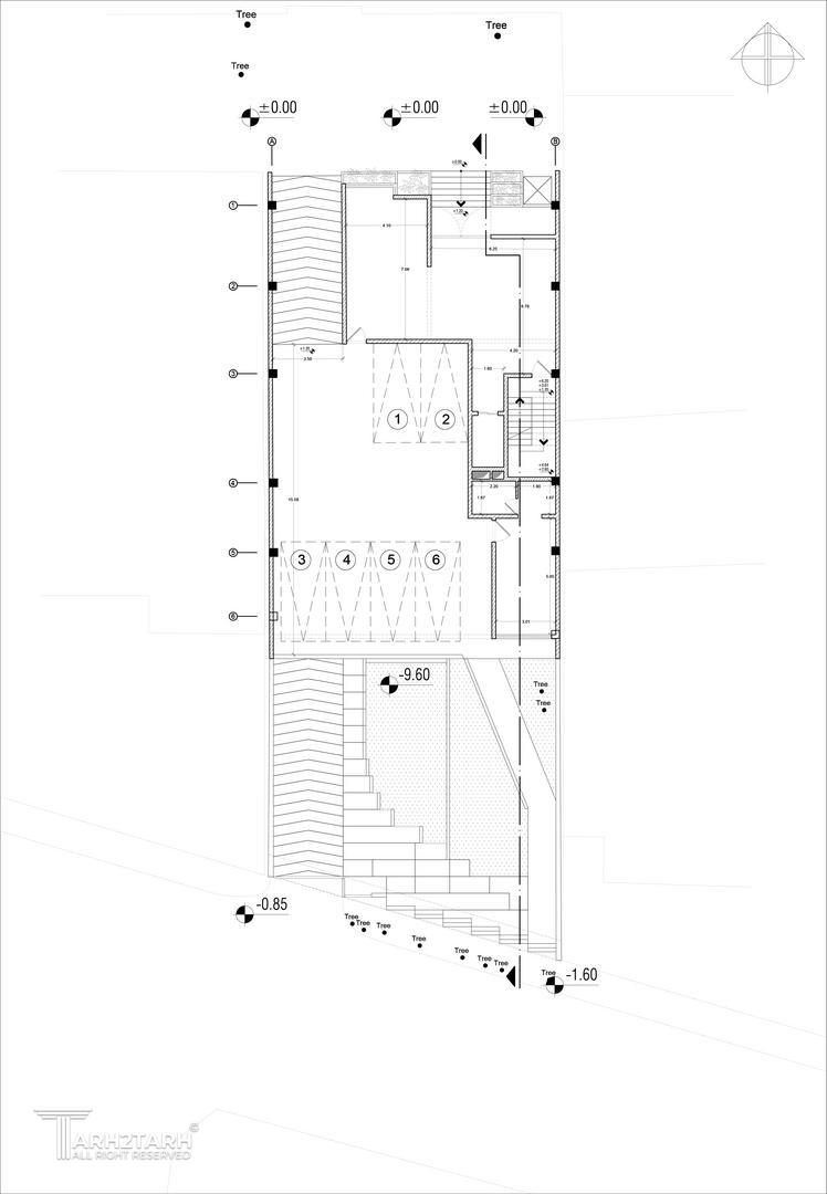
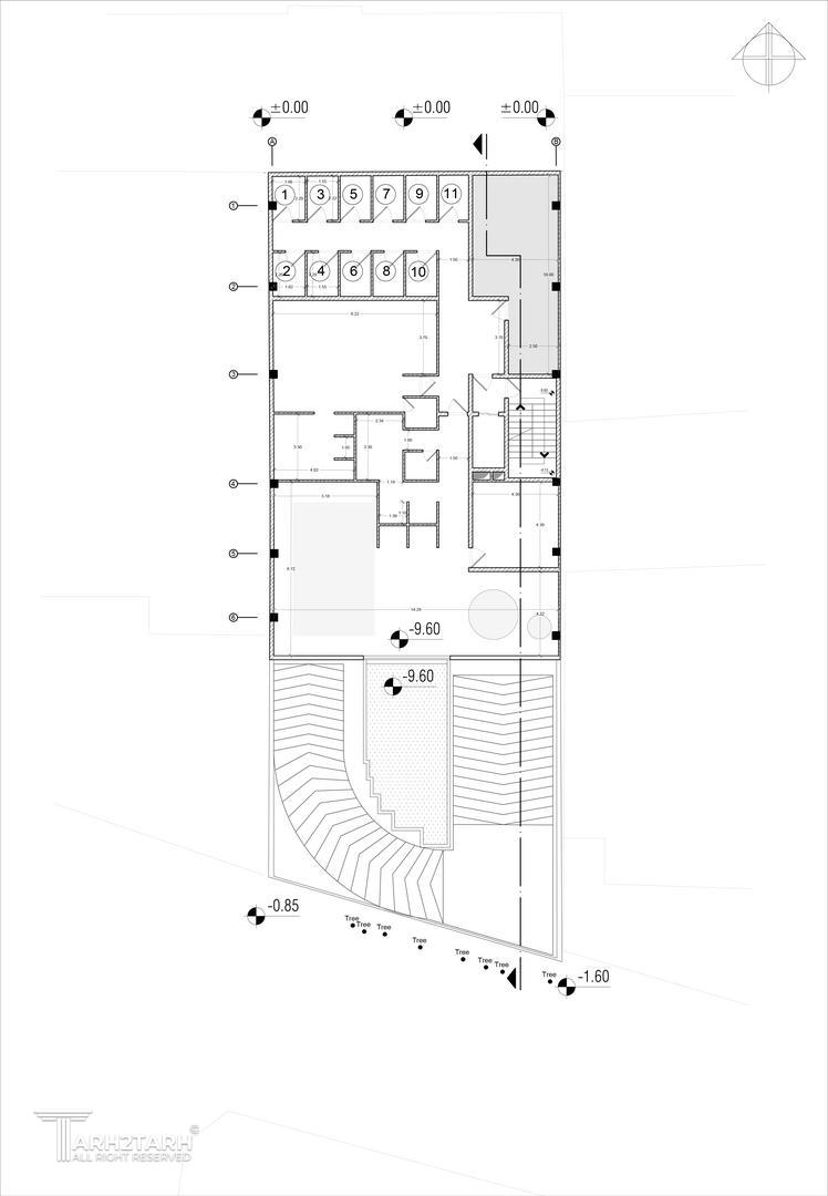
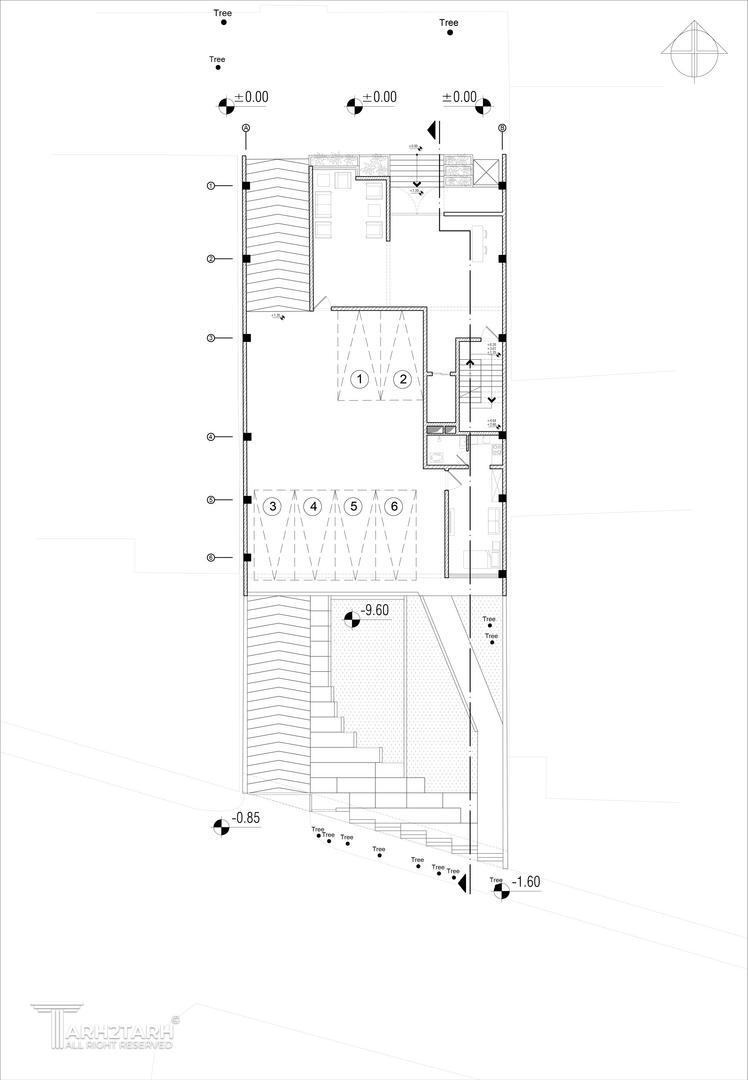
طراحی پلان (نقشه معماری) فاز 1
طراحی نما
طراحی نورپردازی

موقعیت مکانی پروژه

پیشنهاد و بازخورد