مسابقه طراحی پلان و نما پروژه حیم رویان

0

اطلاعات پروژه

شهریار خوانین زاده

نوع مسابقه: طراحی مسکونی
سال انجام پروژه : 1403
نقش: طراح
موقعیت : رویان
متراژ زیربنا : 6500
مساحت زمین : 470
کارفرما : سقائیان

خدمات ارائه شده توسط طراح

خدمات طراحی و کانسپت
طراحی منظر، فضای سبز، لند اسکیپ، روف گاردن و محوطه
طراحی نورپردازی
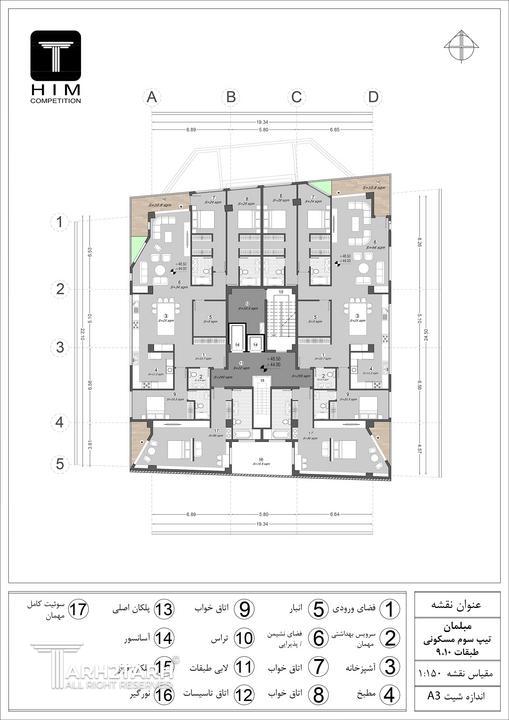
طراحی پلان (نقشه معماری) فاز 1
طراحی نما

موقعیت مکانی پروژه

پیشنهاد و بازخورد