مسابقه طراحی ویلا آوانگارد ایزدشهر

0

اطلاعات پروژه

گروه معماری مدرن ویلا

نوع مسابقه: طراحی ویلا
سال انجام پروژه : 1403
نقش: طراح
موقعیت : ایزد شهر
متراژ زیربنا : 540
مساحت زمین : 540
کارفرما : امید عسگری

خدمات ارائه شده توسط طراح

خدمات طراحی و کانسپت
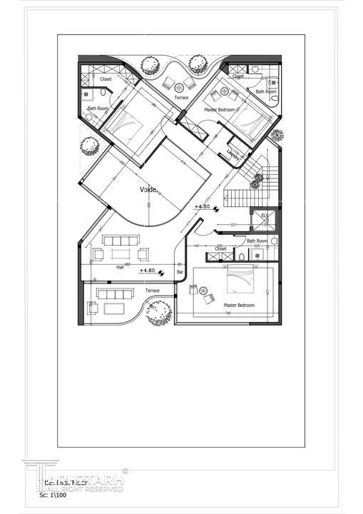
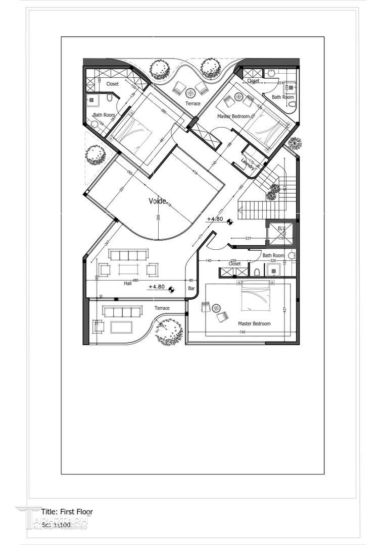
طراحی پلان (نقشه معماری) فاز 1
طراحی نما
طراحی داخلی
طراحی منظر، فضای سبز، لند اسکیپ، روف گاردن و محوطه
طراحی نورپردازی

موقعیت مکانی پروژه

پیشنهاد و بازخورد