نفر سوم مسابقه طراحی ویلا آوانگارد ایزدشهر

0

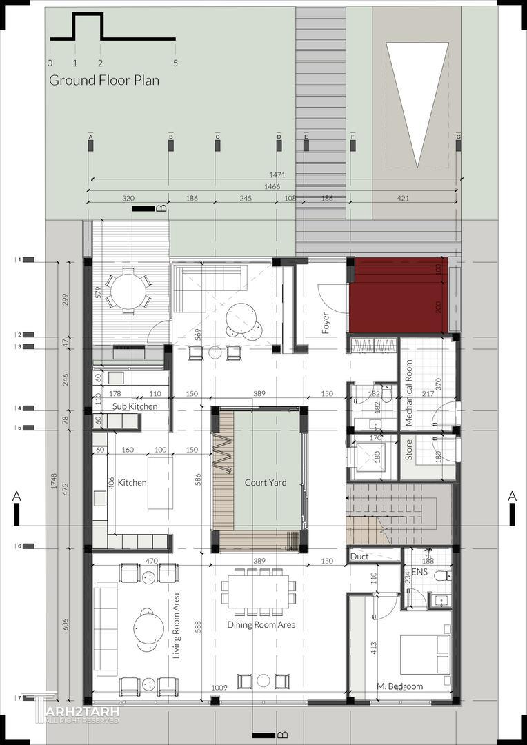
اطلاعات پروژه

ابراهیم ولی زاده مهسا قاسمی

نوع مسابقه: طراحی ویلا
سال انجام پروژه : 1403
نقش: طراح
موقعیت : ایزد شهر
متراژ زیربنا : 540
مساحت زمین : 540
کارفرما : امید عسگری

خدمات ارائه شده توسط طراح

خدمات طراحی و کانسپت
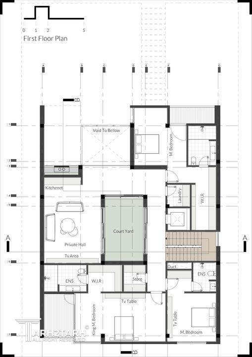
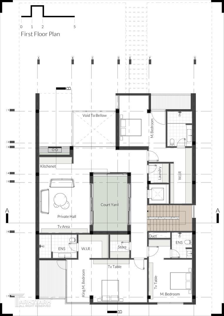
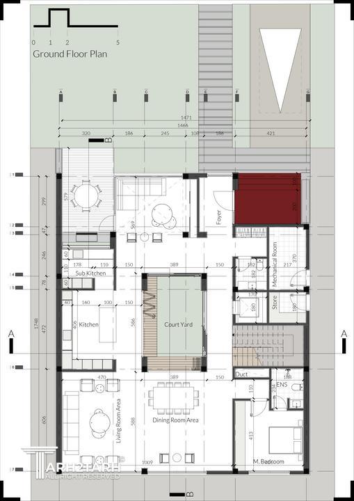
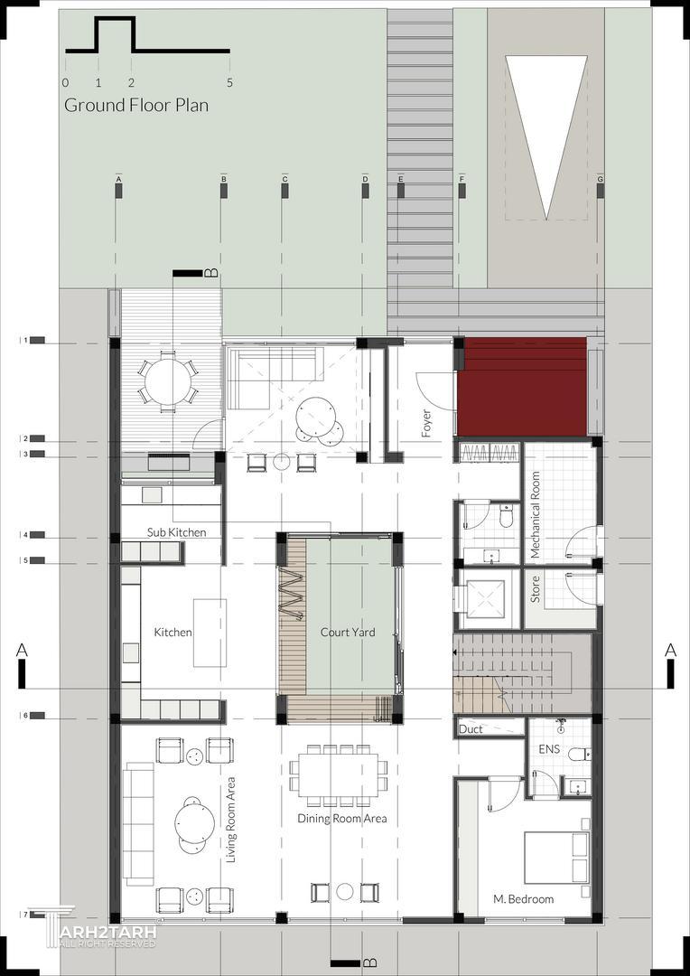
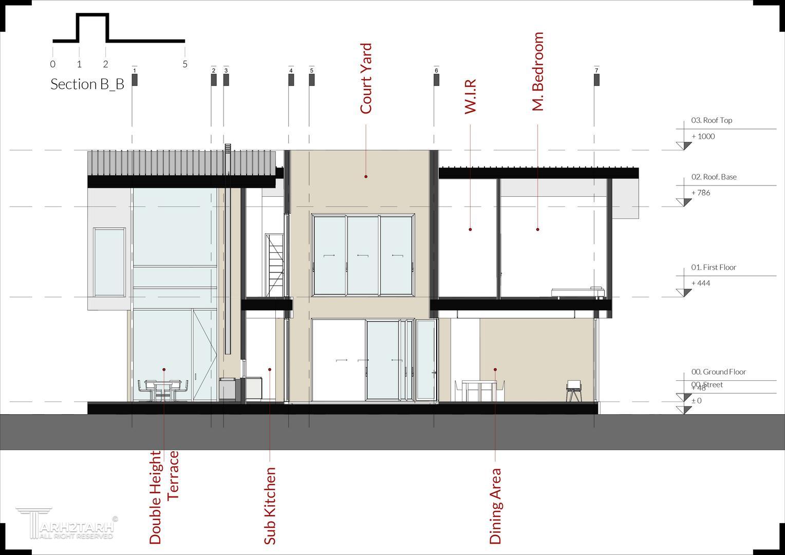
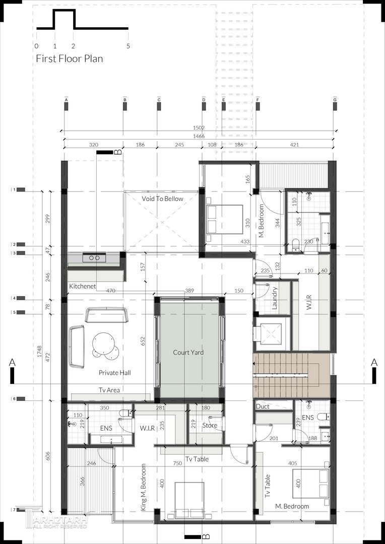
طراحی پلان (نقشه معماری) فاز 1
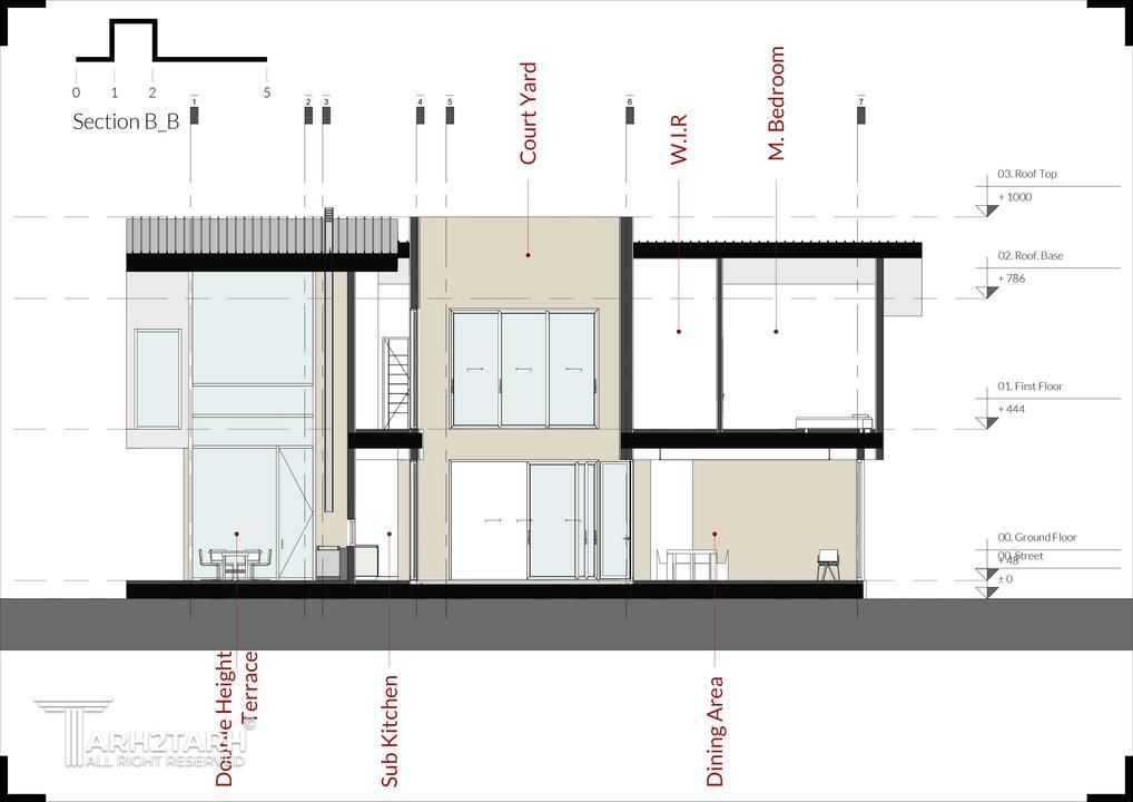
طراحی نما
طراحی داخلی
طراحی منظر، فضای سبز، لند اسکیپ، روف گاردن و محوطه
طراحی نورپردازی

موقعیت مکانی پروژه

پیشنهاد و بازخورد