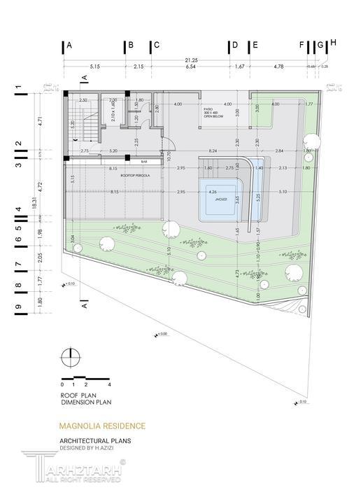
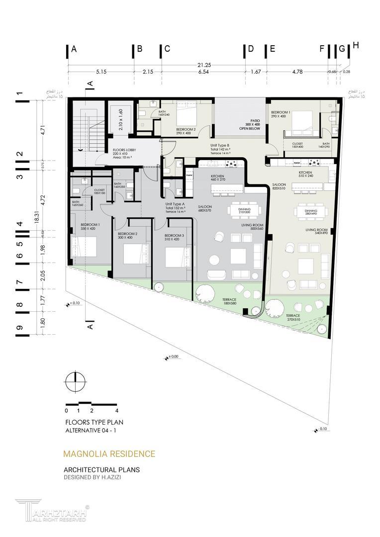
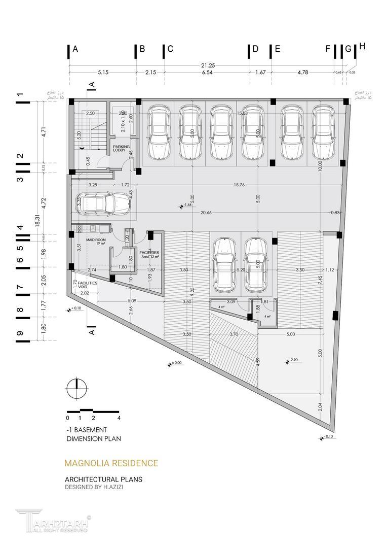
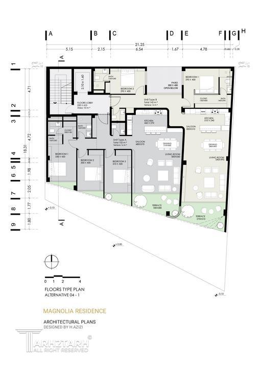
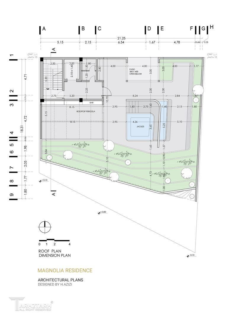
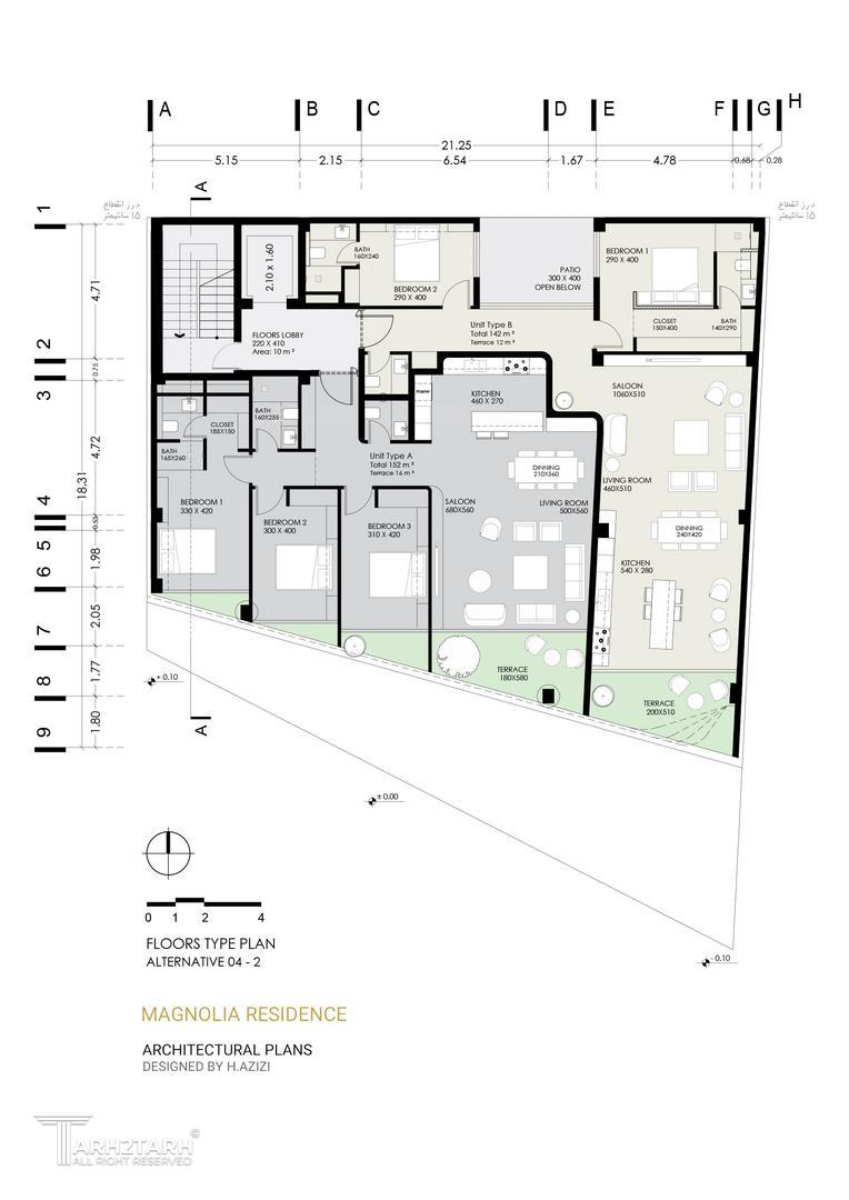
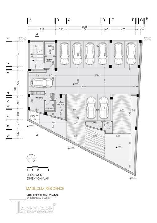
مسابقه طراحی ساختمان مسکونی مگنولیا (فرشته)

1

اطلاعات پروژه

محمد حسین عزیزی

نوع مسابقه: طراحی مسکونی
سال انجام پروژه : 1404
نقش: طراح
موقعیت : تهران
متراژ زیربنا : 3250
مساحت زمین : 435
کارفرما : رضا قدرت آبادی

خدمات ارائه شده توسط طراح

خدمات طراحی و کانسپت
طراحی منظر، فضای سبز، لند اسکیپ، روف گاردن و محوطه
طراحی کانسپت (معماری)
طراحی پلان (نقشه معماری) فاز 1
طراحی نما
طراحی داخلی

موقعیت مکانی پروژه

avatar
رضا قدرت آبادی
از زحمات مهندس عزیز بسیار متشکرم. طراحی جسور و قدرتمند نما کمتر مورد پذیرش ما بود و پلان نیاز به بازبینی دارد سپاس
3 ماه پیش
پیشنهاد و بازخورد