مسابقه طراحی ساختمان مسکونی مگنولیا (فرشته)

1

اطلاعات پروژه

دفتر معماری بدیع

نوع مسابقه: طراحی مسکونی
سال انجام پروژه : 1404
نقش: طراح
موقعیت : تهران
متراژ زیربنا : 3250
مساحت زمین : 435
کارفرما : رضا قدرت آبادی

خدمات ارائه شده توسط طراح

خدمات طراحی و کانسپت
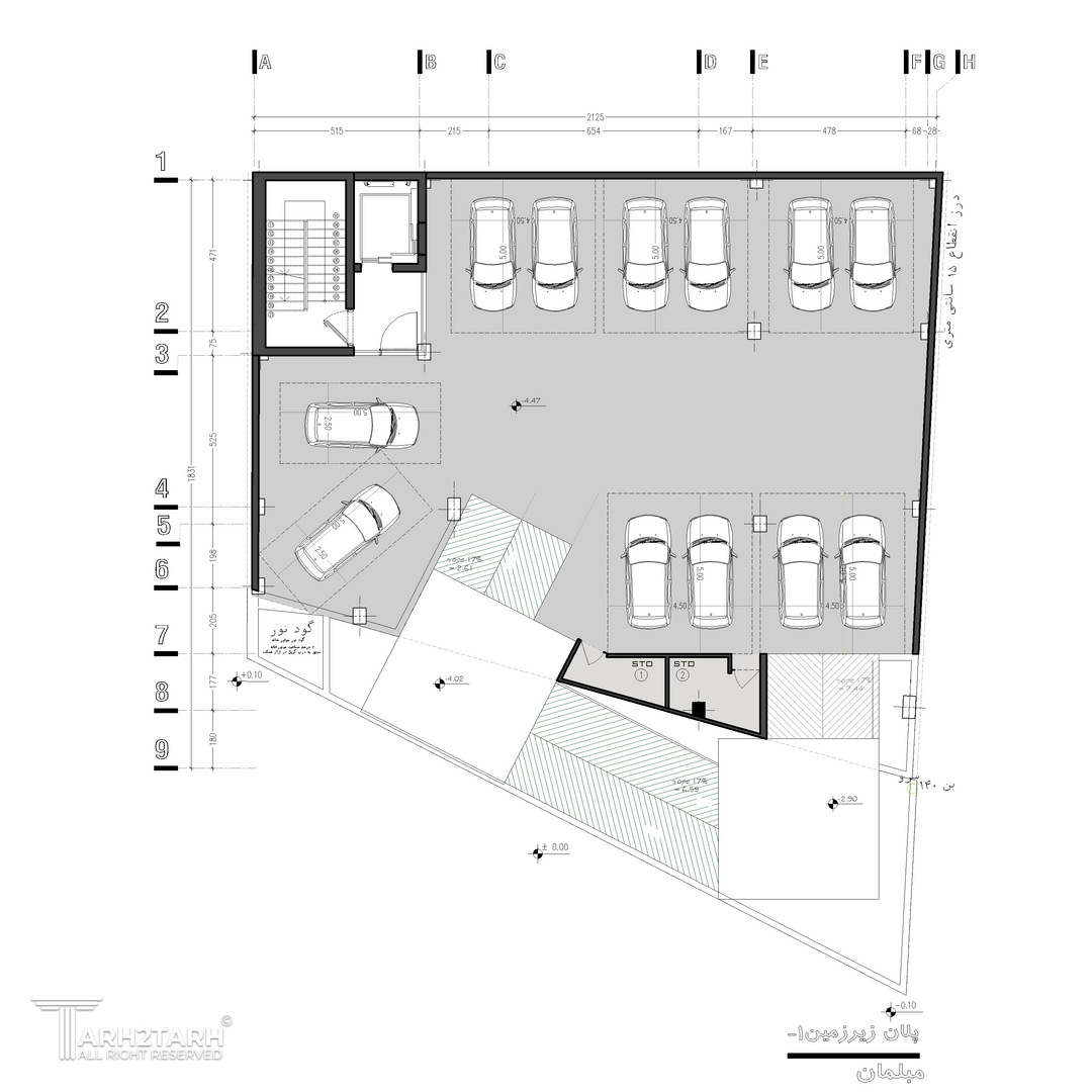
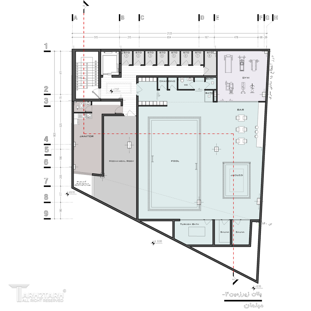
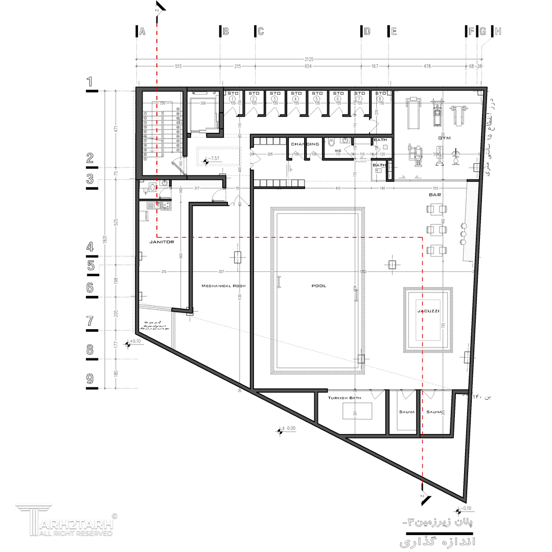
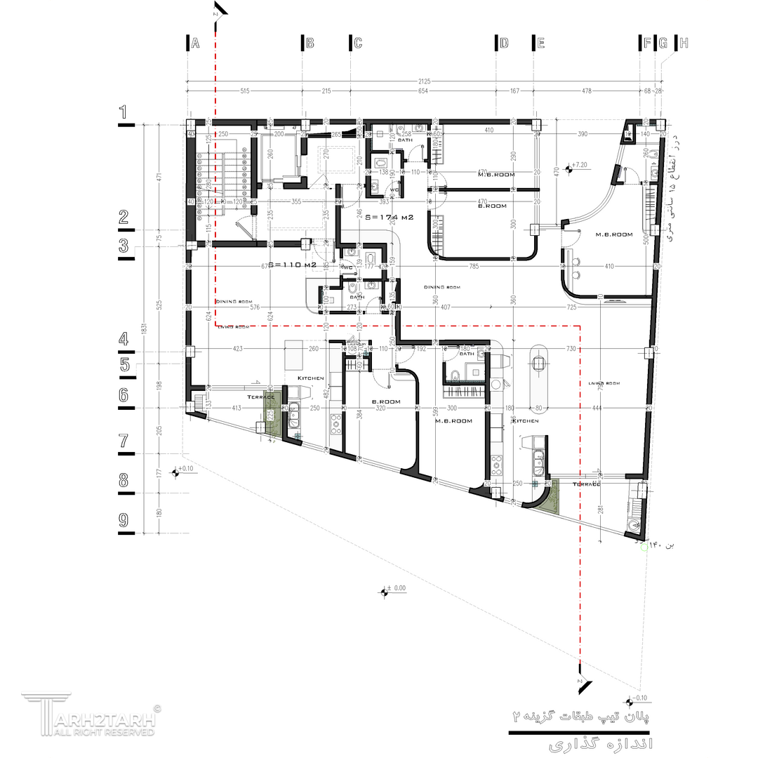
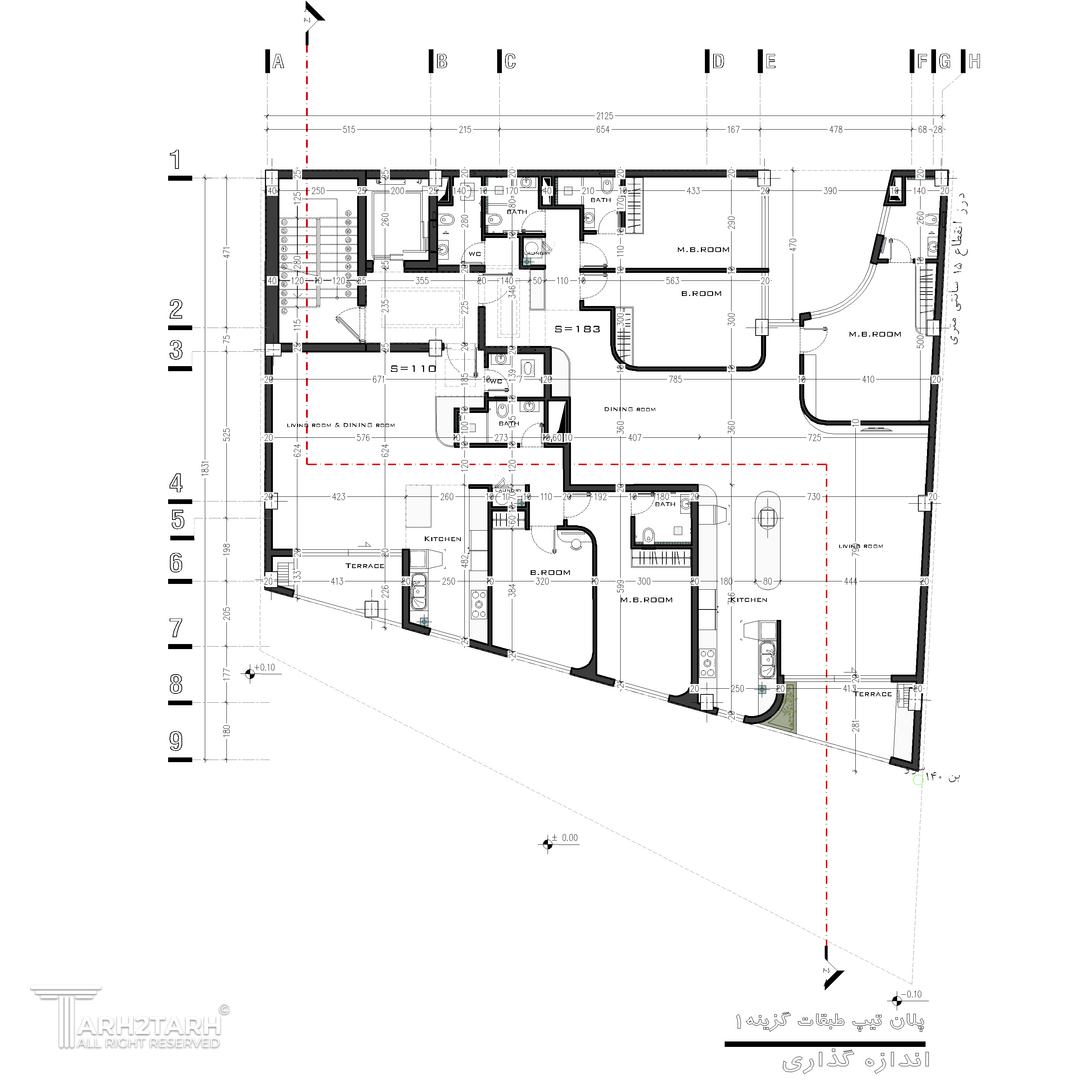
طراحی پلان (نقشه معماری) فاز 1
طراحی نما
طراحی داخلی
طراحی منظر، فضای سبز، لند اسکیپ، روف گاردن و محوطه
طراحی کانسپت (معماری)

موقعیت مکانی پروژه

avatar
رضا قدرت آبادی
ضمن تشکر از زحمات خانم مهندس بدیعی عزیز که طرحی بسیار خاص، جسورانه و زیبا طراحی کردند. طراحی پلان بصورت مهندسی شده ارائه شد. بنظرم با توجه به ضوابط شهرسازی، اجرای نورگیر ضلع شمال شرقی بصروت کرو باید مورد بررسی قرار گیرد.
2 ماه پیش
پیشنهاد و بازخورد