نفر دوم مسابقه طراحی ساختمان مسکونی مگنولیا (فرشته)

1

اطلاعات پروژه

استودیو بافت

نوع مسابقه: طراحی مسکونی
سال انجام پروژه : 1404
نقش: طراح
موقعیت : تهران
متراژ زیربنا : 3250
مساحت زمین : 435
کارفرما : رضا قدرت آبادی

خدمات ارائه شده توسط طراح

خدمات طراحی و کانسپت
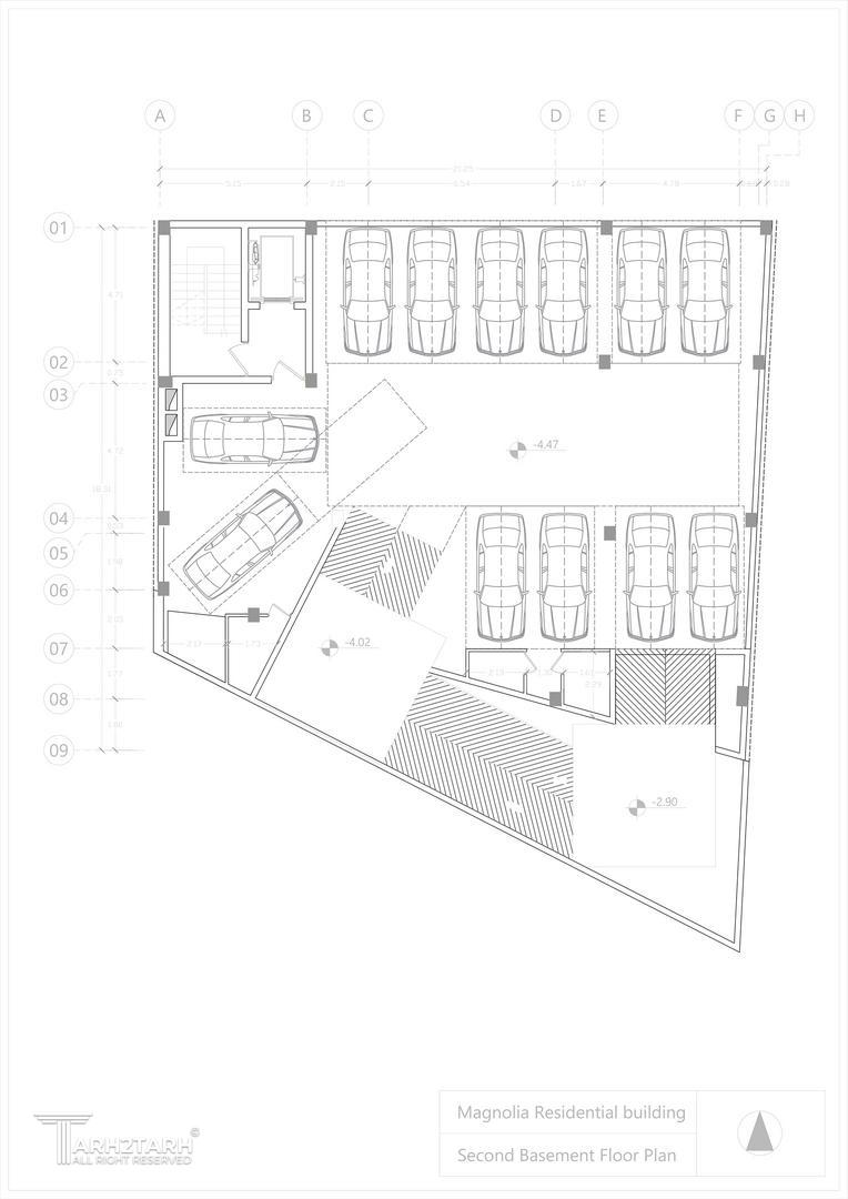
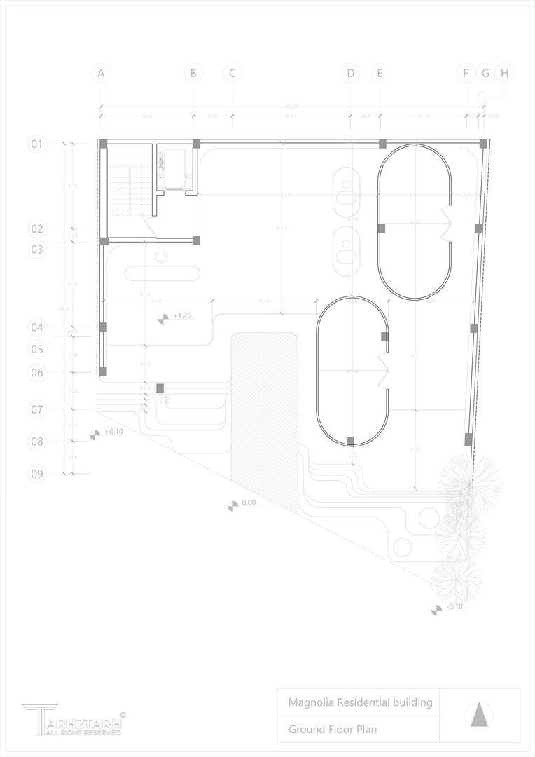
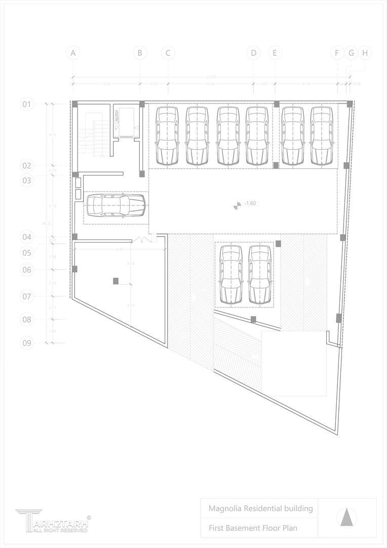
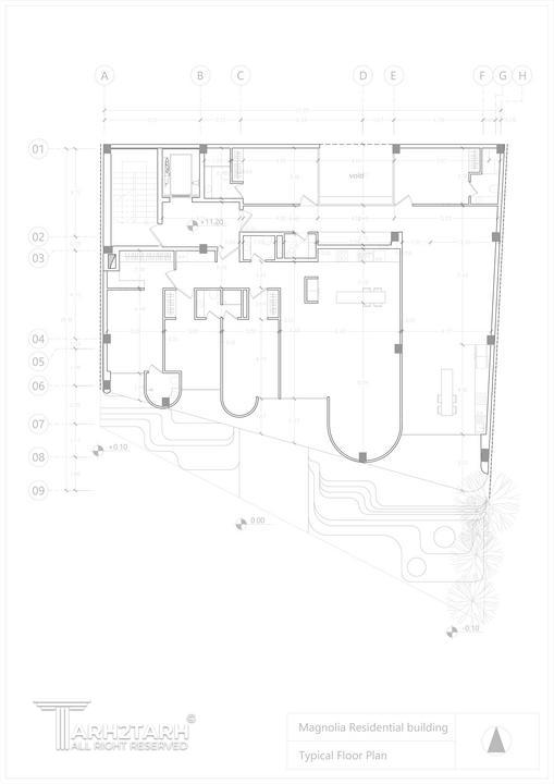
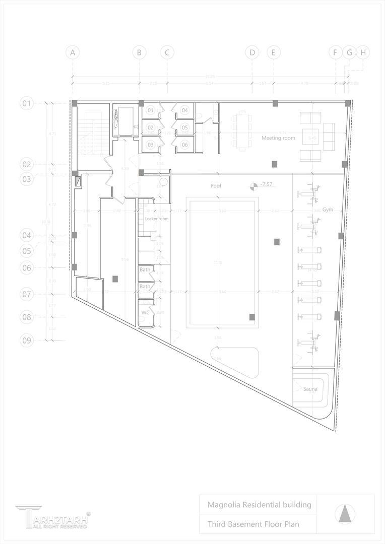
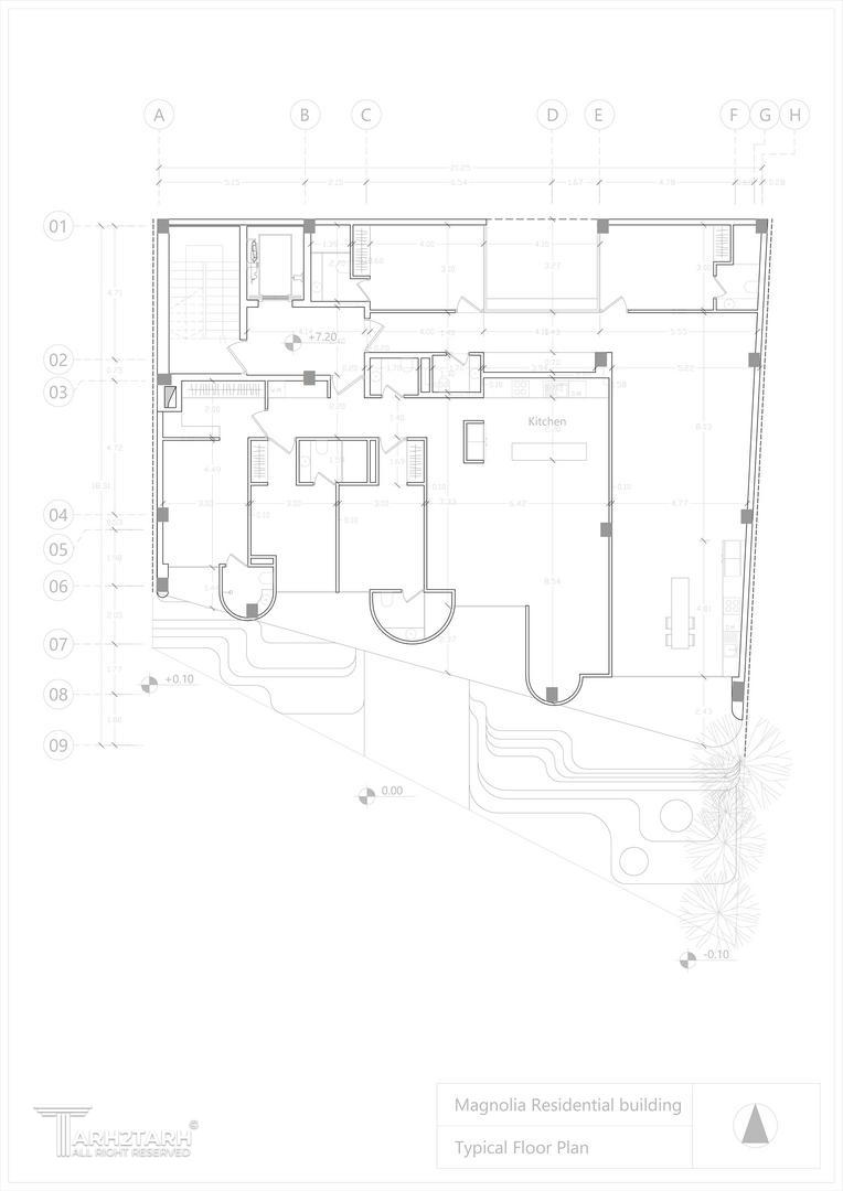
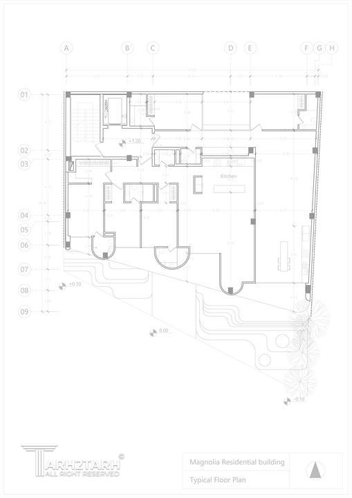
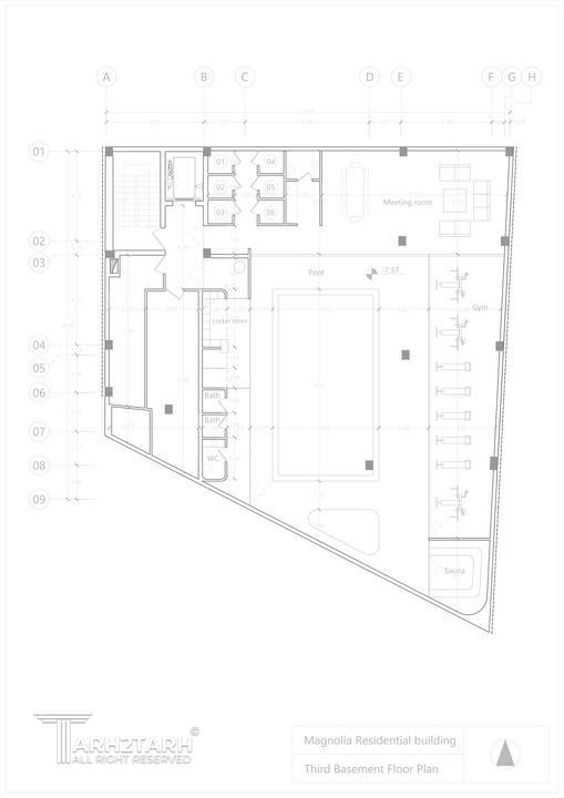
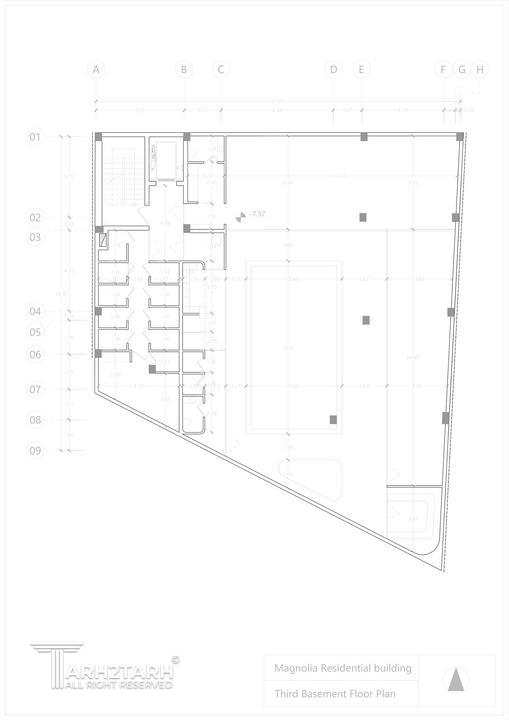
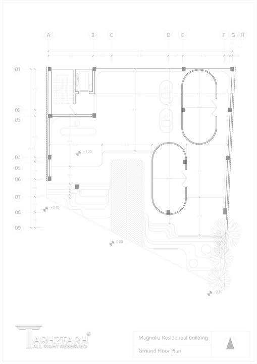
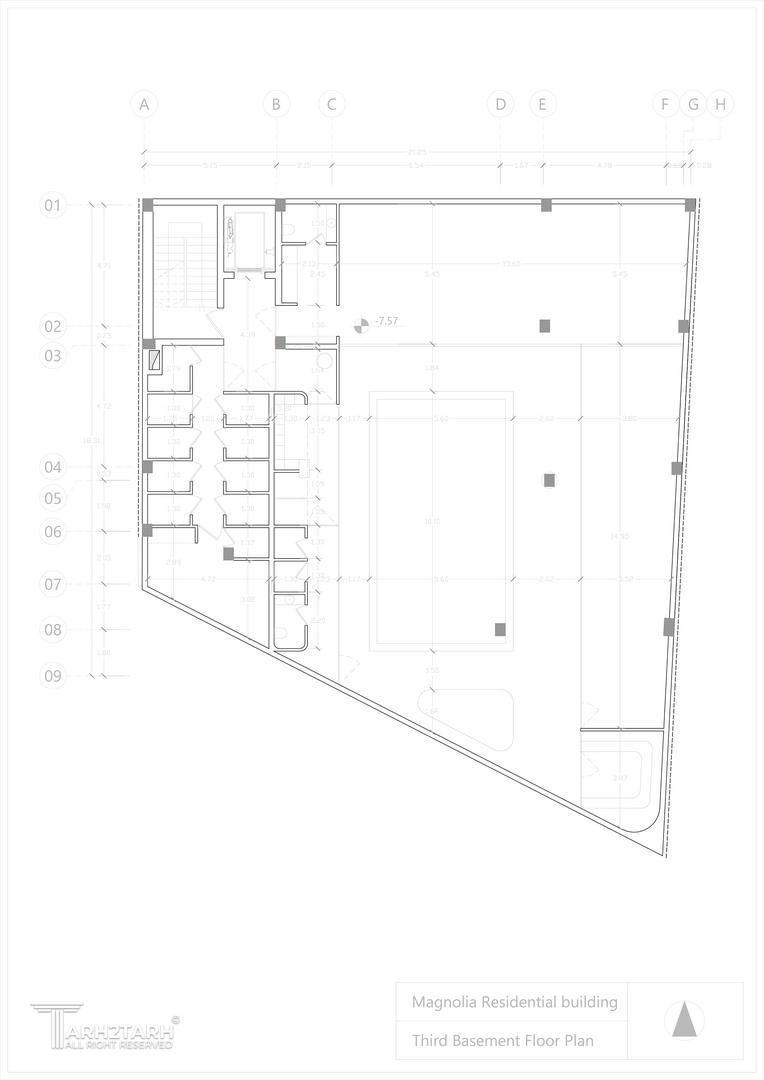
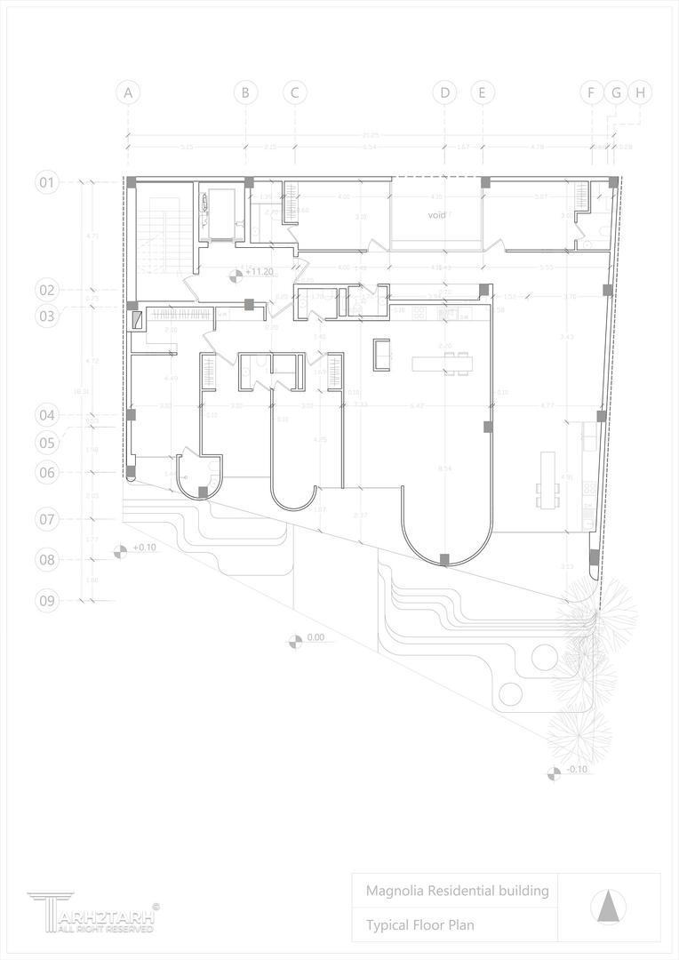
طراحی پلان (نقشه معماری) فاز 1
طراحی نما
طراحی داخلی
طراحی منظر، فضای سبز، لند اسکیپ، روف گاردن و محوطه
طراحی کانسپت (معماری)

موقعیت مکانی پروژه

avatar
رضا قدرت آبادی
ضمن تشکر از زحمات خانم مهندس عزیز که طرحی بسیار، بسیار زیبا ارائه دادند تنها نکته بنظرم عدم توجه کافی به قسمت فضای سبز در قسمت ورودی ساختان است
2 ماه پیش
پیشنهاد و بازخورد