مسابقه طراحی ساختمان مسکونی مهرقیطریه

0

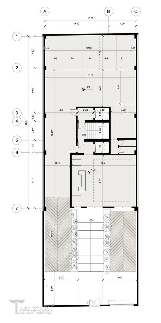
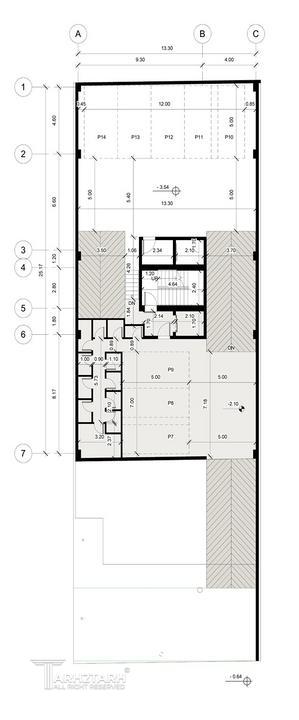
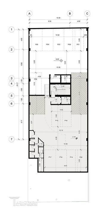
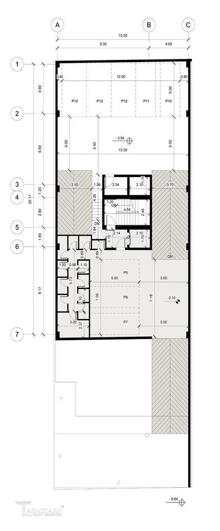
اطلاعات پروژه

دفترمعماری چکاد

نوع مسابقه: طراحی مسکونی
سال انجام پروژه : 1404
نقش: طراح
موقعیت : تهران
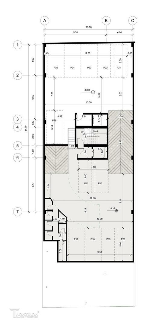
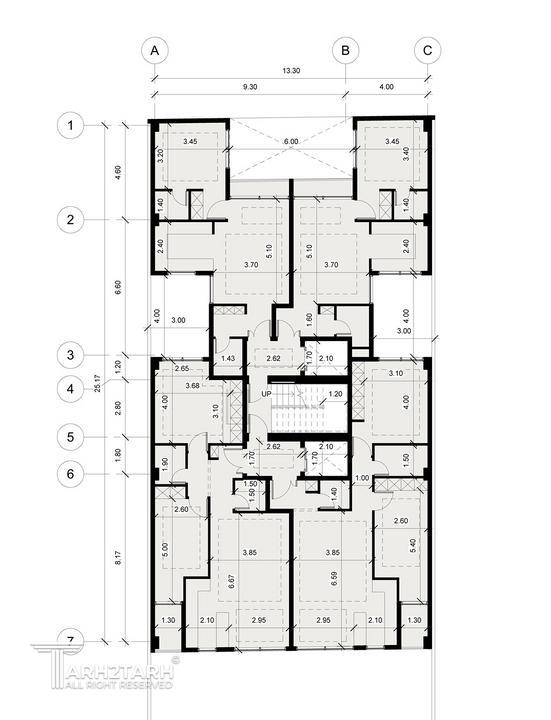
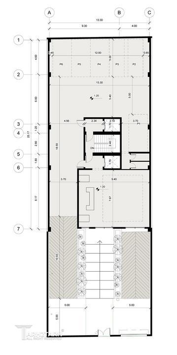
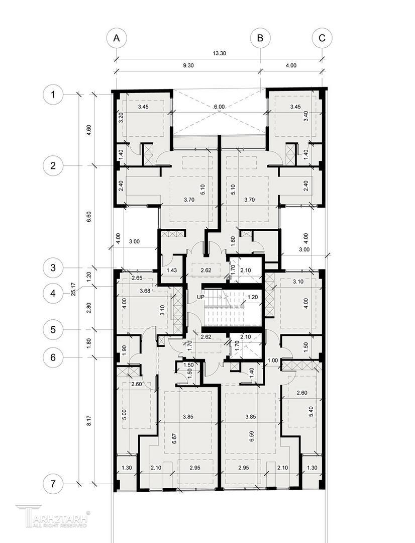
متراژ زیربنا : 3000
مساحت زمین : 570
کارفرما : جعفر کریمی

خدمات ارائه شده توسط طراح

خدمات طراحی و کانسپت
طراحی نما
طراحی منظر، فضای سبز، لند اسکیپ، روف گاردن و محوطه
طراحی نورپردازی
طراحی کانسپت (معماری)

موقعیت مکانی پروژه

پیشنهاد و بازخورد