مسابقه طراحی ساختمان مسکونی MG

0

اطلاعات پروژه

محمود معماری

نوع مسابقه: طراحی مسکونی
سال انجام پروژه : 1401
نقش: طراح
موقعیت : تهران
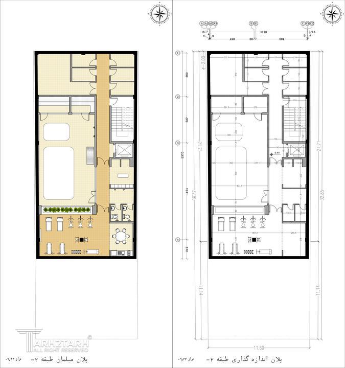
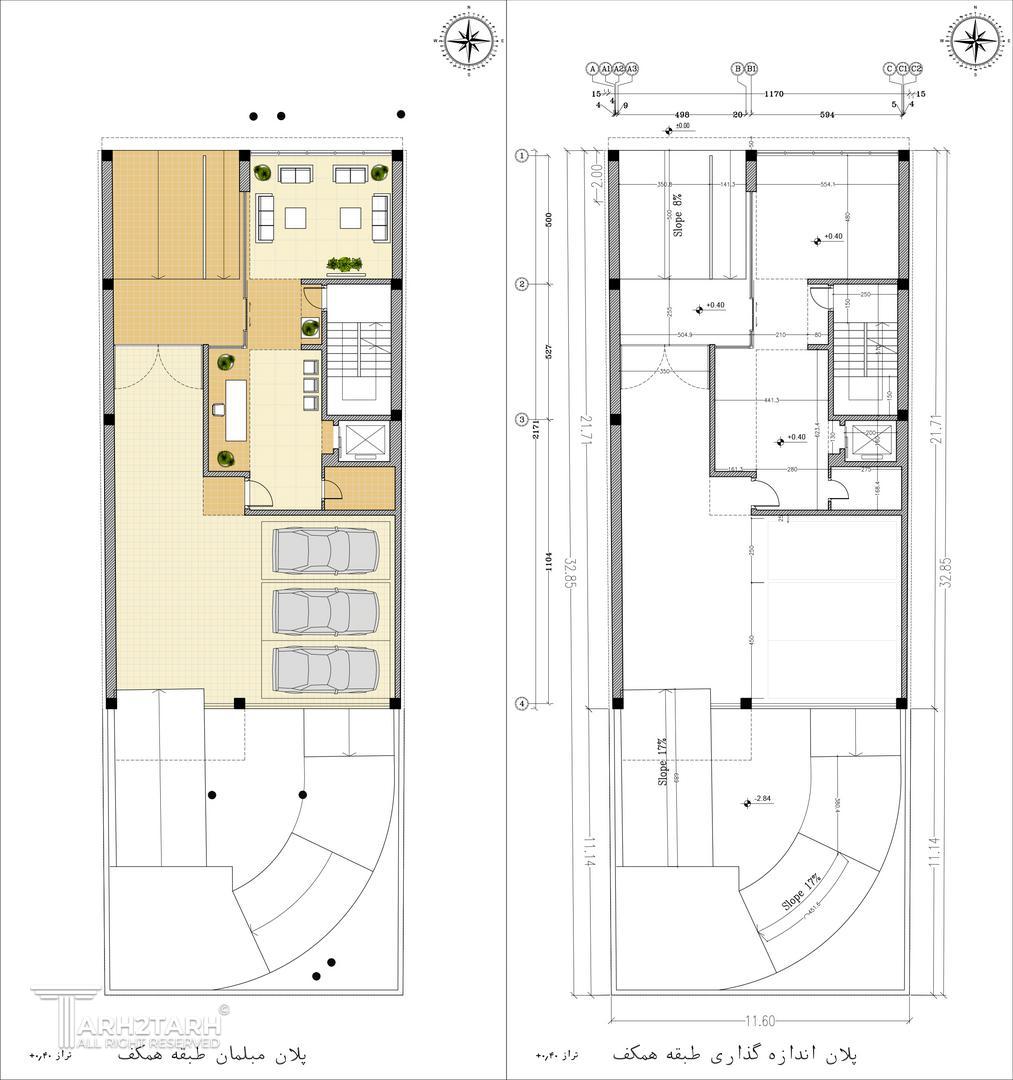
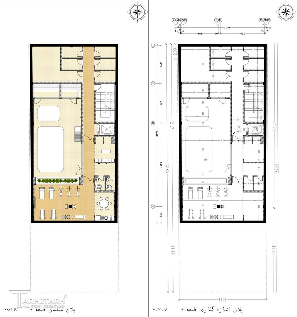
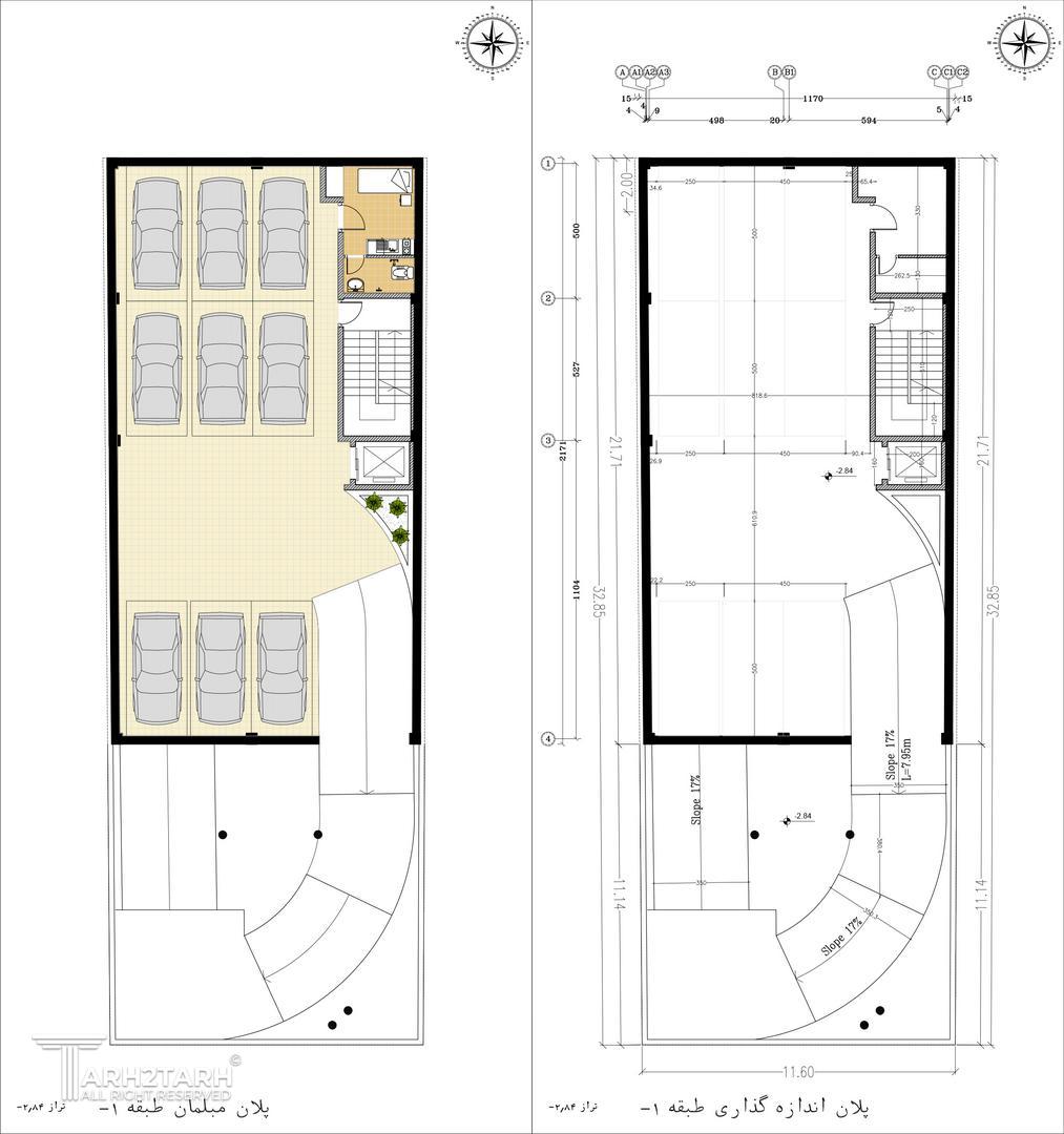
متراژ زیربنا : 2071
مساحت زمین : 400
کارفرما : علی گرایلی

خدمات ارائه شده توسط طراح

خدمات طراحی و کانسپت
طراحی نورپردازی
طراحی پلان (نقشه معماری) فاز 1
طراحی نما

موقعیت مکانی پروژه

پیشنهاد و بازخورد