مسابقه طراحی ساختمان مسکونی متقیان

0

اطلاعات پروژه

Mohammad Amin bahramian- hanieh ghasemnezhad

نوع مسابقه: طراحی مسکونی
سال انجام پروژه : 1403
نقش: طراح
موقعیت : تهران
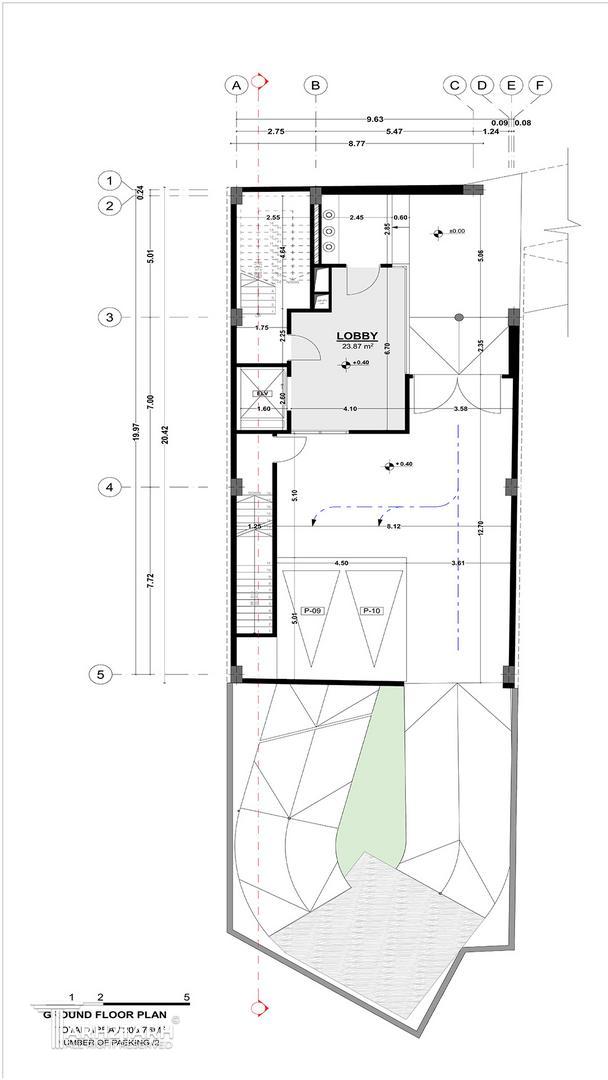
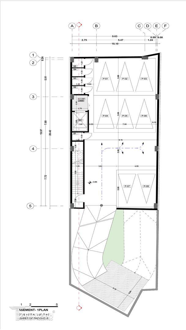
متراژ زیربنا : 1700
مساحت زمین : 350
کارفرما : طرح تو طرح

خدمات ارائه شده توسط طراح

خدمات طراحی و کانسپت
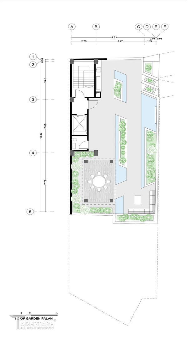
طراحی منظر، فضای سبز، لند اسکیپ، روف گاردن و محوطه
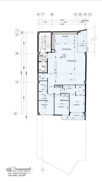
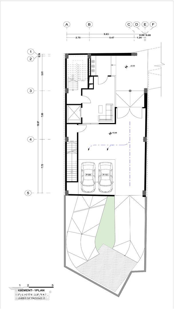
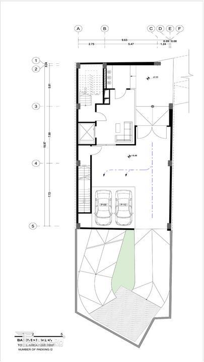
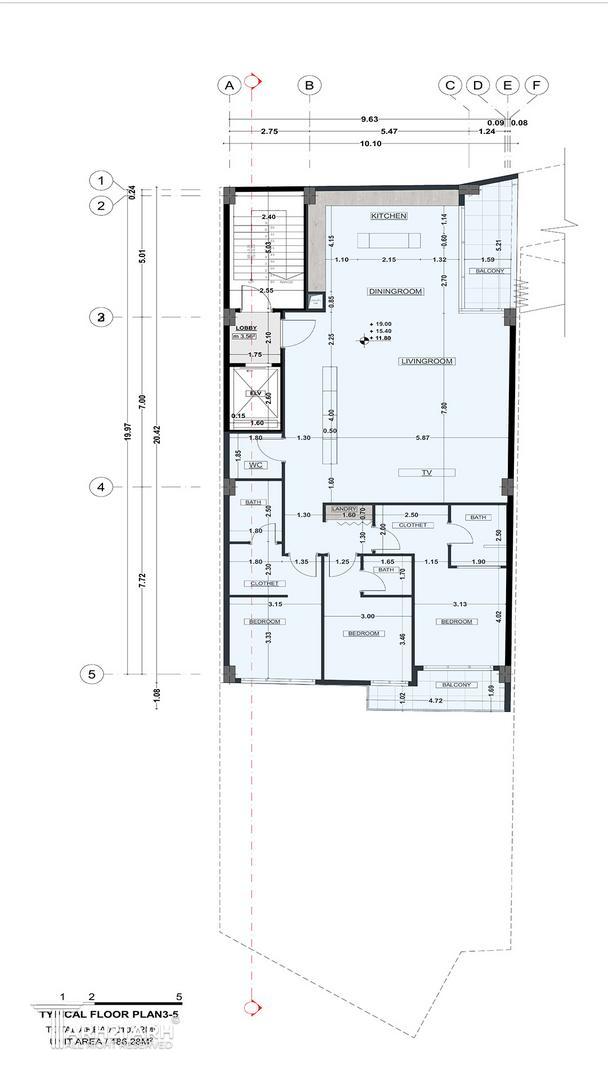
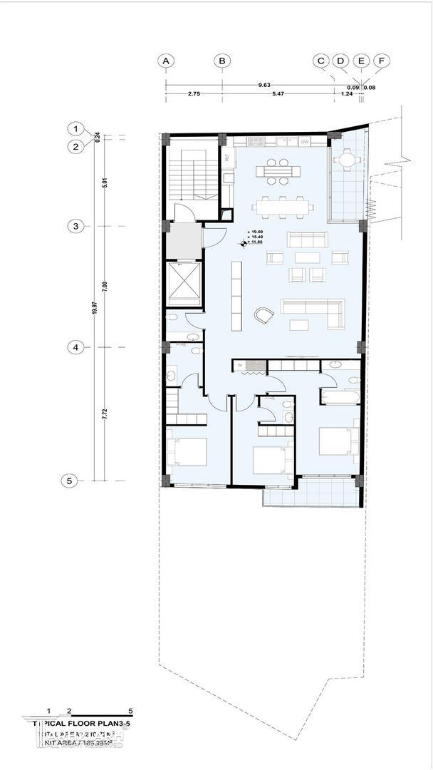
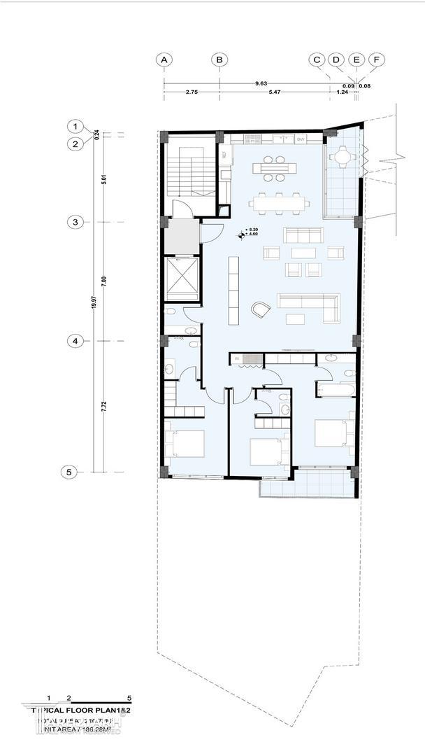
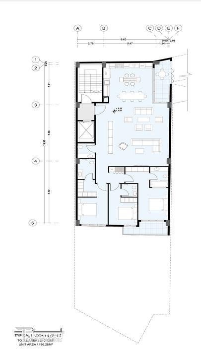
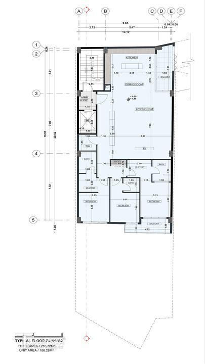
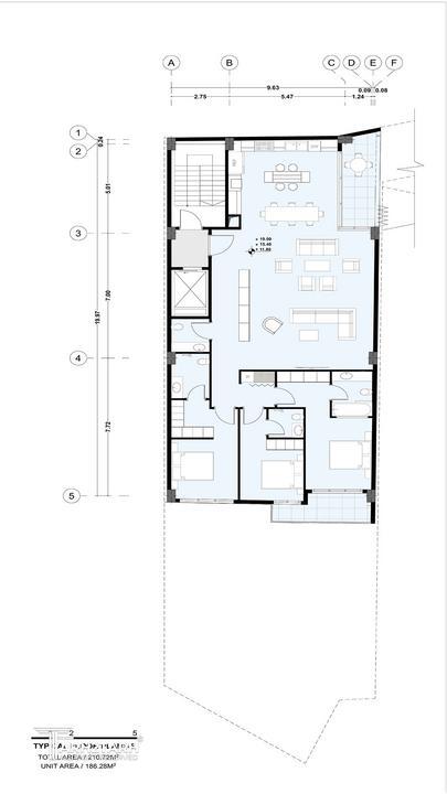
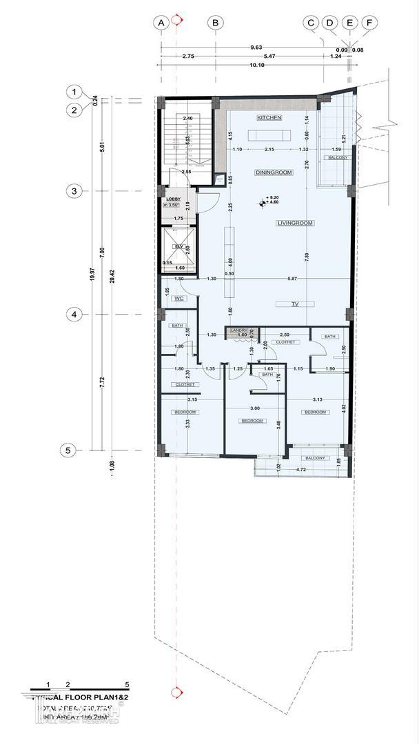
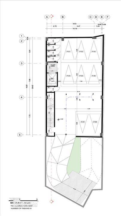
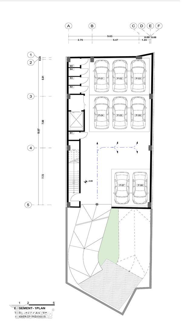
طراحی پلان (نقشه معماری) فاز 1
طراحی نما
طراحی داخلی

موقعیت مکانی پروژه

پیشنهاد و بازخورد