مسابقه طراحی ساختمان مسکونی نوتاش

1

اطلاعات پروژه

FOR ARCHITECTURE OFFICE

نوع مسابقه: طراحی مسکونی
سال انجام پروژه : 1404
نقش: طراح
موقعیت : تهران
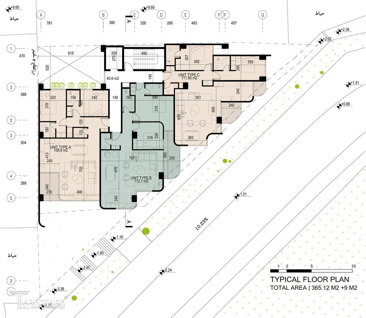
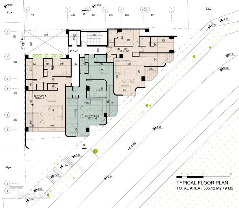
متراژ زیربنا : 3000
مساحت زمین : 507
کارفرما : هادی پیش بین

موقعیت مکانی پروژه

avatar
هاله عیسی پور
خیلی زیباست
4 ماه پیش
پیشنهاد و بازخورد