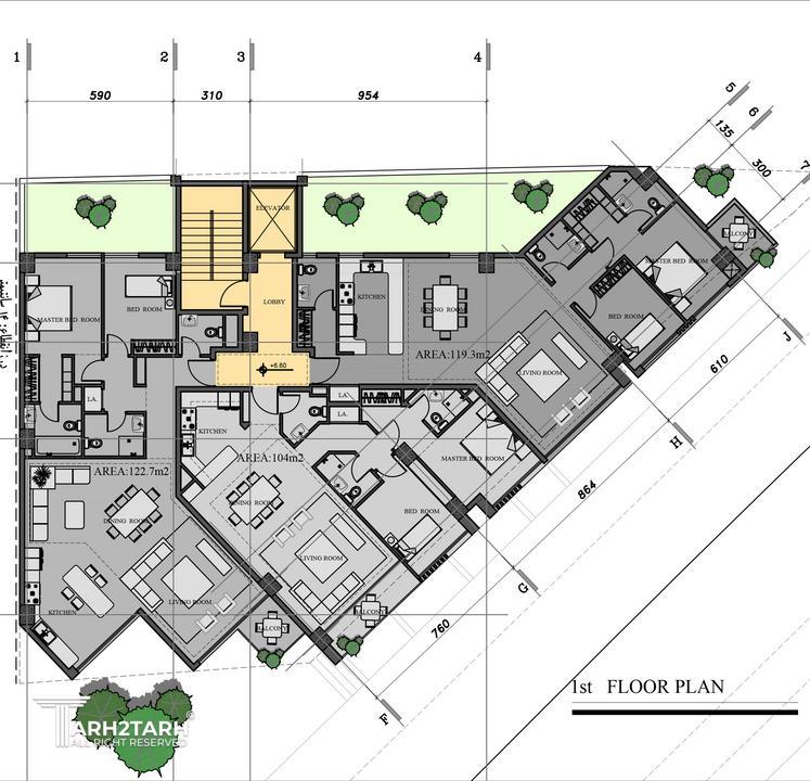
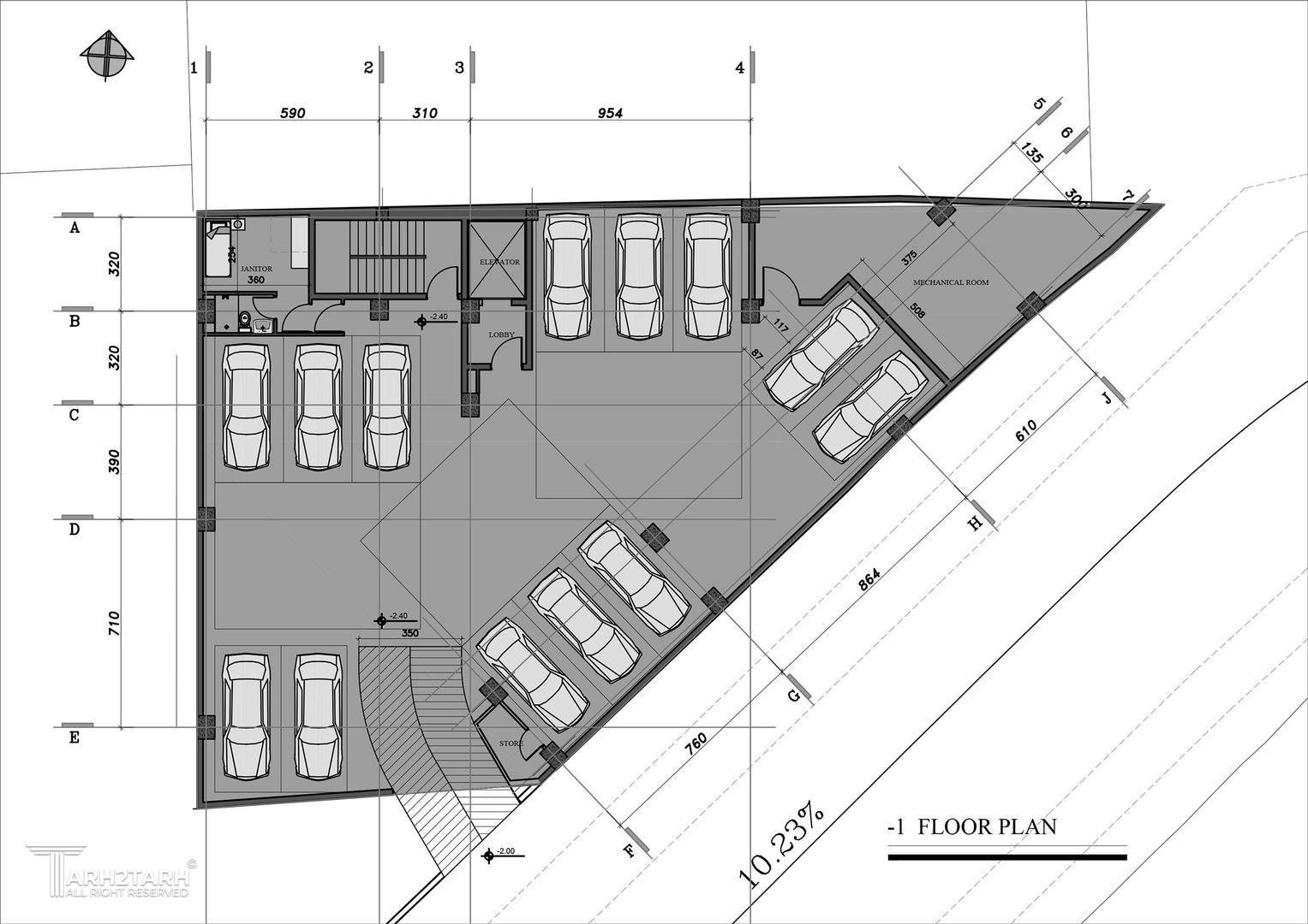
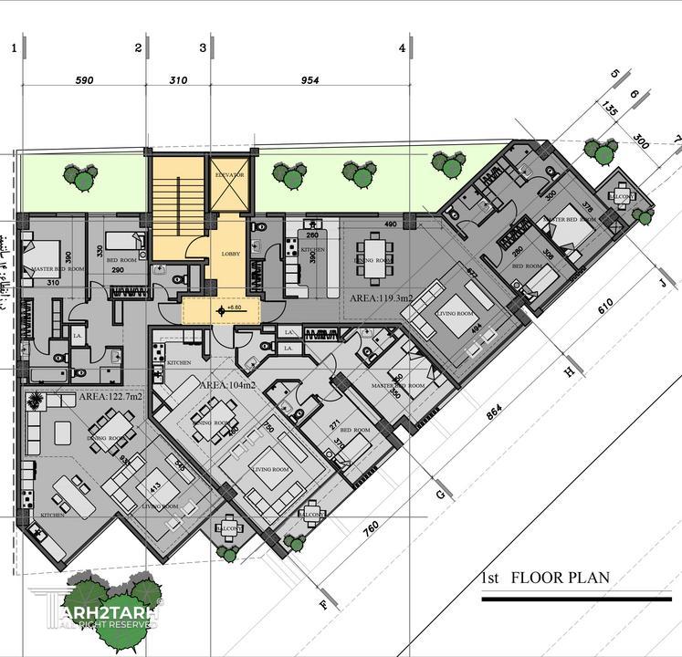
مسابقه طراحی ساختمان مسکونی نوتاش

0

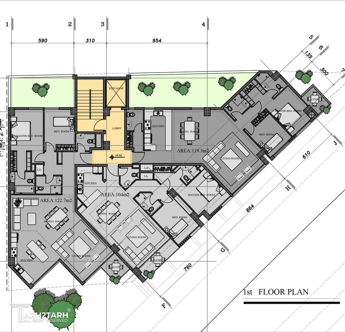
اطلاعات پروژه

وحید میردار

نوع مسابقه: طراحی مسکونی
سال انجام پروژه : 1404
نقش: طراح
موقعیت : تهران
متراژ زیربنا : 3000
مساحت زمین : 507
کارفرما : هادی پیش بین

موقعیت مکانی پروژه

پیشنهاد و بازخورد