مسابقه طراحی پلان و نما رویال رزیدنس رفسنجان

0

اطلاعات پروژه

پریسا چیوا

نوع مسابقه: طراحی مسکونی
سال انجام پروژه : 1404
نقش: طراح
موقعیت : کرمان
متراژ زیربنا : 1125
مساحت زمین : 304.10
کارفرما : مجتبی رمضانی نسب

خدمات ارائه شده توسط طراح

خدمات طراحی و کانسپت
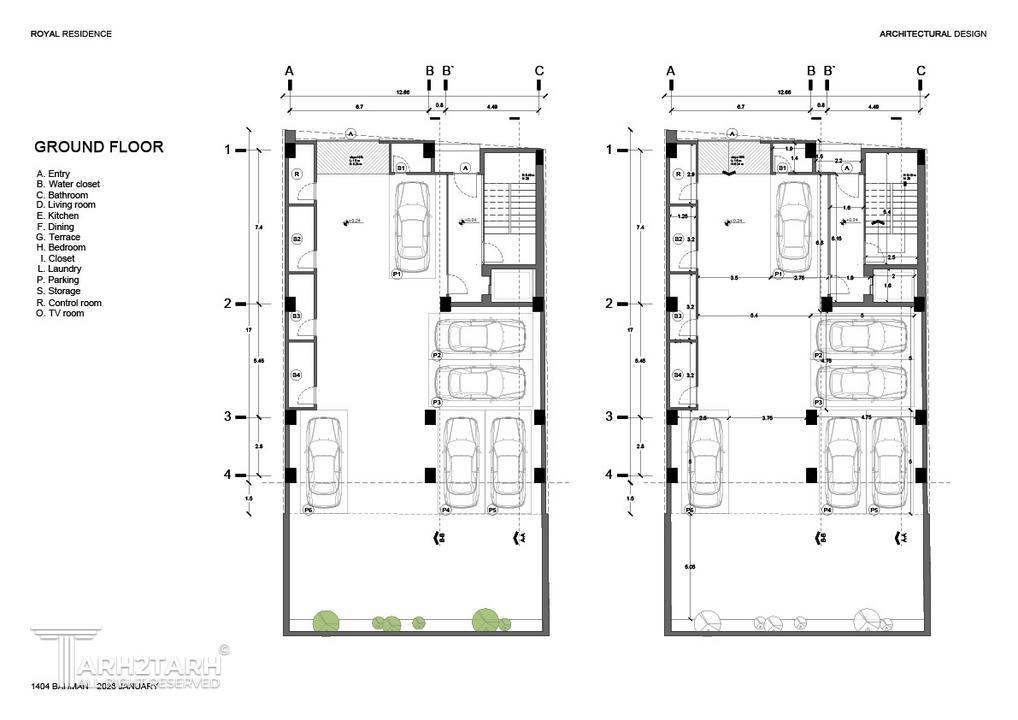
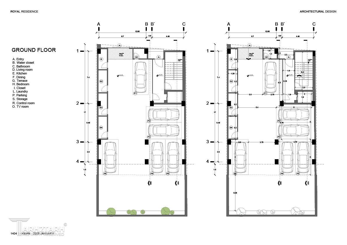
طراحی پلان (نقشه معماری) فاز 1
طراحی نما

موقعیت مکانی پروژه

پیشنهاد و بازخورد