مسابقه طراحی ساختمان مسکونی سایه فرمانیه غربی

0

اطلاعات پروژه

دفترمعماری چکاد

نوع مسابقه: طراحی مسکونی
سال انجام پروژه : 1404
نقش: طراح
موقعیت : تهران
متراژ زیربنا : 4400
مساحت زمین : 875
کارفرما : مهندس مرتضی صیفی

خدمات ارائه شده توسط طراح

خدمات طراحی و کانسپت
طراحی منظر، فضای سبز، لند اسکیپ، روف گاردن و محوطه
طراحی نورپردازی
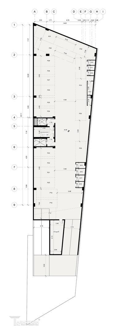
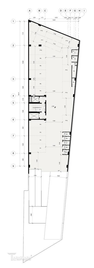
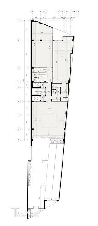
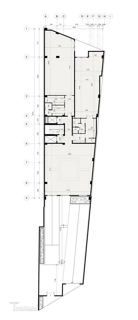
طراحی پلان (نقشه معماری) فاز 1
طراحی نما

موقعیت مکانی پروژه

پیشنهاد و بازخورد