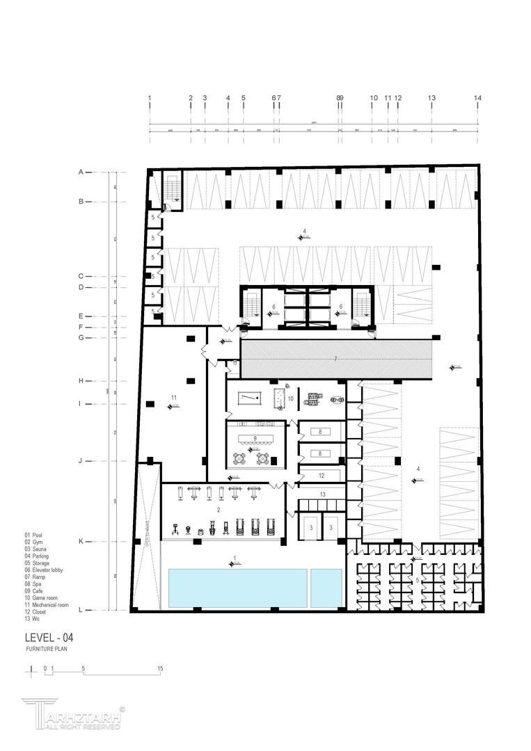
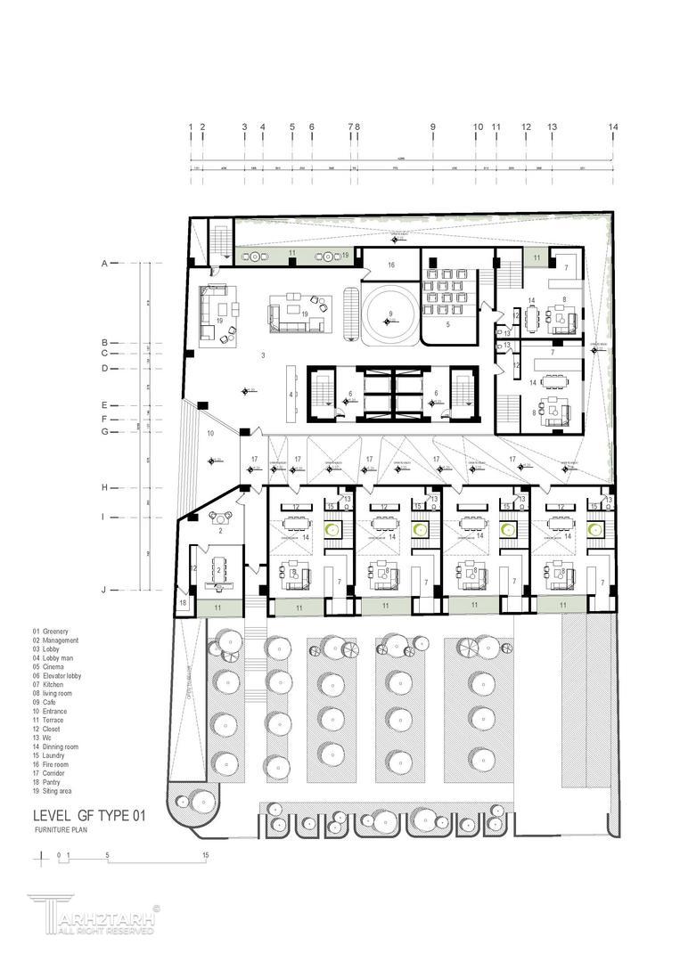
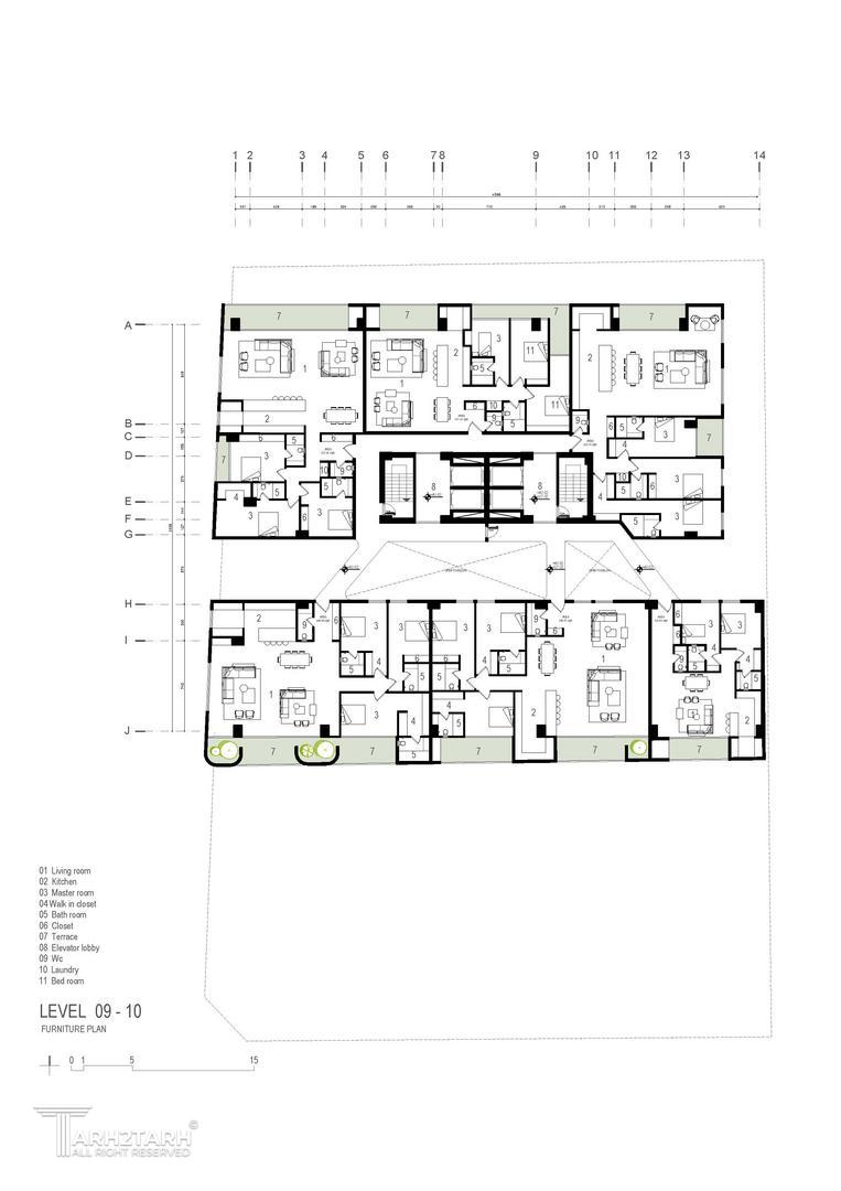
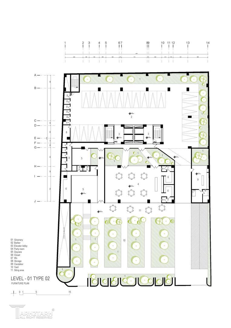
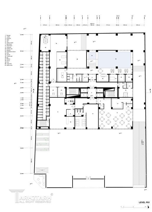
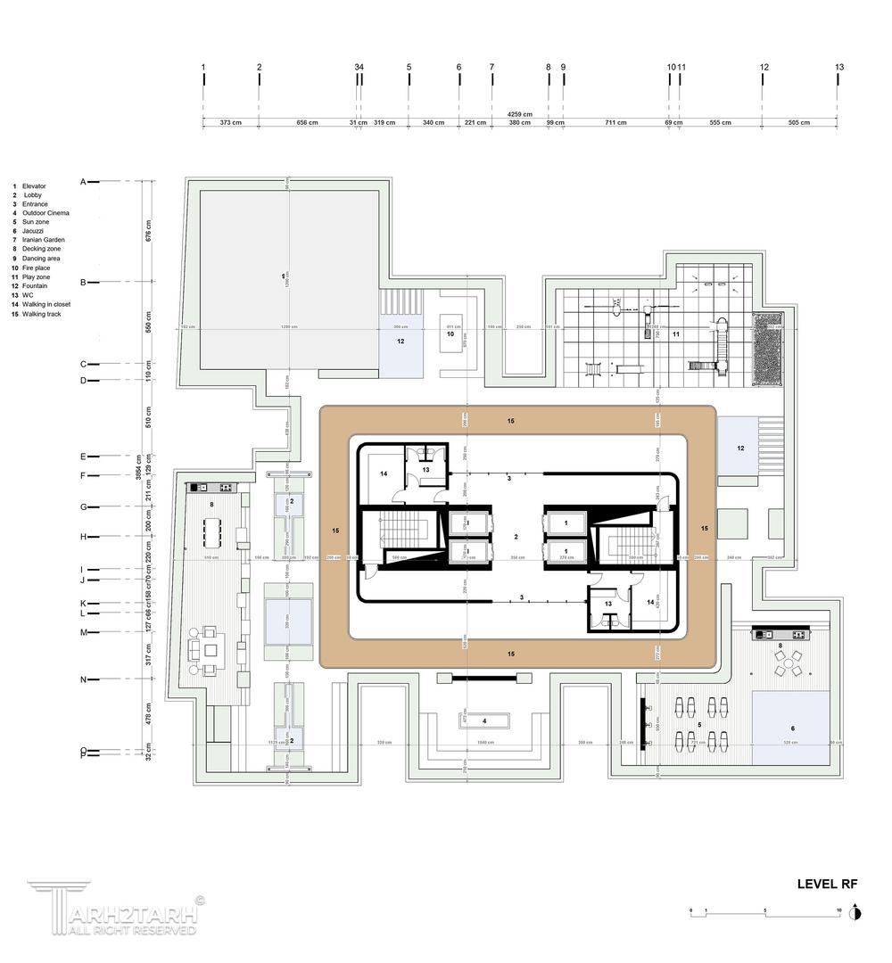
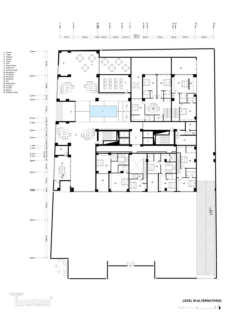
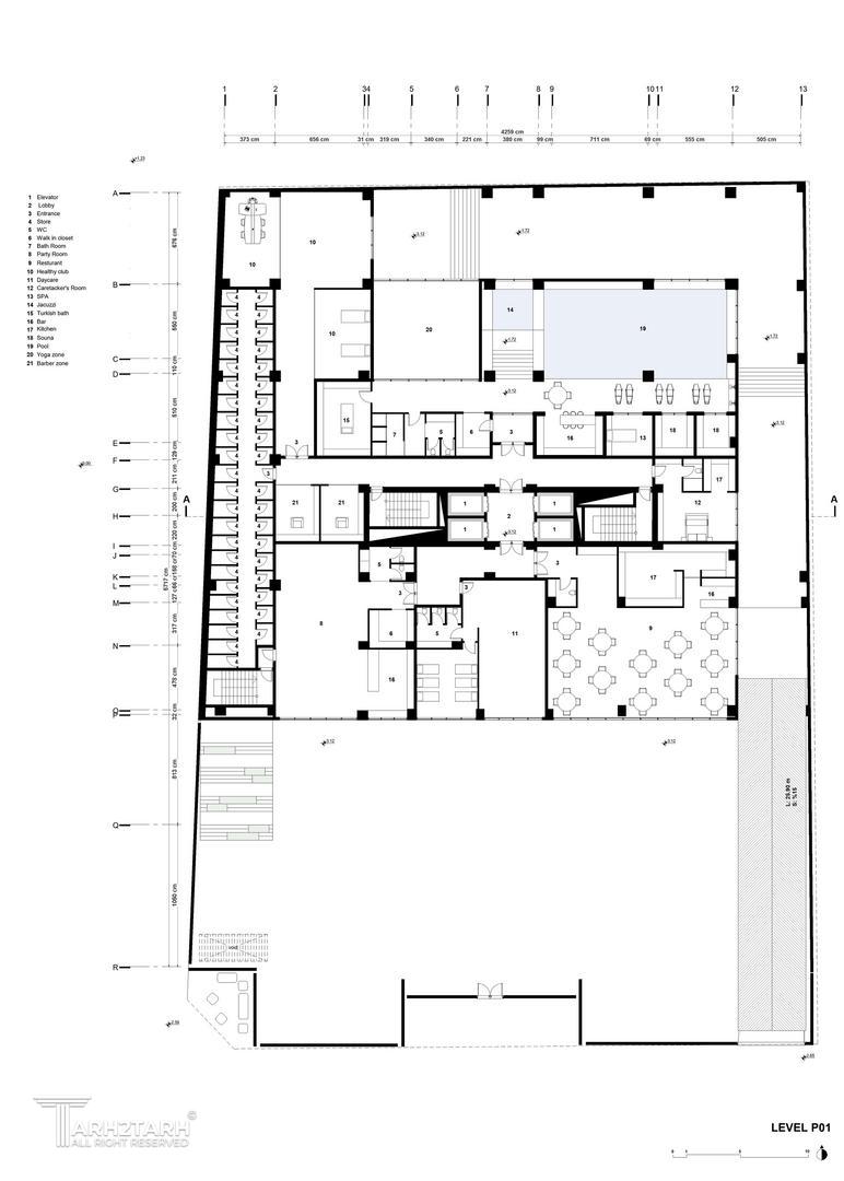
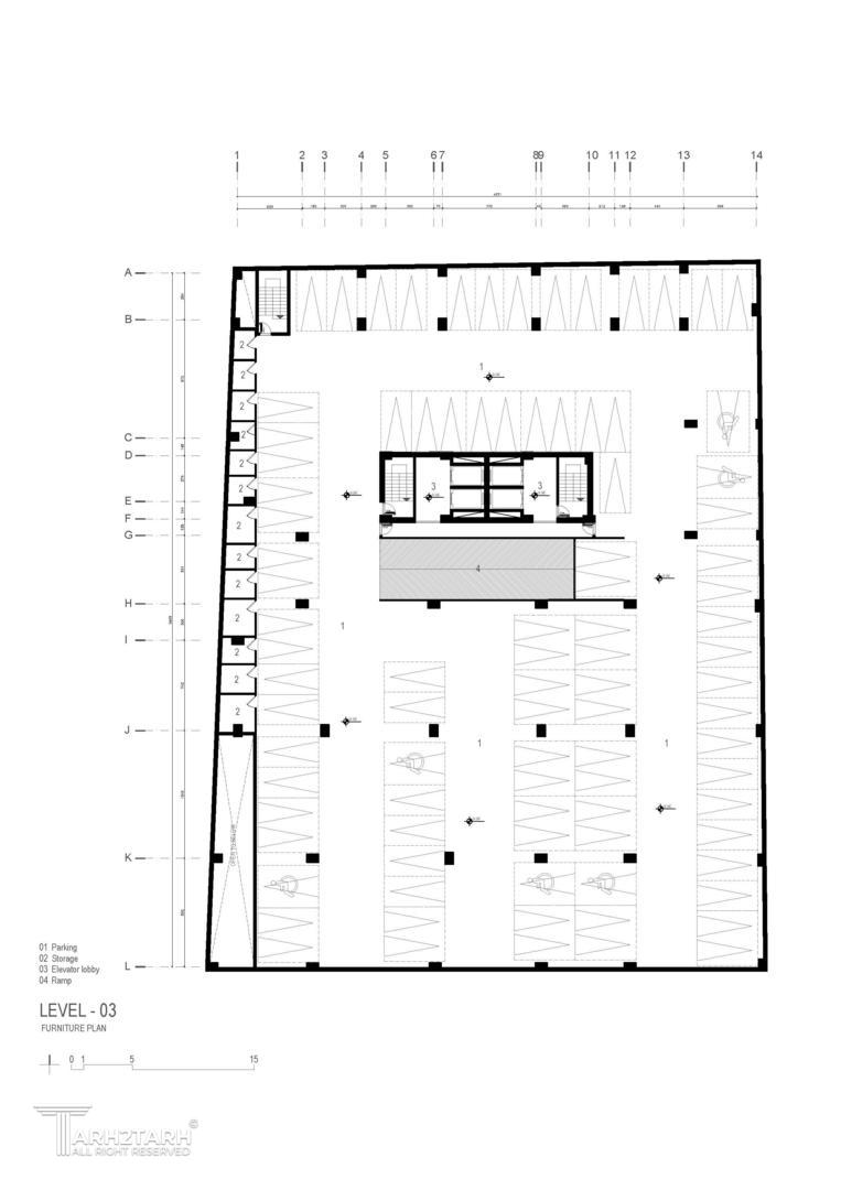
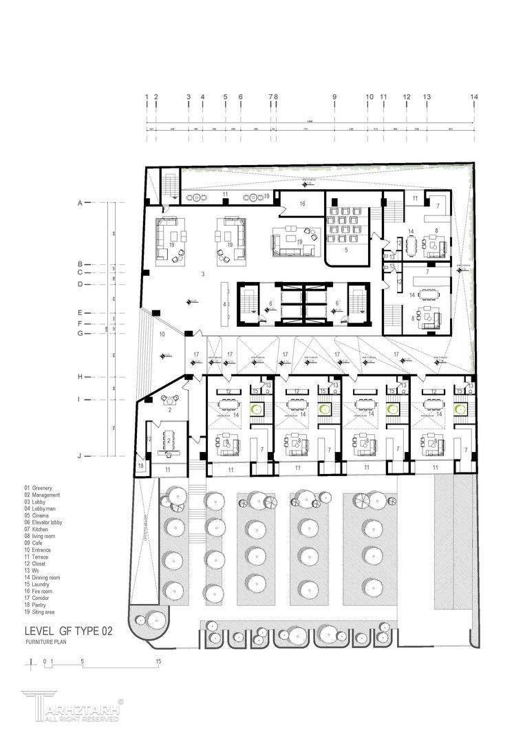
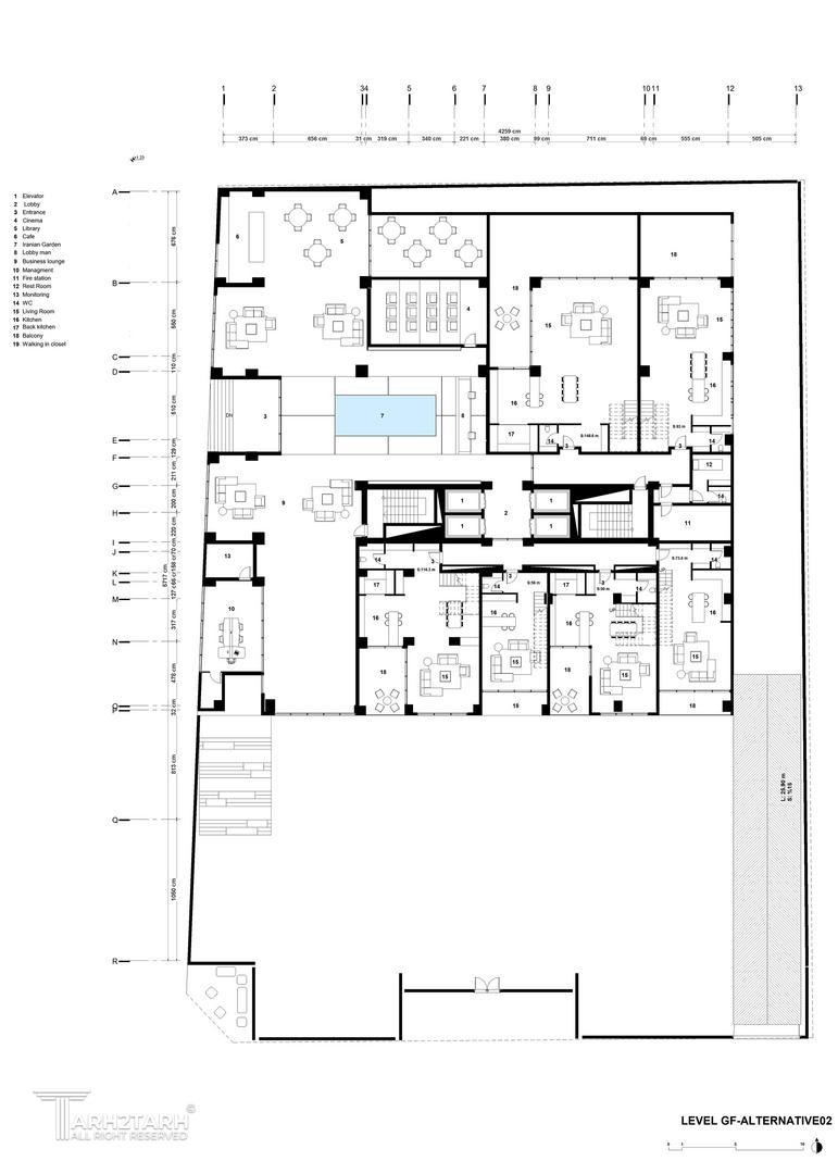
نفر اول مسابقه طراحی ساختمان مسکونی شهاب (منطقه 5)

0

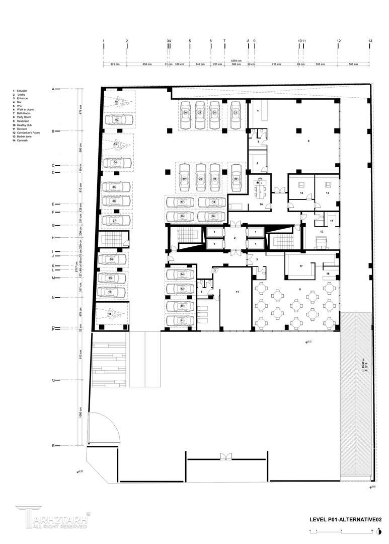
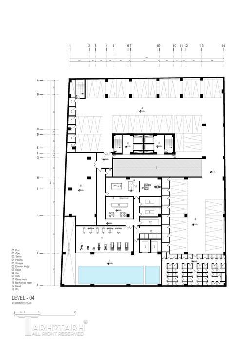
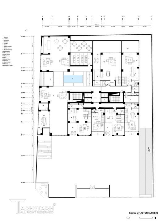
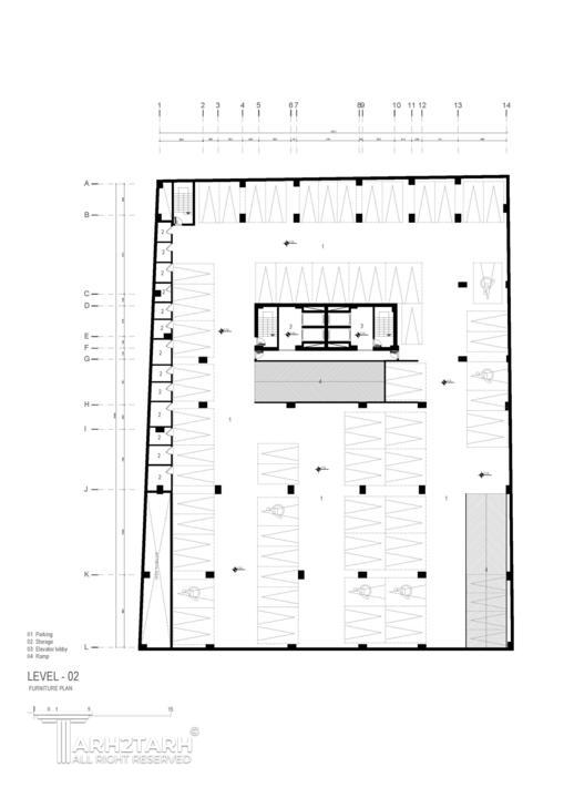
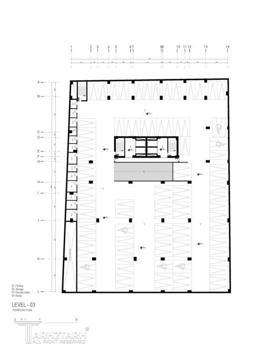
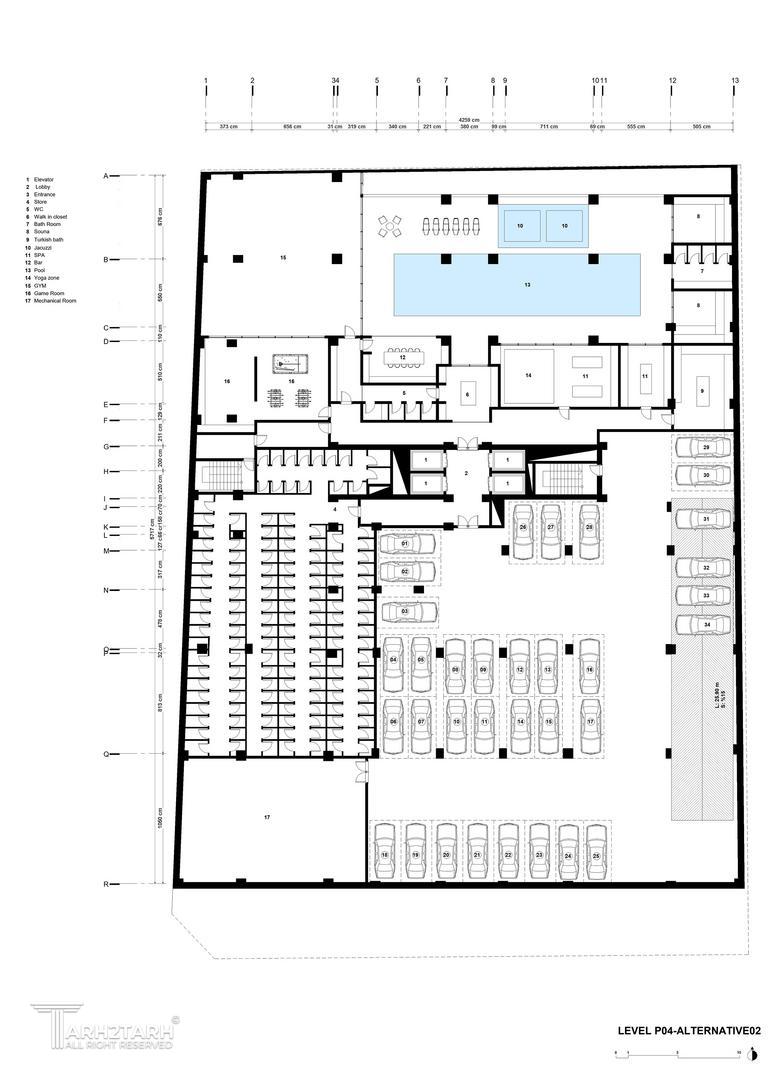
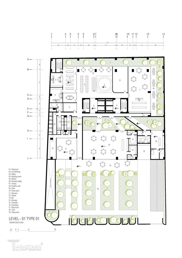
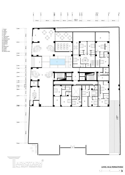
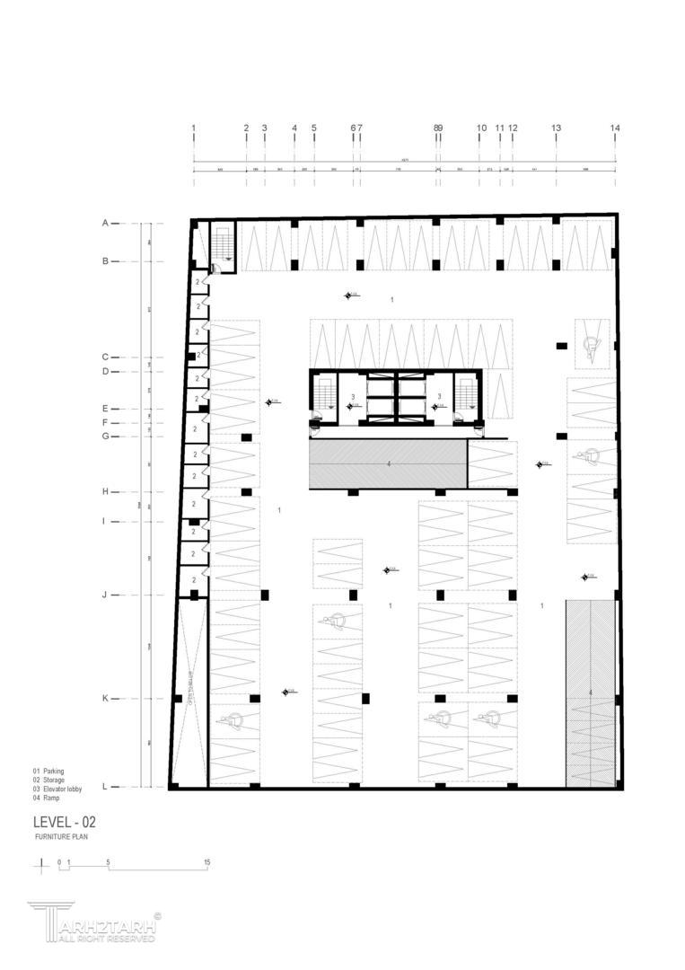
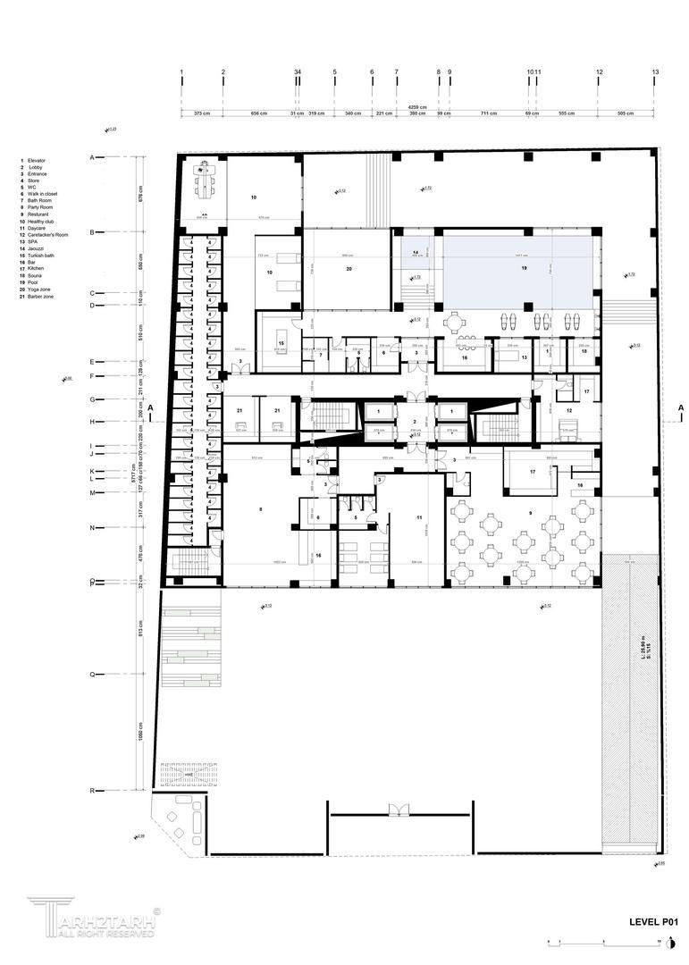
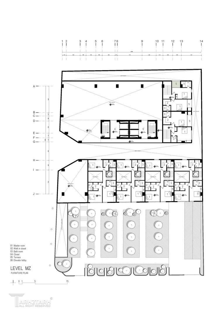
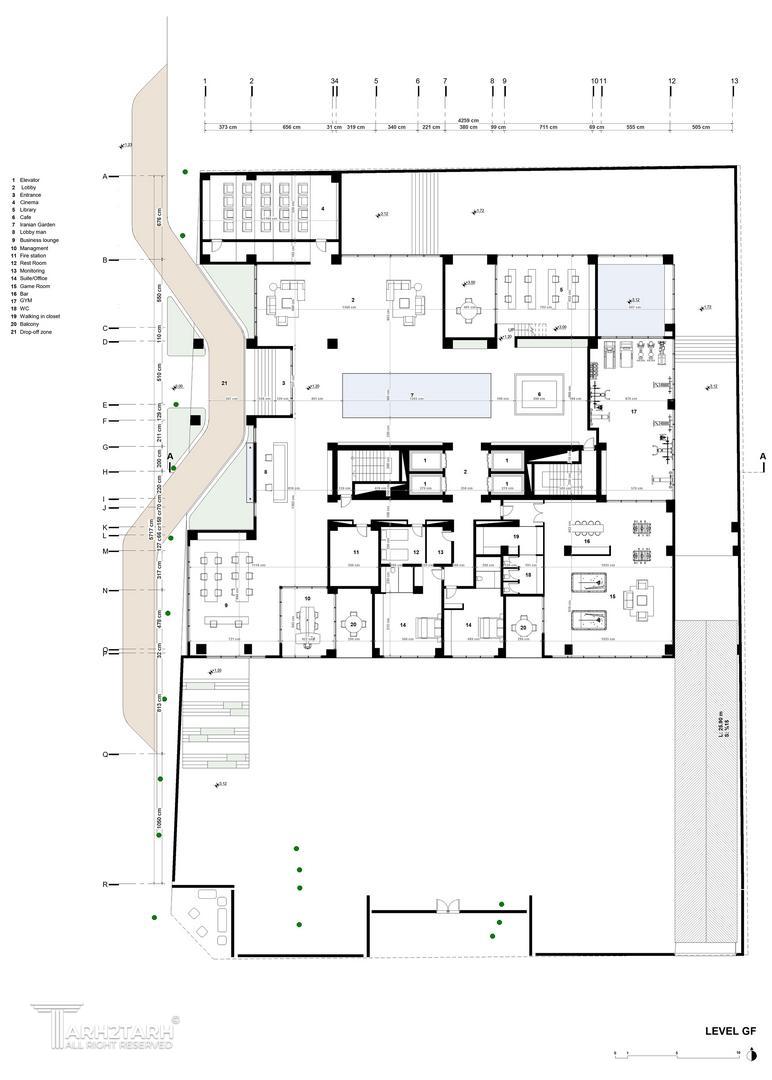
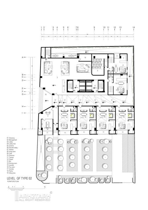
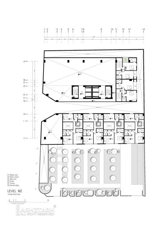
اطلاعات پروژه

ARMINARMANSTUDIO

نوع مسابقه: طراحی مسکونی
سال انجام پروژه : 1404
نقش: طراح
موقعیت : تهران
متراژ زیربنا : 26000
مساحت زمین : 3250
کارفرما : بیژن راشدی
پیشنهاد و بازخورد