نفر دوم مسابقه طراحی ساختمان مسکونی شهاب (منطقه 5)

0

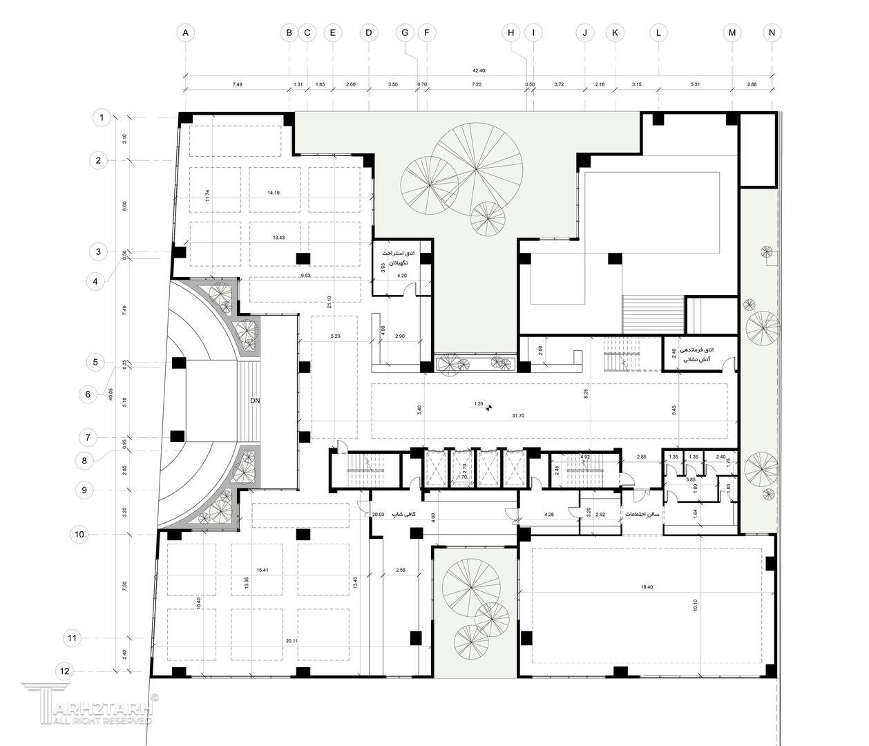
اطلاعات پروژه

دفترمعماری چکاد

نوع مسابقه: طراحی مسکونی
سال انجام پروژه : 1404
نقش: طراح
موقعیت : تهران
متراژ زیربنا : 26000
مساحت زمین : 3250
کارفرما : بیژن راشدی

موقعیت مکانی پروژه

پیشنهاد و بازخورد