اطلاعات پروژه

نقش : موارد دیگر
کارفرما : محسن میر حبیبی
نوع پروژه : طرح اجرایی
وضعیت : اجرا شده
کاربری : ساختمان اداری
متراژ زمین : 220
متراژ زیربنا : 1190
سبک‌های طراحی: مدرن

مقام‌ها و افتخارات پروژه

جایزه شاستگی معمار ایرانی

خدمات ارائه شده توسط طراح

خدمات طراحی و کانسپت
طراحی پلان (نقشه معماری) فاز 1
طراحی نما
طراحی نقشه فاز دو معماری
طراحی داخلی
طراحی منظر، فضای سبز، لند اسکیپ، روف گاردن و محوطه
طراحی نورپردازی
طراحی کانسپت (معماری)
خدمات مشاوره و امکانسنجی
مشاوره تحلیل سایت پروژه
مشاوره فاز صفر و امکان‌سنجی پروژه
مشاوره‌های مرتبط با مجوزات (ضوابط تراکم، سطح اشغال، پروانه ساختمان، ماده 5، کمیسیون های شهرداری، پایان کار و …)
مشاوره آتش‌نشانی
خدمات اجرایی و نظارتی
نظارت عالیه بر اجرا
مدیریت پیمان (پیمانکاری کلی پروژه)
خدمات فنی و مهندسی
اخذ تاییدیه نقشه پلان
اخذ تاییدیه نما
تهیه آلبوم نمای شهرداری
تهیه نقشه فاز دو شهرداری
تهیه نقشه فاز دو نظام مهندسی
رندرینگ و خدمات فنی

توضیحات پروژه

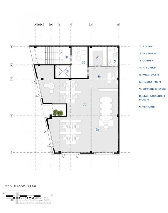
سایت پروژه اداری زرتشت که مربوط به یک شرکت کامپیوتری است این پروژه اداری دارای دو طبقه همکف و منهای یک به عنوان زیر زمین و پنج طبقه اداری بروی آن است.

موقعیت مکانی پروژه

نظرات
پیشنهاد و بازخورد