مسابقه طراحی ساختمان مسکونی ارکیده

0

اطلاعات پروژه

ARMINARMANSTUDIO

نوع مسابقه: طراحی مسکونی
سال انجام پروژه : 1403
نقش: طراح
موقعیت : تهران
متراژ زیربنا : 2650
مساحت زمین : 400
کارفرما : ابراهیم احمدزاده

خدمات ارائه شده توسط طراح

خدمات طراحی و کانسپت
طراحی نورپردازی
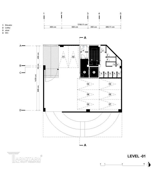
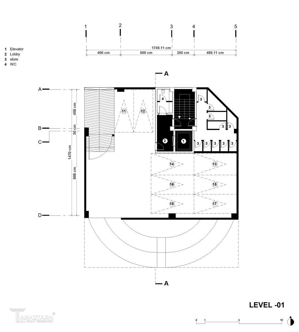
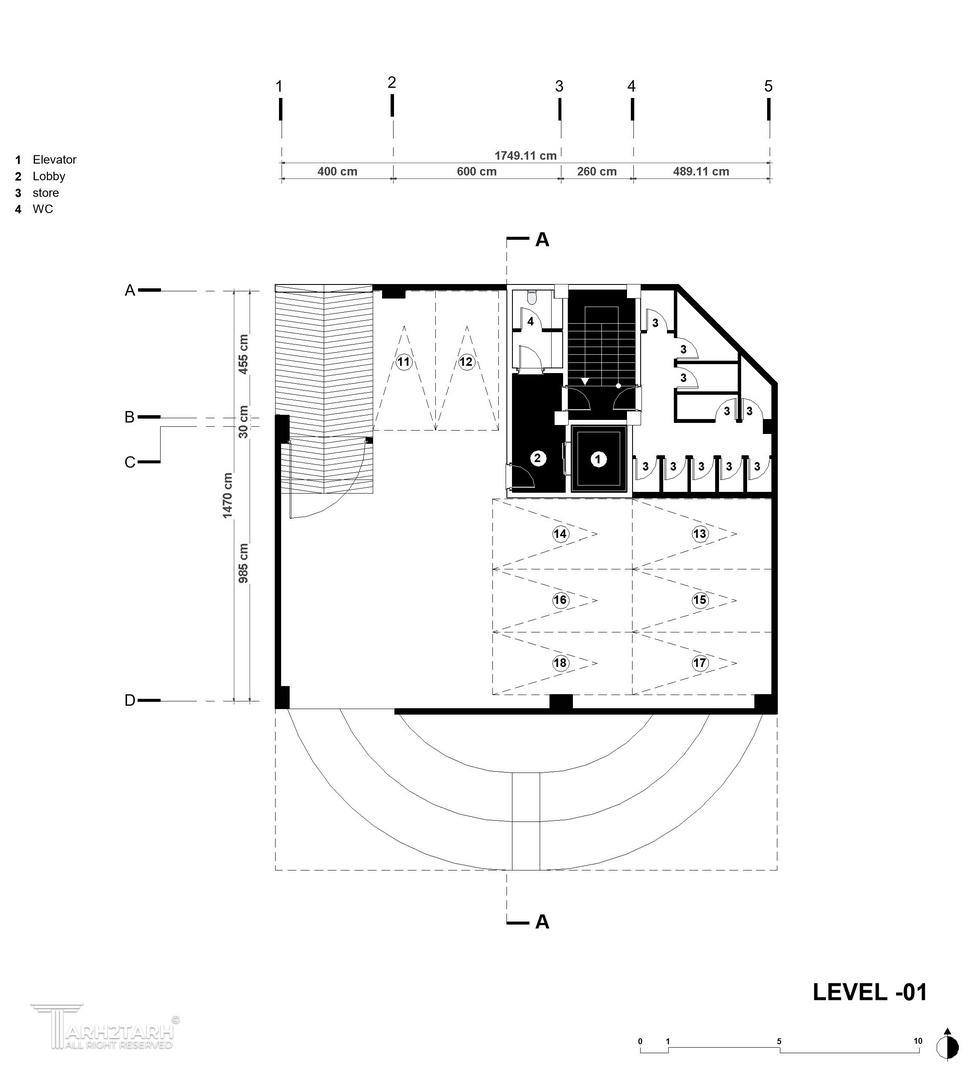
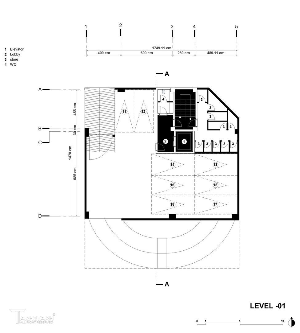
طراحی پلان (نقشه معماری) فاز 1
طراحی نما

موقعیت مکانی پروژه

پیشنهاد و بازخورد