مسابقه طراحی مجتمع مسکونی Palazzo

0

اطلاعات پروژه

آوان خشت بوم پارس

نوع مسابقه: طراحی مسکونی
سال انجام پروژه : 1401
نقش: طراح
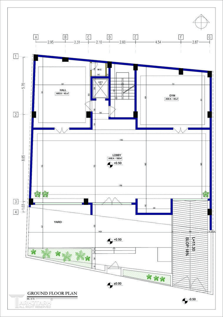
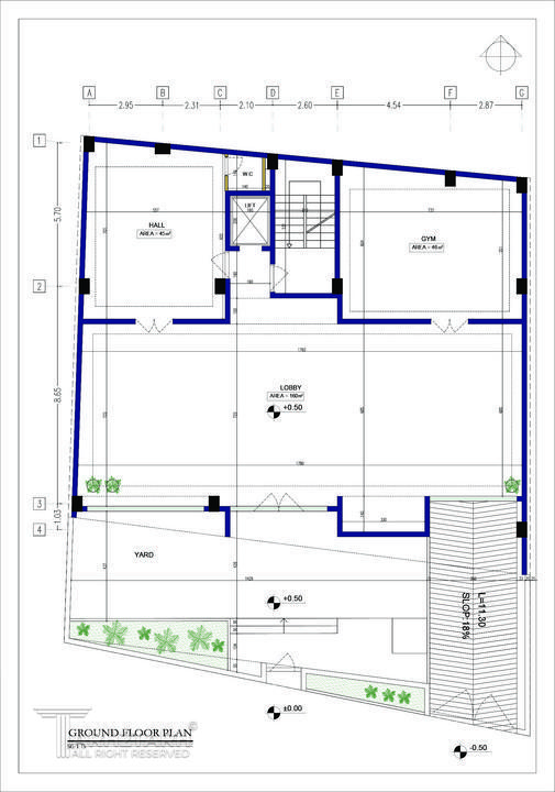
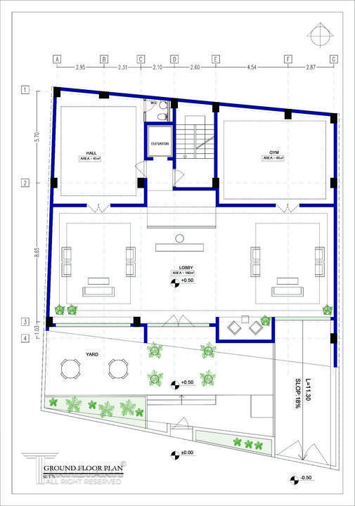
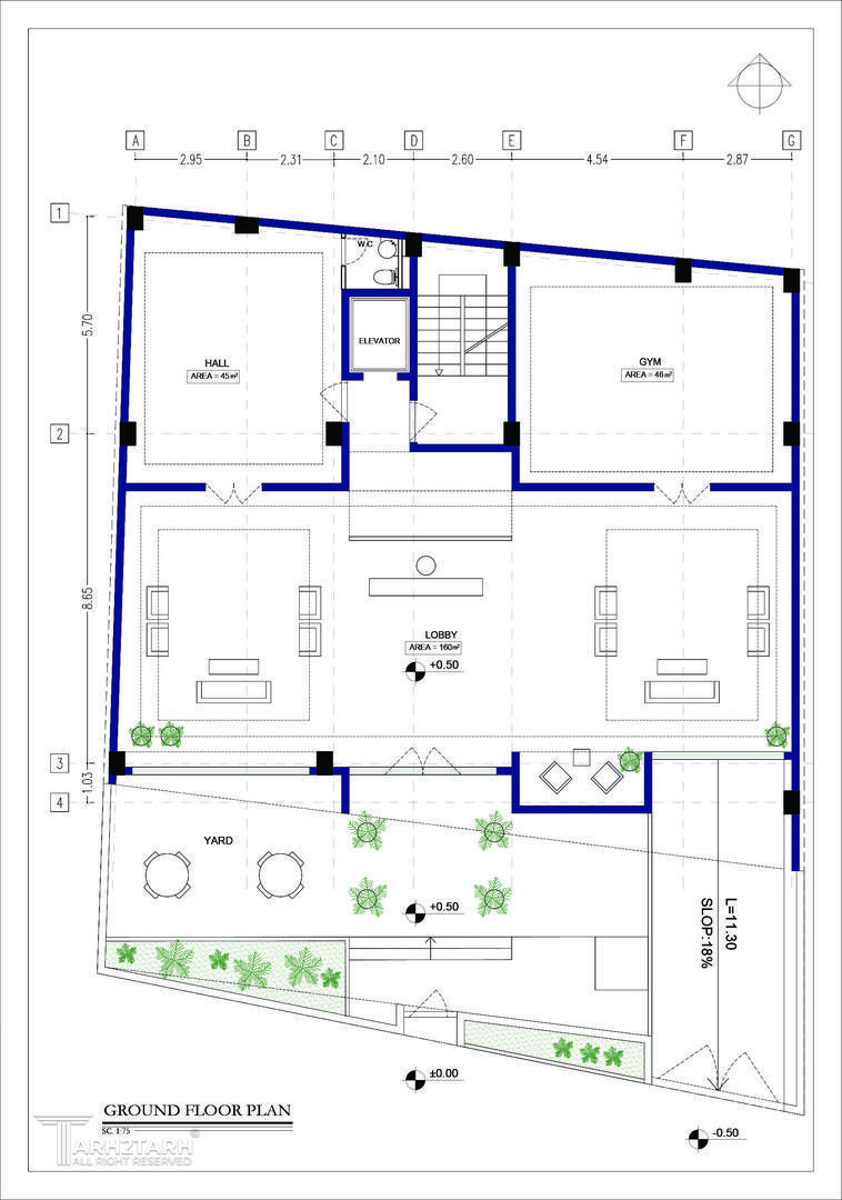
موقعیت : تهران
متراژ زیربنا : 2100
مساحت زمین : 500
کارفرما : بنیامین ژاژیان

خدمات ارائه شده توسط طراح

خدمات طراحی و کانسپت
طراحی نورپردازی
طراحی پلان (نقشه معماری) فاز 1
طراحی نما
پیشنهاد و بازخورد