نفر اول مسابقه طراحی پروژه روژه‌ مهماندوست

0

اطلاعات پروژه

FOR ARCHITECTURE OFFICE

نوع مسابقه: طراحی مسکونی
سال انجام پروژه : 1403
نقش: طراح
موقعیت : تهران
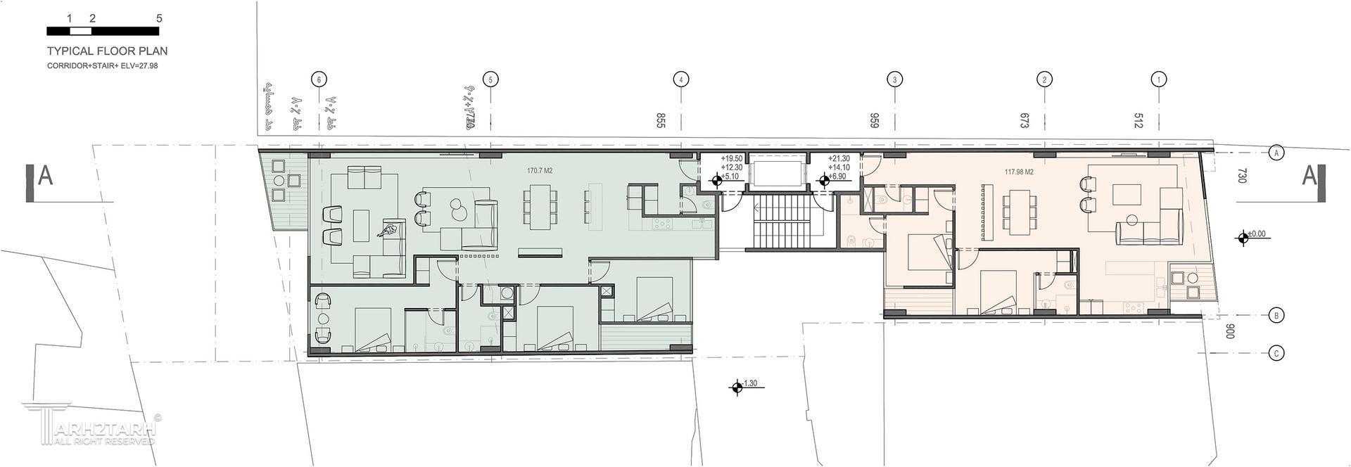
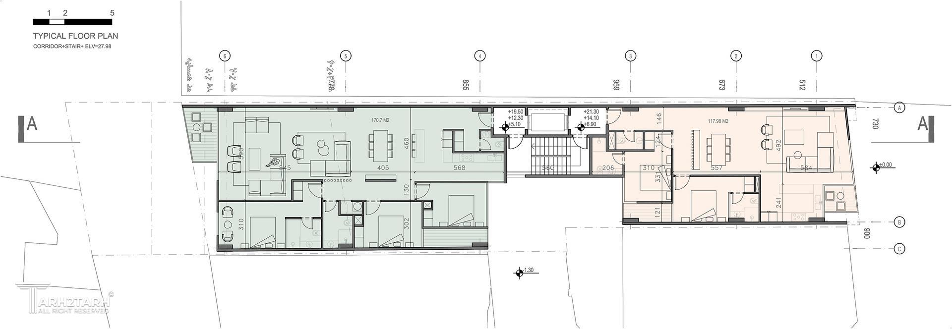
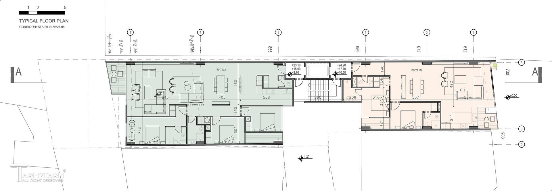
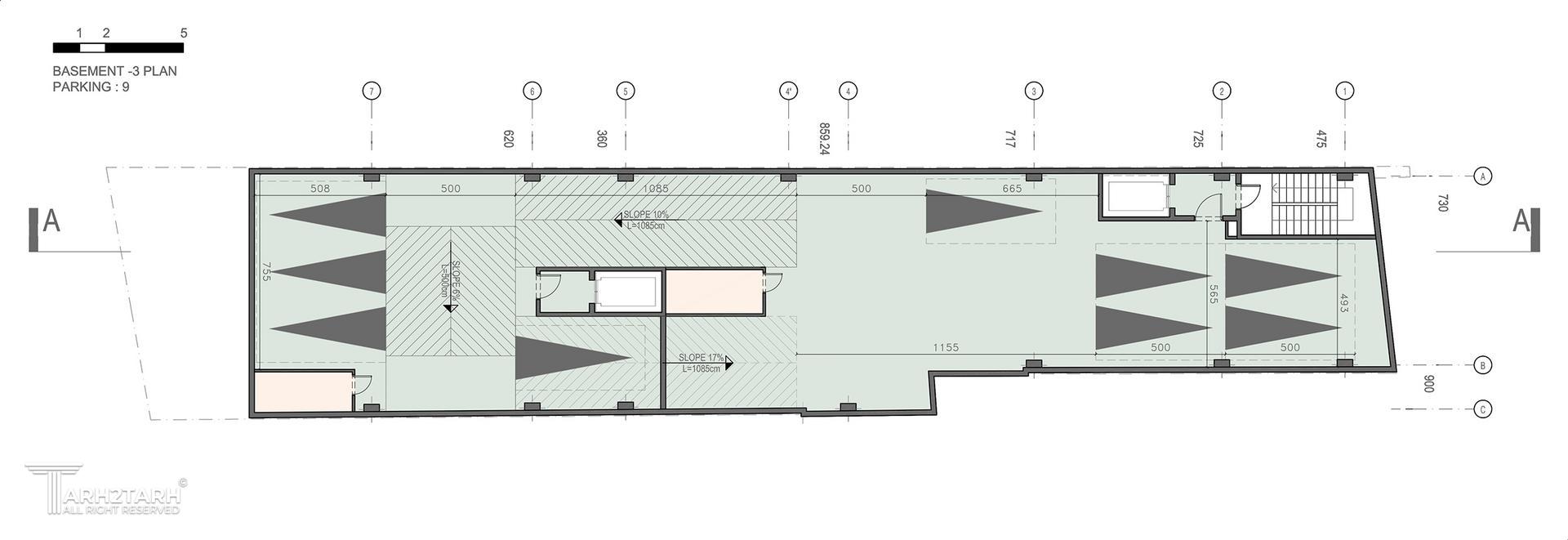
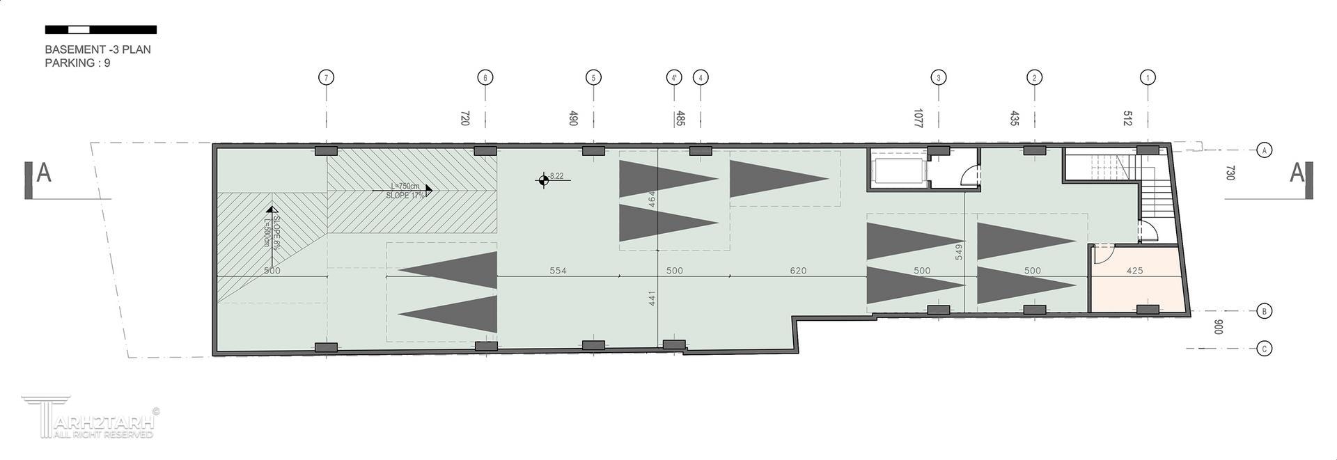
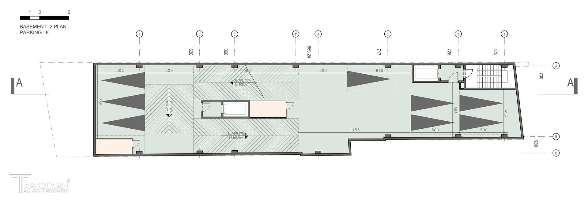
متراژ زیربنا : 3370
مساحت زمین : 480
کارفرما : محمد مدرس

خدمات ارائه شده توسط طراح

خدمات طراحی و کانسپت
طراحی منظر، فضای سبز، لند اسکیپ، روف گاردن و محوطه
طراحی نورپردازی
طراحی پلان (نقشه معماری) فاز 1
طراحی نما
پیشنهاد و بازخورد