مسابقه طراحی پروژه روژه‌ مهماندوست

0

اطلاعات پروژه

Peida Studio

نوع مسابقه: طراحی مسکونی
سال انجام پروژه : 1403
نقش: طراح
موقعیت : تهران
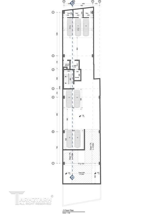
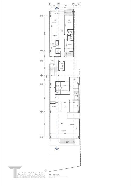
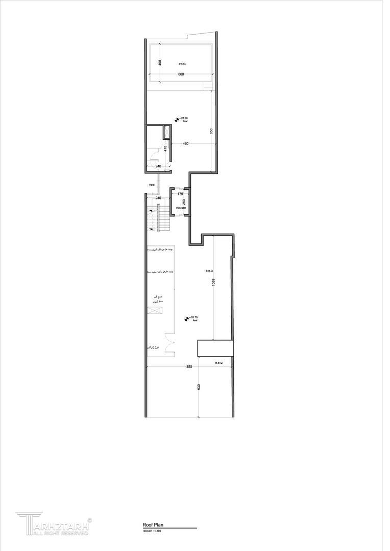
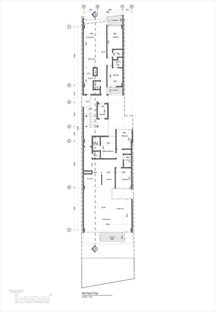
متراژ زیربنا : 3370
مساحت زمین : 480
کارفرما : محمد مدرس

خدمات ارائه شده توسط طراح

خدمات طراحی و کانسپت
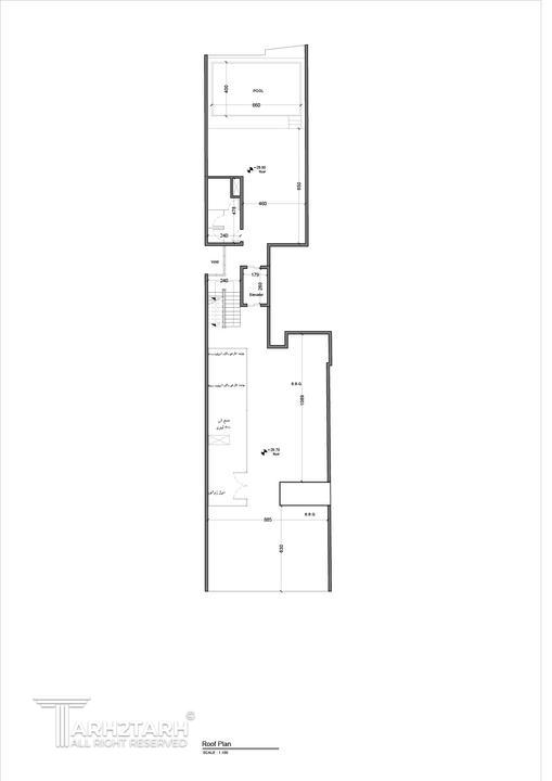
طراحی منظر، فضای سبز، لند اسکیپ، روف گاردن و محوطه
طراحی نورپردازی
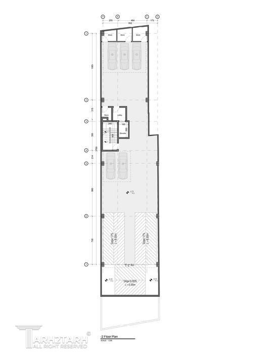
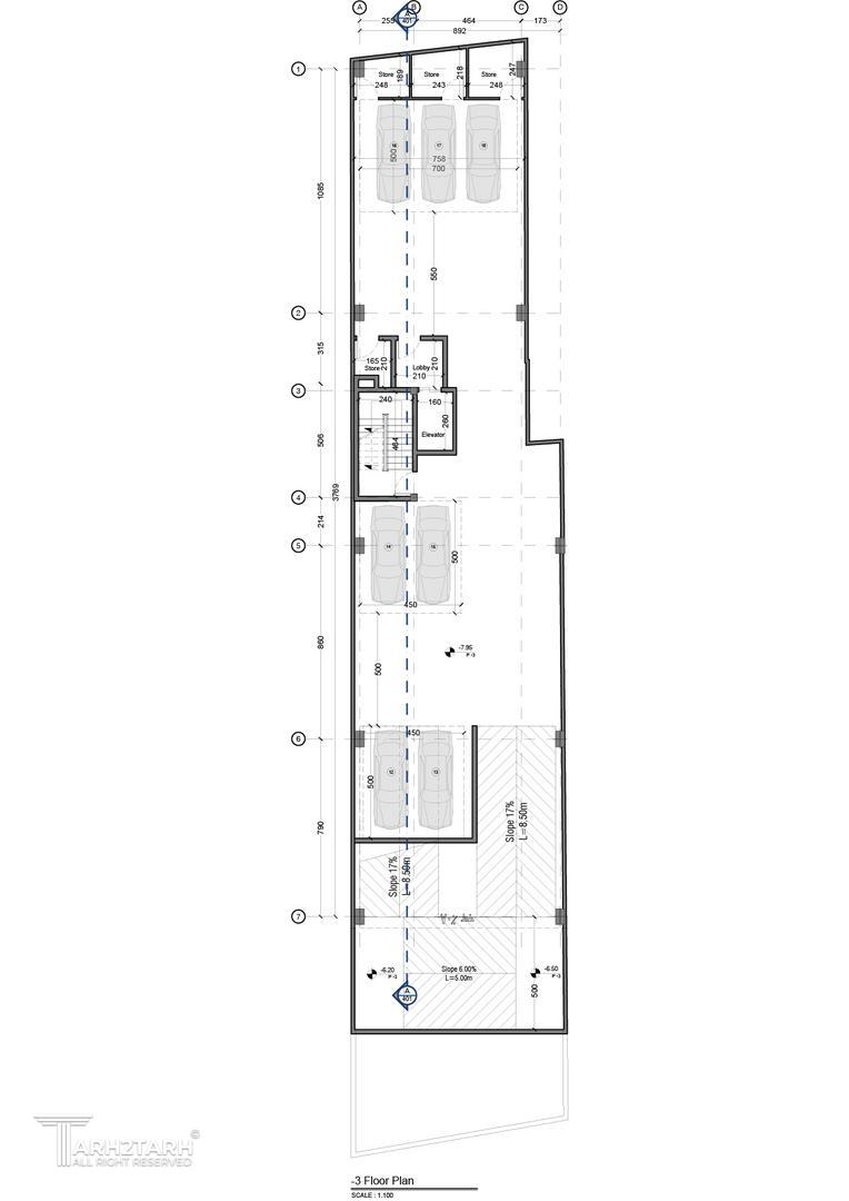
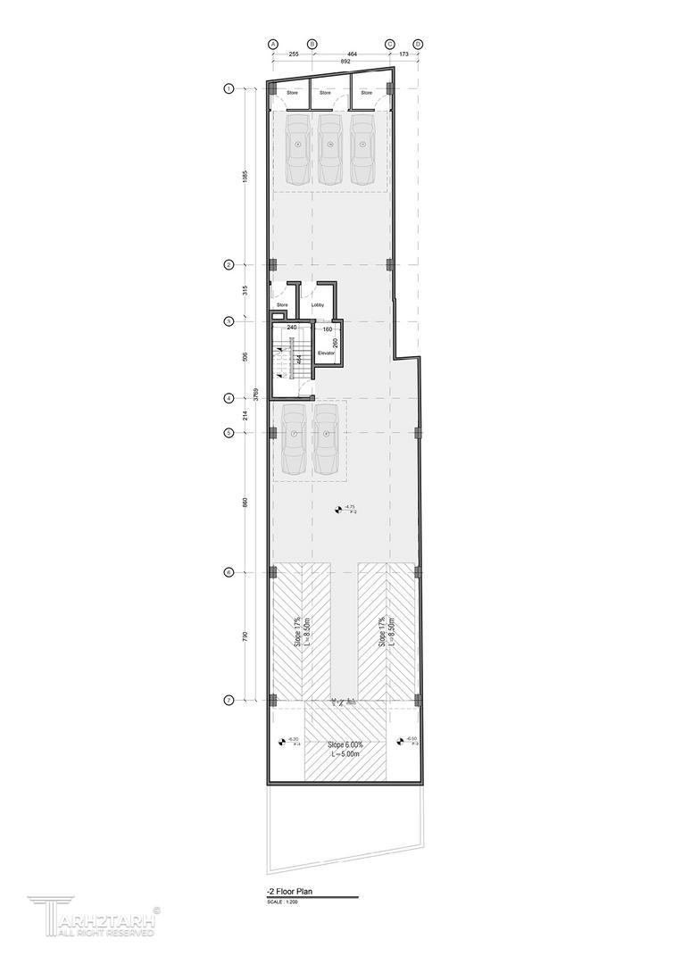
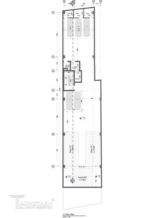
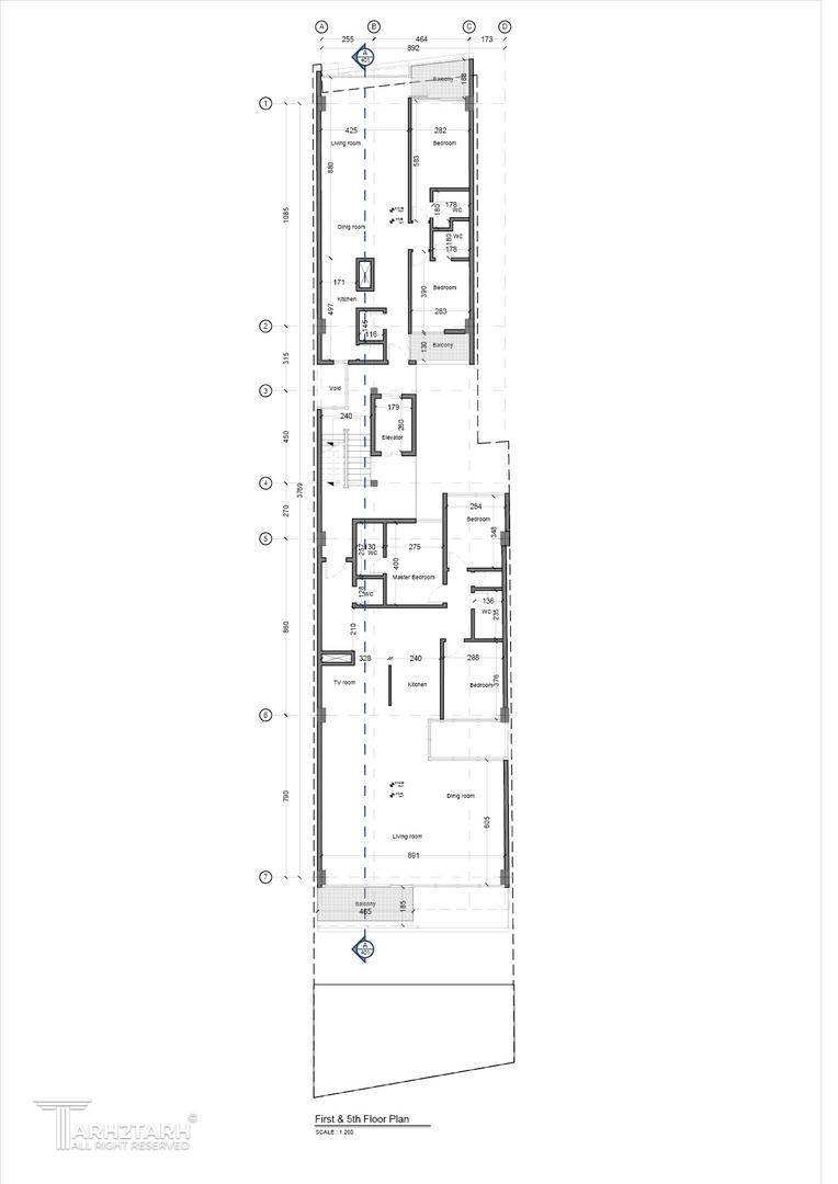
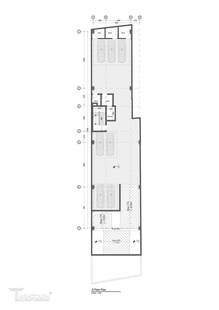
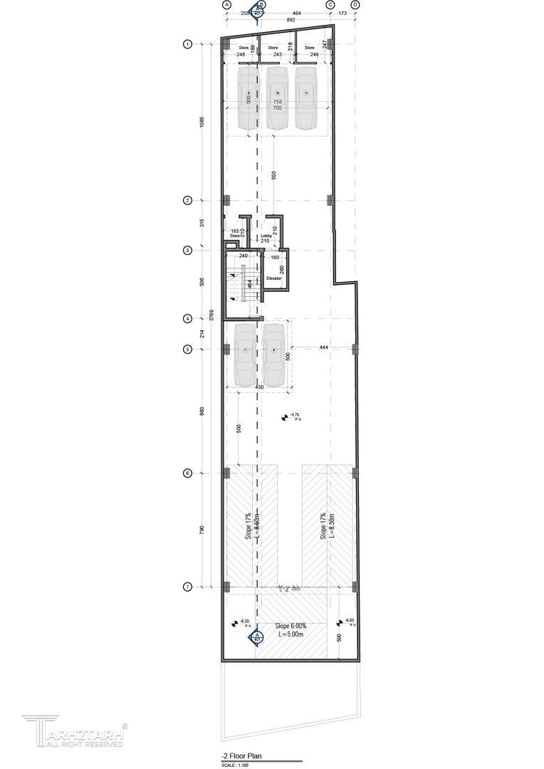
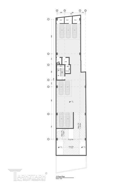
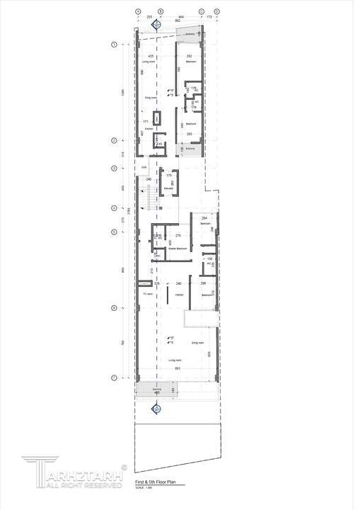
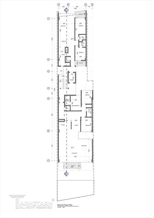
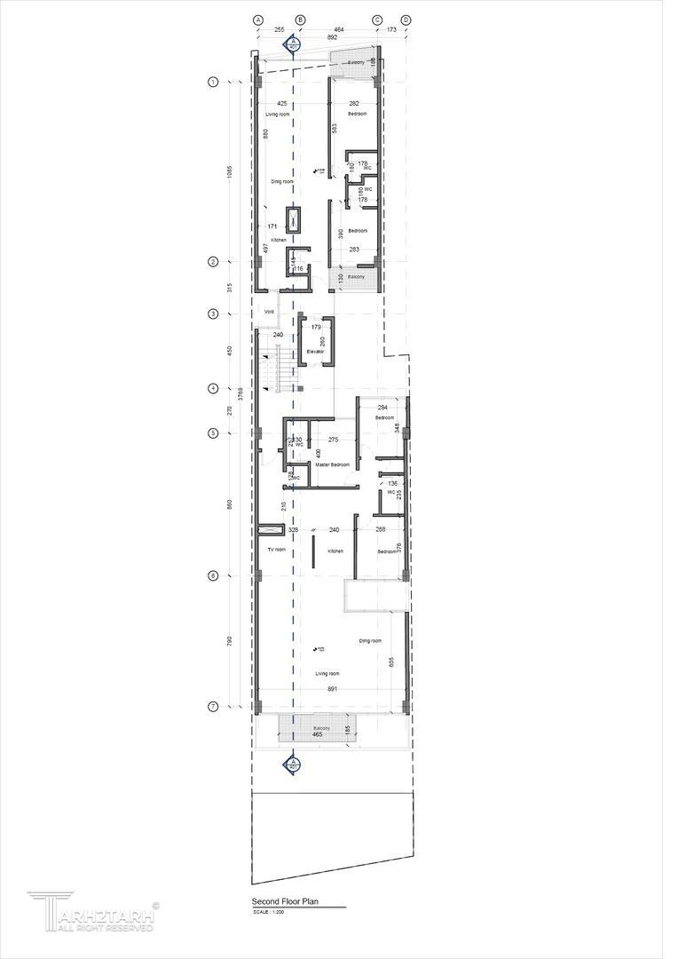
طراحی پلان (نقشه معماری) فاز 1
طراحی نما

موقعیت مکانی پروژه

پیشنهاد و بازخورد