مسابقه نما و روف گاردن و نشیمن آفتاب

0

اطلاعات پروژه

عسل هاتف متقی- محمدرضا ترابی

نوع مسابقه: طراحی مسکونی
سال انجام پروژه : 1404
نقش: طراح
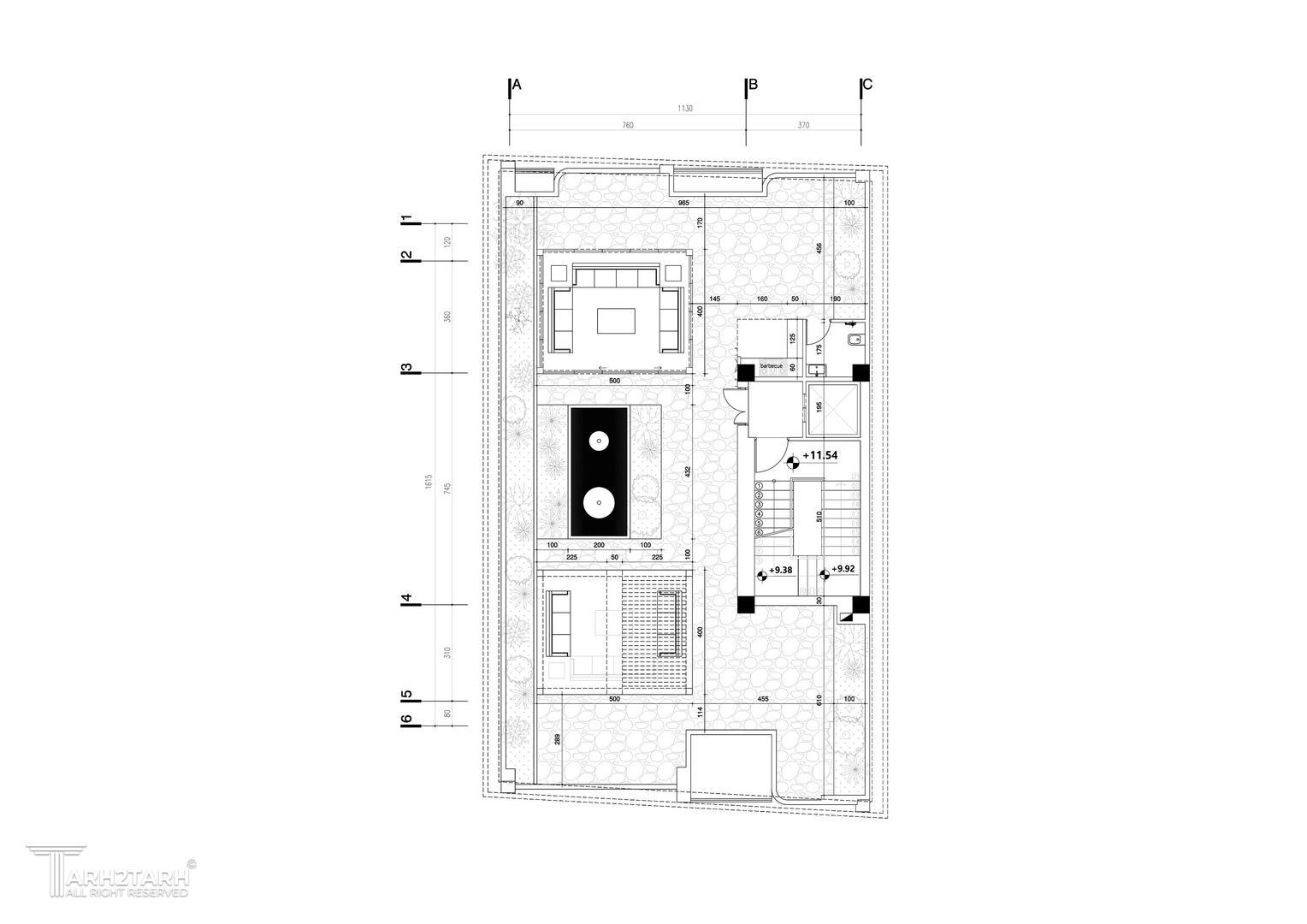
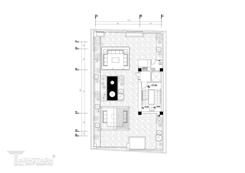
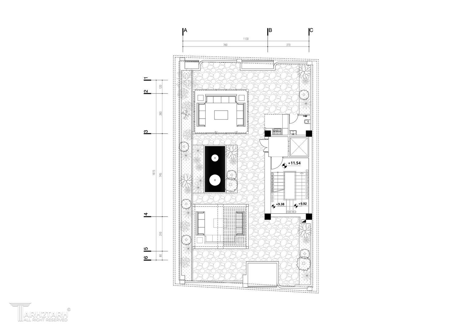
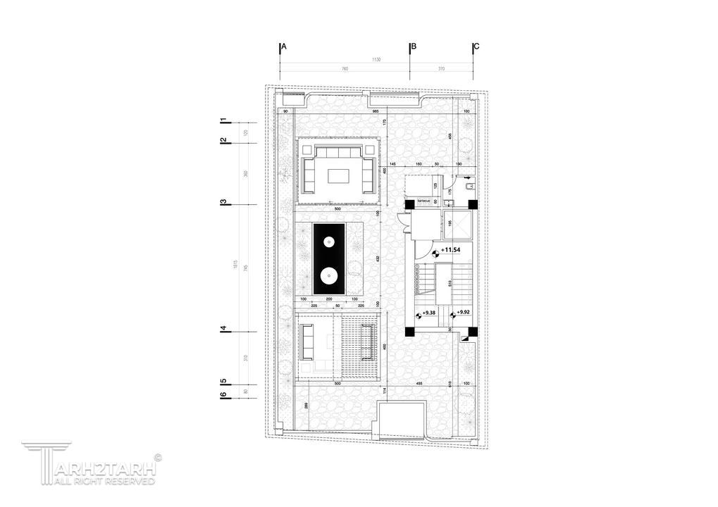
موقعیت : بوشهر
متراژ زیربنا : 1000
مساحت زمین : 238
کارفرما : مهدی پیوس

خدمات ارائه شده توسط طراح

خدمات طراحی و کانسپت
طراحی پلان (نقشه معماری) فاز 1
طراحی نما
طراحی نورپردازی

موقعیت مکانی پروژه

پیشنهاد و بازخورد