مسابقه طراحی ساختمان مسکونی آرسا (مطهری)

0

اطلاعات پروژه

محمد ایرانپور

نوع مسابقه: طراحی مسکونی
سال انجام پروژه : 1404
نقش: طراح
موقعیت : تهران
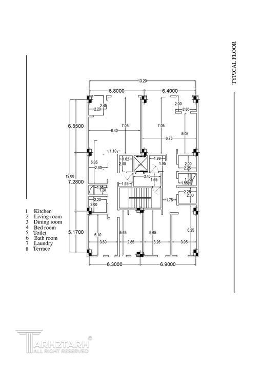
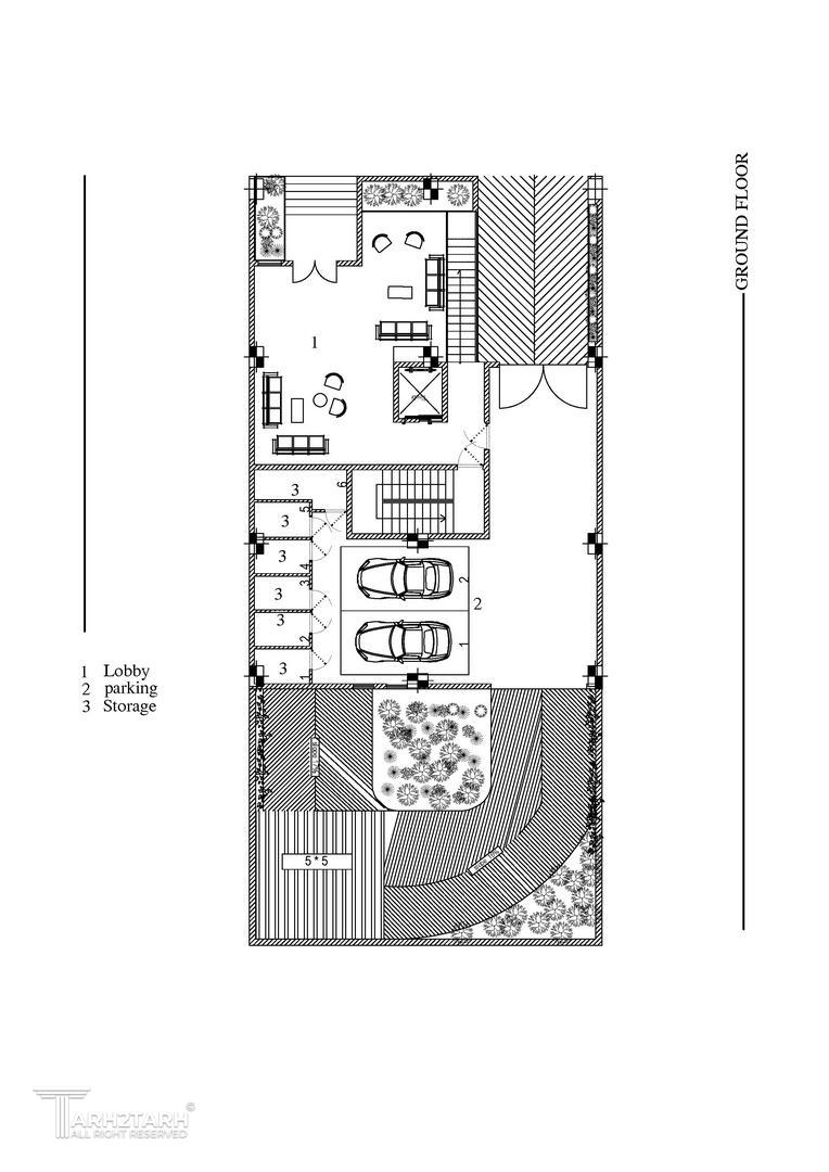
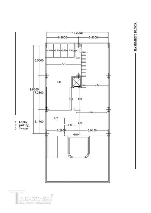
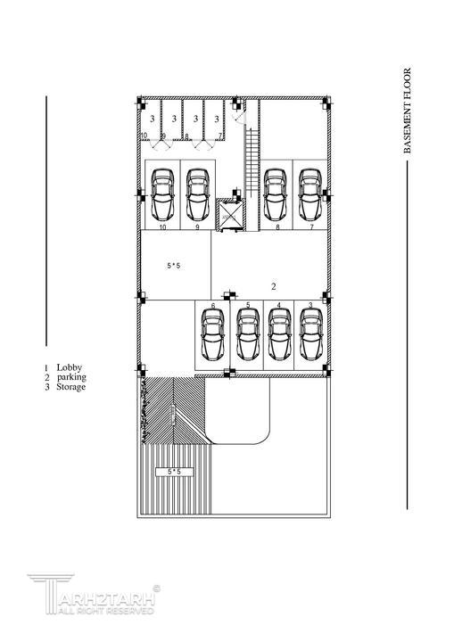
متراژ زیربنا : 1930
مساحت زمین : 420
کارفرما : سعیدعبدالرحیم زاده

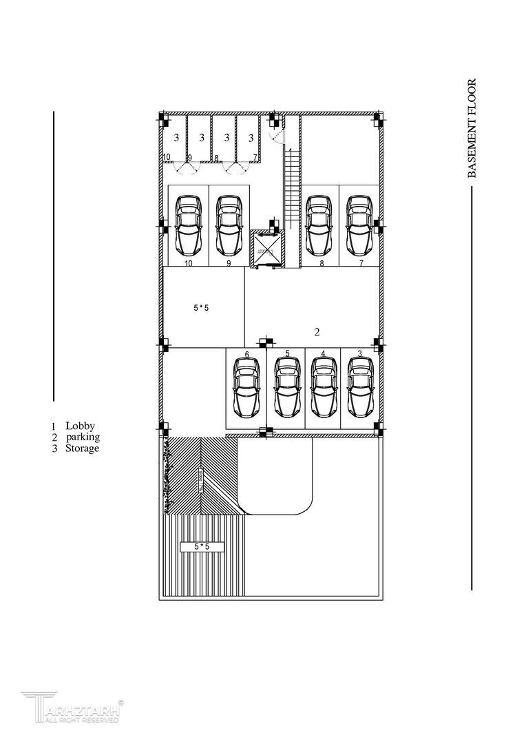
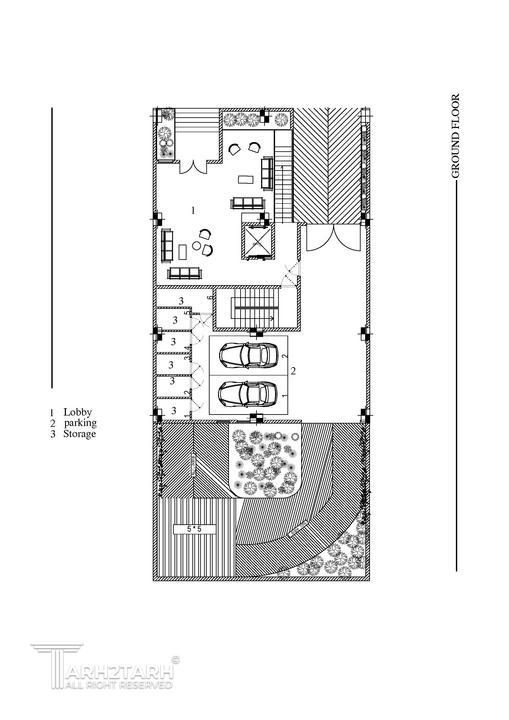
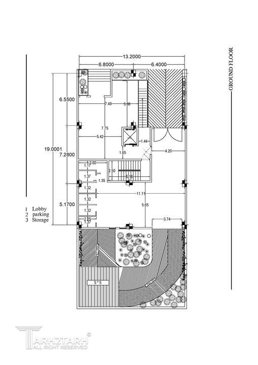
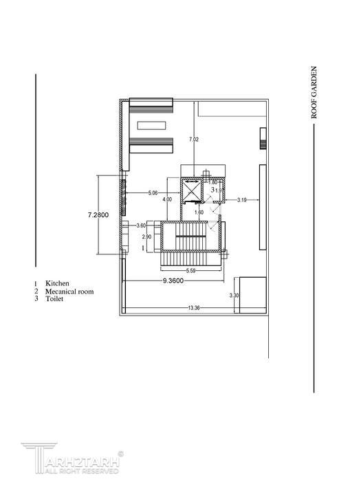
خدمات ارائه شده توسط طراح

خدمات طراحی و کانسپت
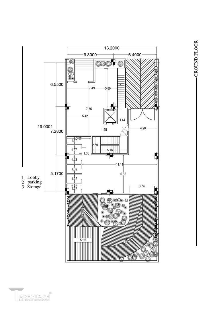
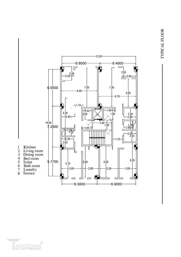
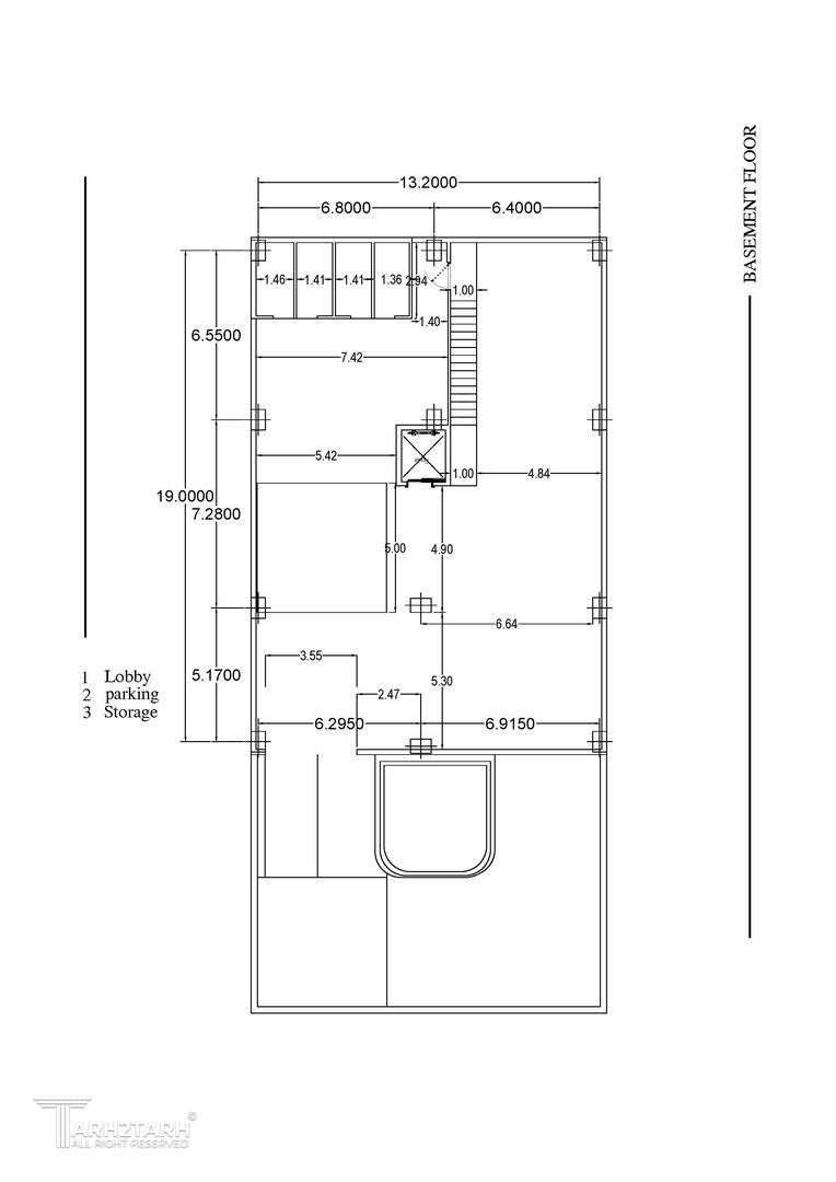
طراحی پلان (نقشه معماری) فاز 1
طراحی نما
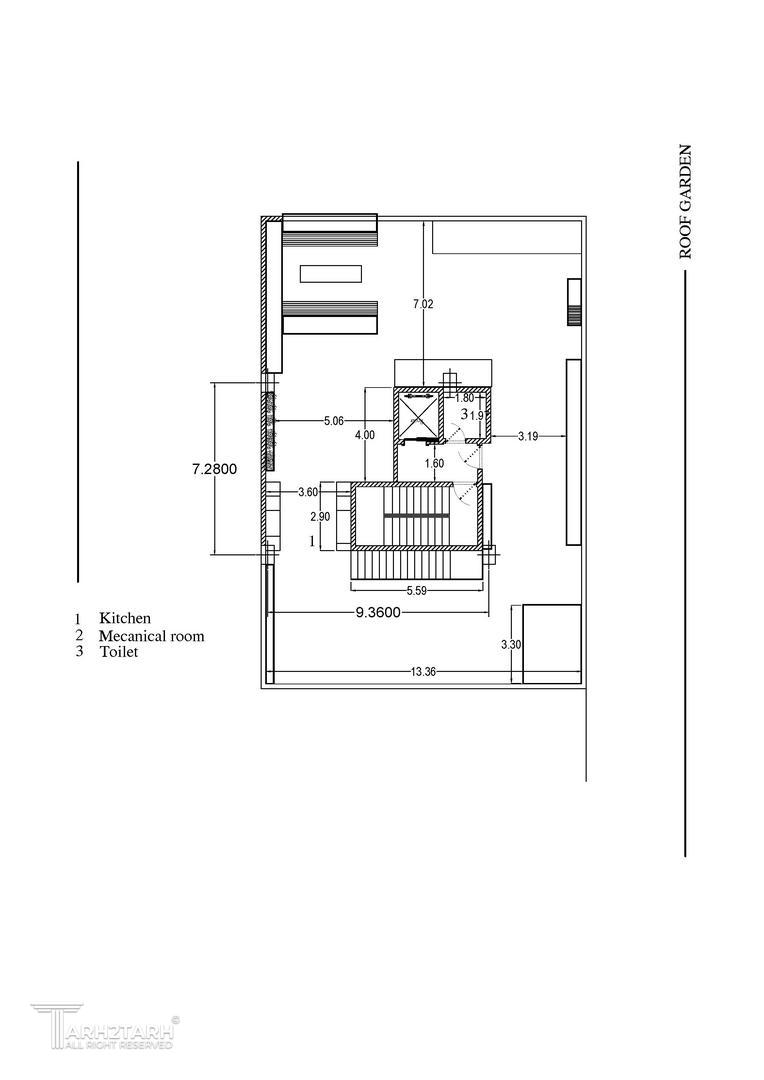
طراحی منظر، فضای سبز، لند اسکیپ، روف گاردن و محوطه
طراحی نورپردازی

موقعیت مکانی پروژه

پیشنهاد و بازخورد