تهران
1404
0

اطلاعات پروژه

نقش : سرپرست تیم طراحی
نوع پروژه : طرح اجرایی
وضعیت : اجرا شده
کاربری : ساختمان مسکونی
متراژ زمین : 65
متراژ زیربنا : 65
سبک‌های طراحی: مدرن

خدمات ارائه شده توسط طراح

خدمات طراحی و کانسپت
دکوراسیون داخلی
طراحی نورپردازی
طراحی مبلمان سفارشی
طراحی کابینت
طراحی دکوراسیون چوبی
طراحی نقشه فاز دو معماری
طراحی پلان (نقشه معماری) فاز 1
طراحی داخلی
خدمات مشاوره و امکانسنجی
متره و برآورد هزینه ساخت پروژه
خدمات اجرایی و نظارتی
مرمت
اجرای دیوارچینی
اجرای کابل‌کشی برق
خدمات فنی و مهندسی
مدل سازی
انجام تغییرات نقشه معماری
نقشه‌برداری و برداشت وضع موجود
متره و برآورد هزینه ساخت پروژه
تهیه نقشه معماری فاز دو اجرایی
خدمات دیگر
عکاسی معماری
فیلم برداری
مدیریت و ساخت پادکست، ویدئوکست
طراحی کمپین‌های تبلیغاتی پروژه‌های ساختمانی

توضیحات پروژه

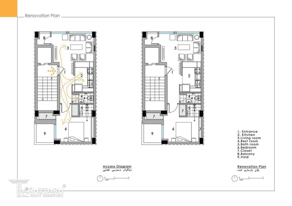
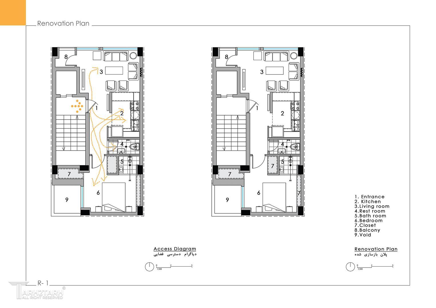
خانه‌اى کوچک در محله‌ای سنتی بازطراحی شد تا اصالت فرهنگی را با آسایش مدرن ترکیب کند. با بازنگری در پلان فضا—از جمله جابه‌جایی آشپزخانه و نشیمن، افزودن فضاهای ذخیره‌سازی هوشمند و ایجاد دیوار حریم خصوصی با آجرهای فیروزه‌ای—فضا روشن‌تر، کارآمدتر و خواناتر شد. کمدهای سفارشی چندمنظوره و منسوجات دست‌بافت بلوچی به غنای فضای داخلی افزودند و حضور گیاهان، طراوت و سرزندگی را تقویت کرد. این پروژه با حفظ هویت فرهنگی ساکنان، کیفیت زندگی روزمره را ارتقا می‌دهد

موقعیت مکانی پروژه

نظرات
پیشنهاد و بازخورد