اطلاعات پروژه

نقش : طراح ارشد
کارفرما : جناب آقای رحمتی
نوع پروژه : طرح اجرایی
وضعیت : اجرا شده
کاربری : ساختمان مسکونی
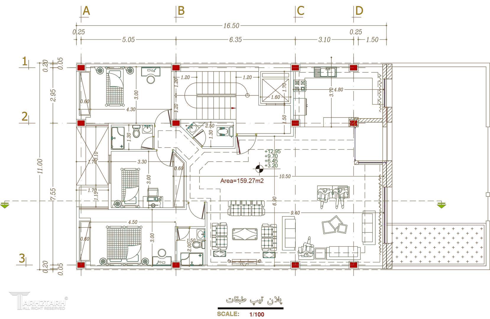
متراژ زمین : 242
متراژ زیربنا : 950
سبک‌های طراحی: مدرن

خدمات ارائه شده توسط طراح

خدمات طراحی و کانسپت
مدلسازی
طراحی نورپردازی
طراحی نقشه سازه (فولادی، بتنی)
طراحی نقشه سازه
طراحی نقشه تأسیسات مکانیکی
طراحی نقشه تأسیسات الکتریکی
طراحی سیستم برق اضطراری و تابلو برق
طراحی سیستم‌های گرمایش، سرمایش، تهویه
طراحی سردرب
طراحی درب
طراحی نقشه فاز دو معماری
طراحی پلان (نقشه معماری) فاز 1
طراحی نما
خدمات مشاوره و امکانسنجی
مشاوره تحلیل سایت پروژه
مشاوره فاز صفر و امکان‌سنجی پروژه
مشاوره و برنامه‌ریزی تعیین کاربری پروژه
مشاوره و تجزیه و تحلیل فنی و اصلاحات نقشه‌ها برای تطبیق با ضوابط ارگانهای ذیربط
مشاوره طراحی اقلیمی
مشاوره در زمینه توسعه پایدار
مشاوره انتخاب مصالح و تکنولوژی‌های نوین ساختمانی
مشاوره‌های مرتبط با مجوزات (ضوابط تراکم، سطح اشغال، پروانه ساختمان، ماده 5، کمیسیون های شهرداری، پایان کار و …)
مشاوره مالی و بودجه‌ای
مشاوره آتش‌نشانی
مشاوره و تهیه شناسنامه فنی و ملکی پروژه
تطبیق نقشه‌ها با ضوابط شهرداری
خدمات اجرایی و نظارتی
ارائه برگه تعهد مجری ذی صلاح (نظام مهندسی)
ناظر ذی‌صلاح (نظام مهندسی)
خدمات فنی و مهندسی
اخذ تاییدیه نقشه پلان
اخذ تاییدیه نما
تهیه آلبوم نمای شهرداری
تهیه نقشه فاز دو شهرداری
تهیه نقشه فاز دو نظام مهندسی
تهیه طرح توجیهی و امکانسنجی(جهت ارائه به کمیسیون ماده 5 و ...)
رندرینگ و خدمات فنی
انجام تغییرات نقشه معماری
ارائه برگه تعهد تهیه نقشه سازه
ارائه برگه تعهد تهیه نقشه تاسیسات مکانیکی
ارائه برگه تعهد تهیه نقشه تاسیسات الکتریکی
ارائه گزارش مکانیک خاک
محاسبه عوارض تخریب و نوسازی شهرداری و دیگر ارگانها
نقشه‌برداری و برداشت وضع موجود
تهیه دفترچه محاسبات
متره و برآورد هزینه ساخت پروژه
کنترل و اصلاح نقشه‌های معماری، سازه و ...
تهیه نقشه معماری فاز دو جهت ارائه به سازمان نظام مهندسی
تهیه نقشه سازه فاز دو جهت ارائه به سازمان نظام مهندسی
تهیه نقشه تاسیسات برقی فاز دو جهت ارائه به سازمان نظام مهندسی
تهیه نقشه تاسیسات مکانیکی فاز دو جهت ارائه به سازمان نظام مهندسی
تهیه نقشه معماری فاز دو اجرایی
تهیه نقشه سازه فاز دو اجرایی
تهیه نقشه تاسیسات مکانیکی فاز دو اجرایی
تهیه نقشه تاسیسات برقی فاز دو اجرایی
اخذ پروانه تخریب و نوسازی شهرداری
تهیه نقشه‌های اجرایی پروژه برای دریافت مجوزهای لازم (شهرداری، نظام مهندسی و …)
ارائه برگه تعهد تهیه نقشه معماری
خدمات دیگر
رندرینگ

توضیحات پروژه

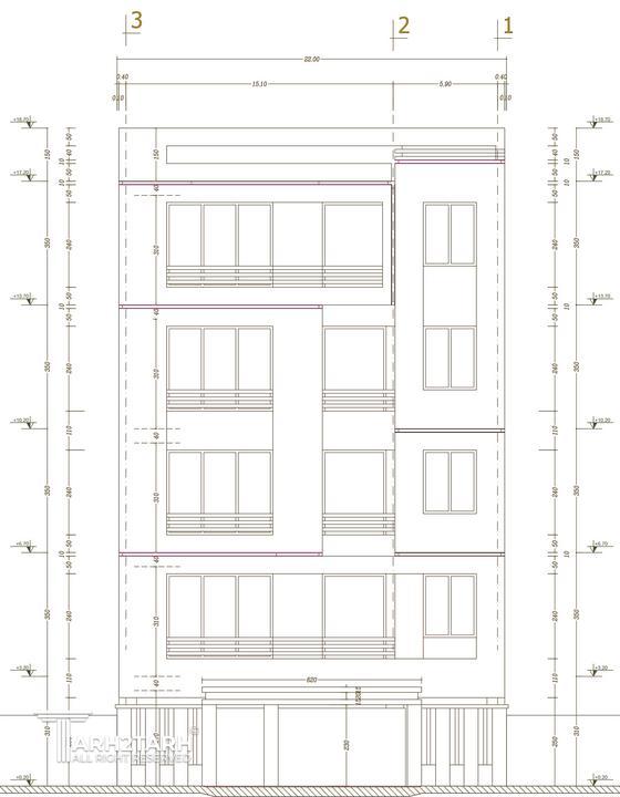
این ساختمان با هدف خلق فضایی آرام، روشن و پویا برای خانواده‌هایی طراحی شده که به دنبال کیفیت زندگی بالا در محیطی شهری هستند. ترکیب مصالح گرم (چوب) و سرد (آجر سفید) در نما، حس تعادل بین طبیعت و شهر را القا می‌کند.

موقعیت مکانی پروژه

نظرات
پیشنهاد و بازخورد