اطلاعات پروژه

نقش : طراح ارشد
کارفرما : آقای مهندس شاه محمدی و شرکاء
نوع پروژه : طرح اجرایی
وضعیت : اجرا شده
کاربری : ساختمان مسکونی
متراژ زمین : 510
متراژ زیربنا : 2700
سبک‌های طراحی: یونانی کلاسیک

خدمات ارائه شده توسط طراح

خدمات طراحی و کانسپت
مدلسازی
دکوراسیون داخلی
طراحی نورپردازی
طراحی سازه نگهبان
طراحی نقشه سازه
طراحی نقشه تأسیسات مکانیکی
طراحی نقشه تأسیسات الکتریکی
طراحی سیستم برق اضطراری و تابلو برق
طراحی سیستم‌های گرمایش، سرمایش، تهویه
طراحی درب
طراحی کانسپت (معماری)
طراحی نقشه فاز دو معماری
طراحی پلان (نقشه معماری) فاز 1
طراحی نما
طراحی داخلی
خدمات مشاوره و امکانسنجی
مشاوره تحلیل سایت پروژه
مشاوره فاز صفر و امکان‌سنجی پروژه
مشاوره و برنامه‌ریزی تعیین کاربری پروژه
مشاوره و تجزیه و تحلیل فنی و اصلاحات نقشه‌ها برای تطبیق با ضوابط ارگانهای ذیربط
مشاوره طراحی اقلیمی
مشاوره در زمینه توسعه پایدار
مشاوره انتخاب مصالح و تکنولوژی‌های نوین ساختمانی
مشاوره‌های مرتبط با مجوزات (ضوابط تراکم، سطح اشغال، پروانه ساختمان، ماده 5، کمیسیون های شهرداری، پایان کار و …)
مشاوره آتش‌نشانی
مشاوره و تهیه شناسنامه فنی و ملکی پروژه
خدمات اجرایی و نظارتی
نظارت بر اجرای معماری (نظام مهندسی)
خدمات فنی و مهندسی
اخذ تاییدیه نقشه پلان
اخذ تاییدیه نما
تهیه آلبوم نمای شهرداری
تهیه نقشه فاز دو شهرداری
تهیه نقشه فاز دو نظام مهندسی
رندرینگ و خدمات فنی
مدل سازی
انجام تغییرات نقشه معماری
ارائه برگه تعهد تهیه نقشه سازه
ارائه برگه تعهد تهیه نقشه تاسیسات مکانیکی
ارائه برگه تعهد تهیه نقشه تاسیسات الکتریکی
سیستم مانیتوریگ سلامت ساختمان در زلزله (قابلیت استفاده دوباره از ساختمان در زلزله)
تهیه نقشه معماری فاز دو جهت ارائه به سازمان نظام مهندسی
تهیه نقشه سازه فاز دو جهت ارائه به سازمان نظام مهندسی
تهیه نقشه تاسیسات برقی فاز دو جهت ارائه به سازمان نظام مهندسی
تهیه نقشه تاسیسات مکانیکی فاز دو جهت ارائه به سازمان نظام مهندسی
تهیه نقشه معماری فاز دو اجرایی
تهیه نقشه سازه فاز دو اجرایی
تهیه نقشه تاسیسات مکانیکی فاز دو اجرایی
تهیه نقشه تاسیسات برقی فاز دو اجرایی
اخذ پروانه تخریب و نوسازی شهرداری
تهیه نقشه‌های اجرایی پروژه برای دریافت مجوزهای لازم (شهرداری، نظام مهندسی و …)
ارائه برگه تعهد تهیه نقشه معماری
خدمات دیگر
رندرینگ
ساخت انیمیشن

توضیحات پروژه

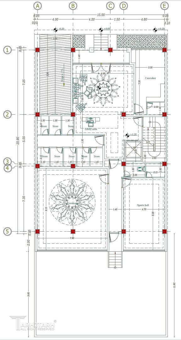
- سردر کلاسیک با ستون‌های بلند و سنگ طبیعی. - لابی مجلل با سقف بلند، لوسترهای کریستالی و کف‌پوش مرمر. - فضای انتظار با مبلمان کلاسیک و نورپردازی گرم. - مشاعات - سالن اجتماعات با طراحی کلاسیک و جزئیات تزئینی. - باشگاه ورزشی با نور طبیعی و تزئینات سنگی. - باغ مرکزی با مسیرهای سنگفرش، آب‌نما و نیمکت‌های کلاسیک. - واحدها - پلان‌های باز با نورگیری کامل و بالکن‌های کلاسیک. - سقف‌های بلند با گچ‌بری ظریف و قاب‌بندی دیوارها. - آشپزخانه‌های مدرن در قاب کلاسیک، ترکیب عملکرد و زیبایی. - پارکینگ و خدمات - پارکینگ وسیع با دسترسی مستقیم به آسانسورهای لوکس

موقعیت مکانی پروژه

نظرات
پیشنهاد و بازخورد